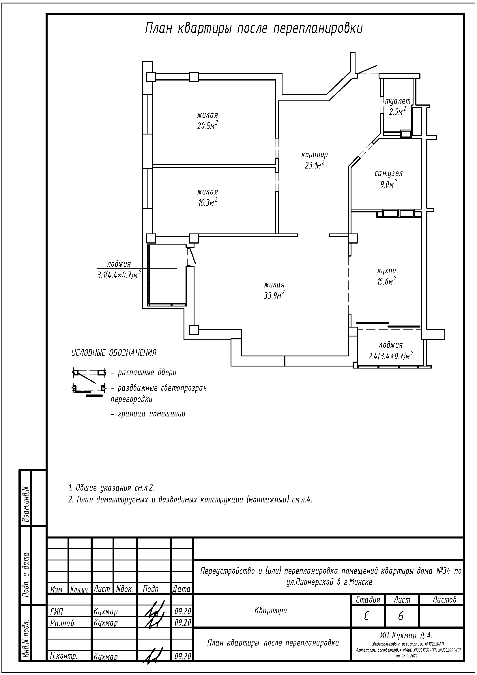
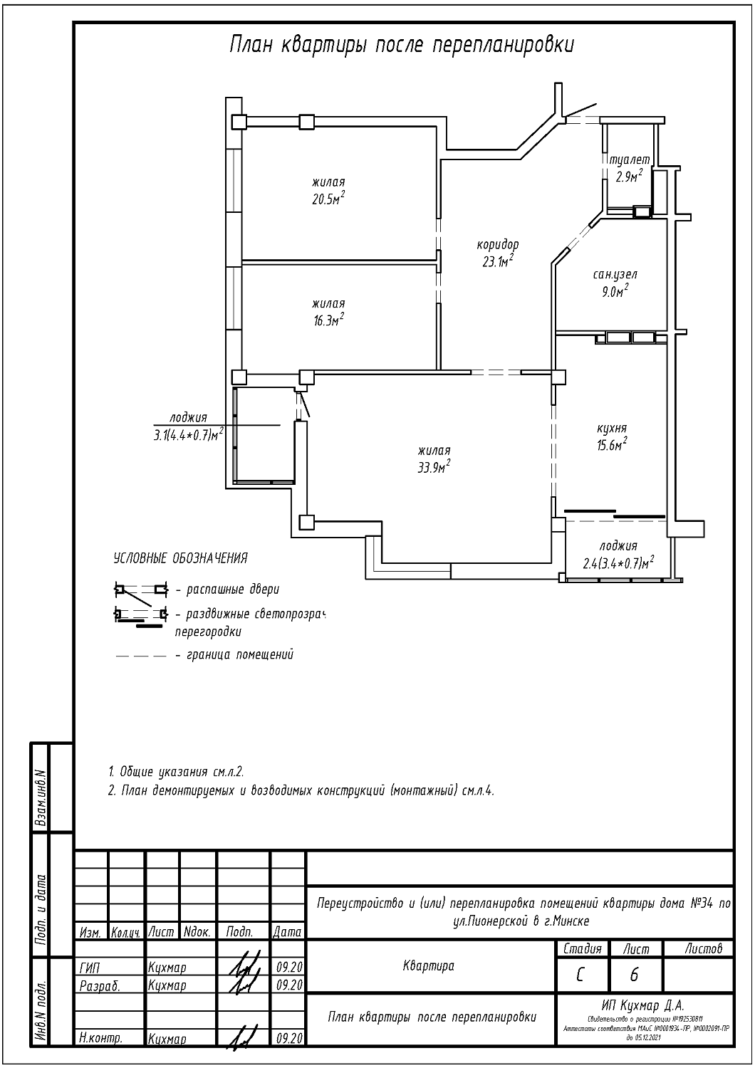
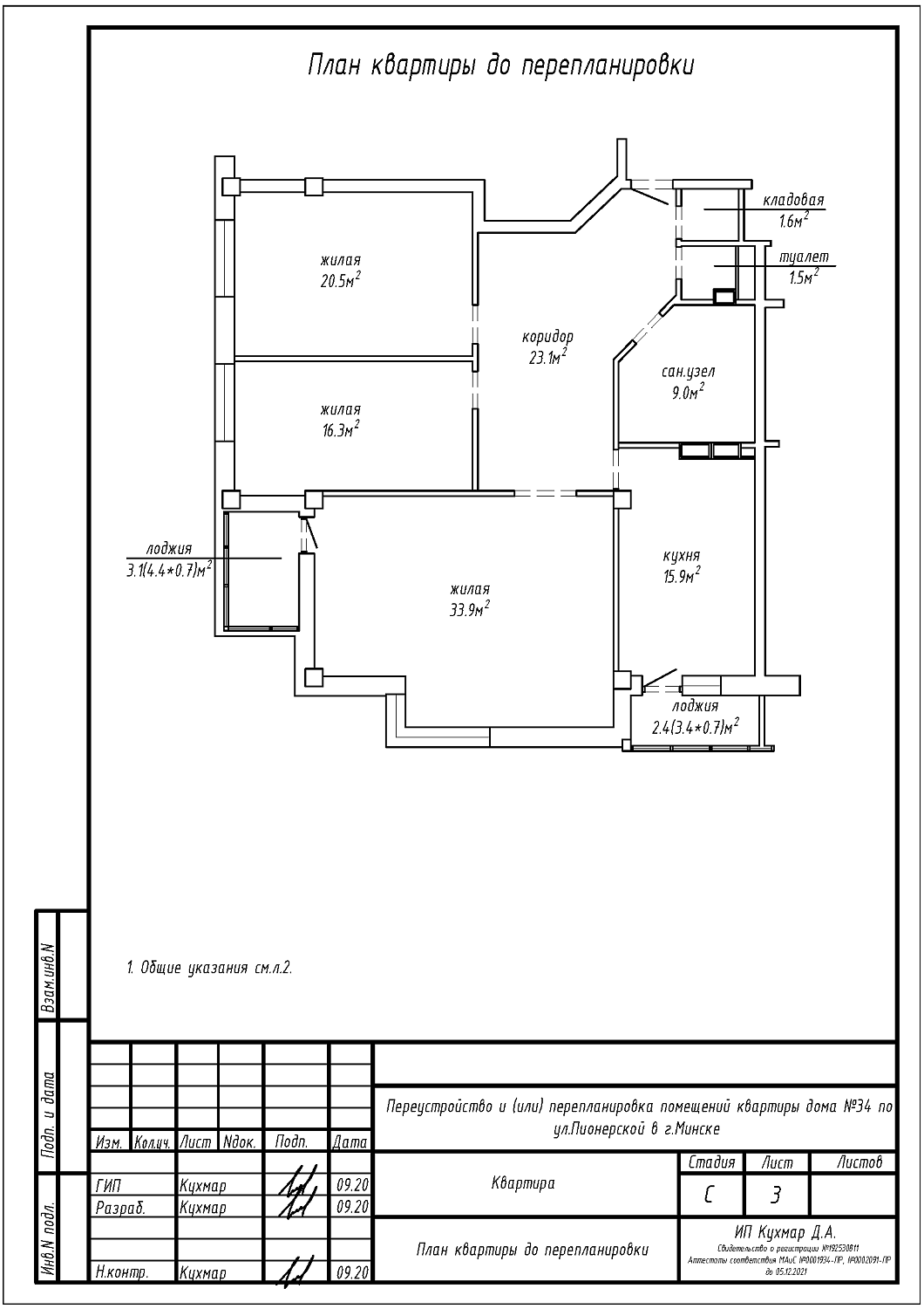
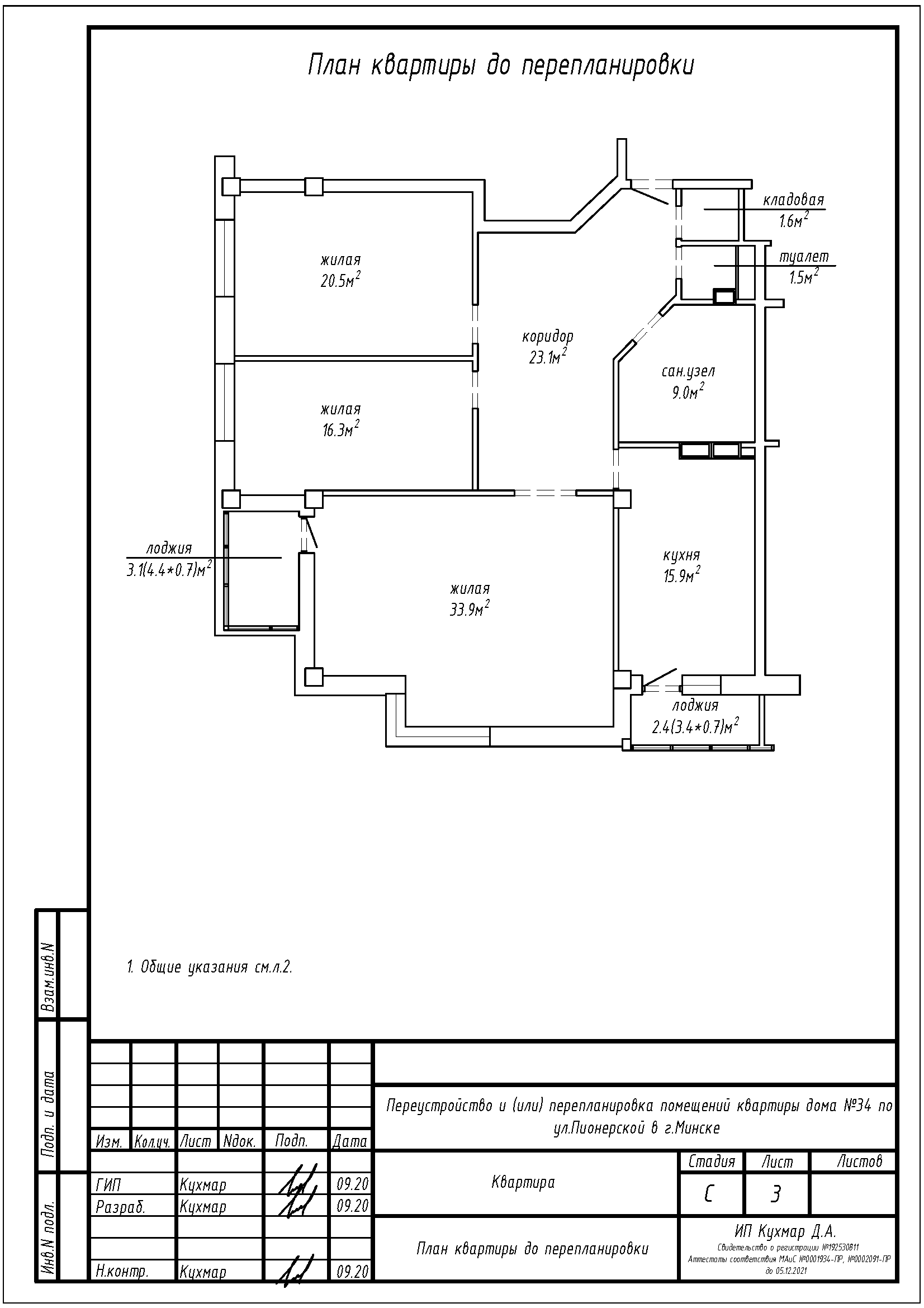
Перепланировка квартиры по ул. Пионерская, 34 в г. Минске
Пожелания заказчика:
- Закладка дверного проёма в перегородке между коридором и кухней;
- Устройство нового проема между жилой и кухней;
- Демонтаж стен между лоджией и кухней с последующим устройством раздвижной светопрозрачной перегородки;
- Устройство зашивок коммуникаций и инсталляций;
- Изменение направления открывания входной двери в квартиру;
- Объединение кладовой и туалета в единый туалет;
- Замена и перенос отопительных приборов.
Нами были разработаны следующие разделы проектной документации для согласования в исполкоме:
- АС - архитектурно-строительные решения;
- ОВ - отопление и вентиляция.
