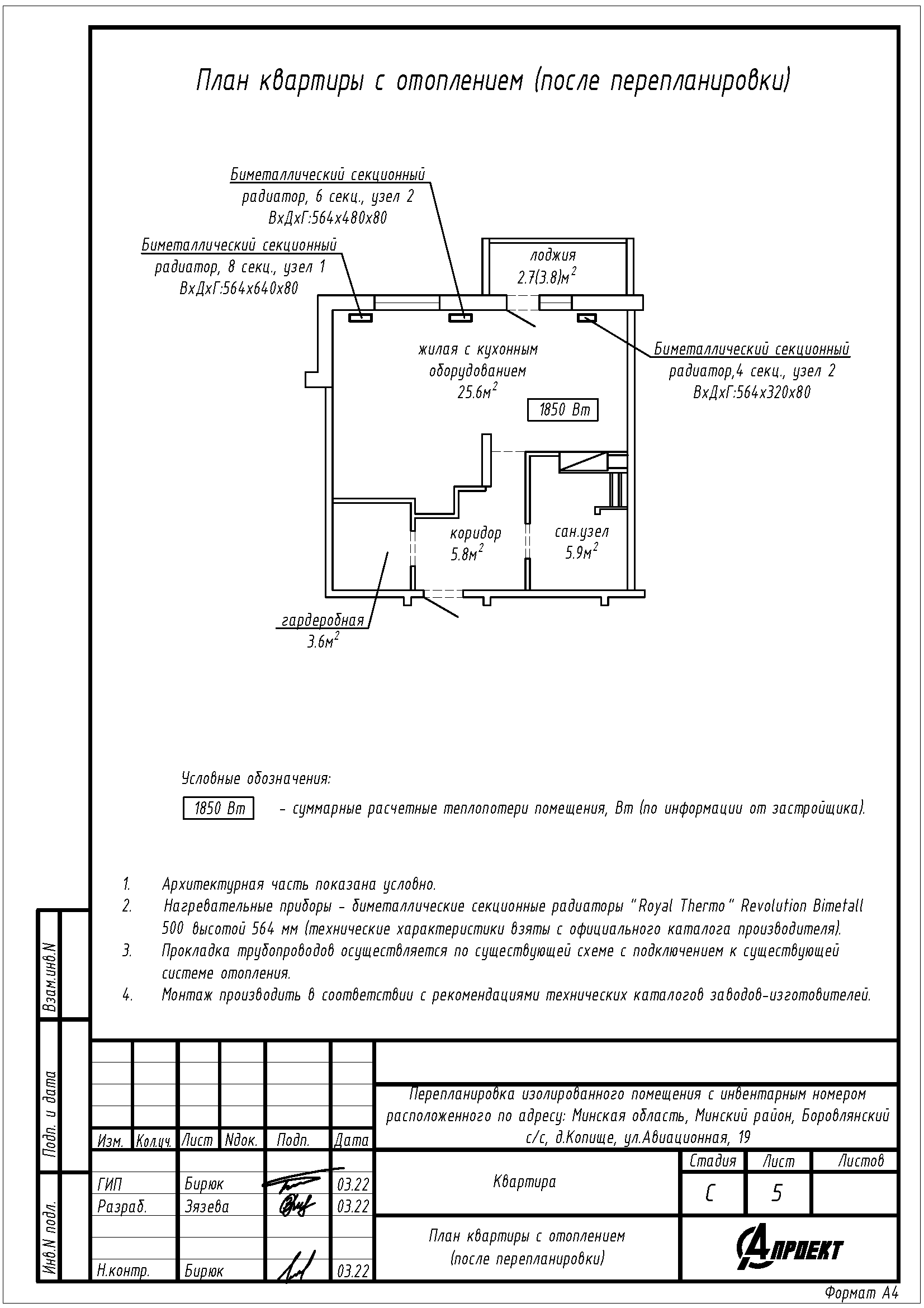
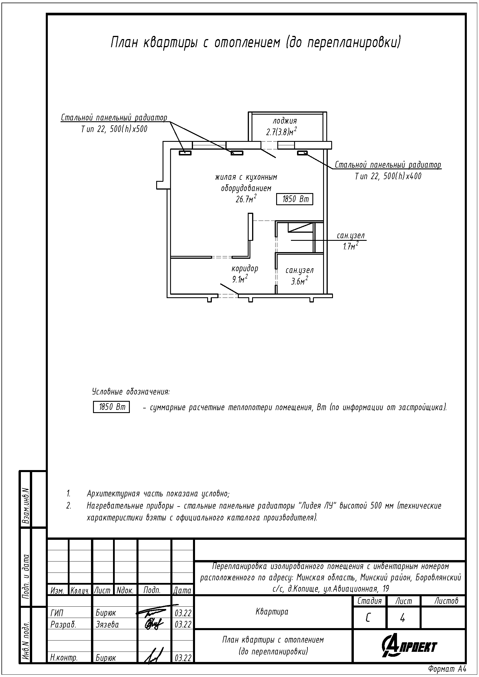
Перепланировка квартиры по ул. Авиационная, 19 в ЖК «Новая Боровая»
Пожелания заказчика:
- Устройство жилой на части площади жилой с кухонным оборудованием;
- Объединение двух санузлов в единый санузел;
- Закладка дверного проёма между санузлом и коридором;
- Изменение площади жилой с кухонным оборудованием за счёт демонтажа существующих перегородок с дверным проёмом между жилой с кухонным оборудованием и коридором с последующим устройством перегородок на площади коридора;
- Устройство перегородок на площади жилой с кухонным оборудованием;
- Смена направления отрывания входной двери;
- Перенос и замена нагревательных приборов системы отопления;
Нами были разработаны следующие разделы проектной документации для согласования в исполкоме:
- АС - архитектурно-строительные решения;
- ОВ - отопление и вентиляция.
