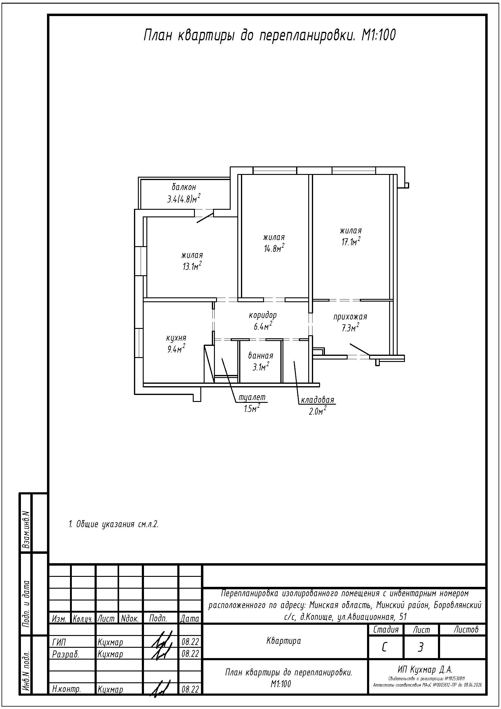
Перепланировка квартиры по ул. Авиационная, 51 в ЖК «Новая Боровая»
Пожелания заказчика:
- Демонтаж перегородки между ванной и кладовой, с целью увеличения ванной;
- Закладка дверного проёма между кладовой и коридором;
- Устройство зашивки инсталляции в туалете.
Нами были разработаны следующие разделы проектной документации для согласования в исполкоме:
- АС - архитектурно-строительные решения.
