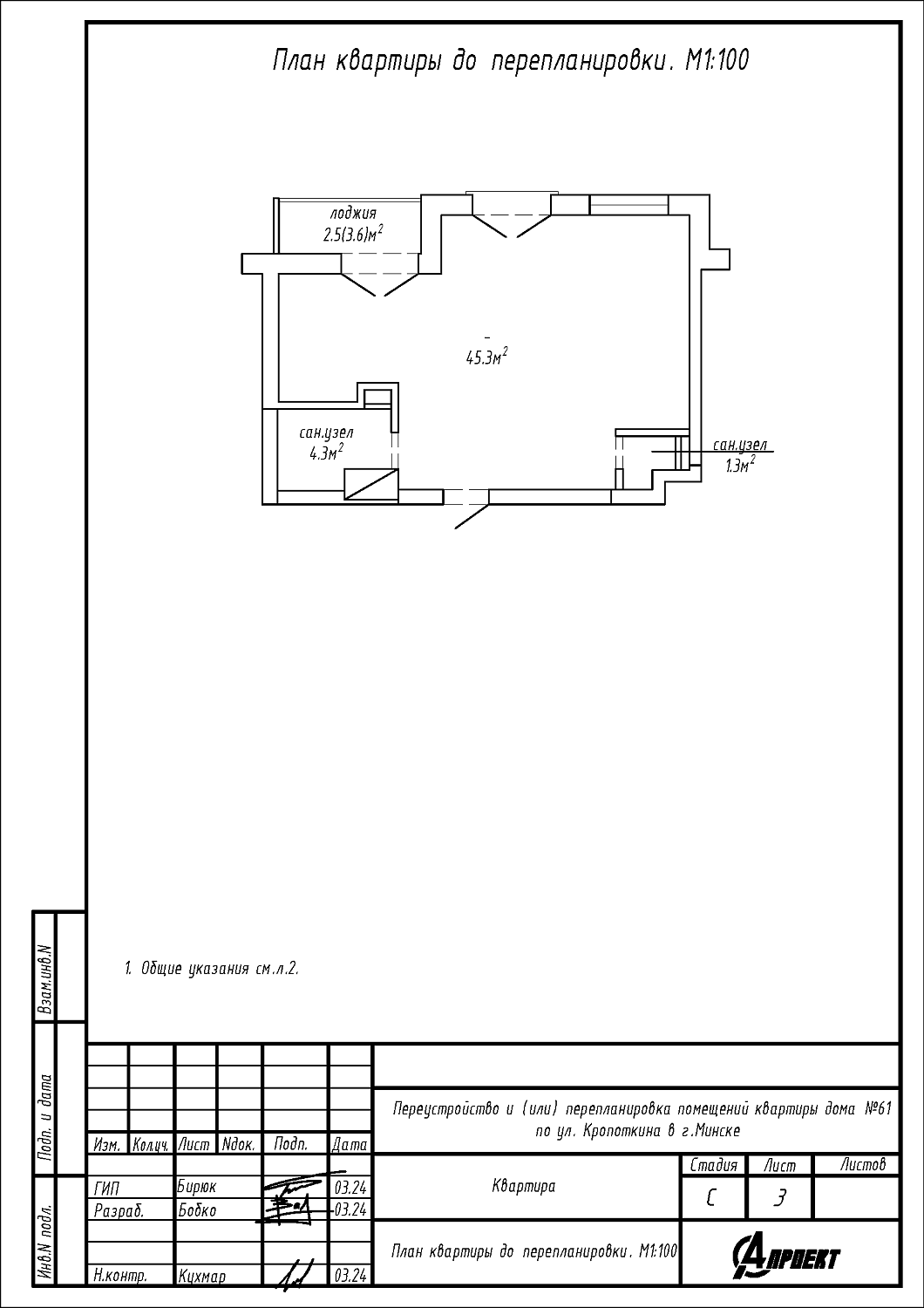
Перепланировка квартиры по ул. Кропоткина, 61 в ЖК «Фарфоровый»
Пожелания заказчика:
- Разделение помещения жилой с кухонным оборудованием на жилую с кухонным оборудованием, жилую;
- Устройство ванной на площади туалета;
- Увеличение площади сан.узла за счет части площади жилого, но не более 25%;
- Перенос отопительного прибора.
Нами были разработаны следующие разделы проектной документации для согласования в исполкоме:
- АС - архитектурно-строительные решения;
- ОВ - отопление и вентиляция.
