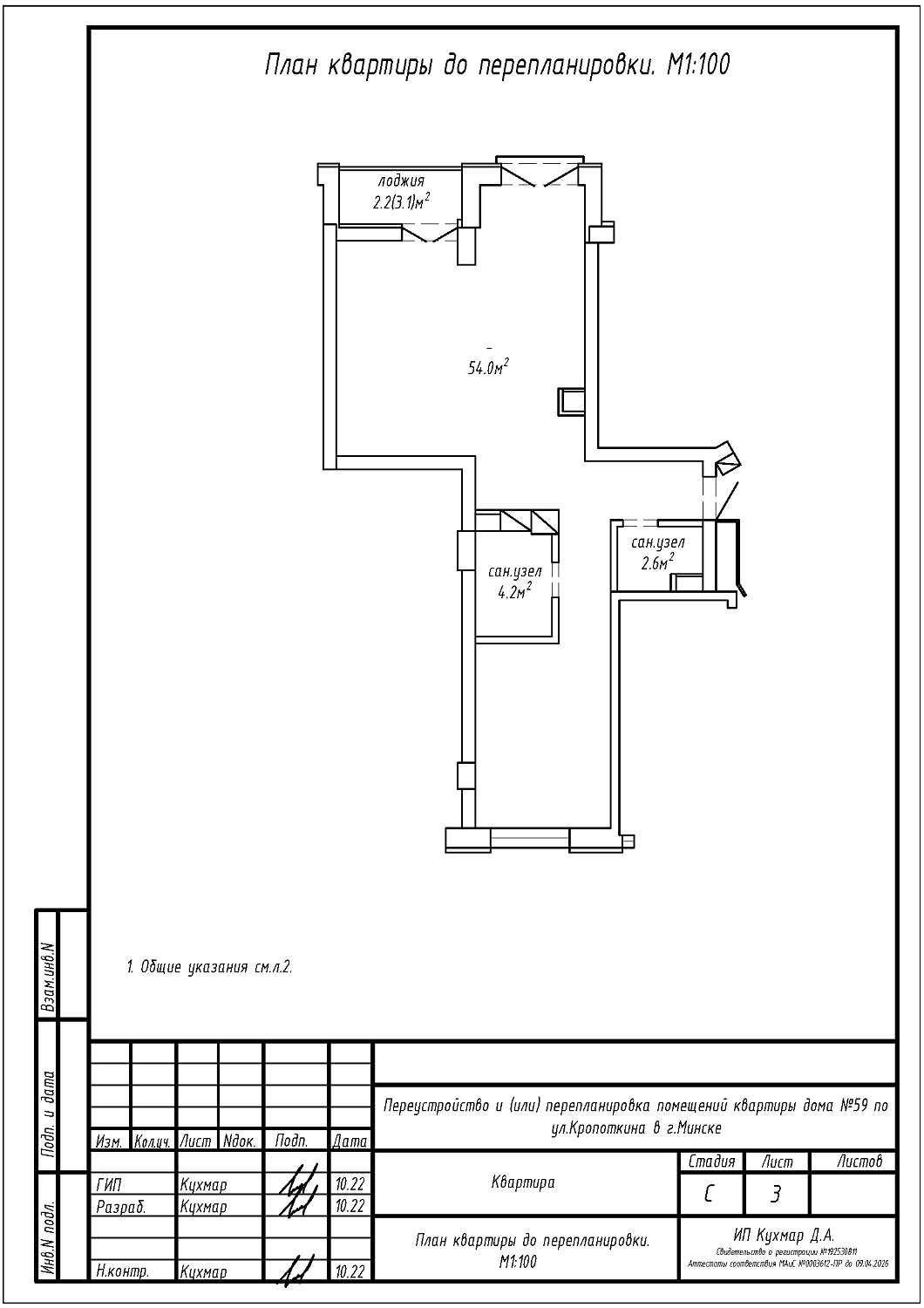
Перепланировка квартиры по ул. Кропоткина, 59 в ЖК «Фарфоровый»
Пожелания заказчика:
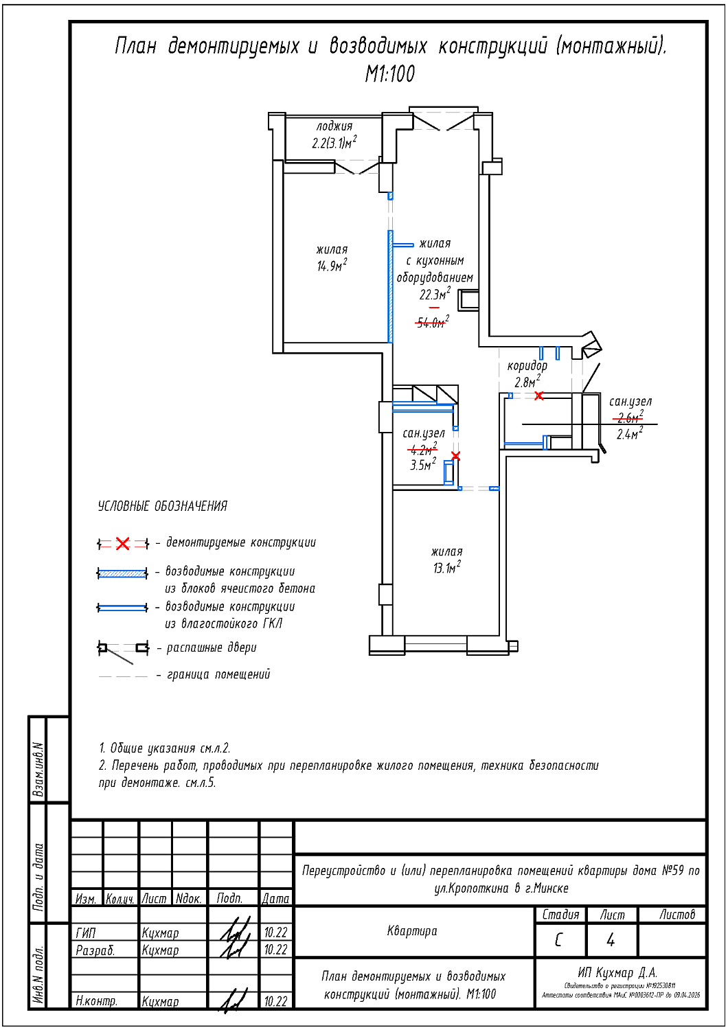
- Перенос дверных проёмов в санузлах;
- Устройство жилой с кухонным оборудованием и двух жилых.
Нами были разработаны следующие разделы проектной документации для согласования в исполкоме:
- АС - архитектурно-строительные решения.
