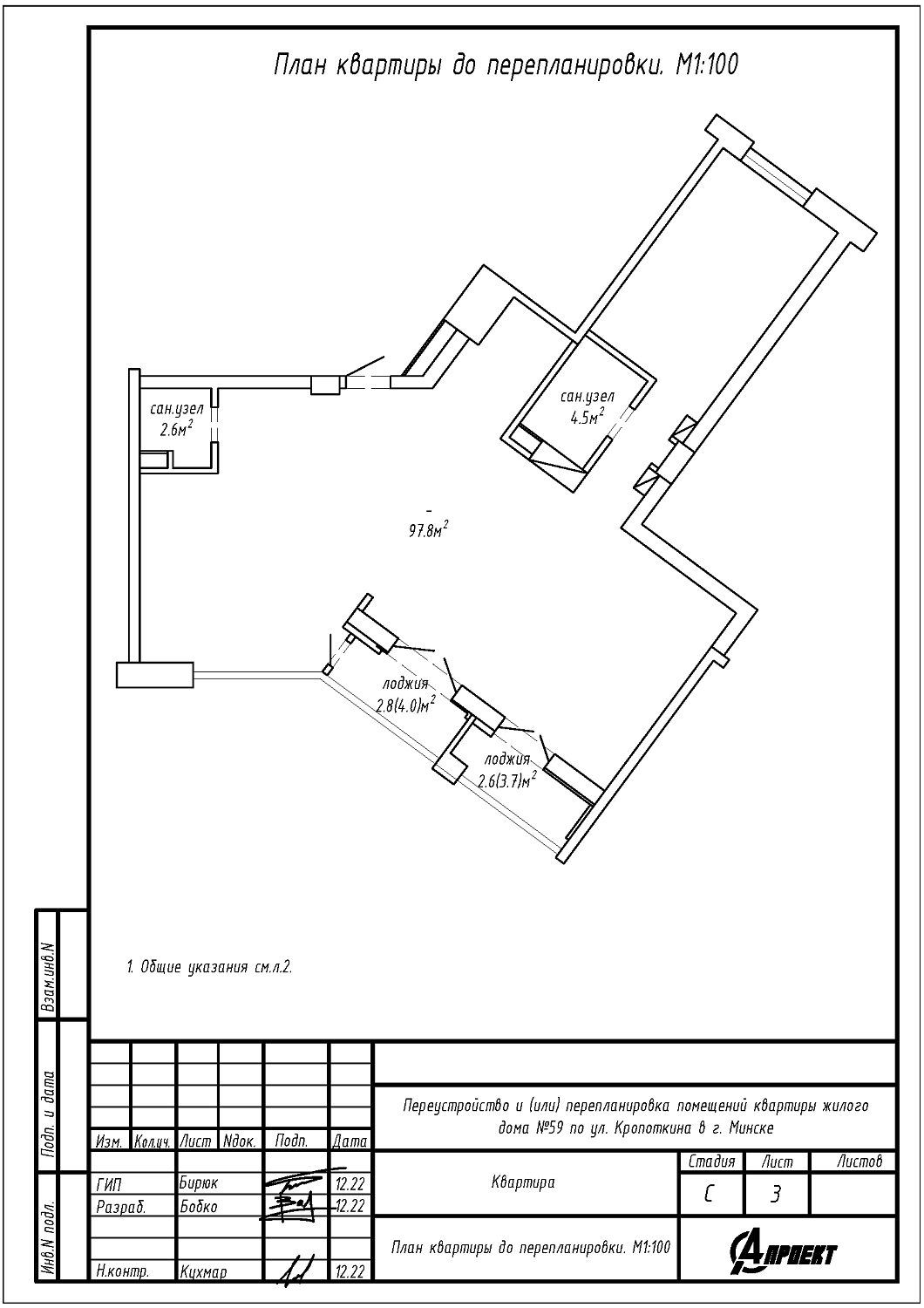
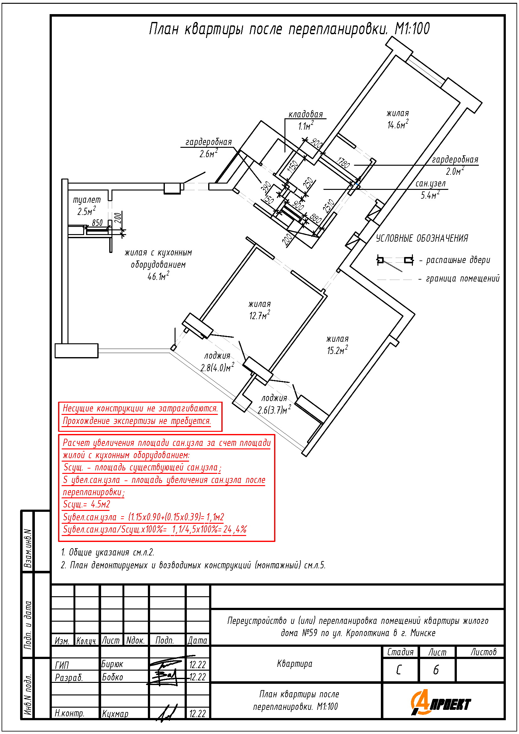
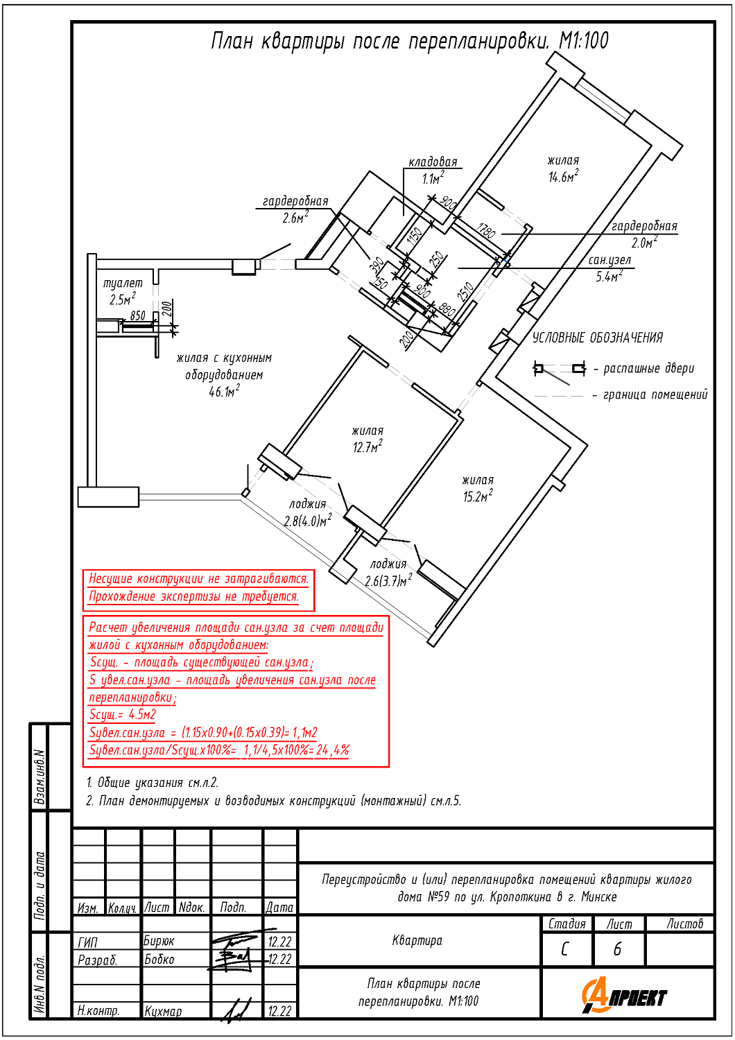
Перепланировка квартиры по ул. Кропоткина, 59 в ЖК «Фарфоровый»
Пожелания заказчика:
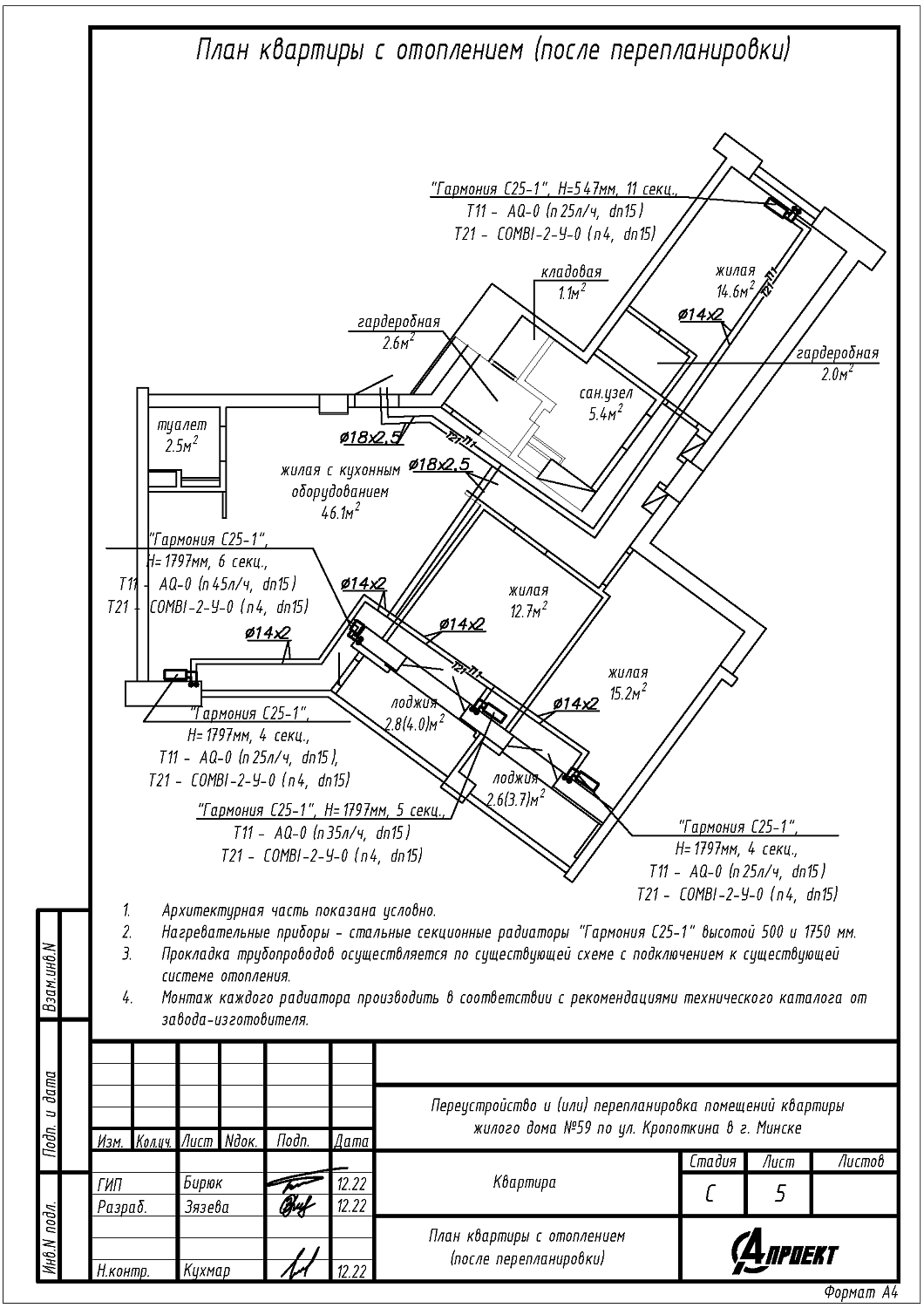
- Устройство жилой с кухонным оборудованием, трёх жилых комнат, гардероба и кладовой;
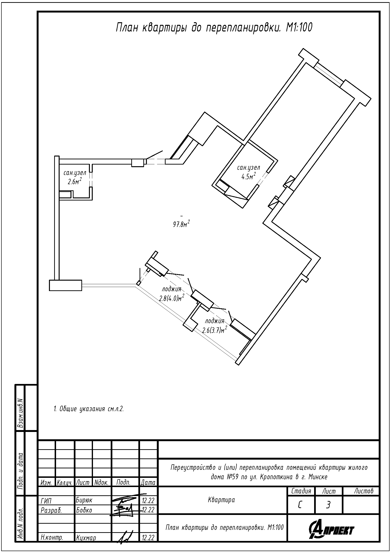
- Демонтаж части перегородки между санузлом и жилым помещением с последующим устройством новых частей перегородок, образованием санузла с увеличенной площадью за счёт площади жилого помещения не более 25% от площади санузла;
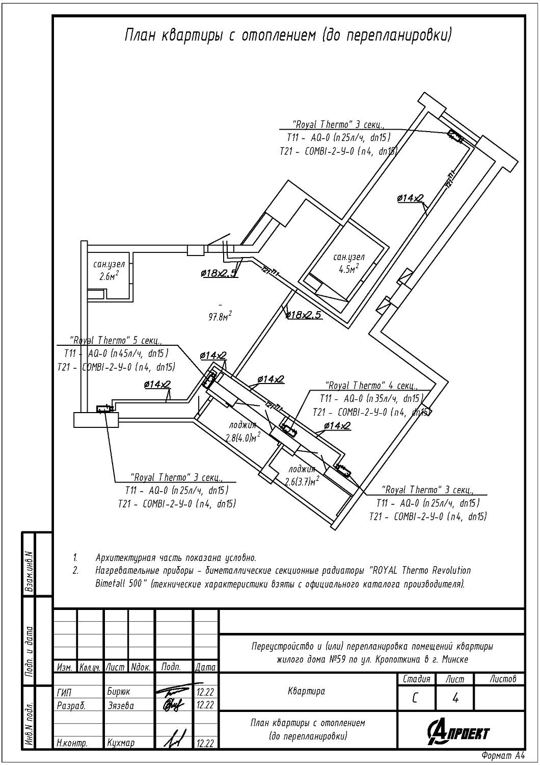
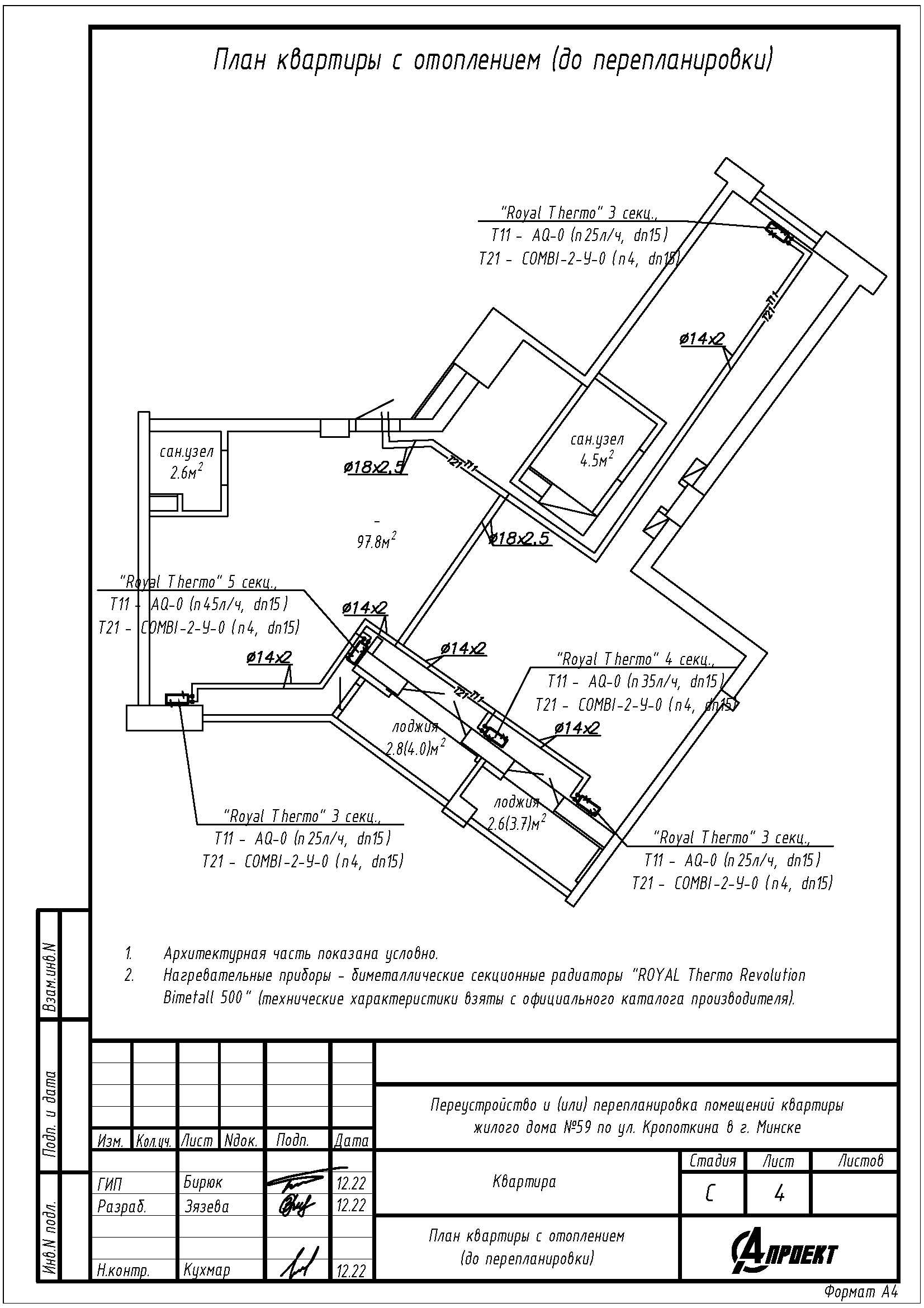
- Замена и перенос существующих отопительных приборов.
Нами были разработаны следующие разделы проектной документации для согласования в исполкоме:
- АС - архитектурно-строительные решения;
- ОВ - отопление и вентиляция.
