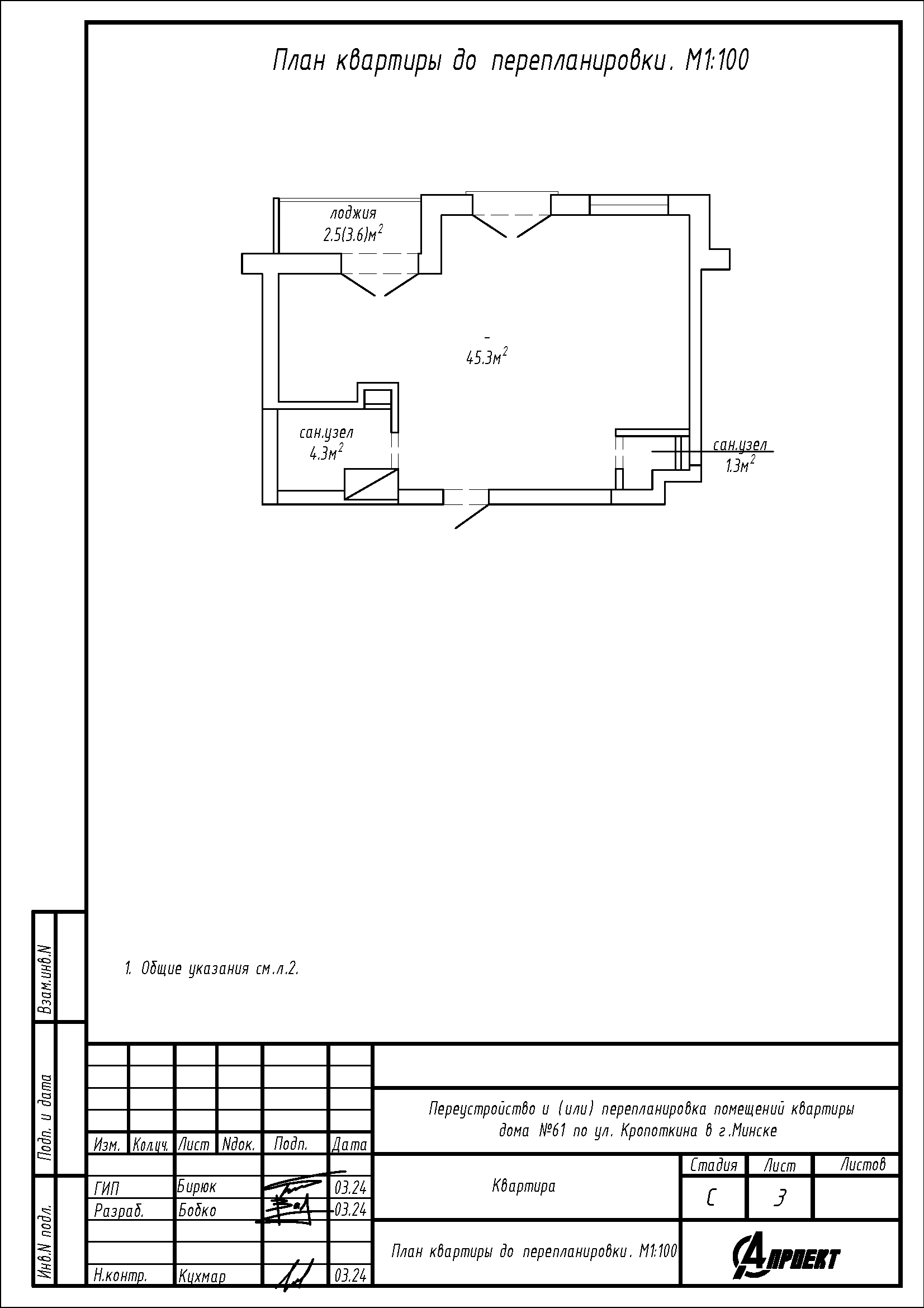
Перепланировка квартиры по ул. Кропоткина, 61 в ЖК «Фарфоровый»
Пожелания заказчика:
- Разделение общего жилого помещения на жилую с кухонным оборудованием и жилую;
- Увеличение площади санузла за счёт площади жилого, но не более чем на 25%;
- Перенос отопительного прибора.
Нами были разработаны следующие разделы проектной документации для согласования в исполкоме:
- АС - архитектурно-строительные решения;
- ОВ - отопление и вентиляция.
