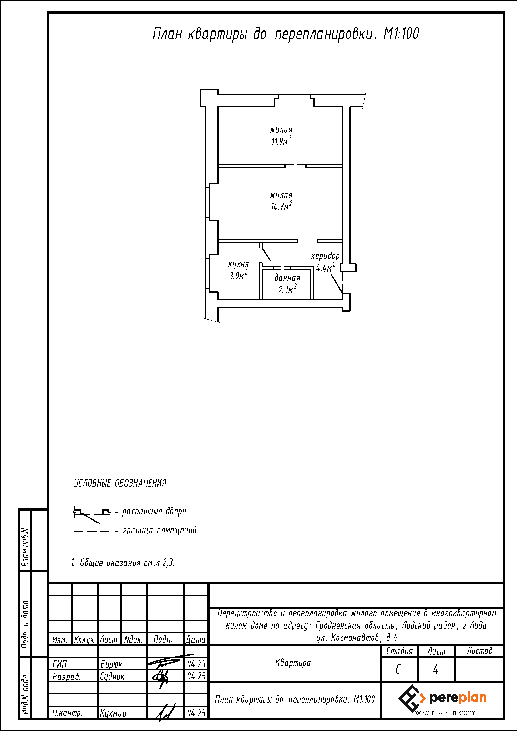
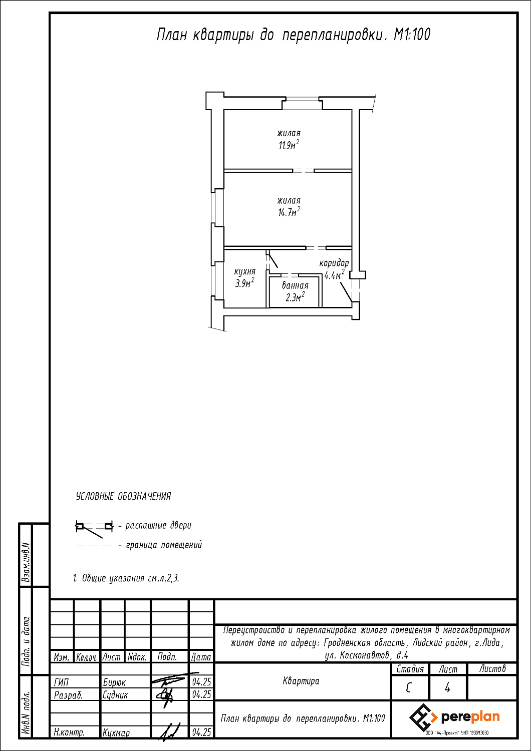
Перепланировка квартиры по ул. Космонавтов, 4 в г. Лида
Пожелания заказчика:
- Устройство дверного проёма между кухней и жилой комнатой;
- Увеличение площади ванной комнаты за счёт коридора, путем устройства перегородок;
- Устройство дверного проёма между ванной комнатой и коридором;
- Перенос дверного проёма между жилыми комнатами;
- Разборка части перегородки между коридором и жилой комнатой;
- Устройство зашивки ГКЛ на площади ванной;
- Замена дверного блока входной двери со сменой направления открывания.
Нами были разработаны следующие разделы проектной документации для согласования в исполкоме:
- АС - архитектурно-строительные решения.
