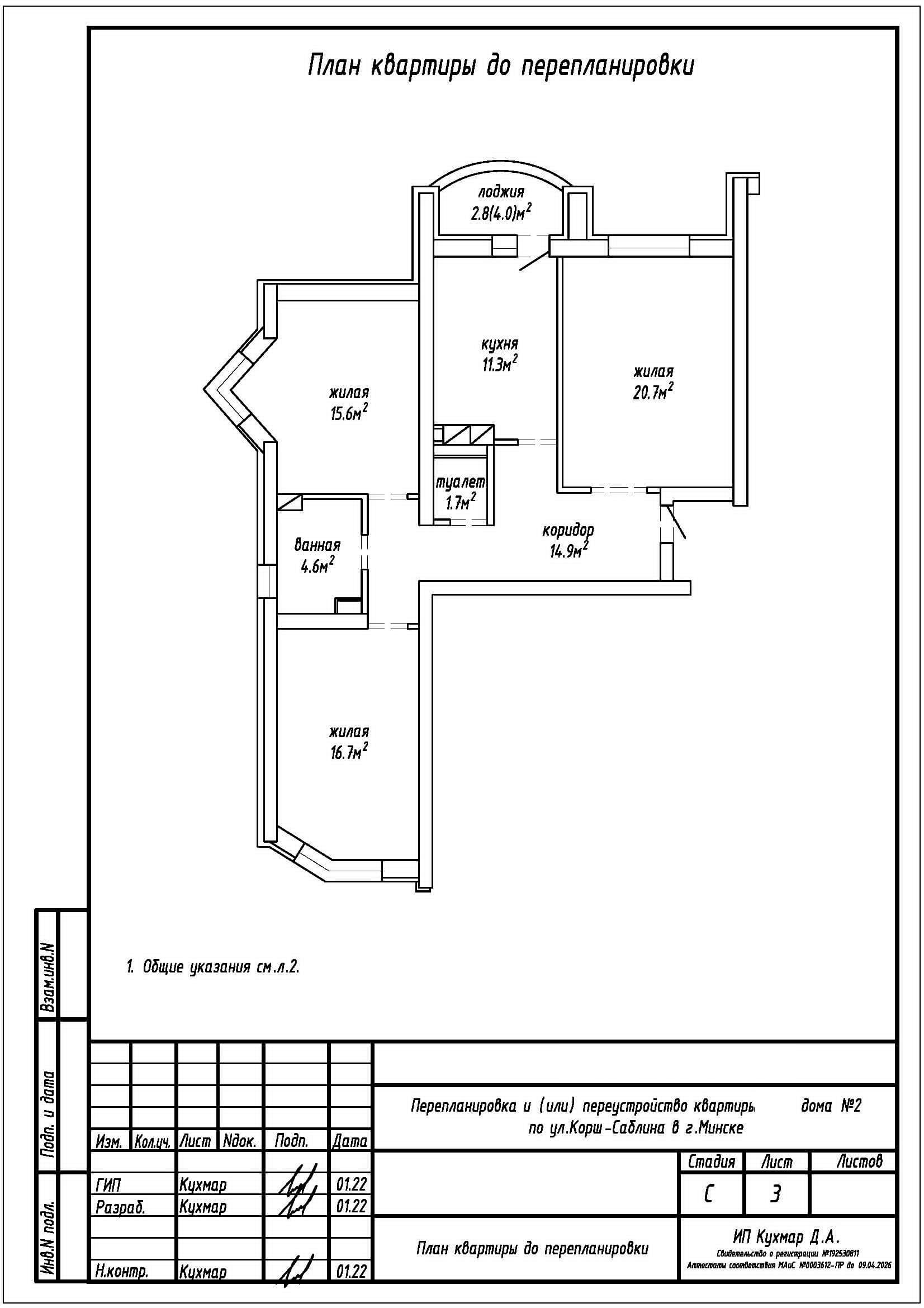
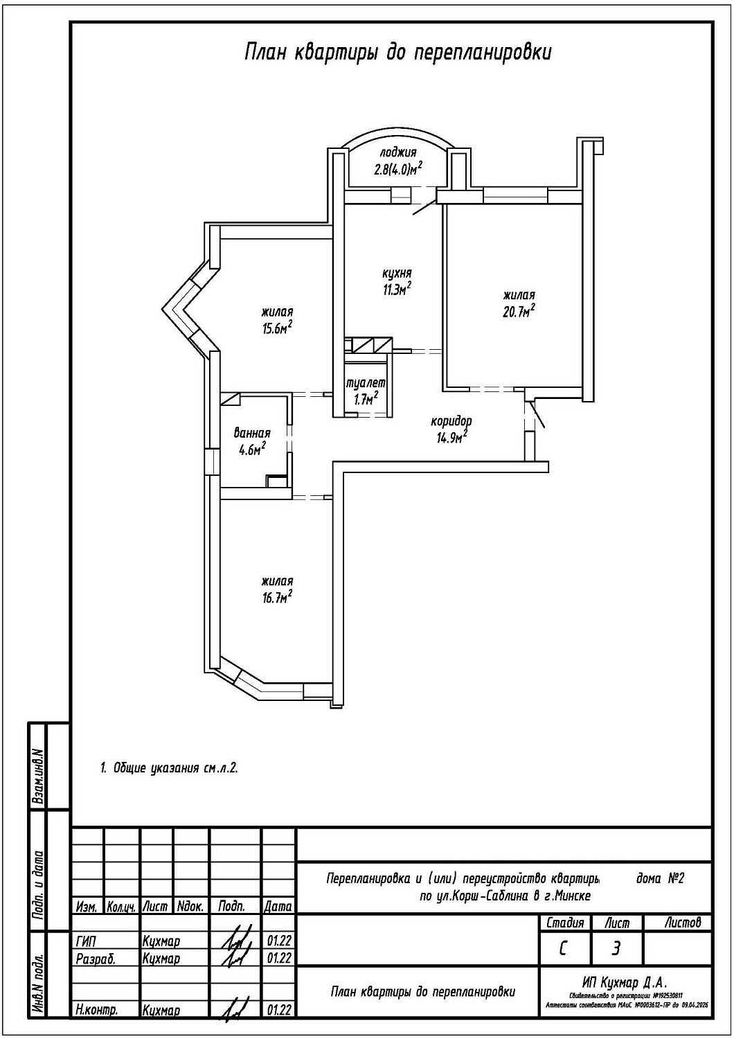
Перепланировка квартиры по ул. Корш-Саблина, 2 в г. Минске
Пожелания заказчика:
- Демонтаж перегородок с дверным проемом между туалетом и коридором с последующим устройством перегородок с дверным проемом на части площади коридора с целью устройства санузла;
- Демонтаж зашивки туалета с последующим устройством зашивок из ГКЛ на части площади туалета и коридора;
- Демонтаж частей перегородок с дверными проемами между кухней и коридором, жилой и коридором с последующим устройством перегородок с дверным проемом на части площади жилой 20.7м2 и коридора:
- Смещение дверных проемов в перегородках между коридором, жилой 15.6 м 2 и жилой;
- Демонтаж подоконной части стены между кухней и лоджией;
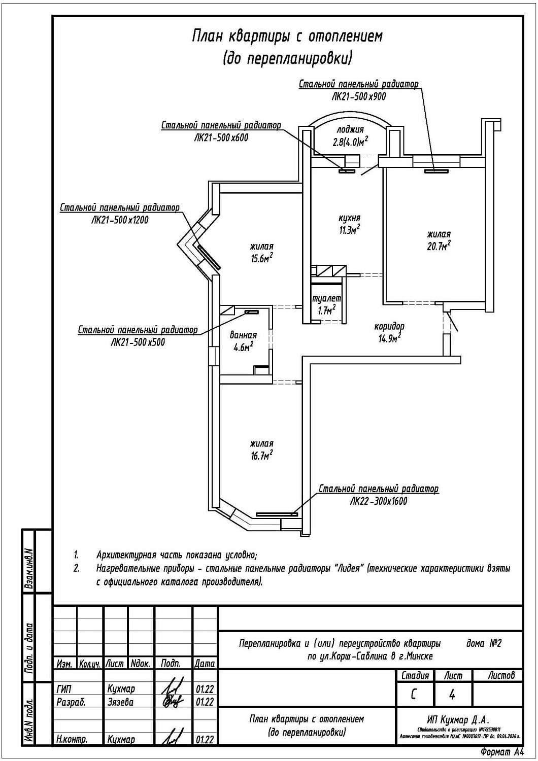
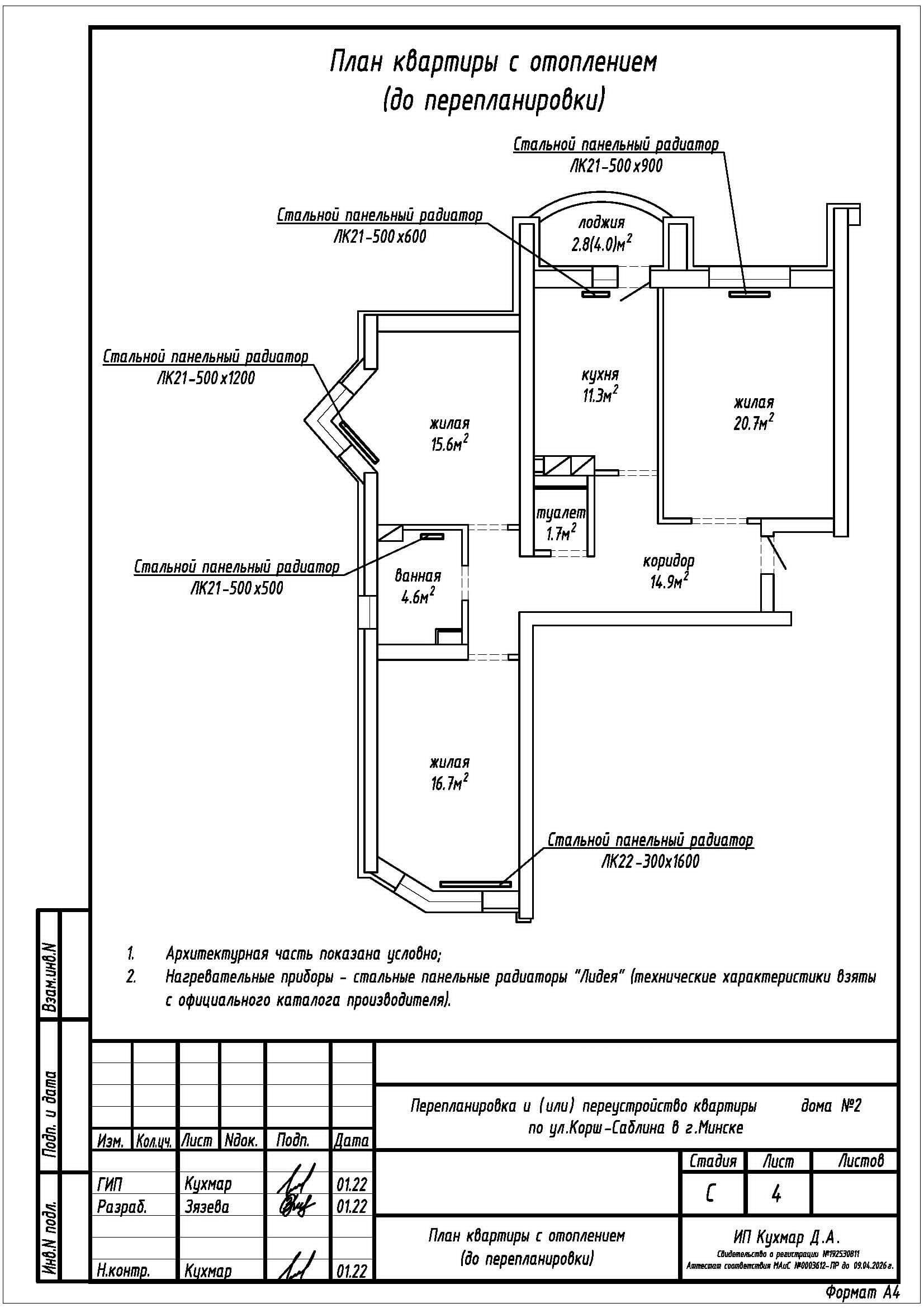
- Замена и перенос отопительных приборов.
Нами были разработаны следующие разделы проектной документации для согласования в исполкоме:
- АС - архитектурно-строительные решения;
- ОВ - отопление и вентиляция.
