Перепланировка квартиры по ул. Водолажского, 4 в г. Минске
Пожелания заказчика:
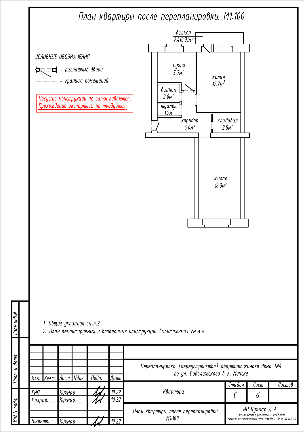
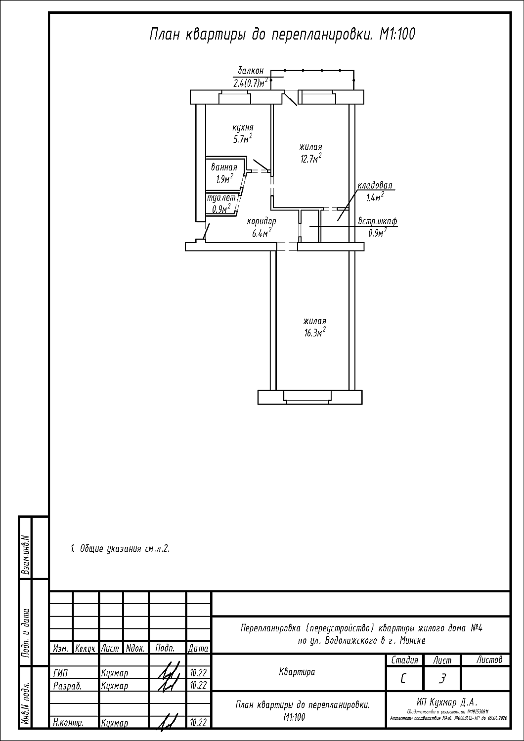
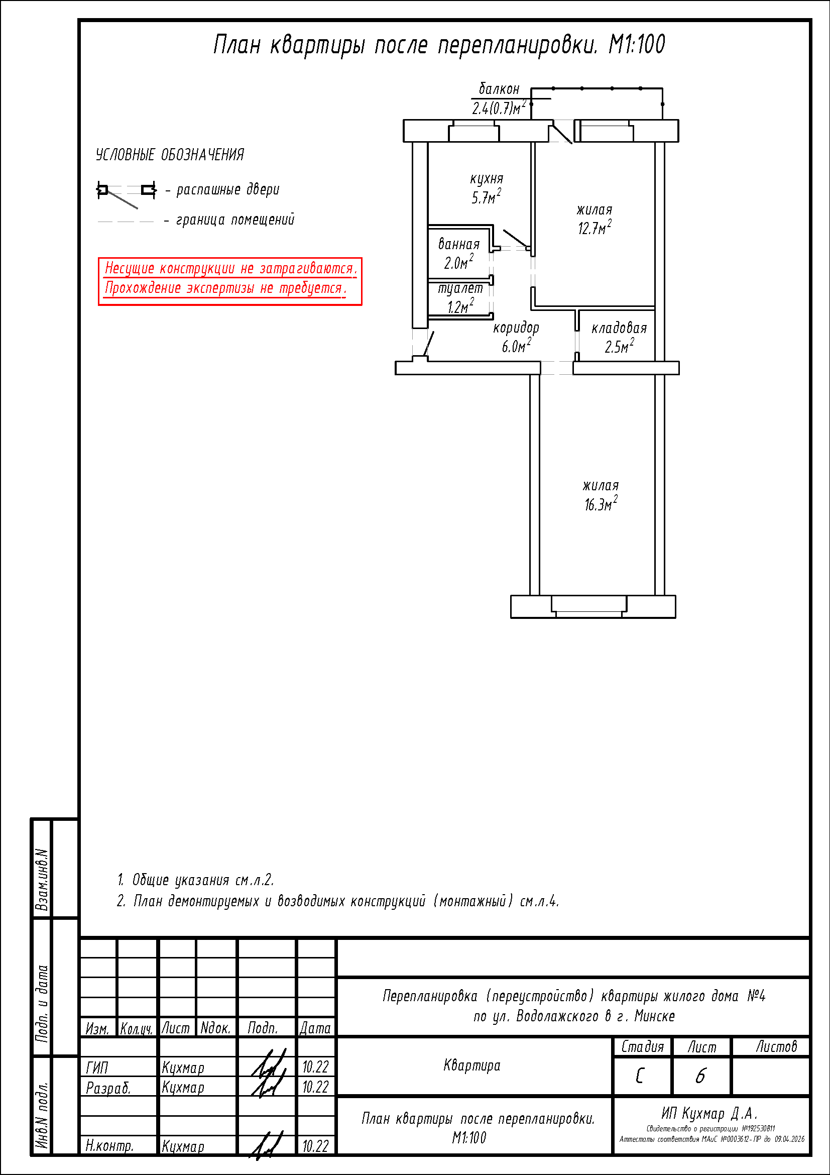
- Демонтаж перегородки с дверными проемами между ванной, туалетом и коридором с последующим устройством перегородок с дверными проемами на части площади коридора;
- Закладка дверного проема в перегородке между кладовой и жилой 12.7 м2;
- Демонтаж перегородки между встроенным шкафом и кладовой с целью устройства кладовой.
Нами были разработаны следующие разделы проектной документации для согласования в исполкоме:
- АС - архитектурно-строительные решения.
