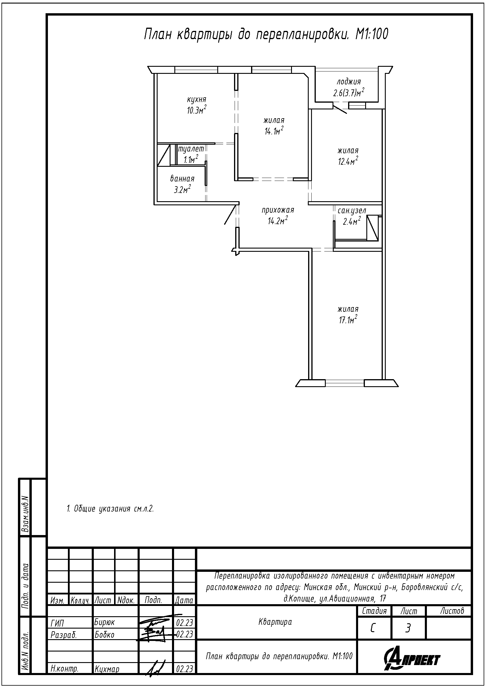
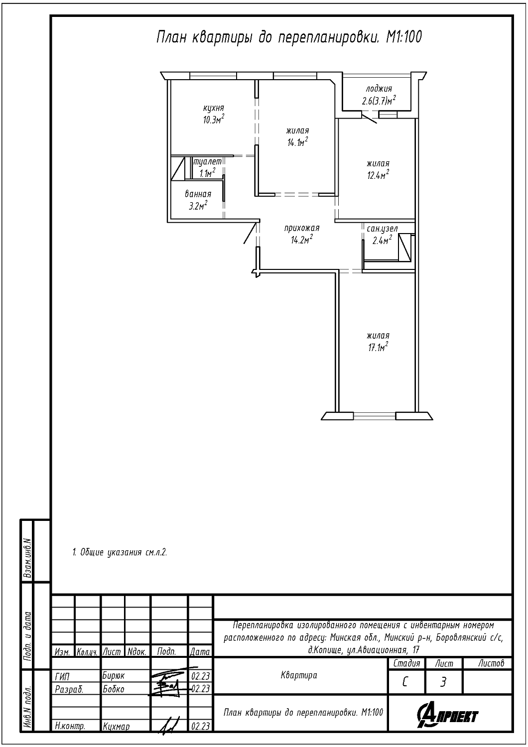
Перепланировка квартиры по ул. Авиационная, 17 в ЖК «Новая Боровая»
Пожелания заказчика:
- Объединение ванной и туалета в единый санузел;
- Закладка дверного проёма между кухней и прихожей;
- Устройство кладовой на площади санузла;
- Сужение дверного проёма между кухней и жилой.
Нами были разработаны следующие разделы проектной документации для согласования в исполкоме:
- АС - архитектурно-строительные решения;
