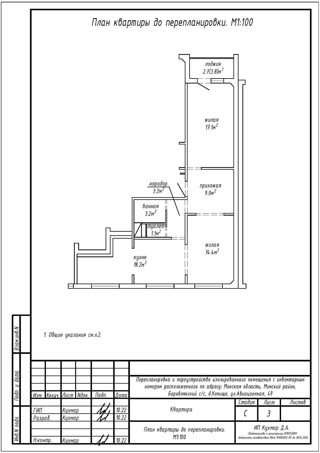
Перепланировка квартиры по ул. Авиационная, 49 в ЖК «Новая Боровая»
Пожелания заказчика:
- Объединение туалета и ванной в единый санузел;
- Увеличение площади санузла;
- Закладка дверного проёма между коридором и кухней;
- Сужение дверного проёма между кухней и жилыми.
Нами были разработаны следующие разделы проектной документации для согласования в исполкоме:
- АС - архитектурно-строительные решения.
