Перепланировка квартиры по ул. Братская, 11 в ЖК «Минск Мир»
Пожелания заказчика:
- Устройство перегородок с дверными проемами на площади жилой с кухонным оборудованием с целью устройства жилой с кухонным оборудованием, трех жилых и гардероба;
- Устройство зашивок из ГКЛ на части площади санузла и туалета;
- Увеличение дверного проема в перегородке между жилой с кухонным оборудованием и санузлом;
- Уменьшение дверного проема в перегородке между жилой с кухонным оборудованием и туалетом;
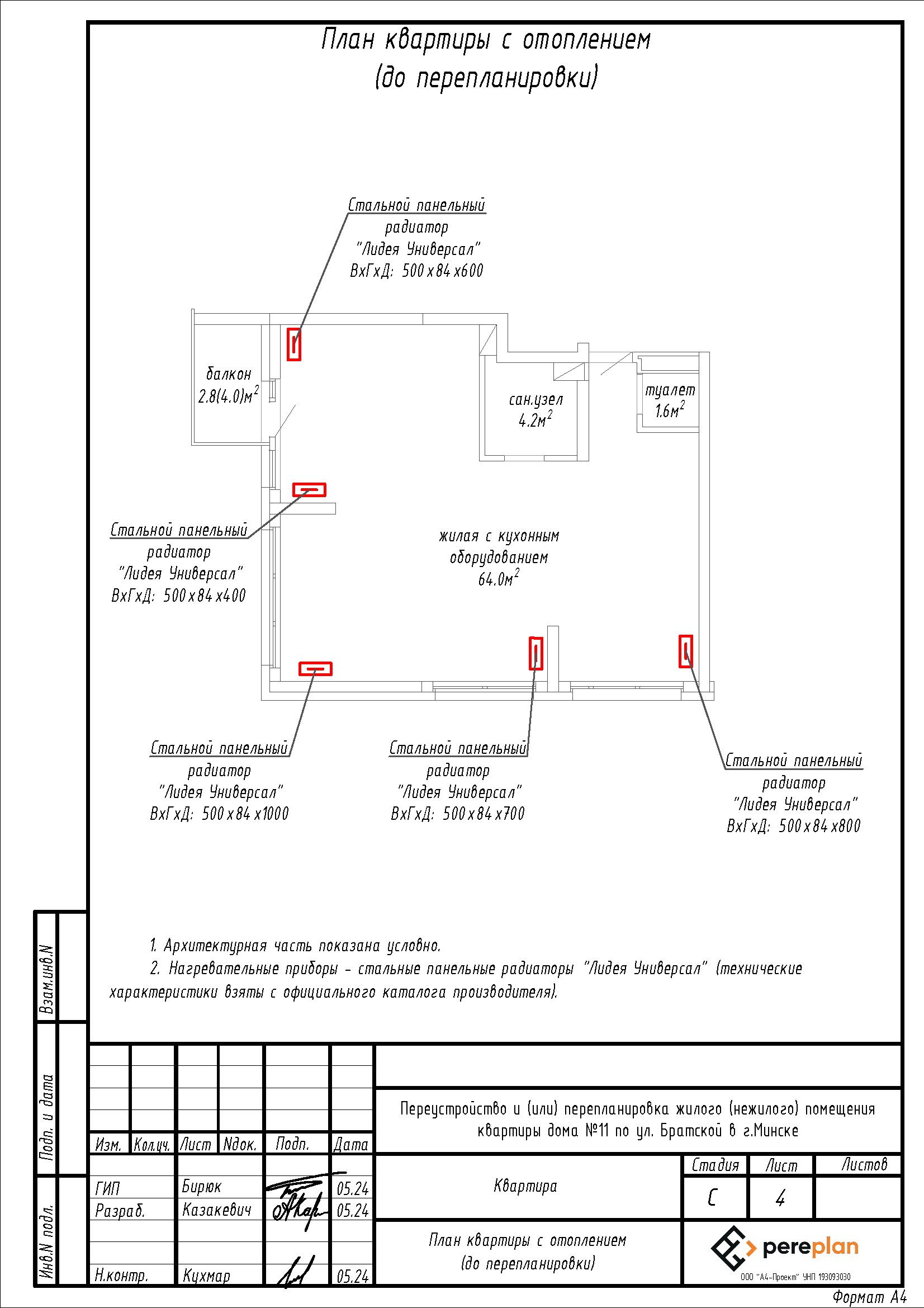
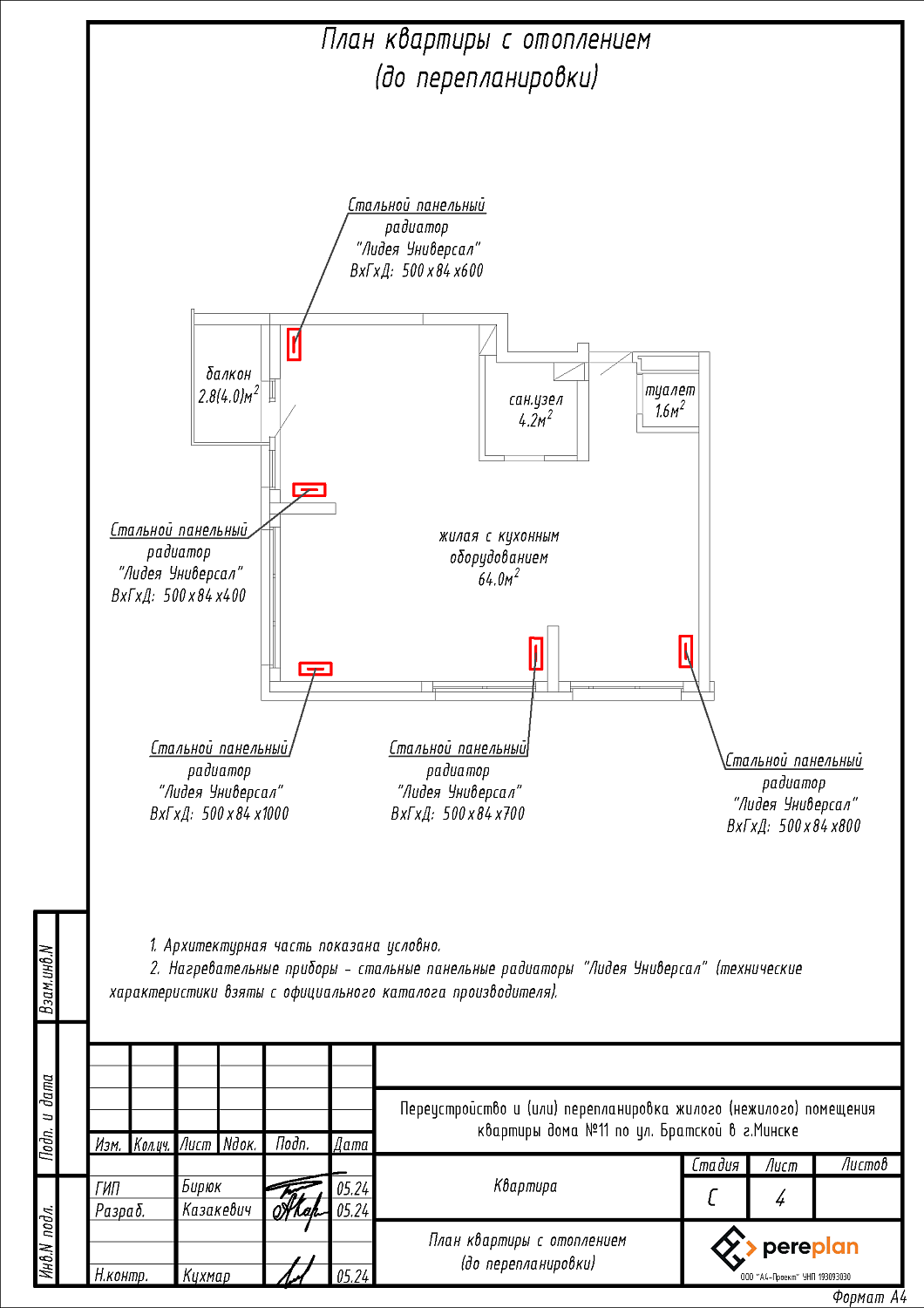
- Замена отопительного прибора.
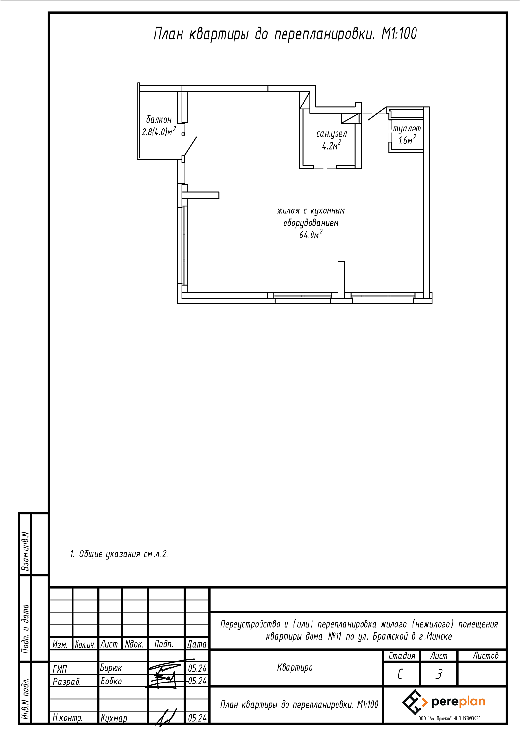
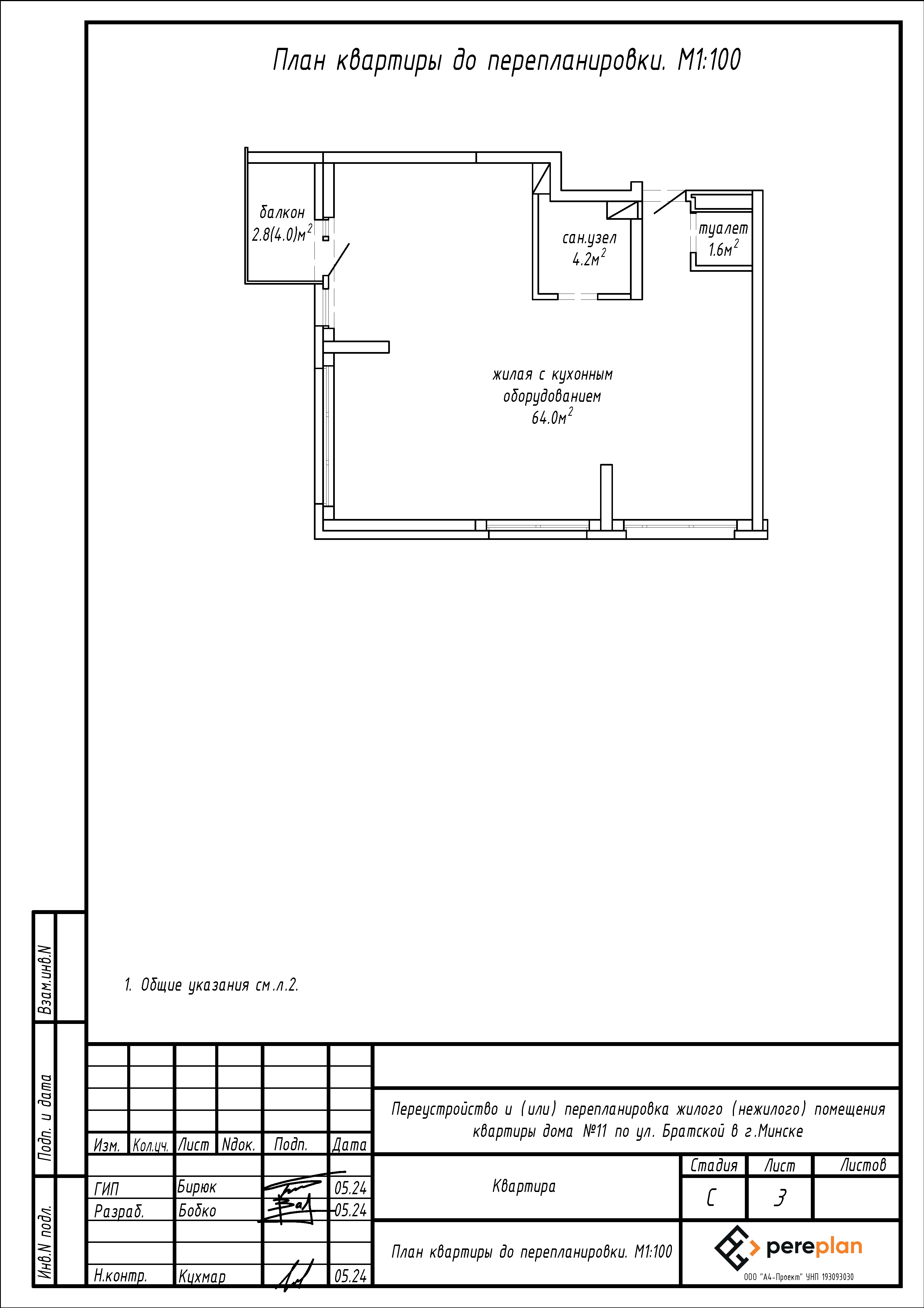
- АС - архитектурно-строительные решения;
- ОВ - отопление и вентиляция.
