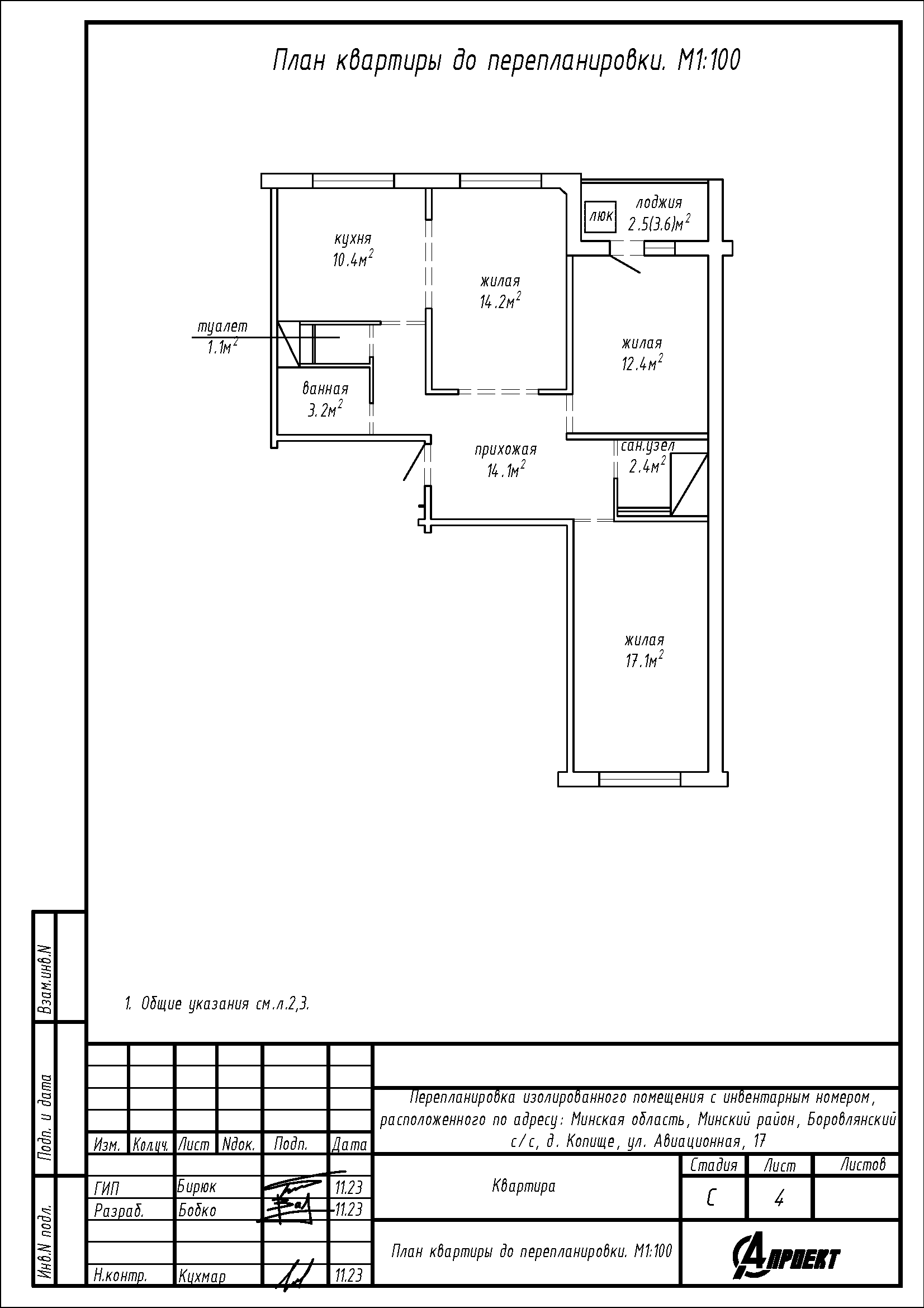
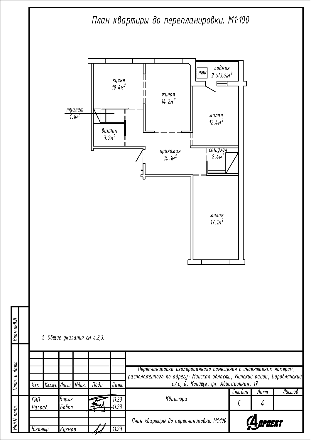
Перепланировка квартиры по ул. Авиационная, 17 в ЖК «Новая Боровая»
Пожелания заказчика:
- Изменение площади ванной и туалета;
- Сужение дверного проёма между кухней и жилой;
- Сужение дверного проёма между жилой и прихожей;
- Устройство гардеробной со стеклянными перегородками на части площади жилой 17.1 м2;
- Устройство перегородок на площади ванной.
Нами были разработаны следующие разделы проектной документации для согласования в исполкоме:
- АС - архитектурно-строительные решения.
