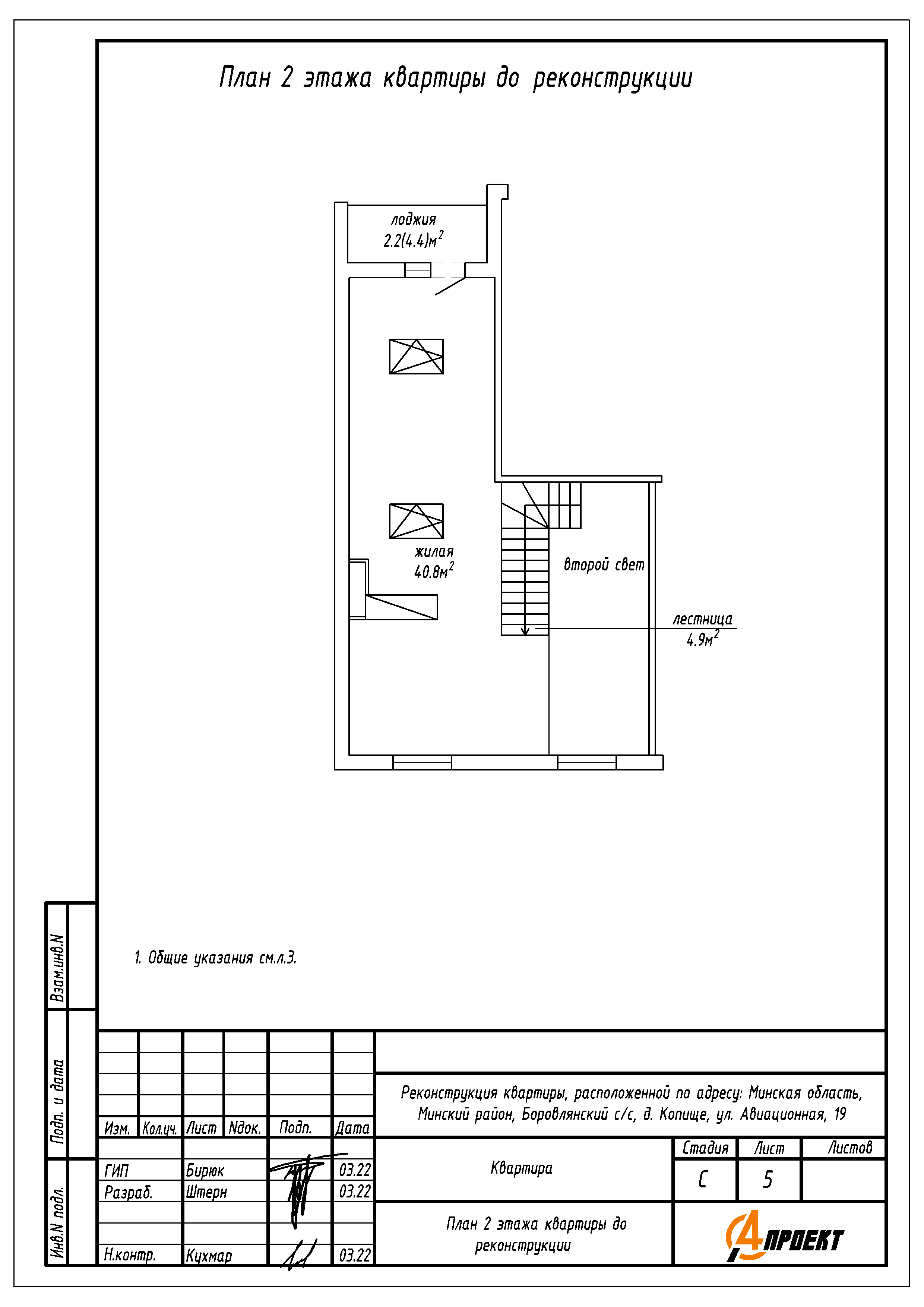
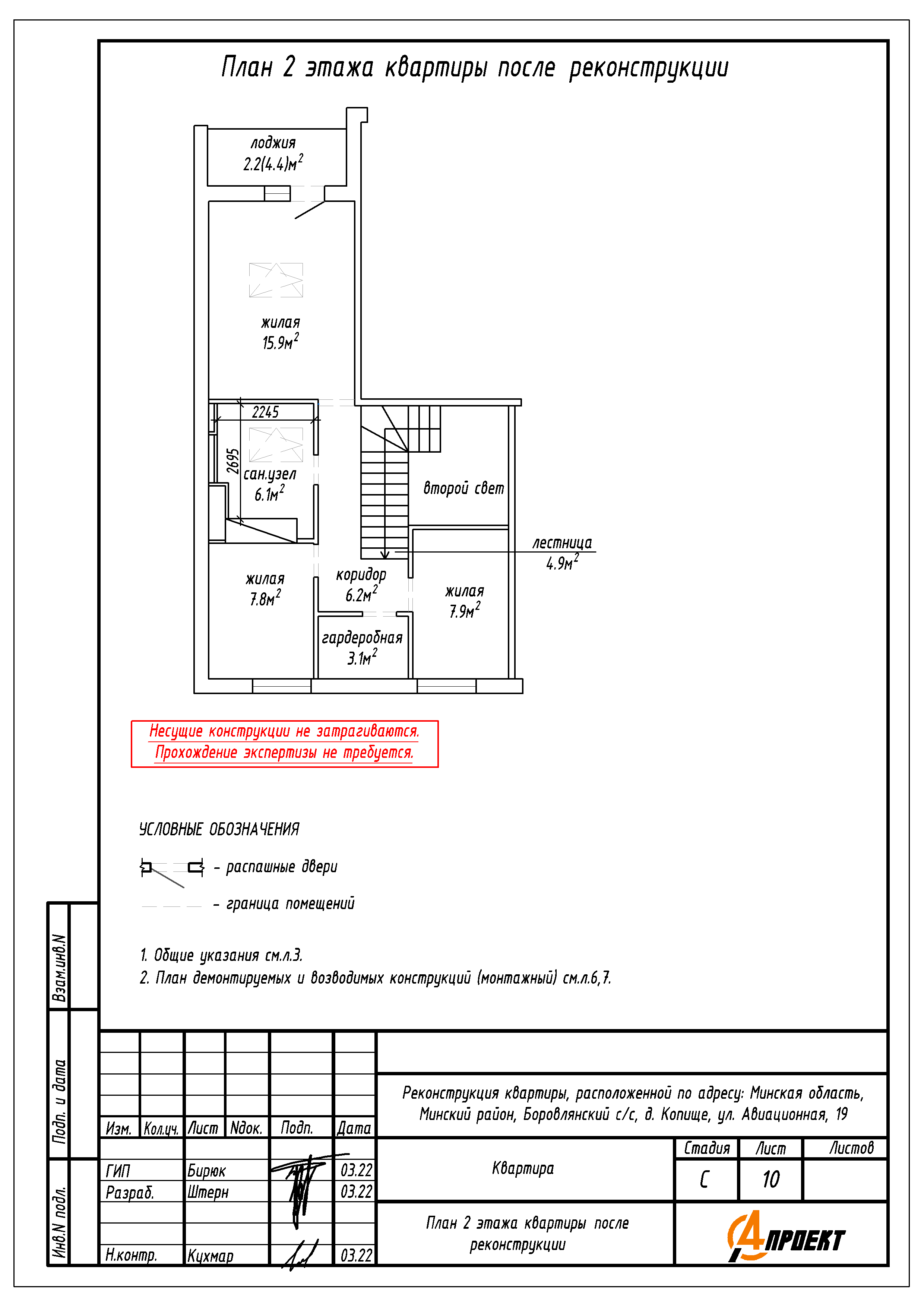
Реконструкция квартиры (устройство антресоли) по ул. Авиационная, 19 в ЖК «Новая Боровая»
Пожелания заказчика:
- Устройство в квартире жилой антресоли;
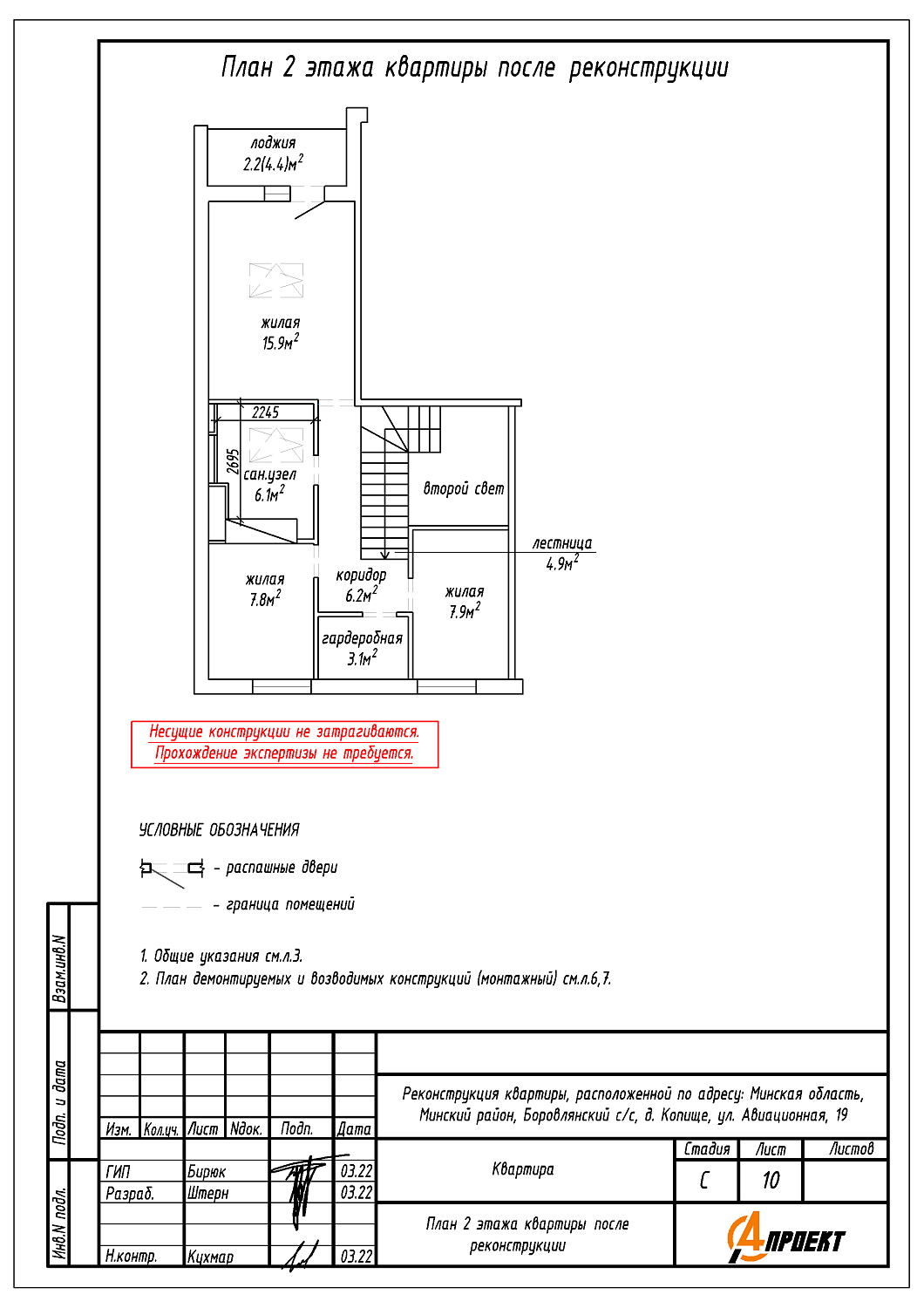
- Устройство перегородок на площади жилого, с последующим образованием жилой с кухонным оборудованием;
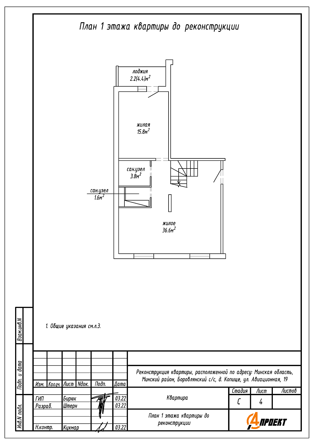
- Устройство туалета на площади существующего санузла;
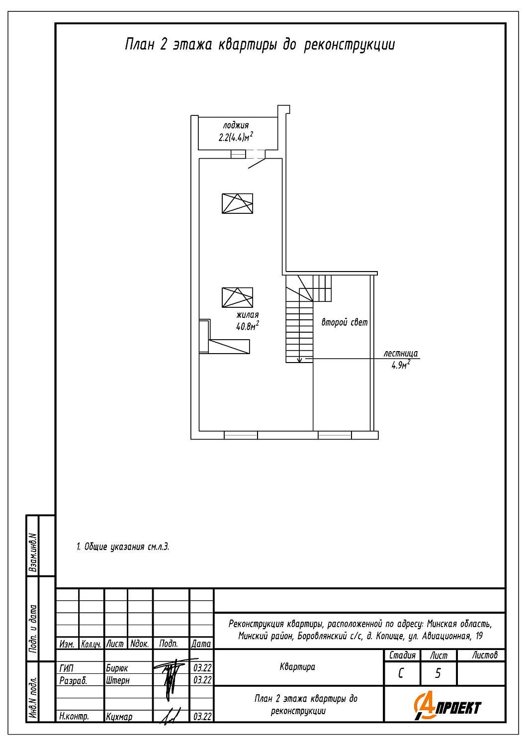
- Устройство двух жилых, коридора, гардеробной, санузла на площади антресольного этажа;
- Замена, перенос и переподключение подводок отопительных приборов из стены в существующей системе отопления квартиры.
Нами были разработаны следующие разделы проектной документации для согласования в исполкоме:
- АС - архитектурно-строительные решения;
- ОВ - отопление и вентиляция.
Комплекс услуг, который мы выполнили:
- Разработка проекта перепланировки.
- Технический надзор.
- Устройство антресоли (аттесованный подряд).
- Аттестованный подряд по батареям и гидроизоляции.
