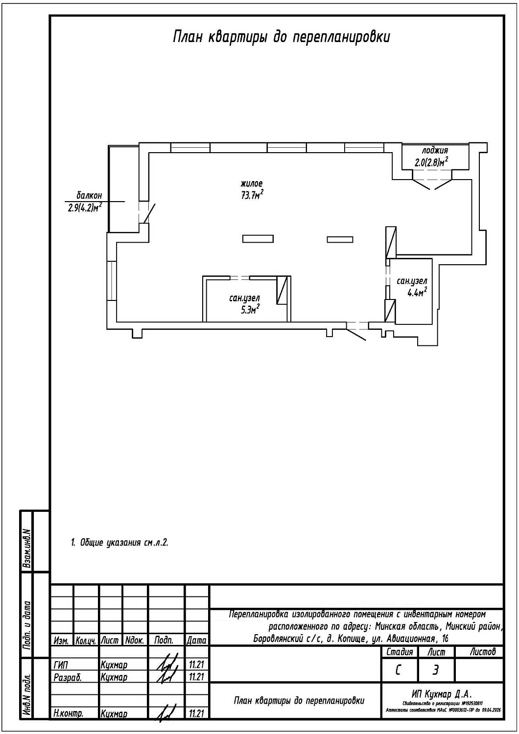
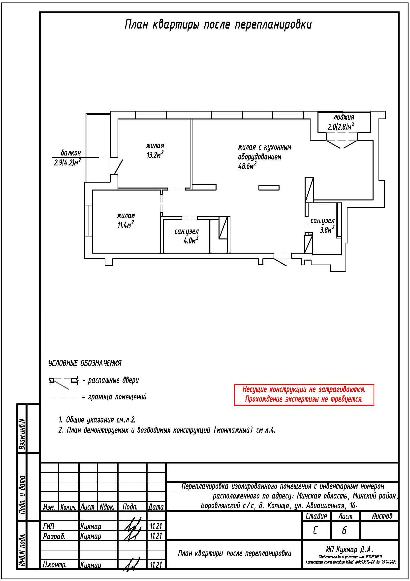
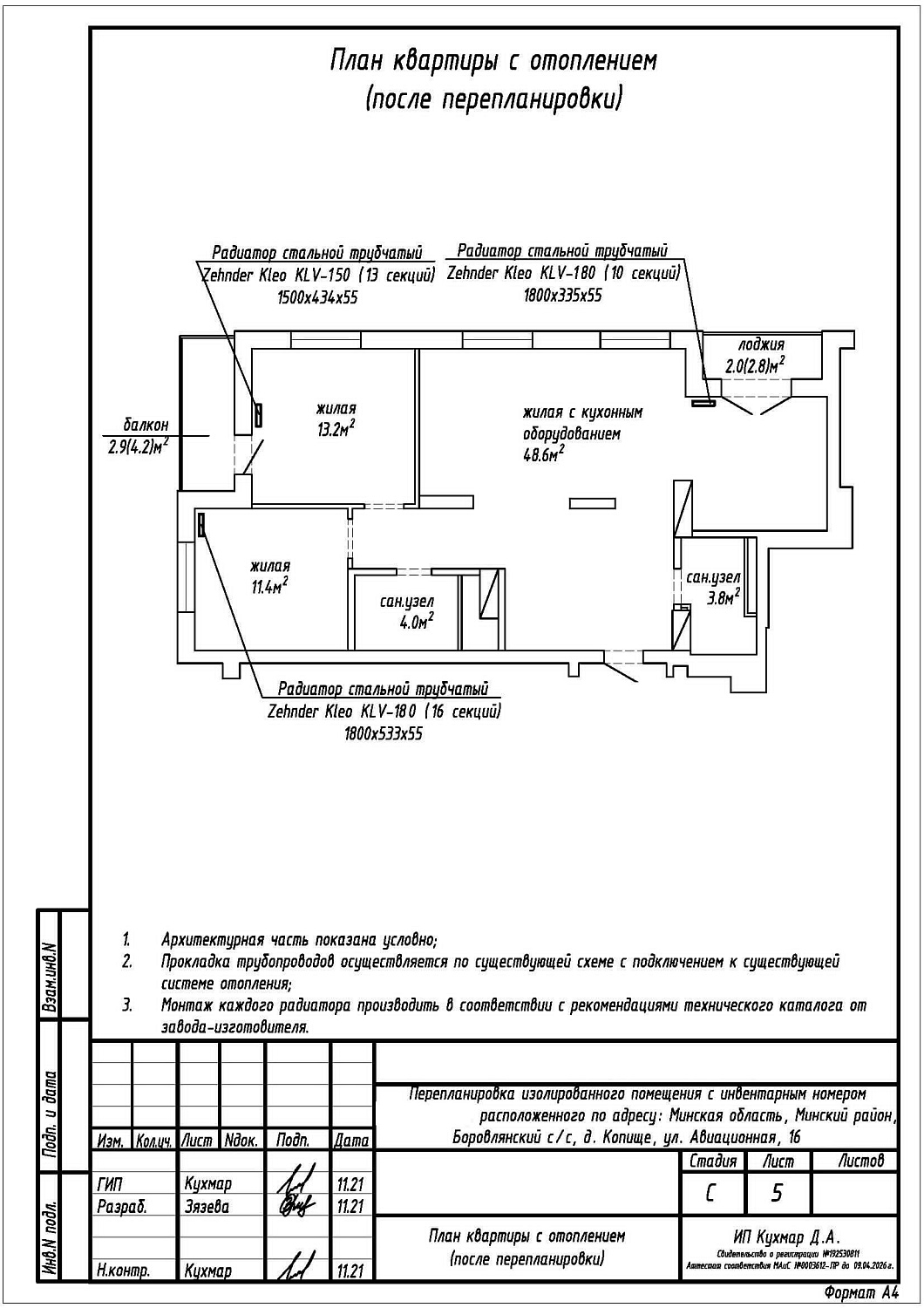
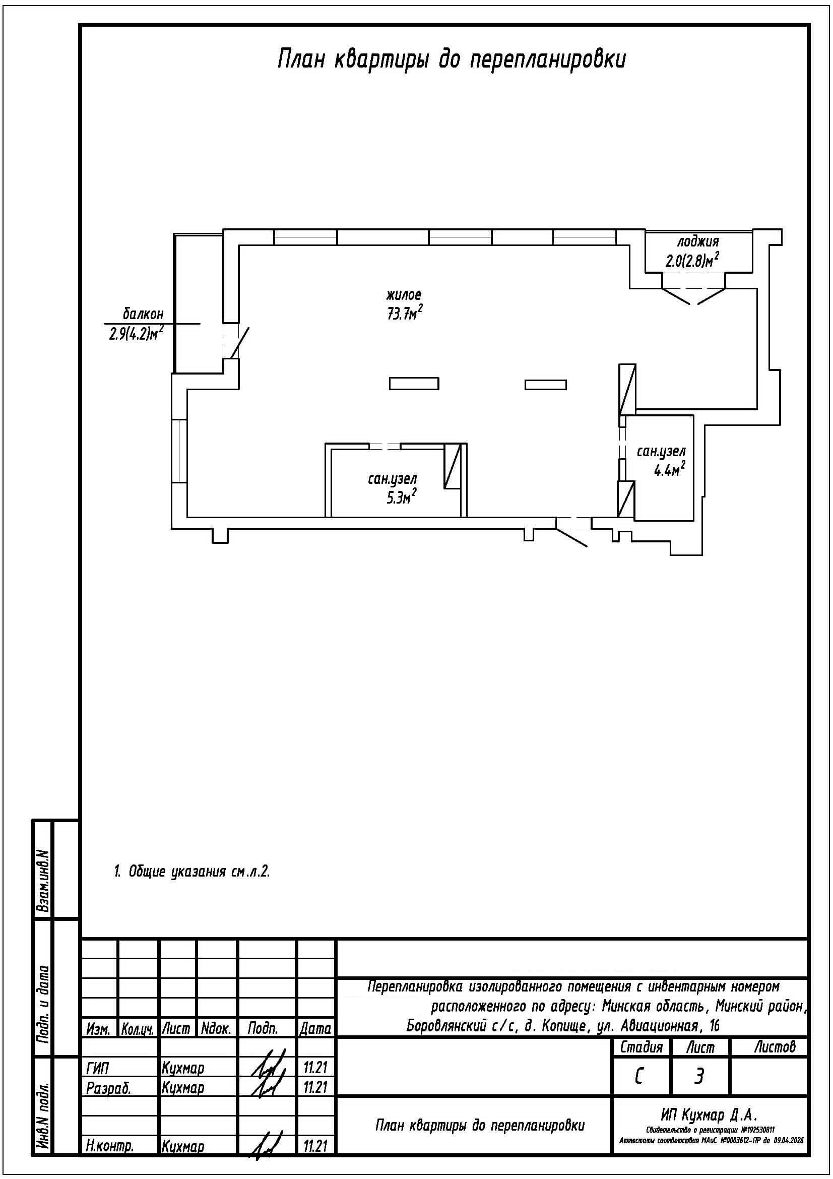
Перепланировка квартиры по ул. Авиационная, 16 в ЖК «Новая Боровая»
Пожелания заказчика:
- Разделение жилого помещения на жилую с кухонным оборудованием и две жилые;
- Устройство зашивок из ГКЛ в санузлах;
- Смещение дверного проёма между санузлом и жилой;
- Перенос и замена отопительных приборов.
Нами были разработаны следующие разделы проектной документации для согласования в исполкоме:
- АС - архитектурно-строительные решения;
- ОВ - отопление и вентиляция.
