Проектом предусматриваются следующие работы:
- Устройство жилой с кухонным оборудованием на площади жилого;
- Смещение дверного проёма между жилыми;
- Устройство гардеробной на площади жилой комнаты;
- Устройство гардеробной на площади прихожей;
- Смещение дверных проёмов в санузлах.
Нами были разработаны следующие разделы проектной документации для согласования в исполкоме:
- АС- архитектурно-строительные решения
Состав рабочих чертежей основного комплекта раздела АС:
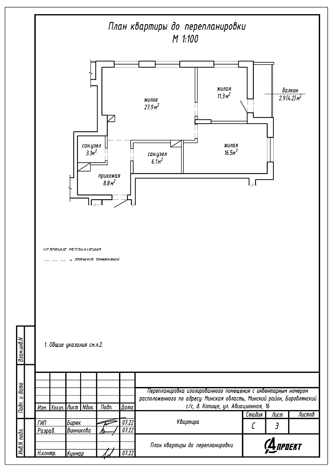
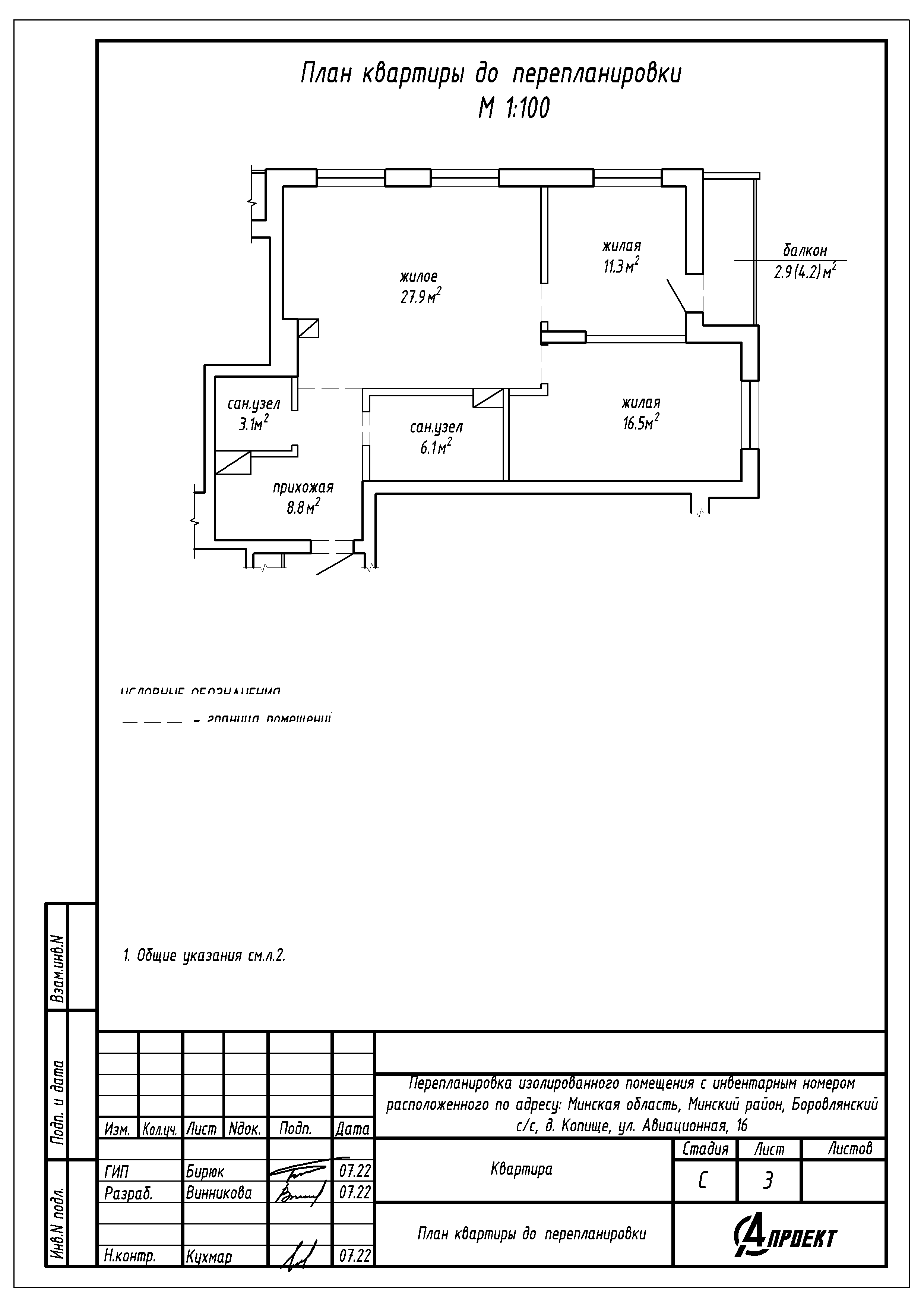
- План квартиры до перепланировки;
- План демонтируемых и возводимых конструкций (монтажный);
- План квартиры после перепланировки;
- Перечень работ, проводимых при перепланировке жилого помещения;
- Указания по устройству полов.
