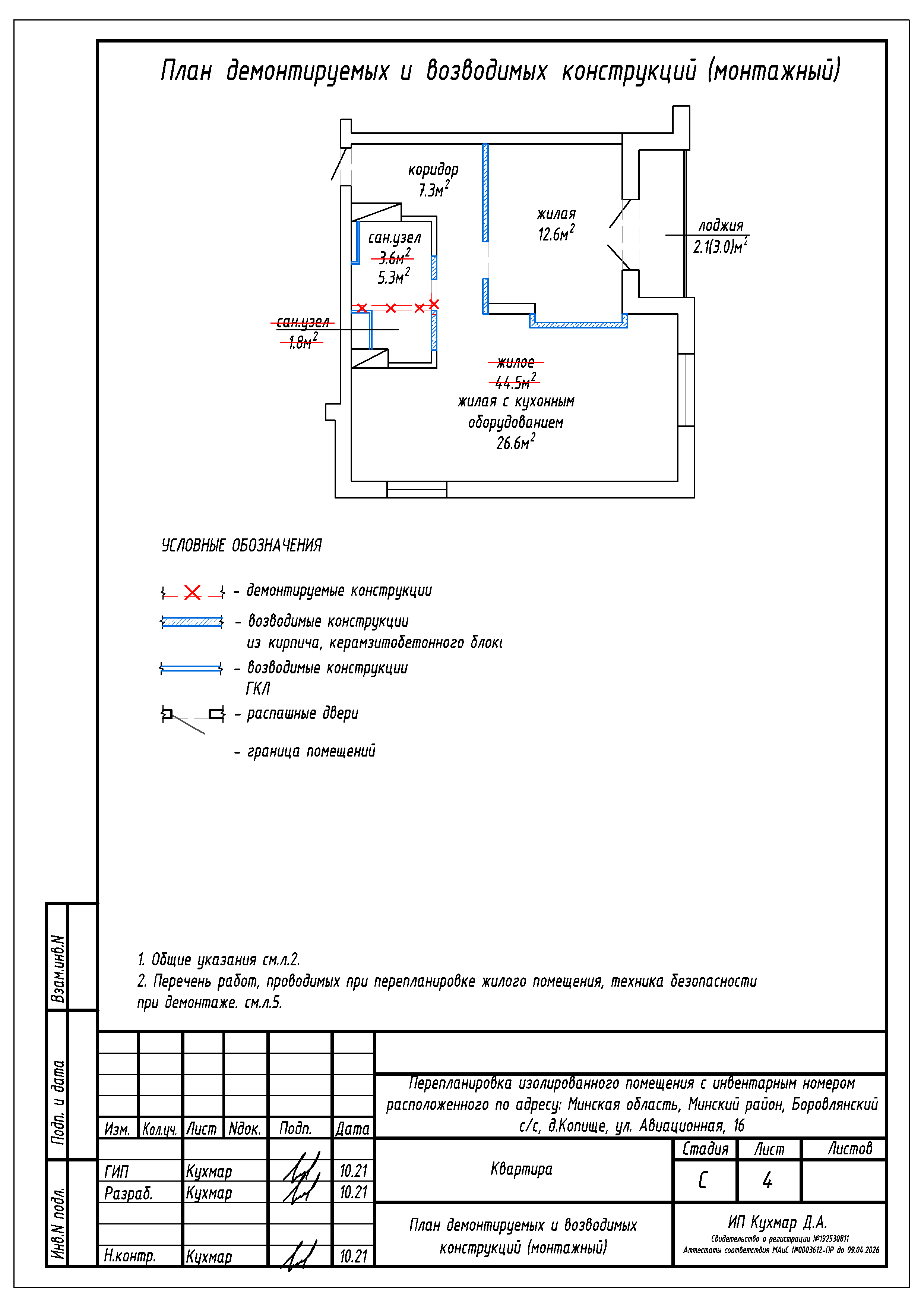
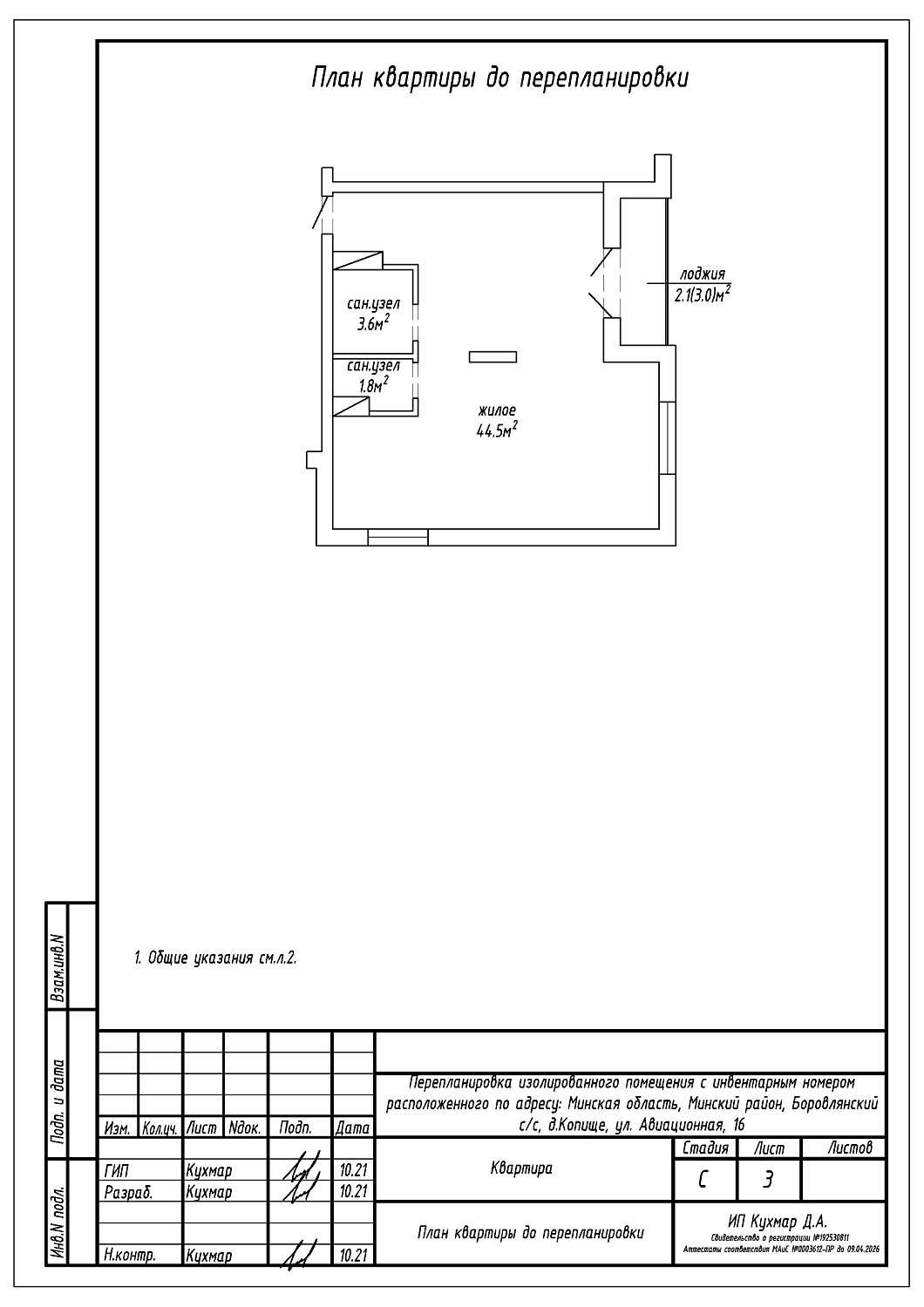
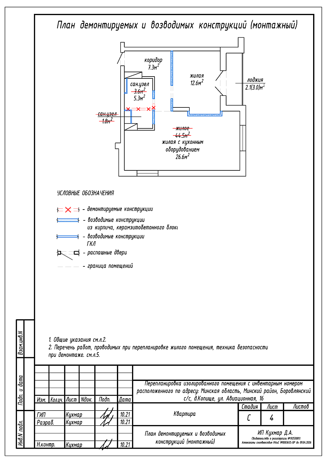
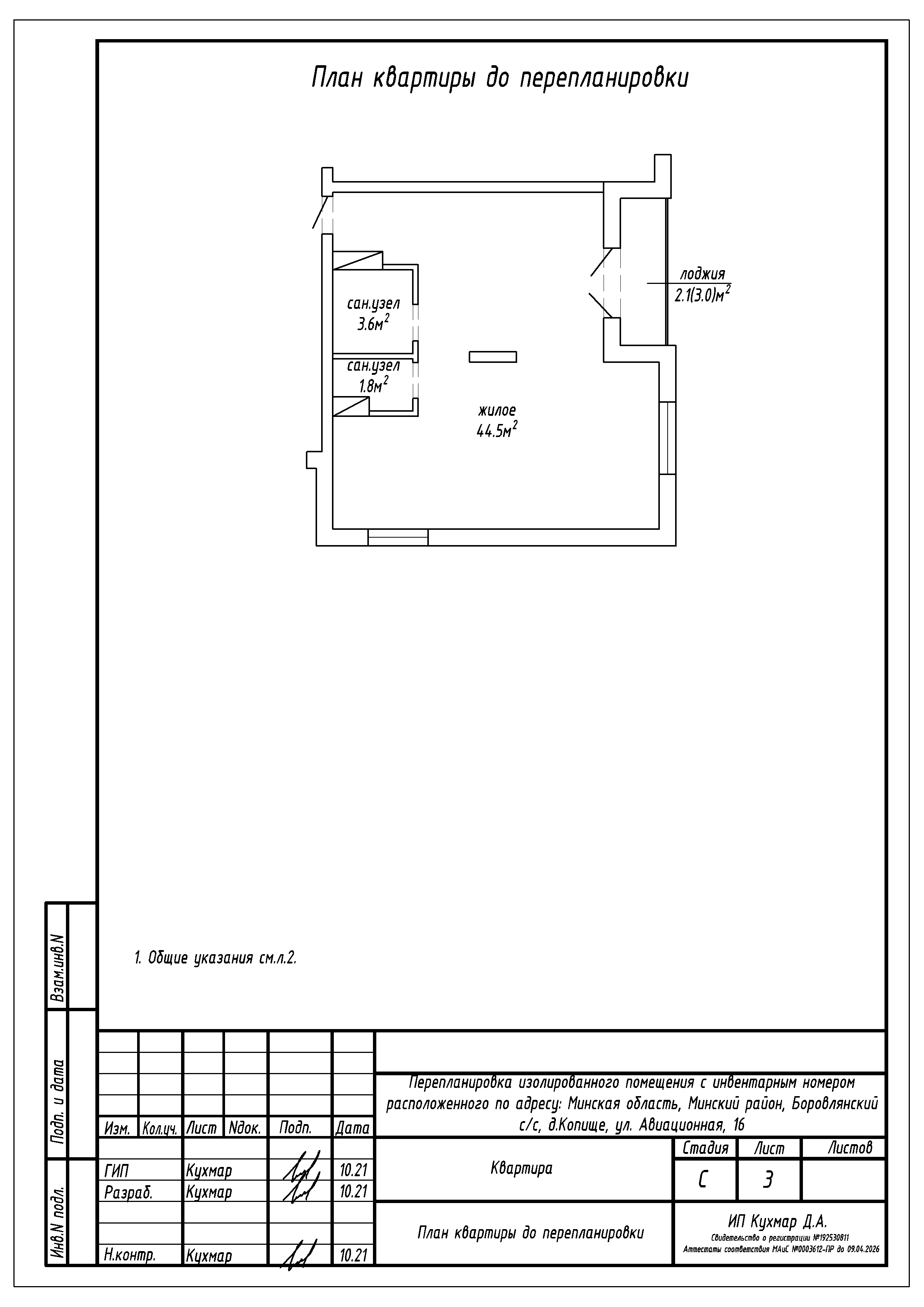
Реконструкция квартиры по ул. Авиационная, 16 в ЖК «Новая Боровая»
Пожелания заказчика:
- Разделение общего жилого на жилую с кухонным оборудованием, жилую и коридор;
- Объединение двух санузлов в единый санузел.
Нами были разработаны следующие разделы проектной документации для согласования в исполкоме:
- АС - архитектурно-строительные решения.
