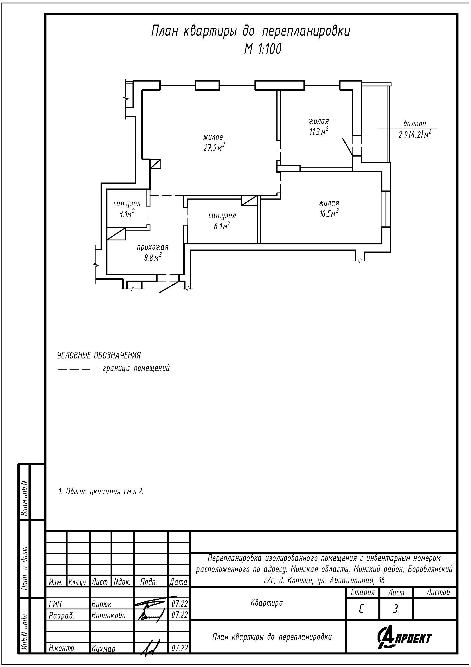
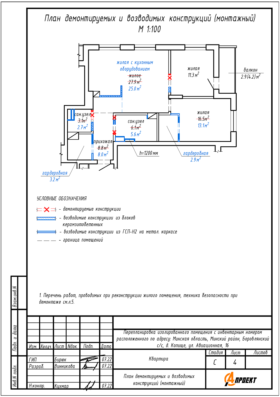
Перепланировка квартиры по ул. Авиационная, 16 в ЖК «Новая Боровая»
Пожелания заказчика:
- Устройство жилой с кухонным оборудованием на площади жилого;
- Смещение дверного проёма между жилыми;
- Устройство гардеробной на площади жилой комнаты;
- Устройство гардеробной на площади прихожей;
- Смещение дверных проёмов в санузлах;
Нами были разработаны следующие разделы проектной документации для согласования в исполкоме:
- АС - архитектурно-строительные решения.
