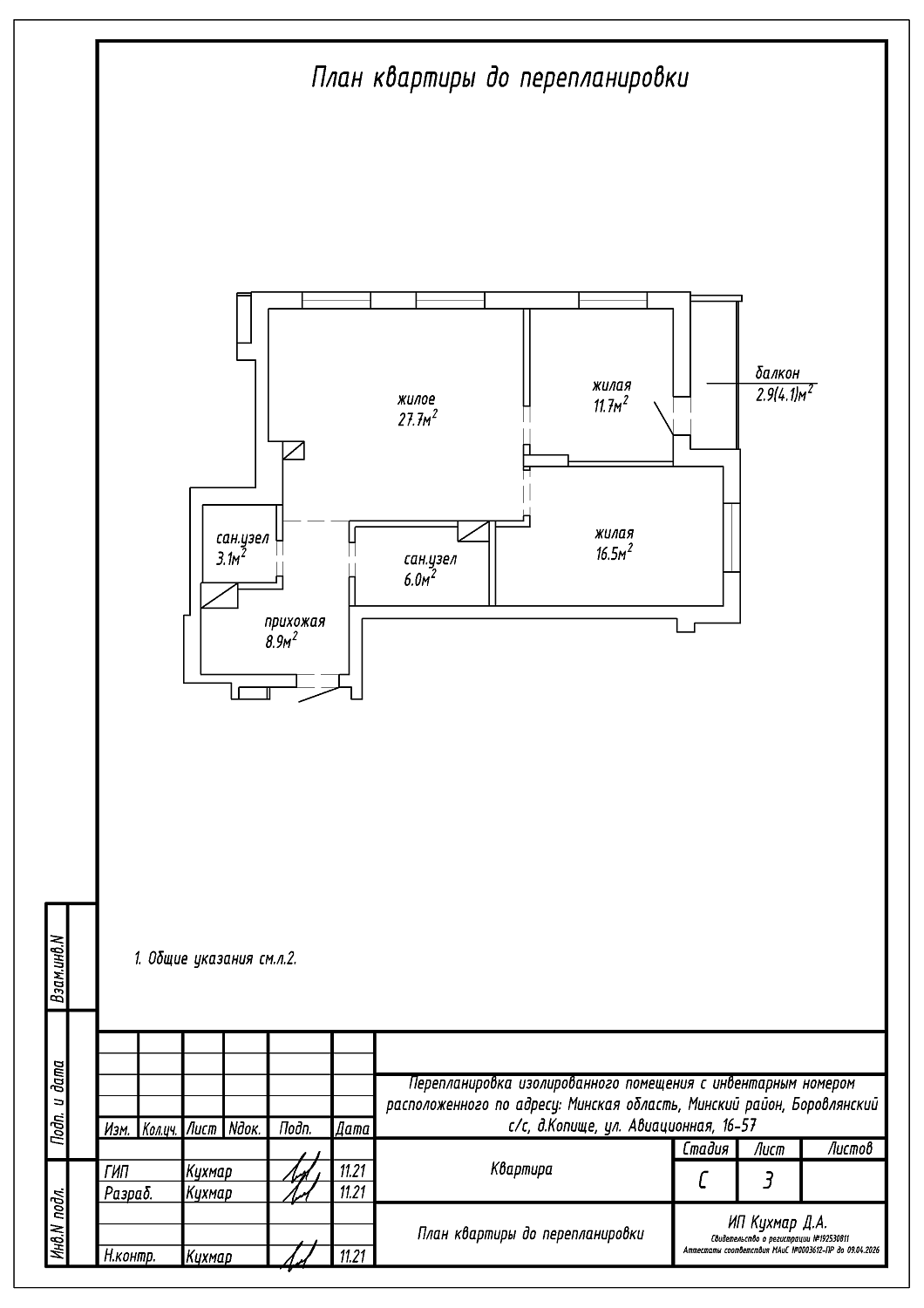
Перепланировка квартиры по ул. Авиационная, 16 в ЖК «Новая Боровая»
Пожелания заказчика:
- Устройство жилой с кухонным оборудованием на площади жилого;
- Смещение дверного проёма между жилой с кухонным оборудованием и жилой;
- Устройство кладовой на части прихожей;
- Устройство туалета на площади санузла; устройство зашивок в туалете;
- Закладка дверного проёма между санузлом и прихожей, с целью устройства нового проёма в санузле; устройство зашивок в санузле.
Нами были разработаны следующие разделы проектной документации для согласования в исполкоме:
- АС - архитектурно-строительные решения.
