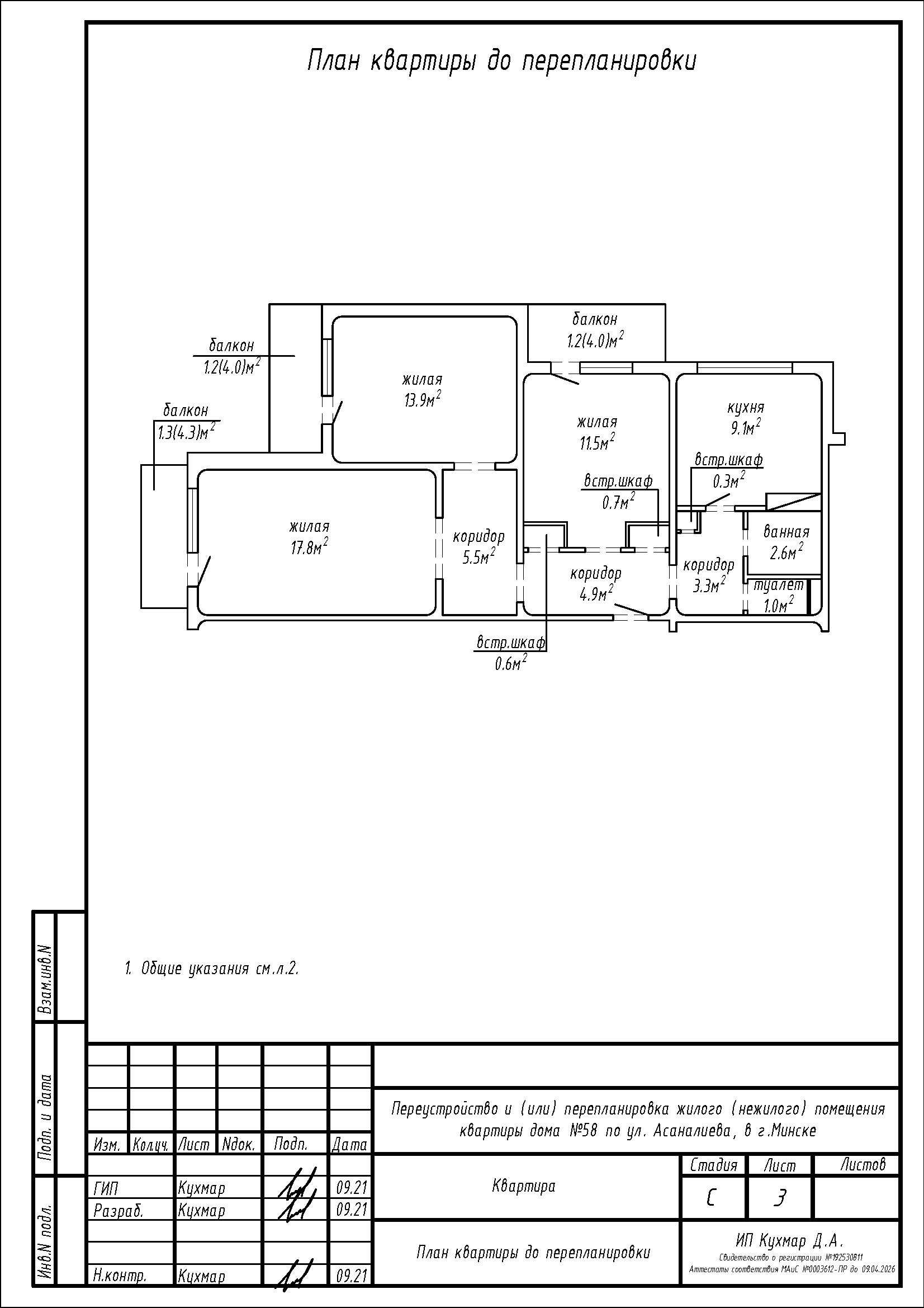
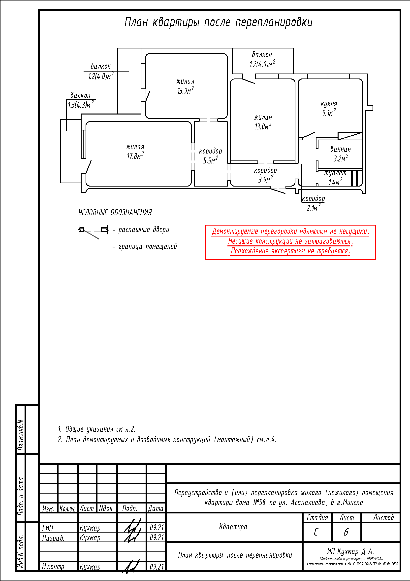
Перепланировка квартиры по Асаналиева 58 в г. Минске
Пожелания заказчика:
- Увеличение площади туалета и ванной за счет коридора;
- Демонтаж встроенных шкафов;
- Увеличение площади жилой за счет коридора;
- Сдвиг дверного проема между коридором и кухней.
Нами были разработаны следующие разделы проектной документации для согласования в исполкоме:
- АС - архитектурно-строительные решения.
