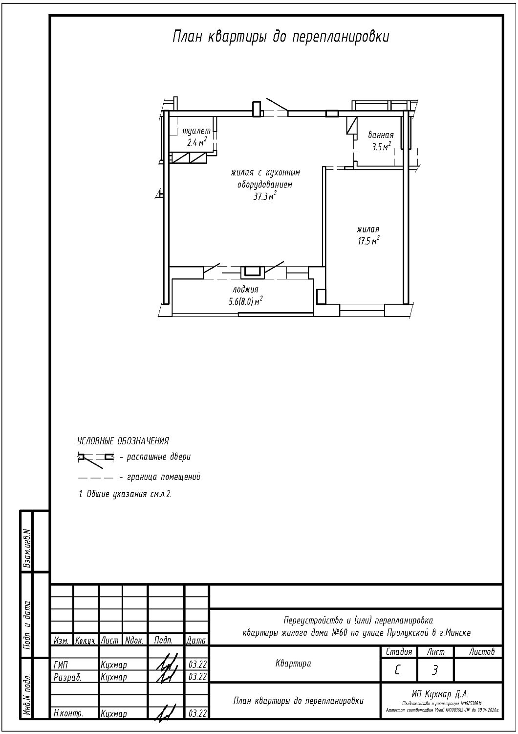
Перепланировка квартиры по ул. Прилукская, 60 в г.Минске
Пожелания заказчика:
- Устройство новых помещений коридора и гардеробной;
- Устройство проёма между жилой с кухонным оборудованием и жилой;
- Увеличение площади туалета за счёт площади коридора;
- Устройство дверного проёма между ванной и жилой;
- Закладка дверного проёма между ванной и гардеробной;
- Увеличение ванной за счёт площади коридора.
Нами были разработаны следующие разделы проектной документации для согласования в исполкоме:
- АС - архитектурно-строительные решения.
