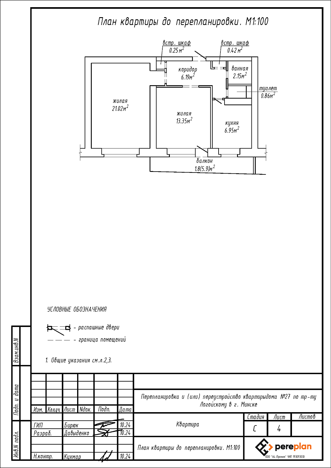
Перепланировка квартиры по тр-ту Логойскому, 27 в г. Минске
Пожелания заказчика:
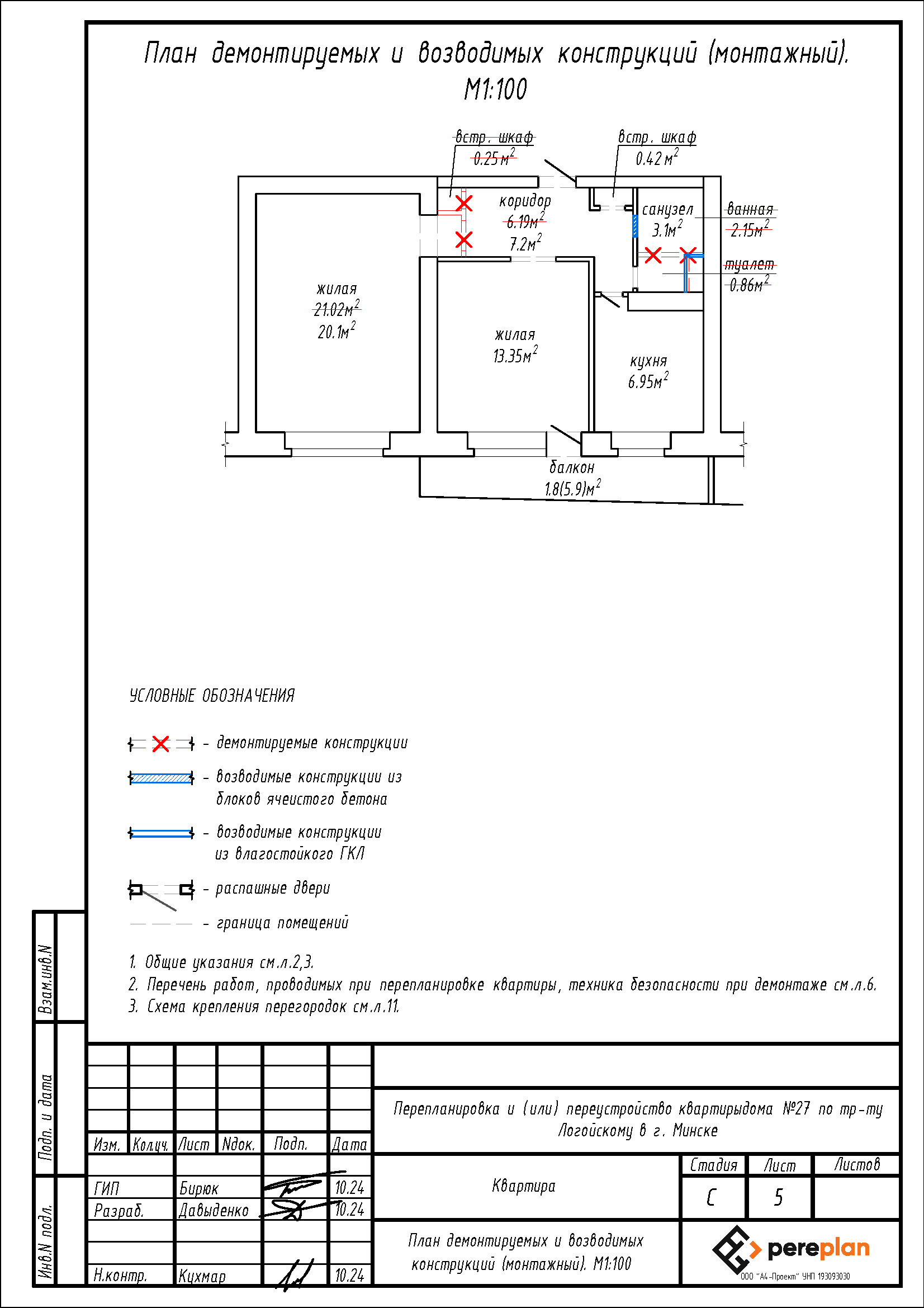
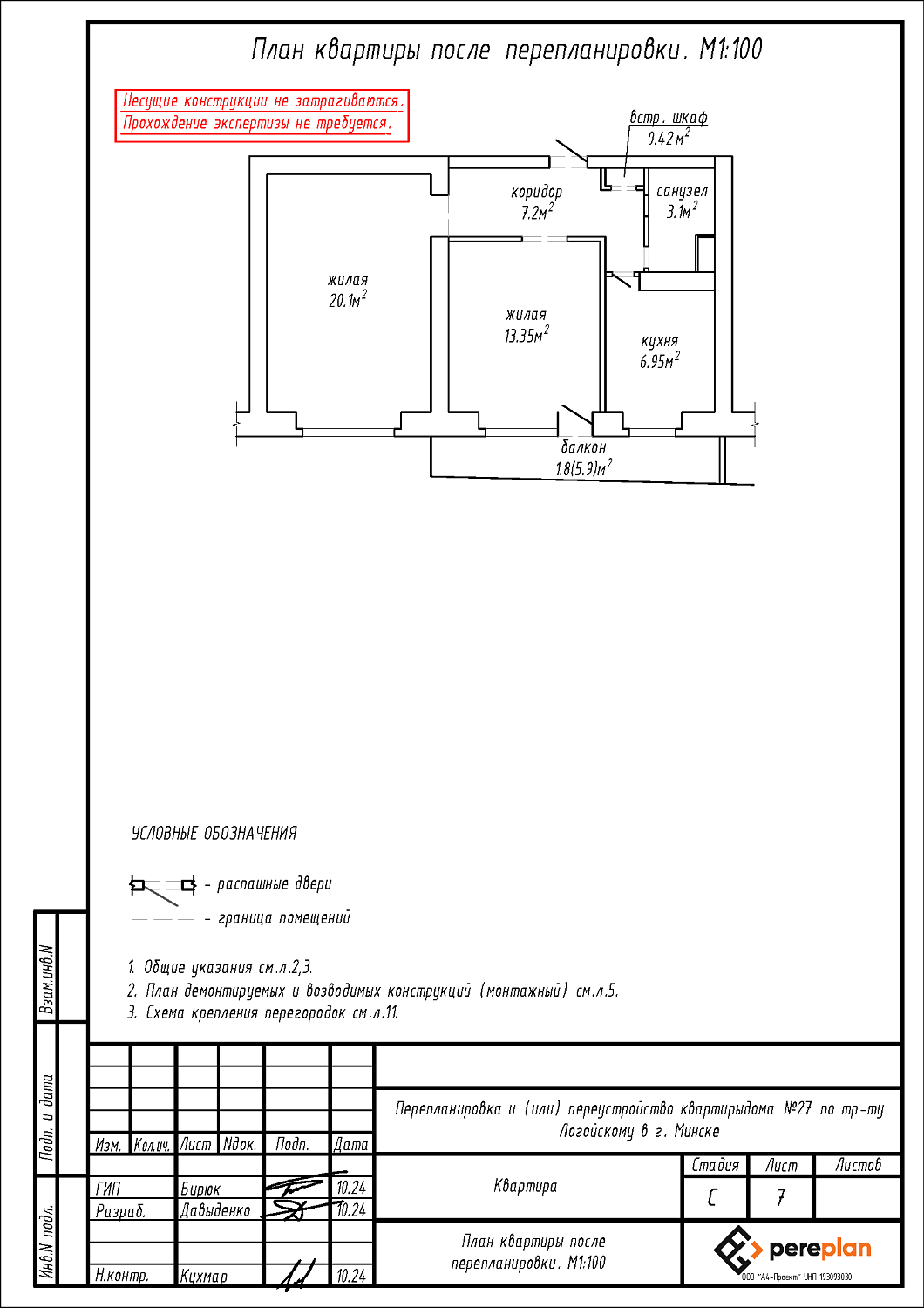
- Демонтаж перегородок с дверными проемами между коридором, встроенным шкафом и жилой, с целью демонтажа встроенного шкафа и увеличения коридора за счет площади жилой;
- Объединение ванной и туалета в единый санузел;
- Устройство зашивки из ГКЛ в санузле.
Нами были разработаны следующие разделы проектной документации для согласования в исполкоме:
- АС - архитектурно-строительные решения.
