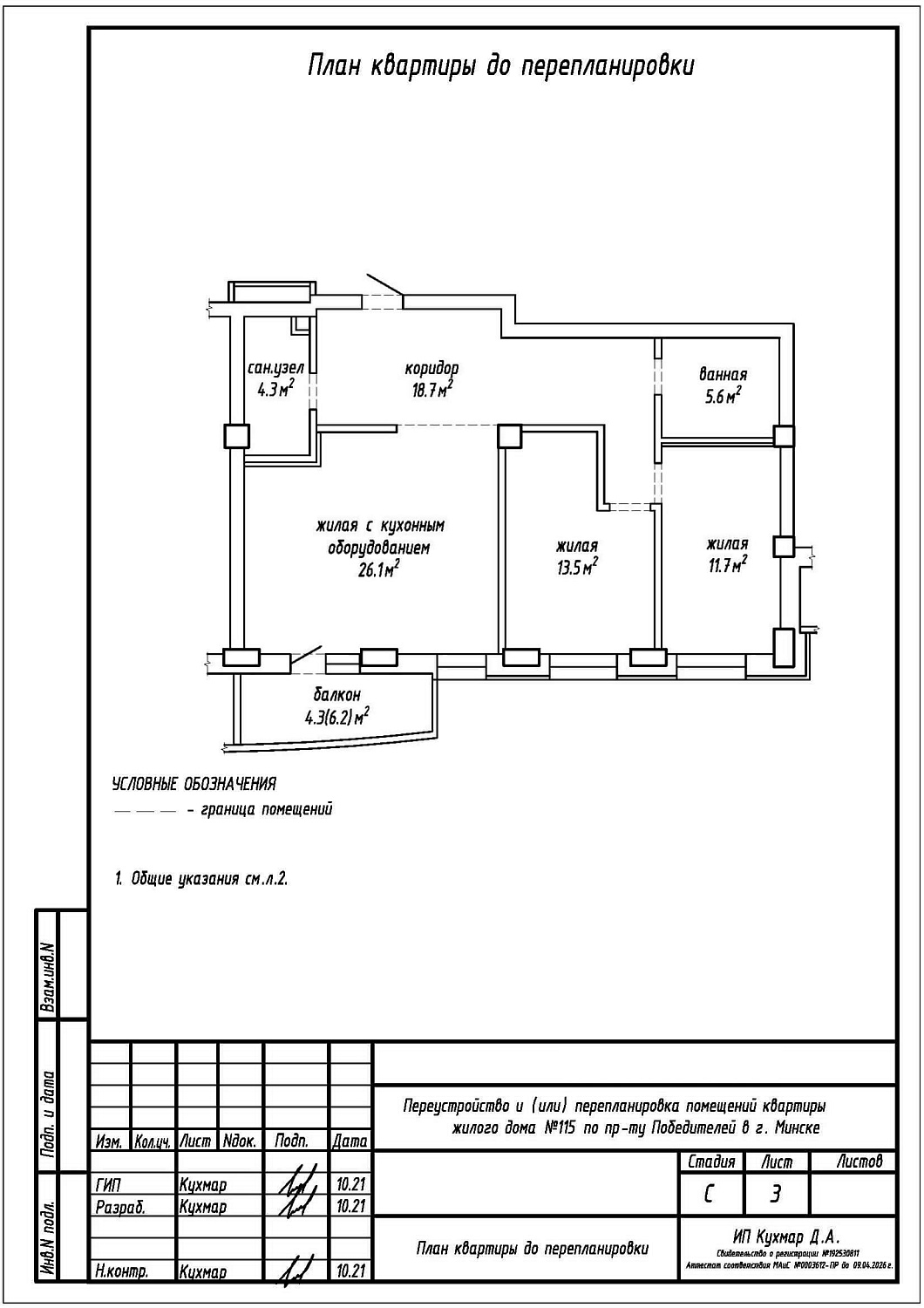
Перепланировка квартиры по пр-ту Победителей, 115 в ЖК «Лазурит»
Пожелания заказчика:
- Демонтаж перегородок с дверными проемами между жилой с кухонным оборудованием 26.1 м2, жилой 13.5 м2, жилой 11.7 м2 и коридором 18.7 м2 с последующим устройством новых перегородок с дверными проемами;
- Демонтаж части перегородки между ванной 5.6 м2, коридором 18.7 м2 и жилой 11.7 м2;
- Демонтаж части перегородки между сан .узлом 4.3 м2 и жилой с кухонным оборудованием 26.1 м2;
- Устройство перегородок, зашивок коммуникаций и инсталляций на площади ванной 5.6 м2 и сан. узла 4.З м2;
- Переоборудование ванной 5.6 м2 в совмещенный сан. узел.
Нами были разработаны следующие разделы проектной документации для согласования в исполкоме:
- АС - архитектурно-строительные решения.
