Размер шрифта
Цвет фона и шрифта
Изображения
Озвучивание текста
Обычная версия сайта
Перепланировка квартир
Полный комплекс услуг по перепланировке квартир в Минске
+375 (44) 535-33-00
+375 (44) 535-33-00
+375 (44) 515-33-00
Заказать звонок
E-mail
inproekt100@gmail.com
Адрес
г. Минск, ул. Чапаева 3, офис 101
Режим работы
Пн. – Пт.: с 9:00 до 18:00
Подать заявку
Услуги
  • Квартиры
    • Дизайн-проект
    • Согласование перепланировки
    • Проект перепланировки
    • Технический надзор за выполнением работ
    • Строительно-монтажные работы
    • Согласование самовольной перепланировки
    • Техническое заключение
    • Обмеры
  • Нежилые помещения
    • Перепланировка, модернизация, реконструкция помещений
    • Обмеры нежилых помещений
  • Мастер-классы
    • Мастер-класс по перепланировке для дизайнеров
    • Мастер-класс по перепланировке для дизайнеров
Акции
Проекты
  • Санузлы
  • Батареи
  • Антресоль
  • Газ на электро
  • Дизайн
  • Кухня в жилую
  • Нежилые
  • Объединение / разделение квартир
  • Проём в несущей
Отзывы
Статьи
Мастер-класс
О нас
  • Лицензии
  • Сотрудники
  • Отзывы
Контакты
г. Минск, ул. Чапаева 3, офис 101
...
+375 (44) 535-33-00
+375 (44) 535-33-00
+375 (44) 515-33-00
Заказать звонок
E-mail
inproekt100@gmail.com
Адрес
г. Минск, ул. Чапаева 3, офис 101
Режим работы
Пн. – Пт.: с 9:00 до 18:00
Заказать звонок
Перепланировка квартир
Услуги
  • Квартиры
    Квартиры
    • Дизайн-проект
    • Согласование перепланировки
    • Проект перепланировки
    • Технический надзор за выполнением работ
    • Строительно-монтажные работы
    • Согласование самовольной перепланировки
    • Техническое заключение
    • Обмеры
  • Нежилые помещения
    Нежилые помещения
    • Перепланировка, модернизация, реконструкция помещений
    • Обмеры нежилых помещений
  • Мастер-классы
    Мастер-классы
    • Мастер-класс по перепланировке для дизайнеров
    • Мастер-класс по перепланировке для дизайнеров
Акции
Проекты
  • Санузлы
  • Батареи
  • Антресоль
  • Газ на электро
  • Дизайн
  • Кухня в жилую
  • Нежилые
  • Объединение / разделение квартир
  • Проём в несущей
Отзывы
Статьи
Мастер-класс
О нас
  • Лицензии
  • Сотрудники
  • Отзывы
Контакты
    Подать заявку
    Перепланировка квартир
    Услуги
    • Квартиры
      Квартиры
      • Дизайн-проект
      • Согласование перепланировки
      • Проект перепланировки
      • Технический надзор за выполнением работ
      • Строительно-монтажные работы
      • Согласование самовольной перепланировки
      • Техническое заключение
      • Обмеры
    • Нежилые помещения
      Нежилые помещения
      • Перепланировка, модернизация, реконструкция помещений
      • Обмеры нежилых помещений
    • Мастер-классы
      Мастер-классы
      • Мастер-класс по перепланировке для дизайнеров
      • Мастер-класс по перепланировке для дизайнеров
    Акции
    Проекты
    • Санузлы
    • Батареи
    • Антресоль
    • Газ на электро
    • Дизайн
    • Кухня в жилую
    • Нежилые
    • Объединение / разделение квартир
    • Проём в несущей
    Отзывы
    Статьи
    Мастер-класс
    О нас
    • Лицензии
    • Сотрудники
    • Отзывы
    Контакты
      +375 (44) 535-33-00
      +375 (44) 515-33-00
      Заказать звонок
      E-mail
      inproekt100@gmail.com
      Адрес
      г. Минск, ул. Чапаева 3, офис 101
      Режим работы
      Пн. – Пт.: с 9:00 до 18:00
      Подать заявку
      Перепланировка квартир
      Телефоны
      +375 (44) 535-33-00
      +375 (44) 515-33-00
      Заказать звонок
      Перепланировка квартир
      • Услуги
        • Услуги
        • Квартиры
          • Квартиры
          • Дизайн-проект
          • Согласование перепланировки
          • Проект перепланировки
          • Технический надзор за выполнением работ
          • Строительно-монтажные работы
          • Согласование самовольной перепланировки
          • Техническое заключение
          • Обмеры
        • Нежилые помещения
          • Нежилые помещения
          • Перепланировка, модернизация, реконструкция помещений
          • Обмеры нежилых помещений
        • Мастер-классы
          • Мастер-классы
          • Мастер-класс по перепланировке для дизайнеров
          • Мастер-класс по перепланировке для дизайнеров
      • Акции
      • Проекты
        • Проекты
        • Санузлы
        • Батареи
        • Антресоль
        • Газ на электро
        • Дизайн
        • Кухня в жилую
        • Нежилые
        • Объединение / разделение квартир
        • Проём в несущей
      • Отзывы
      • Статьи
      • Мастер-класс
      • О нас
        • О нас
        • Лицензии
        • Сотрудники
        • Отзывы
      • Контакты
      Подать заявку
      • +375 (44) 535-33-00
        • Телефоны
        • +375 (44) 535-33-00
        • +375 (44) 515-33-00
        • Заказать звонок
      • г. Минск, ул. Чапаева 3, офис 101
      • inproekt100@gmail.com
      • Пн. – Пт.: с 9:00 до 18:00
      Санузлы

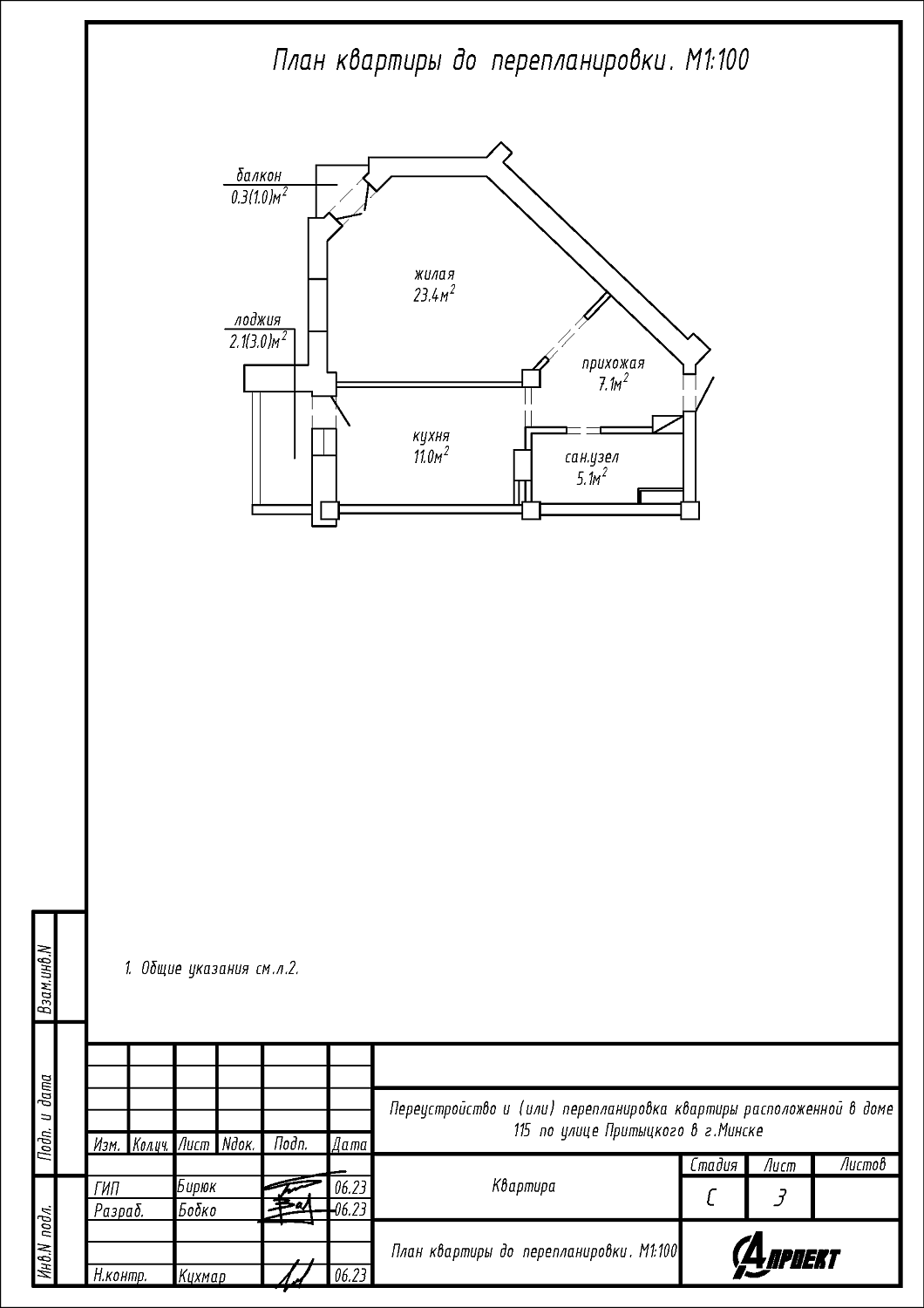
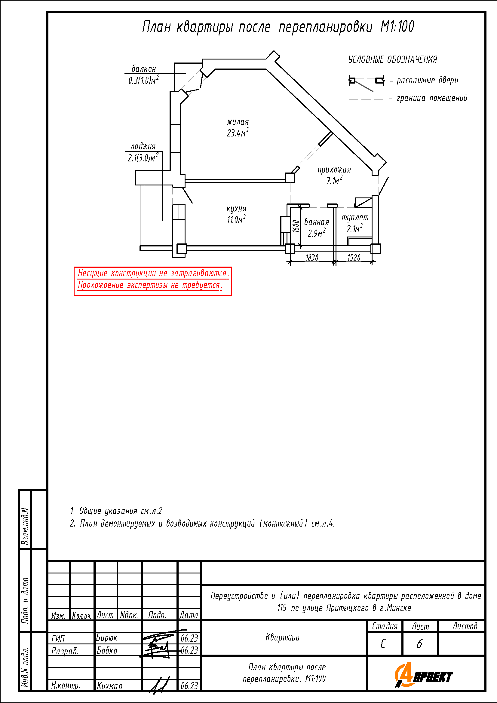
      ул. Притыцкого, 115

      Перепланировка квартиры в г. Минске:
      psd_1.png Комплекс услуг: Проект
      projekt_1.png Разделы проекта: АС
      location_1.png Место: Фрунзенский р-н
      JK_1.png ЖК: 
      Подробнее
      ул. Притыцкого, 115
      Фотогалерея
      4 —
      1/4 —
      ул. Притыцкого, 115
      ул. Притыцкого, 115
      ул. Притыцкого, 115
      ул. Притыцкого, 115
      ул. Притыцкого, 115
      ул. Притыцкого, 115
      ул. Притыцкого, 115
      ул. Притыцкого, 115
      Оформите заявку на проект, мы свяжемся с вами в ближайшее время и ответим на все интересующие вопросы.
      Заказать проект
      ?
      • Описание
      • Вопросы и ответы

      Перепланировка квартиры по ул. Притыцкого, 115 в г.Минске

      Пожелания заказчика:

      1. Разделение единого санузла на отдельный туалет и отдельную ванную.

      Нами были разработаны следующие разделы проектной документации для согласования в исполкоме:

      • АС - архитектурно-строительные решения.
      Вопросы и ответы
      Какие документы необходимы для разработки проекта по перепланировке?
      • Выписка из решения администрации района о разрешении на переустройство и (или) перепланировку жилых помещений;
      • Согласованная план-схема планировки;
      • Технический паспорт квартиры;
      • Свидетельство о регистрации квартиры;
      • Дизайн-проект (если есть);
      • Технические условия, указанные в решении администрации (при необходимости).
      Когда требуют наличие технадзора при перепланировке?

      Наличие технического надзора требуется при разработке проектной документации.

      Хочу увеличить площадь санузла. Какие есть нюансы?

      Допускается увеличение санузлов за счет площади нежилых помещений (коридор, прихожая, кладовая, гардеробная) без ограничений по площади.

      Частичное размещение одного из помещений санузла (не более 25% его площади) над жилой комнатой разрешается, если выполнены мероприятия по повышению гидро- и звукоизоляции конструкции пола этого санузла.

      Не допускается размещать санузлы непосредственно над жилыми комнатами и кухнями. Размещение санузла над кухней допускается в многоуровневых квартирах в случае, когда санузел и кухня входят в состав одной квартиры.

      На всей площади санузла должна быть реализована гидроизоляция.

      На какие работы по перепланировке нужен аттестованный подряд?
      1. Разработка проекта для согласования в исполкоме.
      2. Технический надзор.
      3. Выполнение скрытых строительно-монтажных работ таких как: 
      • гидроизоляция, звукоизоляция, паро-, теплоизоляция;
      • перенос, замена отопительных приборов (радиаторов отопления), смена их подключения (например, было из пола, а хотите из стены);
      • устройство проема в несущей стене и его усиление;
      • работы по газовому оборудованию, например, перенос газовых счетчиков, газовой трубы, замена газовой плиты на электро;
      • устройство антресольного этажа.
      Карта
      загрузка карты...
      Сопутствующие услуги
      Проект перепланировки
      Разработка проектной документации для согласования перепланировки, реконструкции квартиры.
      от 400 BYN
      Технический надзор за выполнением работ
      Технический надзор за выполнением строительно-монтажных работ по перепланировке, реконструкции квартиры.
      от 300 BYN
      Строительно-монтажные работы
      Аттестованный подряд на выполнение работ по отопительным приборам, гидроизоляции, усилению проемов в несущих стенах и прочие виды скрытых работ. Черновые и чистовые сторительно-монтаные работы.
      от 300 BYN
      Похожие проекты
      Санузлы
      ул. Щорса, 4А
      Перепланировка квартиры в г. Минске:
      psd_1.png Комплекс услуг: Проект
      projekt_1.png Разделы проекта: АС
      location_1.png Место: Московский р-н
      JK_1.png ЖК:
      Санузлы
      ул. Теслы, 14
      Перепланировка квартиры в ЖК «Минск Мир»:
      psd_1.png Комплекс услуг: Проект
      projekt_1.png Разделы проекта: АС
      location_1.png Место: Октябрьский р-н
      JK_1.png ЖК «Минск Мир»
      Кухня в жилую, Санузлы
      ул. Авиационная, 37
      Реконструкция квартиры в ЖК «Новая Боровая»:
      psd_1.png Комплекс услуг: «Под ключ»
      projekt_1.png Разделы проекта: АС+ОВ+ВК
      location_1.png Место: Минский р-н
      JK_1.png ЖК «Новая Боровая»
      Статьи
      11 марта 2022
      Отделы архитектуры и строительства районов Минска
      Для согласования перепланировки необходимо обратиться в отдел архитектуры и строительства исполкома того района, к которому относится дом. Ниже список всех отделов архитектуры с контактной информацией.
      24 апреля 2020
      7 основных этапов согласования перепланировки квартиры
      Какой процесс прохождения согласования перепланировки квартиры в Беларуси? Узнайте про основные этапы в данной статье.
      24 декабря 2019
      Проект на гидроизоляцию
      Назад к списку

      +375 (44) 535-33-00
      +375 (44) 535-33-00
      +375 (44) 515-33-00
      Заказать звонок
      E-mail
      inproekt100@gmail.com
      Адрес
      г. Минск, ул. Чапаева 3, офис 101
      Режим работы
      Пн. – Пт.: с 9:00 до 18:00
      Заказать звонок
      inproekt100@gmail.com
      г. Минск, ул. Чапаева 3, офис 101
      Услуги
      Квартиры
      Нежилые помещения
      Мастер-классы
      Компания
      Лицензии
      Сотрудники
      Отзывы
      Информация
      Вопрос-ответ
      Как оформить заказ
      платежные системы 1.png
      © 2026 Pereplan.by
      Общество с ограниченной ответственностью «А4-Проект»
      Свидетельство о государственной регистрации 193093030 выдано 13.06.2018 Минским горисполкомом.
      Юр. Адрес: Беларусь, г.Минск, ул. Чапаева, 3-101.
      Политика конфиденциальности
      Договор оферты
      Главная Услуги Проекты Лицензии Статьи FAQ Скидки Отзывы Поиск Сотрудники Контакты