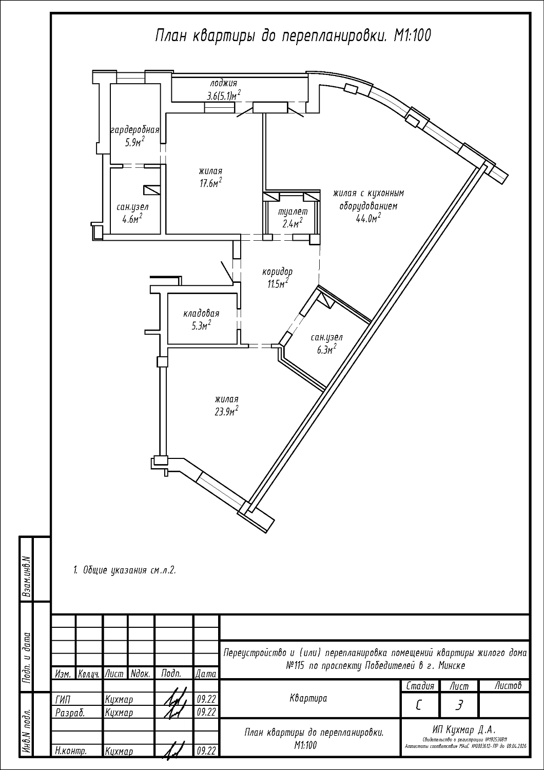
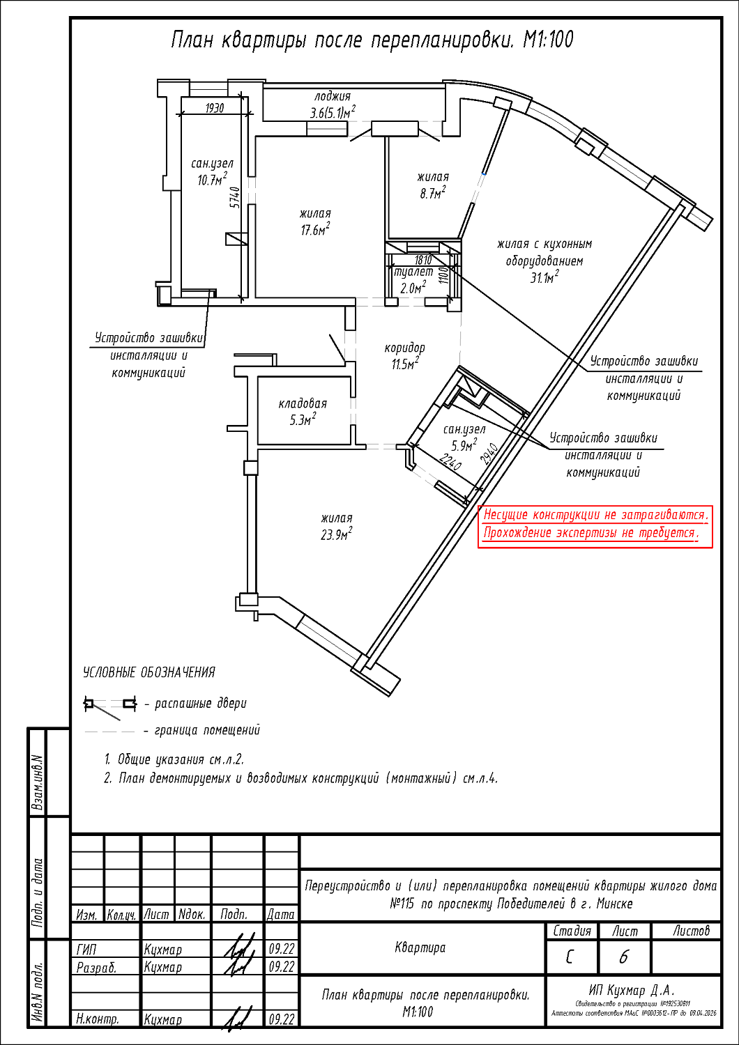
Перепланировка квартиры по пр-ту Победителей, 115 в ЖК «Лазурит»
Пожелания заказчика:
- Разделение жилой с кухонным оборудование на жилую с кухонным оборудованием и жилую;
- Демонтаж перегородки между гардеробной и санузлом, с целью увеличения площади санузла за счёт площади гардеробной;
- Закладка дверного проёма между коридором и санузлом, с целью устройства дверного проёма между жилой и санузлом.
Нами были разработаны следующие разделы проектной документации для согласования в исполкоме:
- АС - архитектурно-строительные решения.
