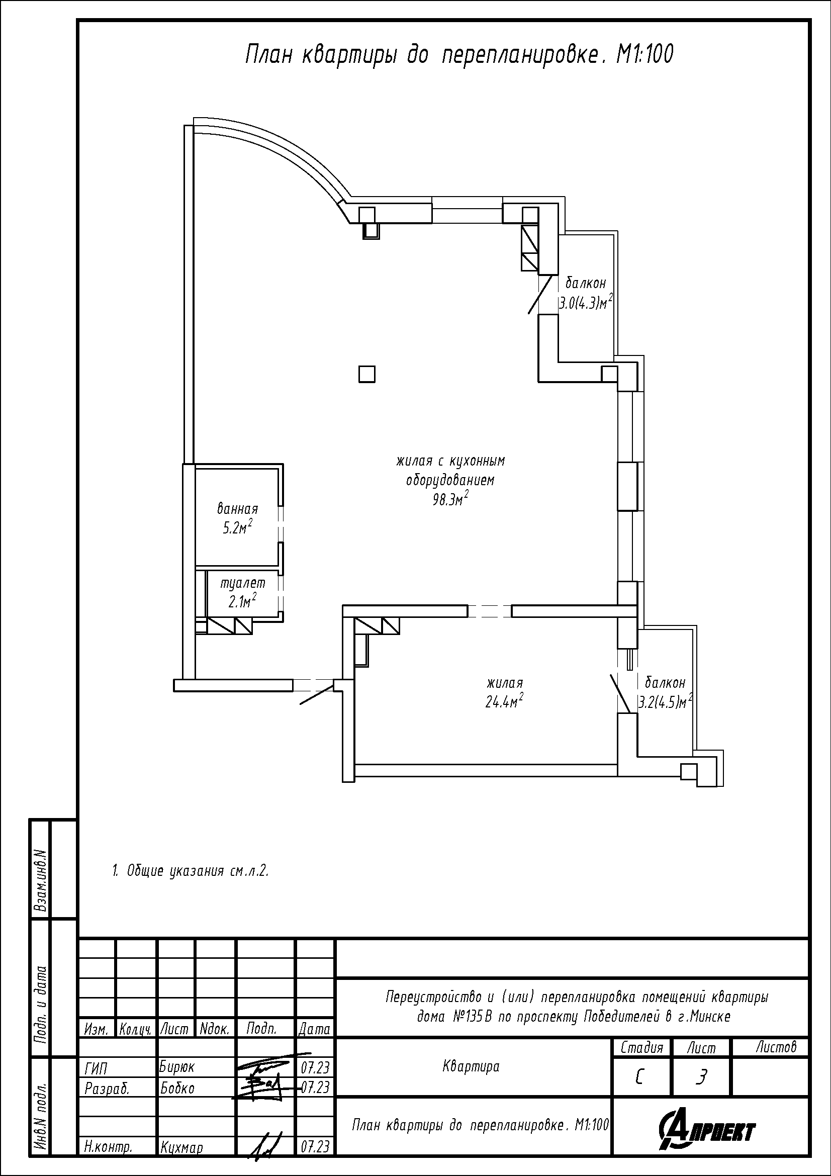
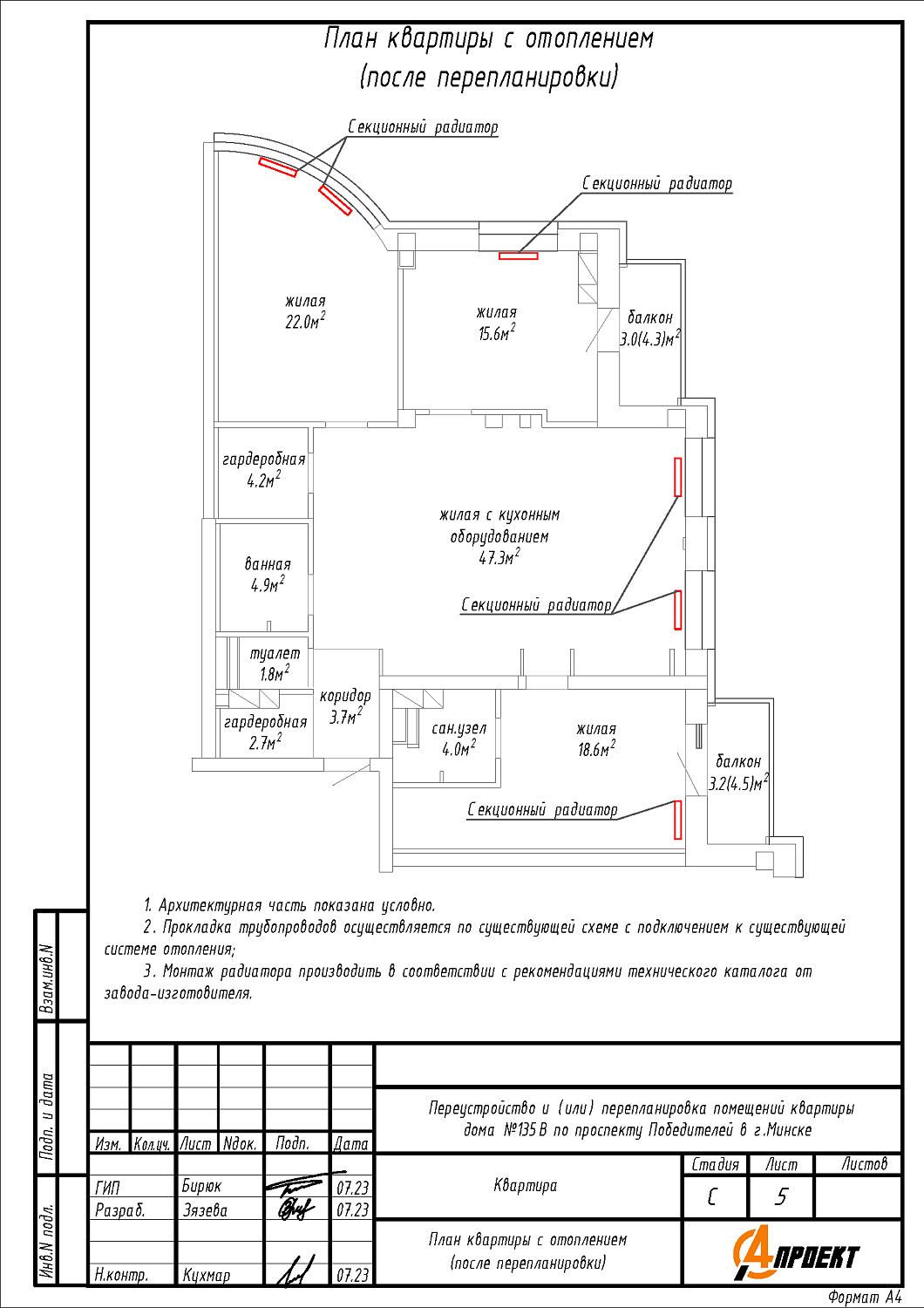
Перепланировка квартиры по пр-ту Победителей, 135В в ЖК «D3»
Пожелания заказчика:
- Разделение общей жилой с кухонным оборудованием на жилую с кухонным оборудованием, две жилые две гардеробные и коридор;
- Устройство санузла на части площади жилой 24,4м2 (на площади функциональной зоны сан.узла по плану от застройщика);
- Демонтаж части перегородки между ванной и коридором с последующим устройством части перегородки;
- Демонтаж части перегородки между туалетом и коридором с последующим устройством части перегородки;
- Устройство инсталляции в туалете;
- Устройство перегородок в ванной;
- Перенос отопительных приборов.
Нами были разработаны следующие разделы проектной документации для согласования в исполкоме:
- АС - архитектурно-строительные решения;
- ОВ - отопление и вентиляция.
