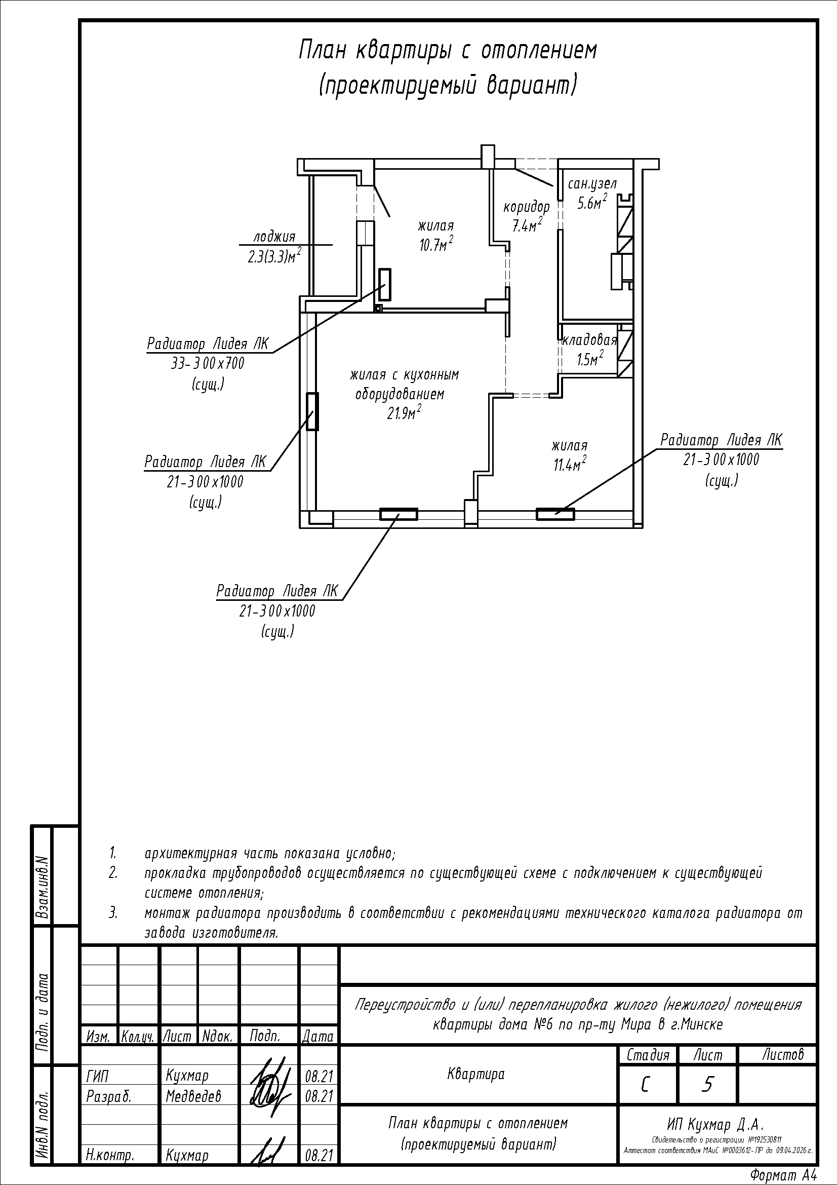
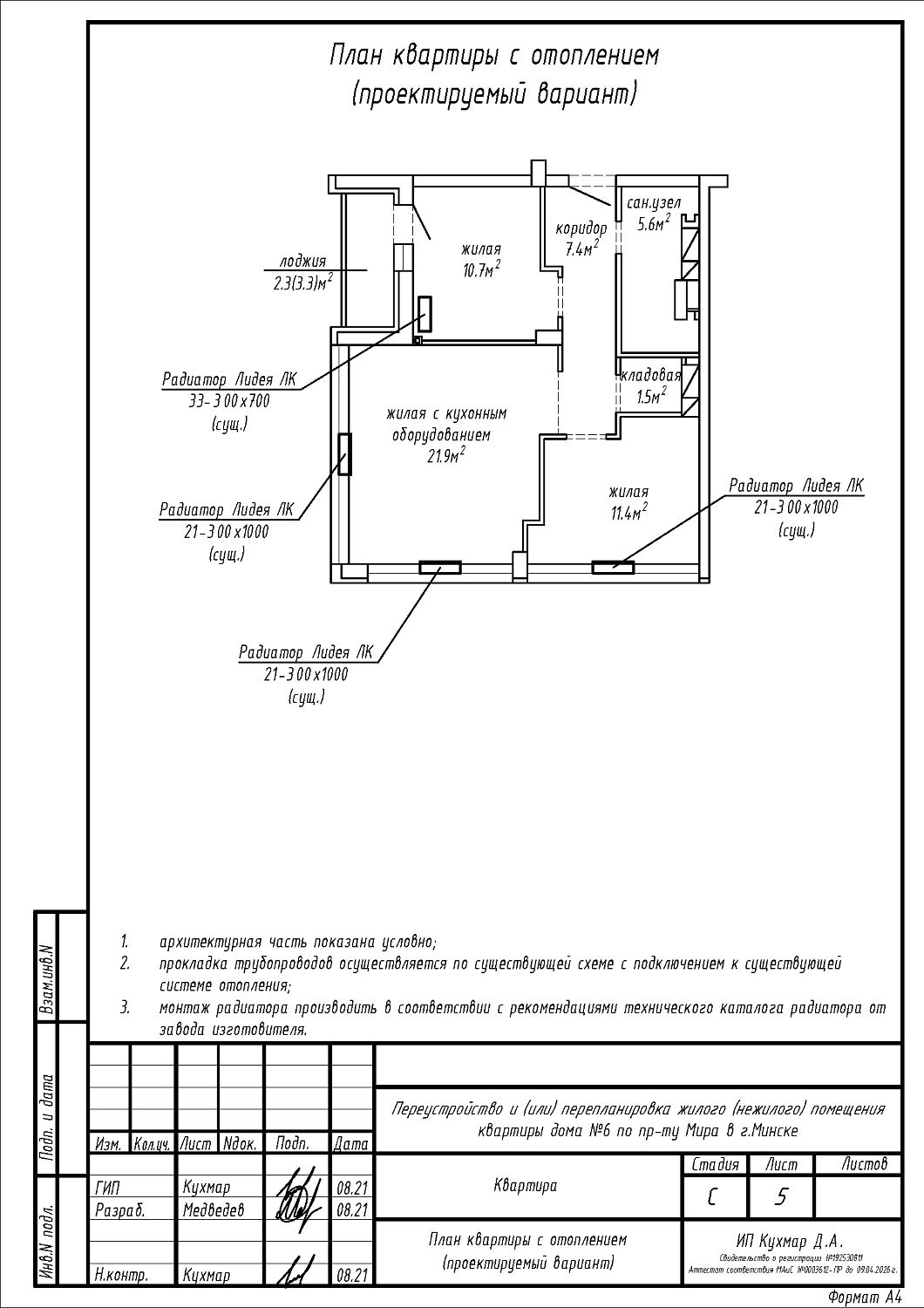
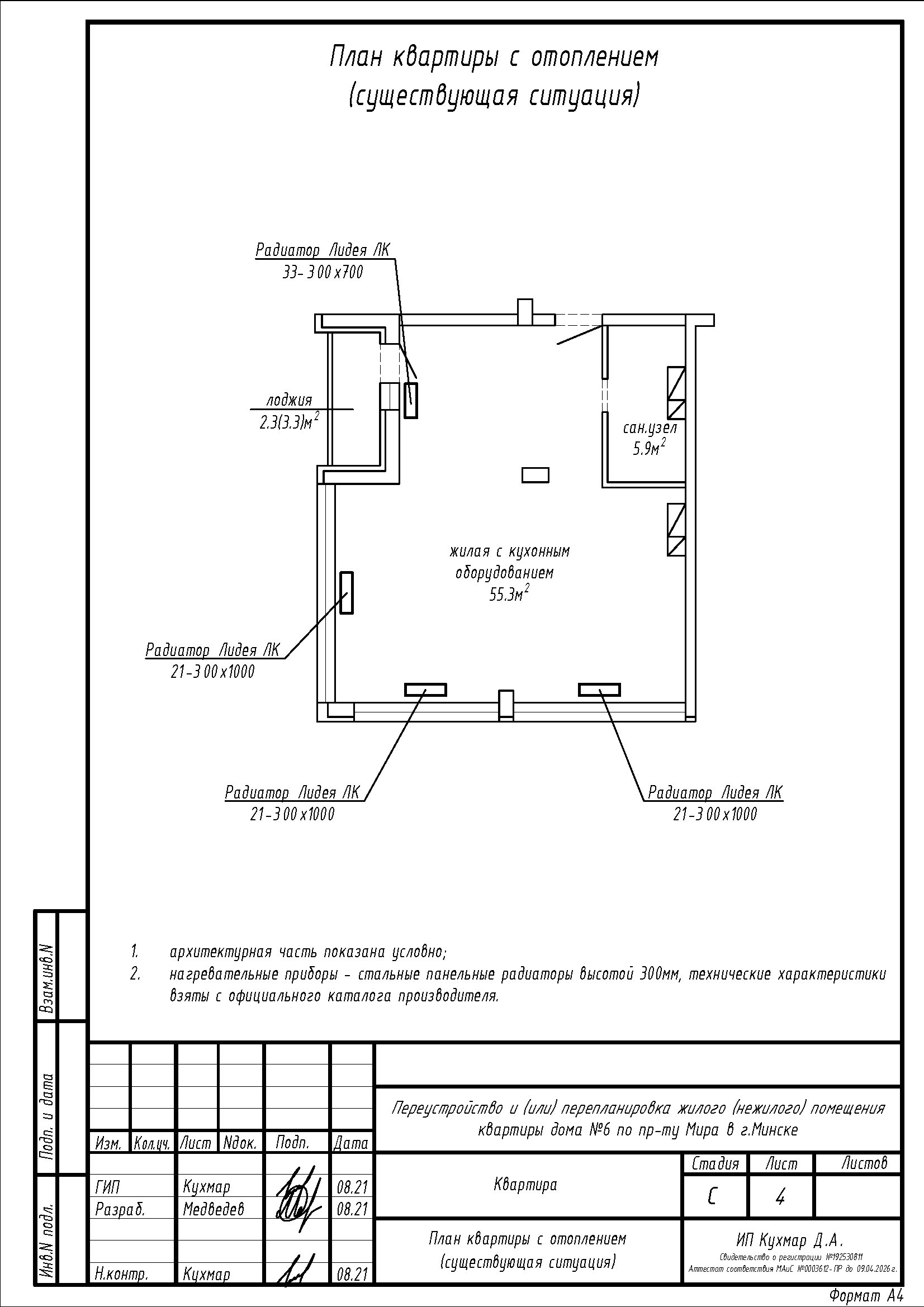
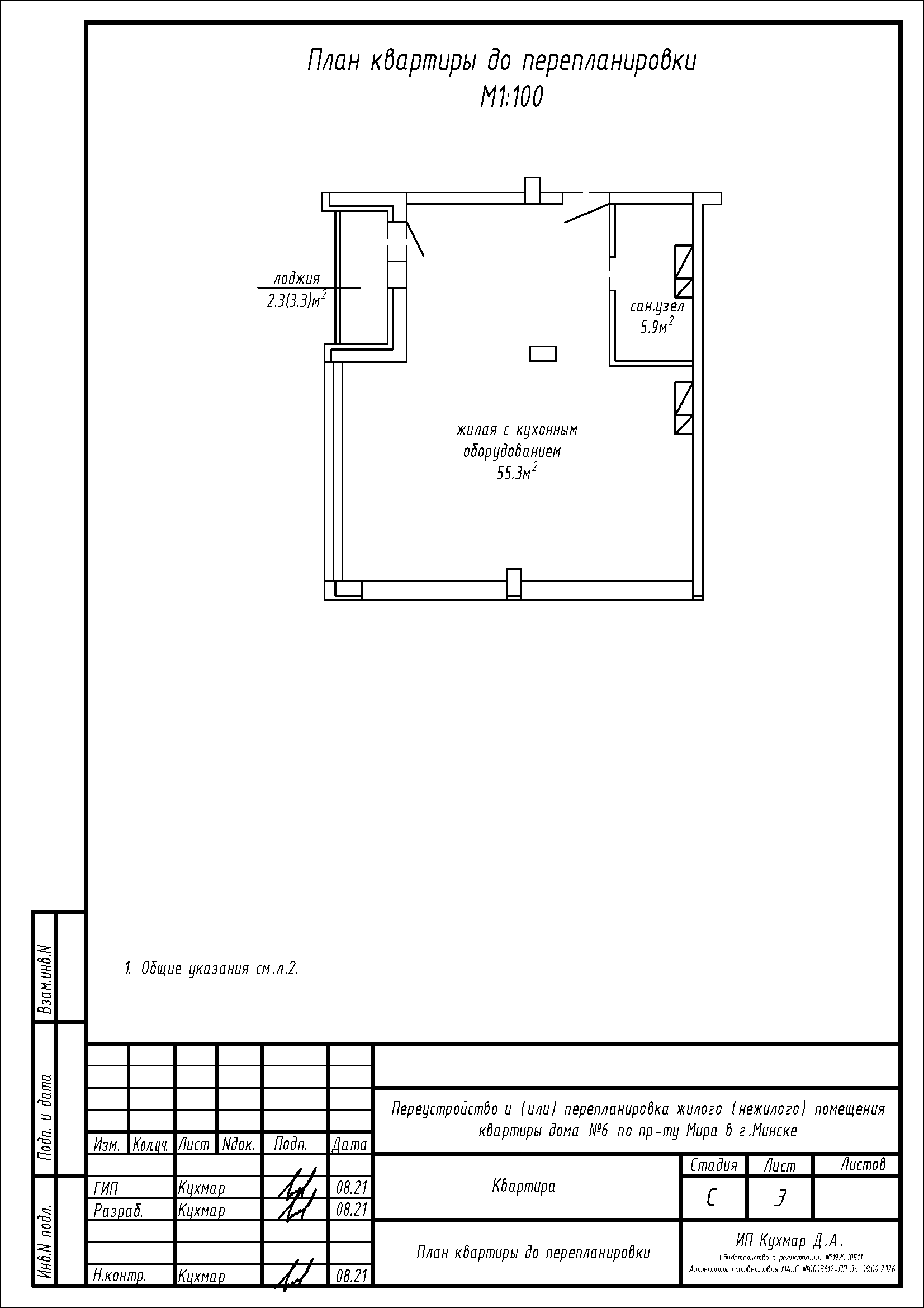
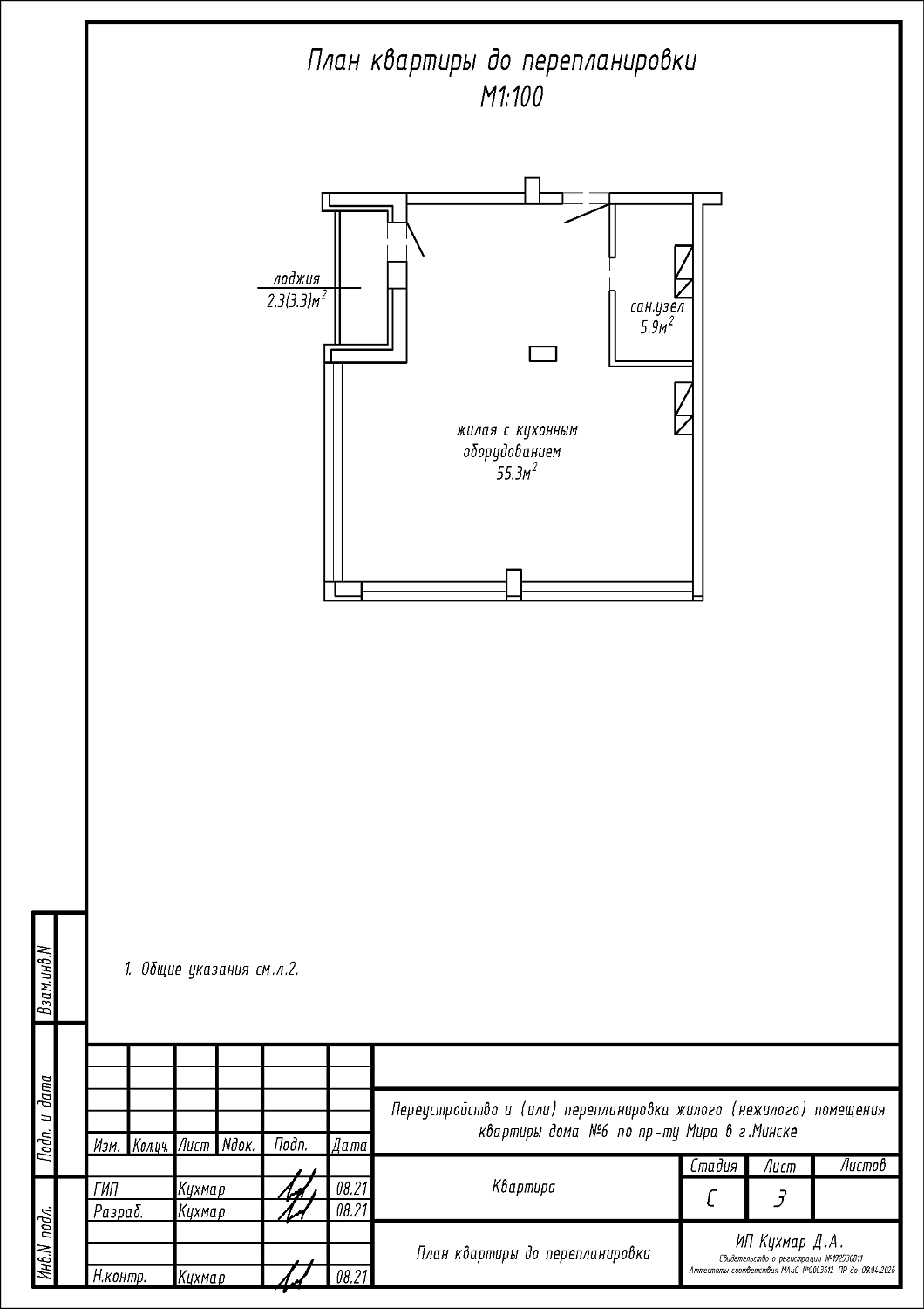
Перепланировка квартиры по пр-ту Мира, 6 в ЖК «Минск Мир»
Пожелания заказчика:
- Устройство на площади жилой с кухонны оборудованием: двух жилых, жилой с кухонным оборудованием, коридора и кладовой;
- Увеличение площади санузла, но не более чем на 25% от первоначальной площади;
- Устройство зашивок из ГКЛ на площади санузла;
- Смена направления открывания входной двери;
Нами были разработаны следующие разделы проектной документации для согласования в исполкоме:
- АС - архитектурно-строительные решения;
- ОВ - отопление и вентиляция.
