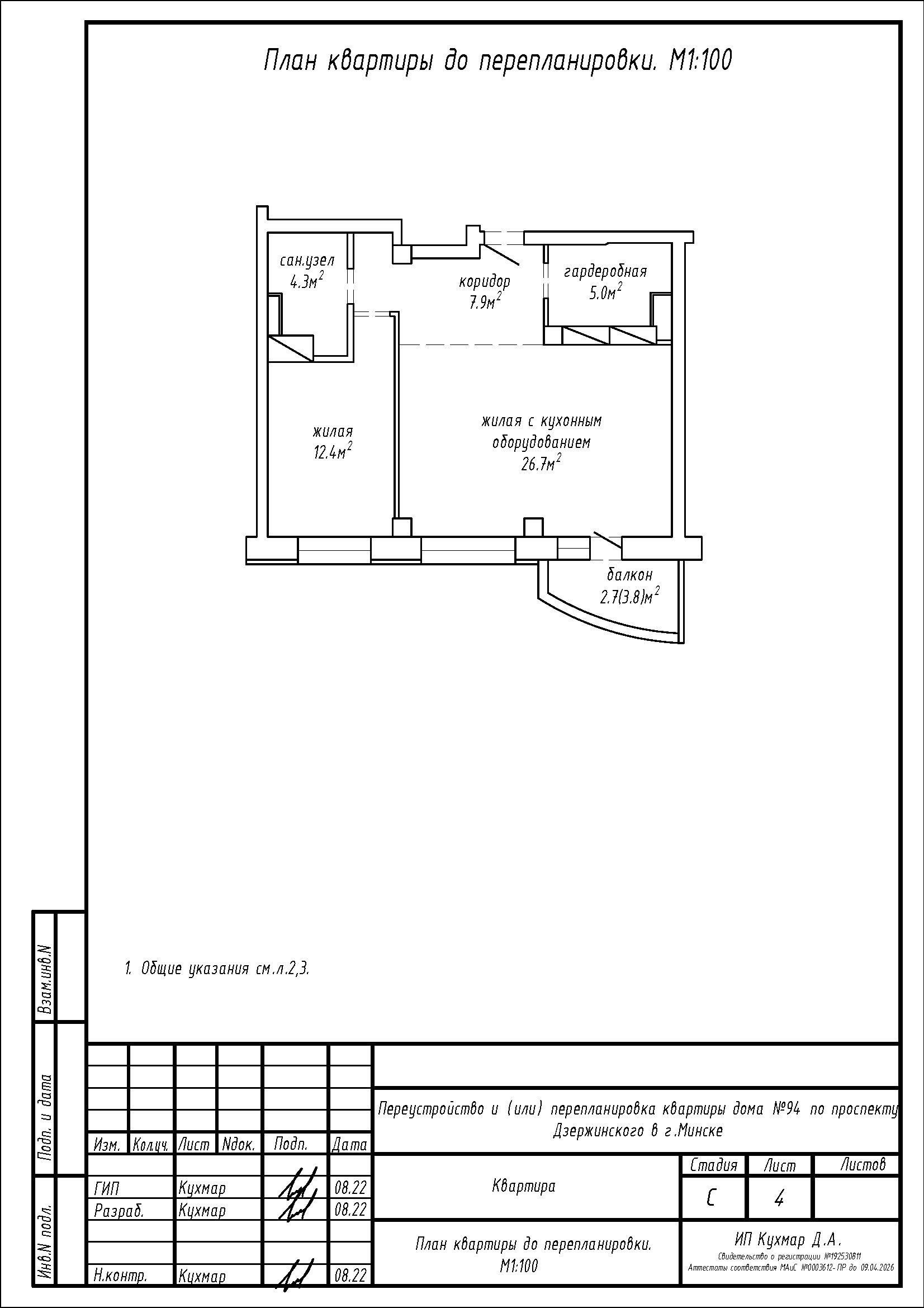
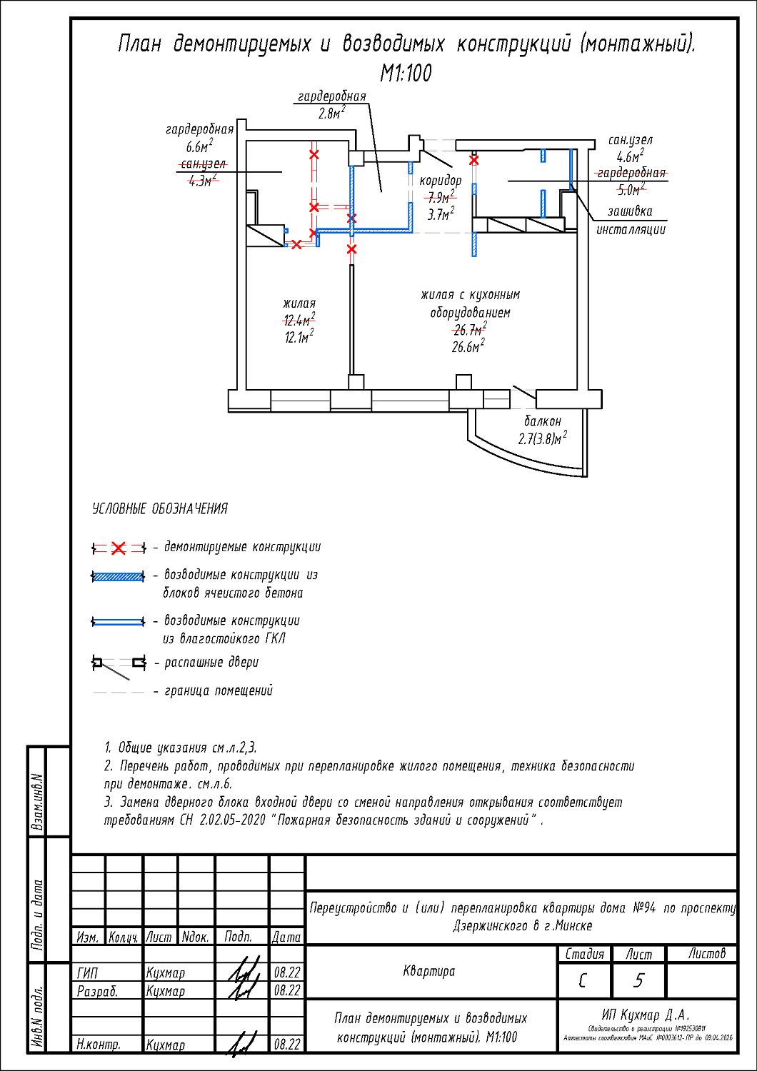
Перепланировка квартиры по пр-ту Дзержинского, 94 г. Минске
Пожелания заказчика:
- Устройство гардеробной на площади санузла;
- Устройство гардеробной на части площади коридора;
- Устройство санузла на площади гардеробной;
- Устройство зашивки инсталляции в санузле;
- Устройство перегородки на части площади жилой с кухонным оборудованием;
- Устройство дверного проёма в перегородке между жилой и жилой с кухонным оборудованием.
Нами были разработаны следующие разделы проектной документации для согласования в исполкоме:
- АС - архитектурно-строительные решения.
