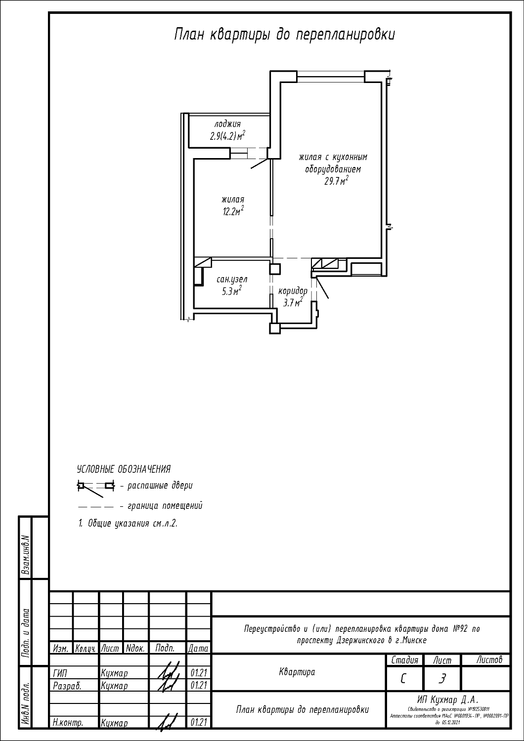
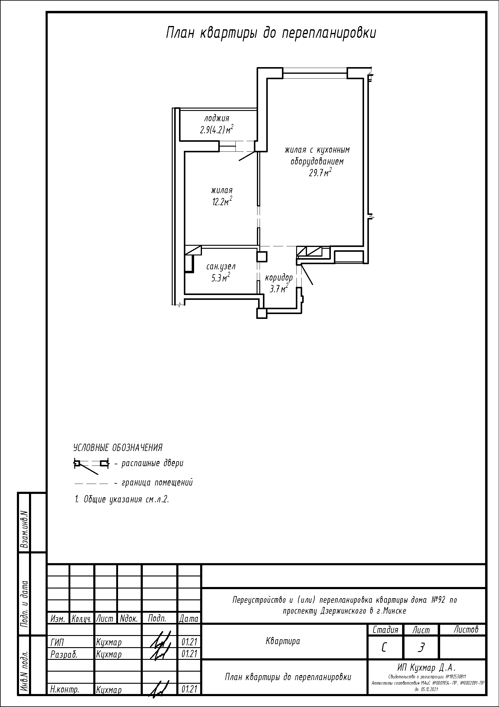
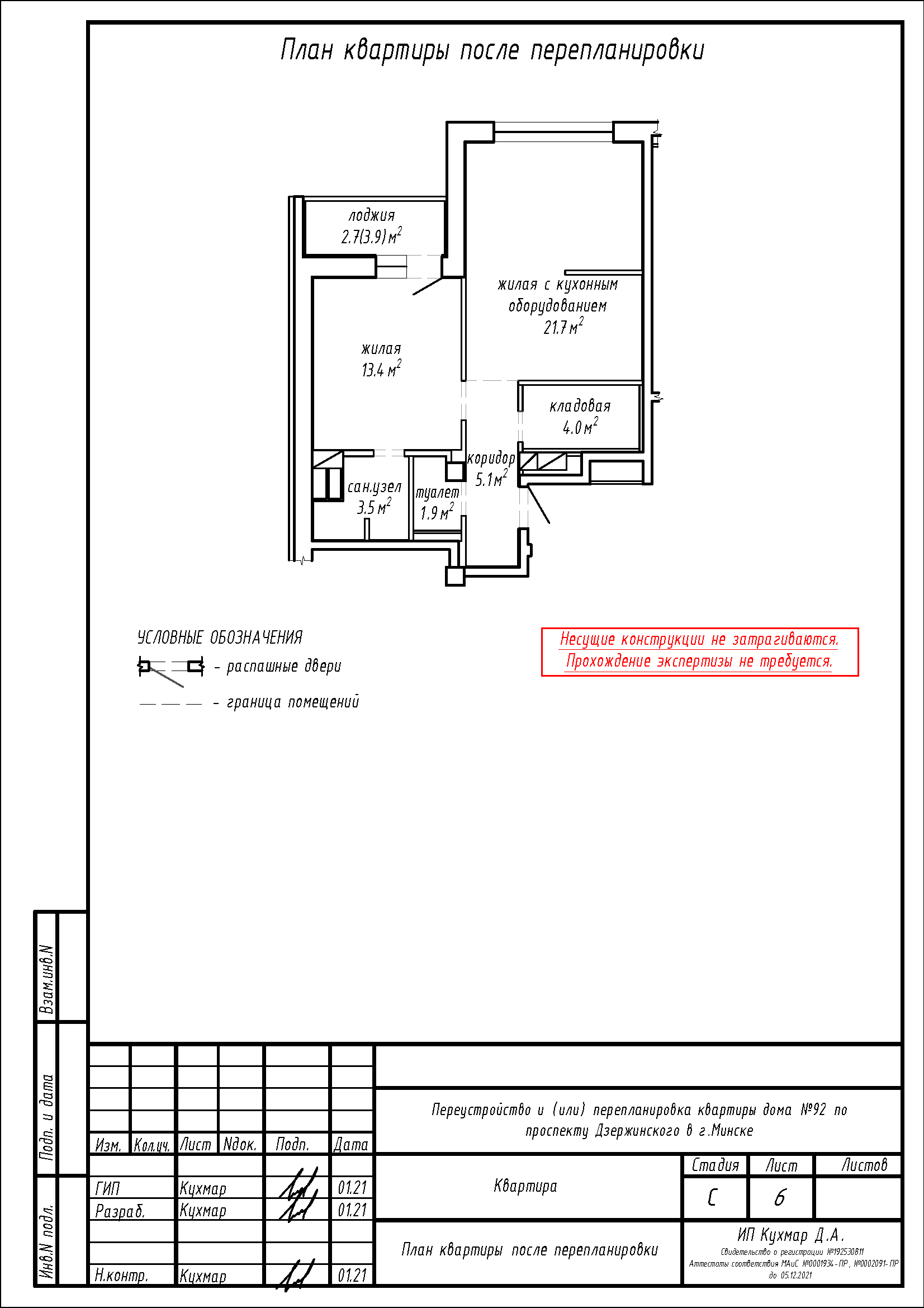
Перепланировка квартиры по пр-ту Дзержинского, 92 в г. Минске
Пожелания заказчика:
- Демонтаж перегородки с дверным проёмом между жилой комнатой и жилой с кухонным оборудованием;
- Демонтаж перегородки с дверным проёмом между коридором и санузлом;
- Устройство перегородки в санузле, перегородки с дверным проёмом в коридоре с целью устройства туалета на части площади санузла, части площади коридора с устройством гидроизоляции;
- Устройство дверного проёма в перегородке между санузлом и жилой комнатой, перегородки в санузле;
- Устройство перегородки с дверным проёмом в жилой с кухонным оборудованием с целью устройства жилой комнаты на площади жилой комнаты, части площади жилой с кухонным оборудованием;
- Устройство перегородок с дверными проёмами в жилой с кухонным оборудованием с целью устройства кладовой на части площади жилой с кухонным оборудованием;
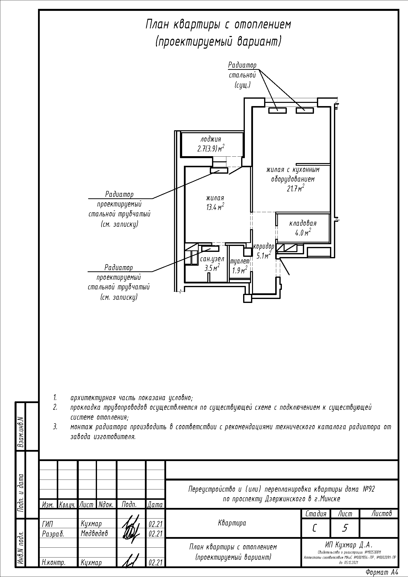
- Замена отопительных приборов.
Нами были разработаны следующие разделы проектной документации для согласования в исполкоме:
- АС - архитектурно-строительные решения;
- ОВ - отопление и вентиляция.
