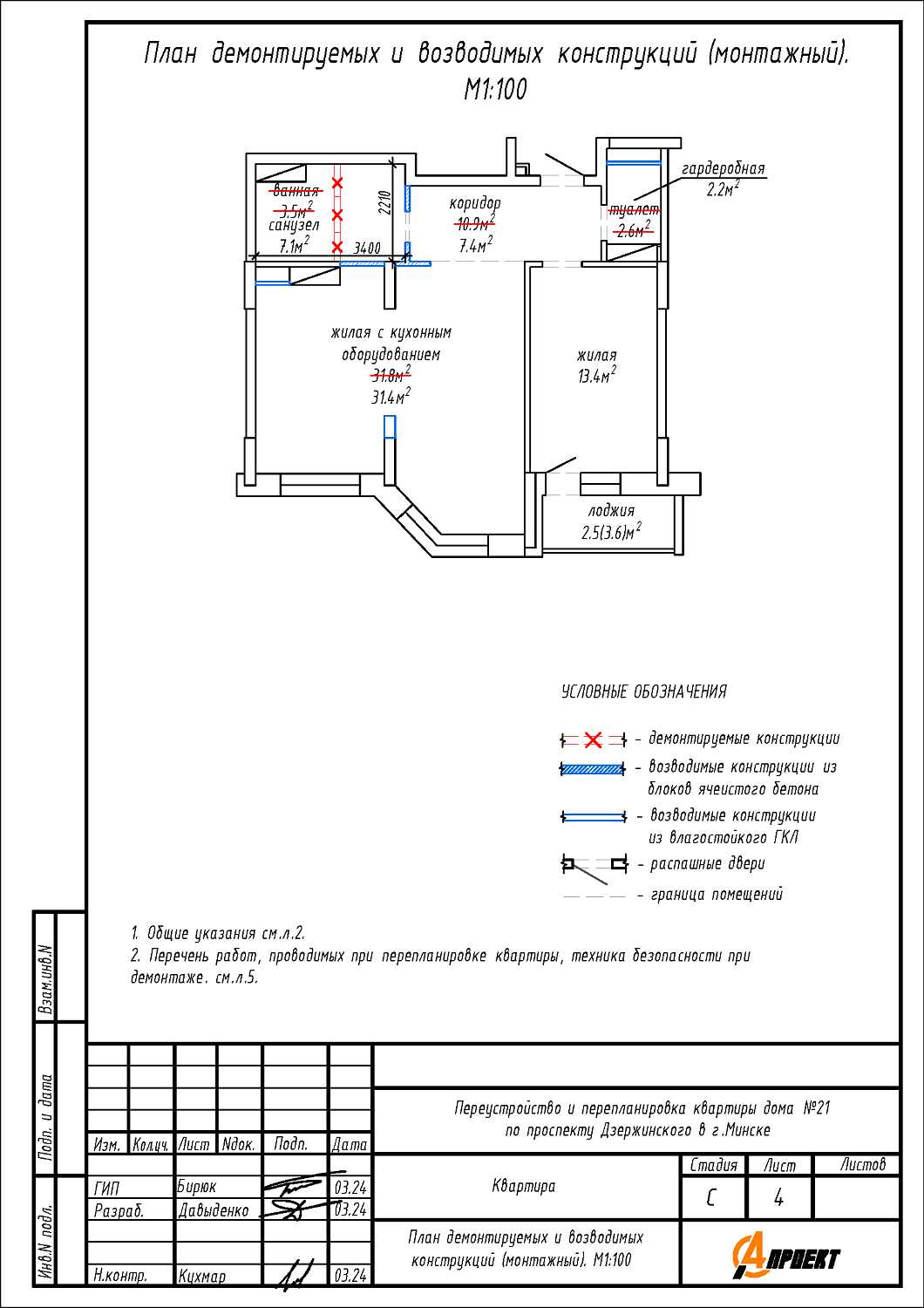
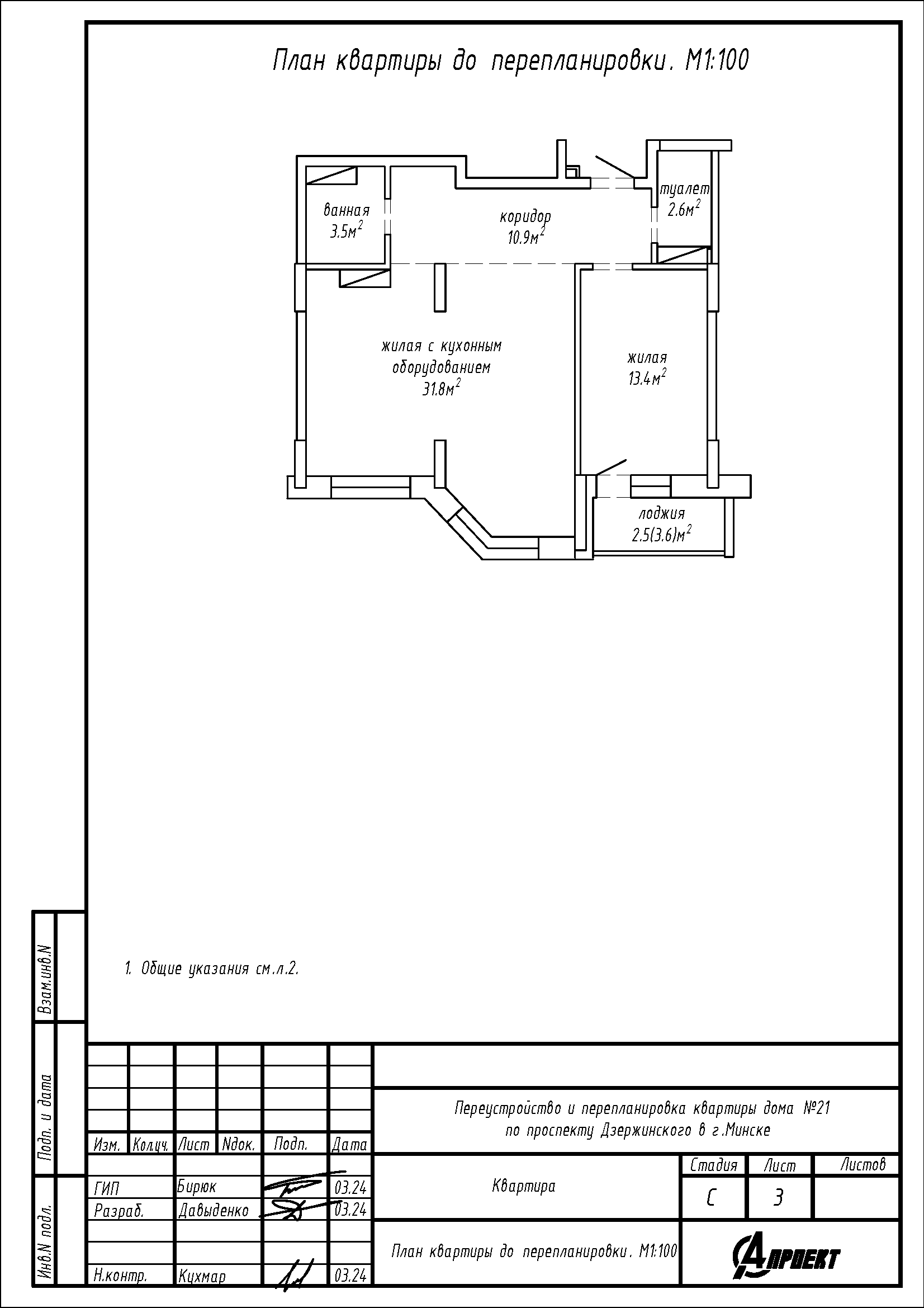
Перепланировка квартиры по пр-ту Дзержинского, 21 в г. Минске
Пожелания заказчика:
- Увеличение площади ванной за счёт части площади коридора;
- Устройство перегородки в жилой с кухонным оборудованием;
- Устройство гардеробной на площади туалета;
- Устройство зашивок из ГКЛ на части площади жилой с кухонным оборудованием и туалета.
Нами были разработаны следующие разделы проектной документации для согласования в исполкоме:
- АС - архитектурно-строительные решения.
