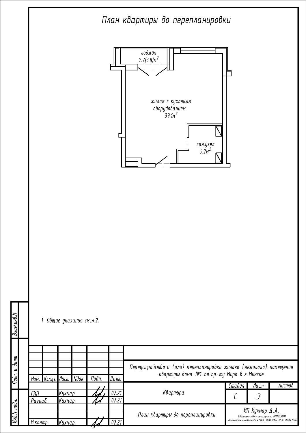
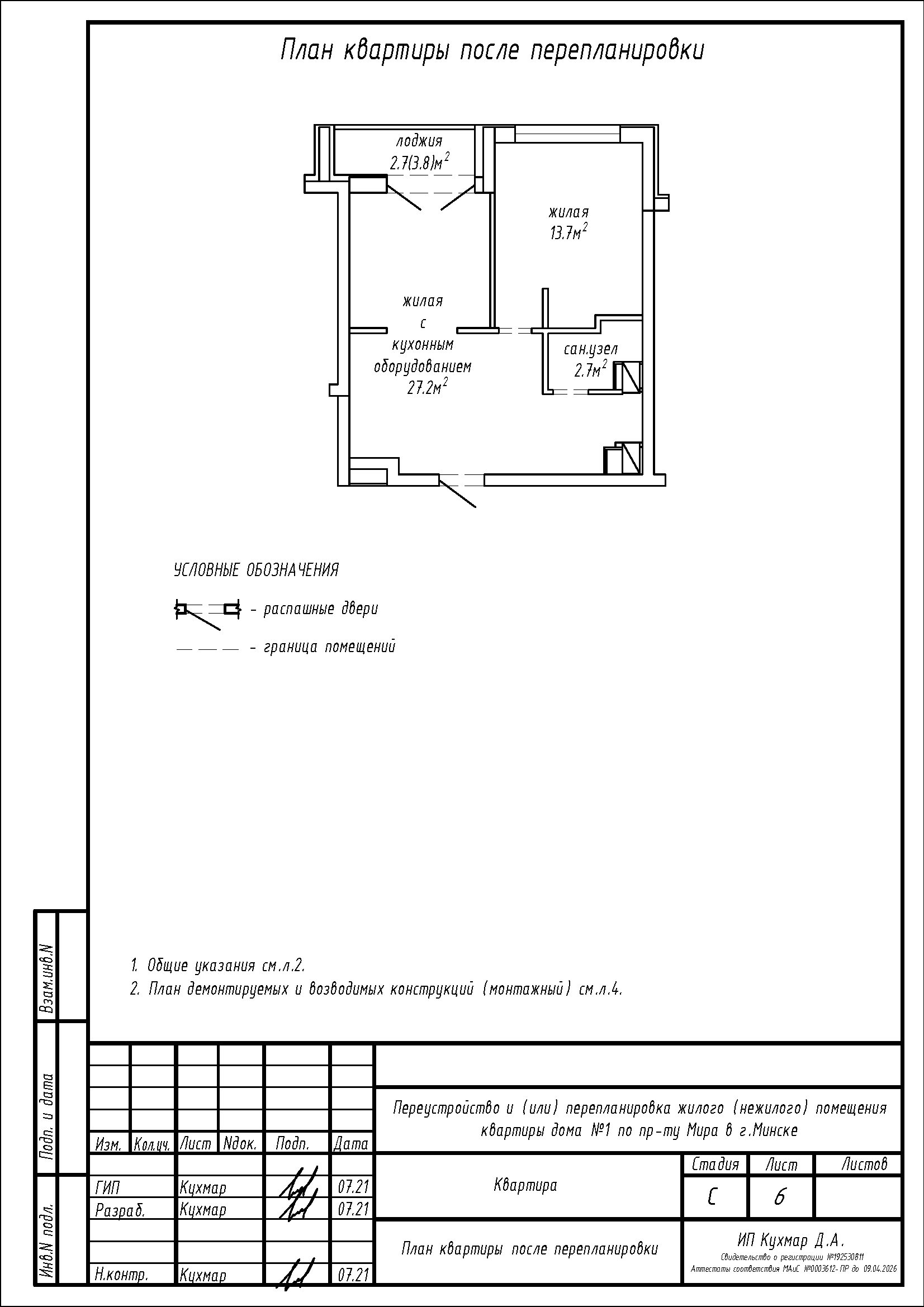
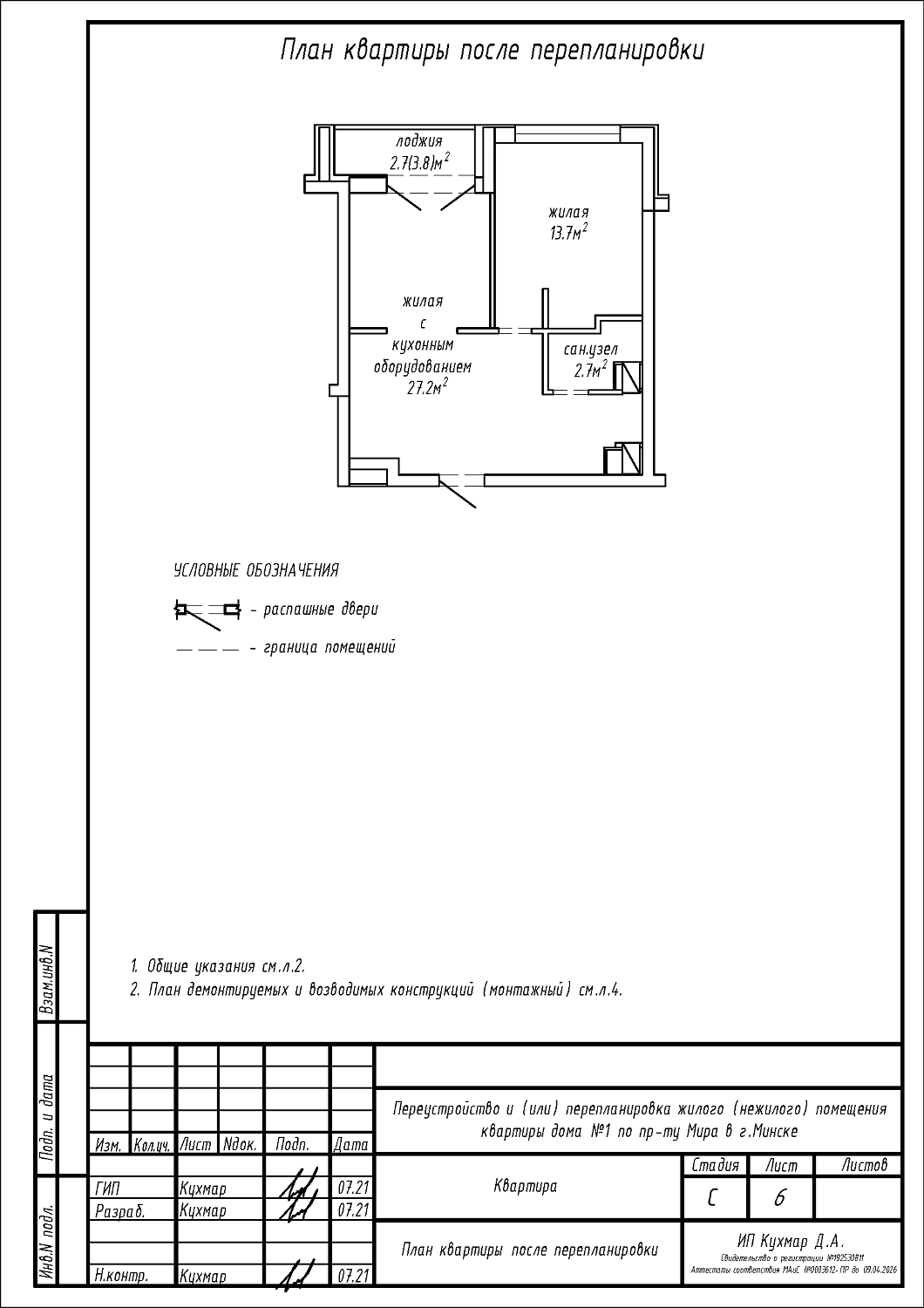
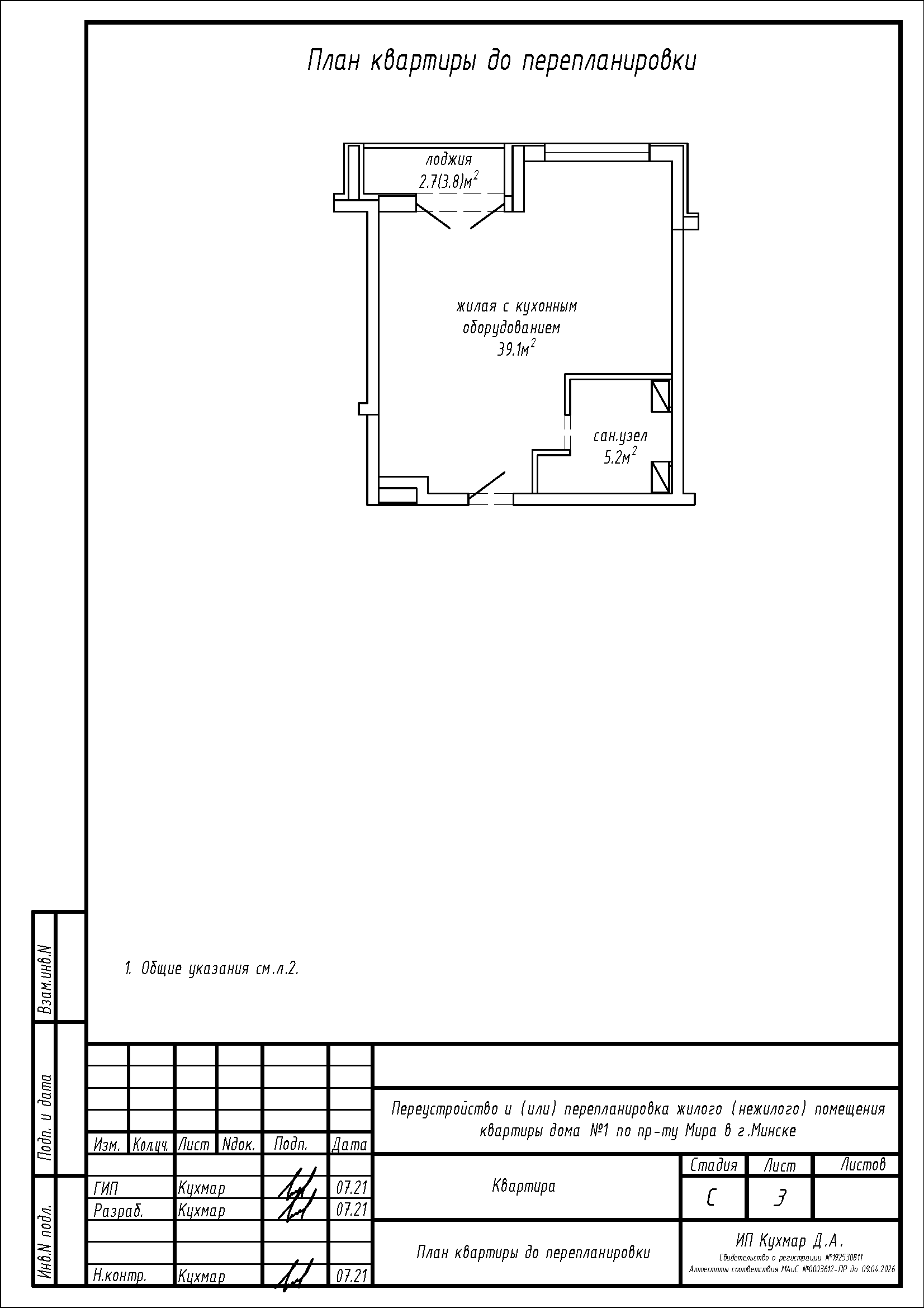
Перепланировка квартиры по проспекту Мира, 1 в ЖК «Минск Мир»
Пожелания заказчика:
- Разделение общей жилой с кухонным оборудованием на жилую с кухонным оборудованием и жилую;
- Смена направления открывания входной двери;
- Сдвиг санузла, с уменьшением его площади за счет жилой с кухонным оборудованием, не нарушая норму 25%;
Нами были разработаны следующие разделы проектной документации для согласования в исполкоме:
- АС - архитектурно-строительные решения.
