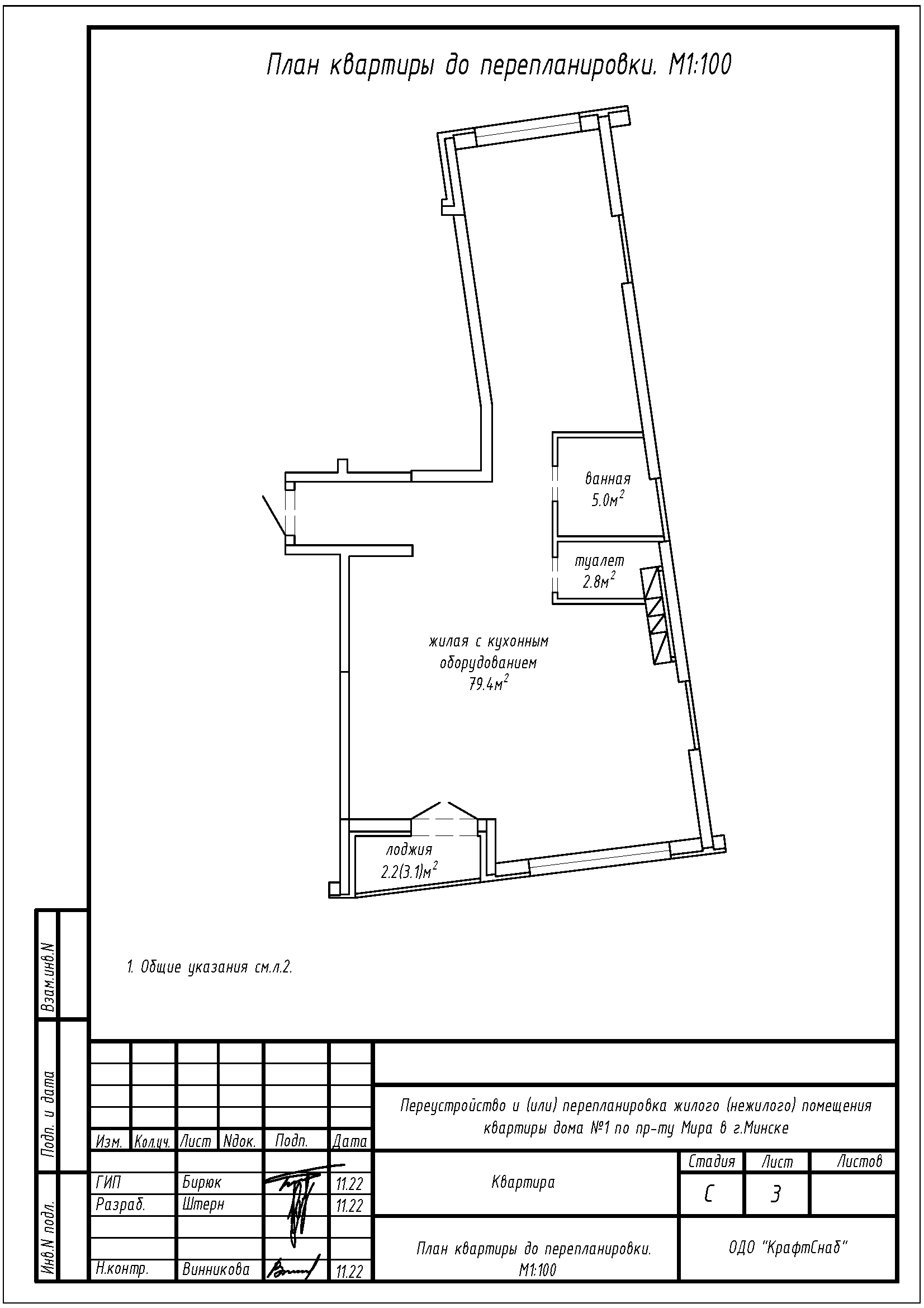
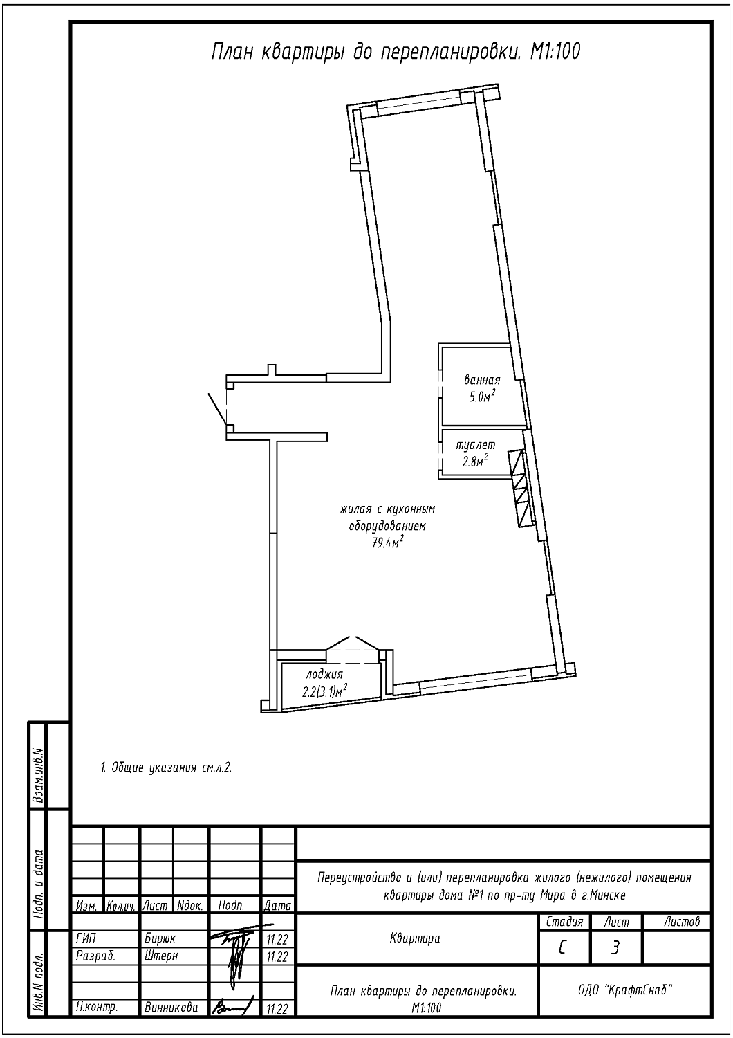
Перепланировка квартиры по пр-ту Мира, 1 в ЖК «Минск Мир»
Пожелания заказчика:
- Разделение общей жилой с кухонным оборудованием на жилую с кухонным оборудованием, две жилые, коридор, гардеробную и кладовую;
- Объединение ванной и туалета в единый санузел, увеличение санузла, но не более чем на 25%.
Нами были разработаны следующие разделы проектной документации для согласования в исполкоме:
- АС - архитектурно-строительные решения.
