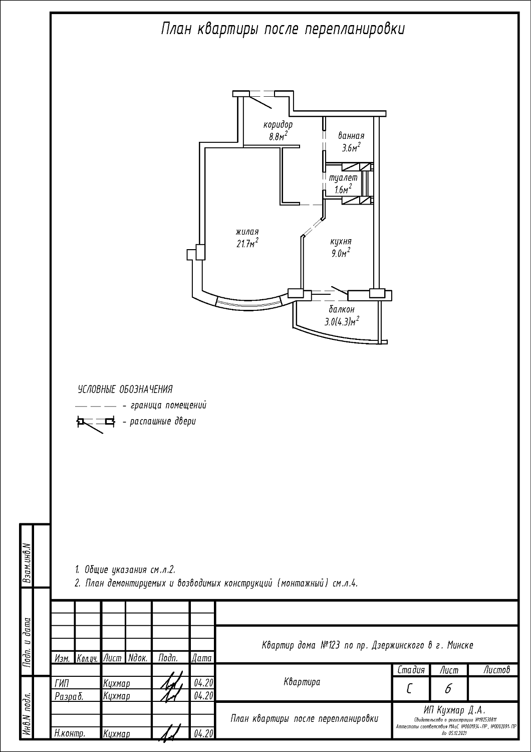
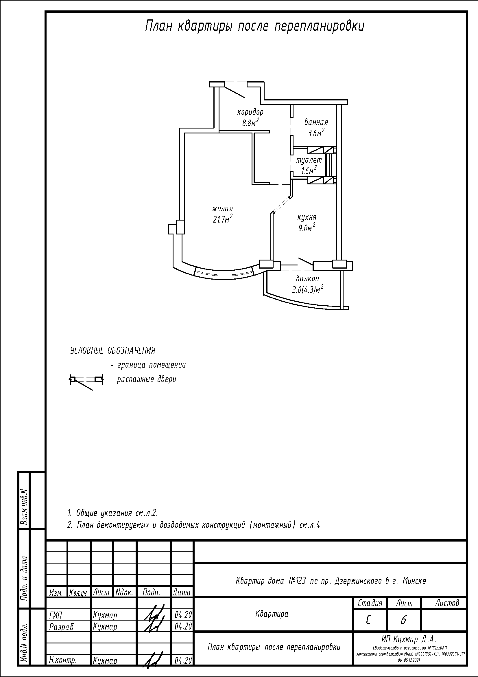
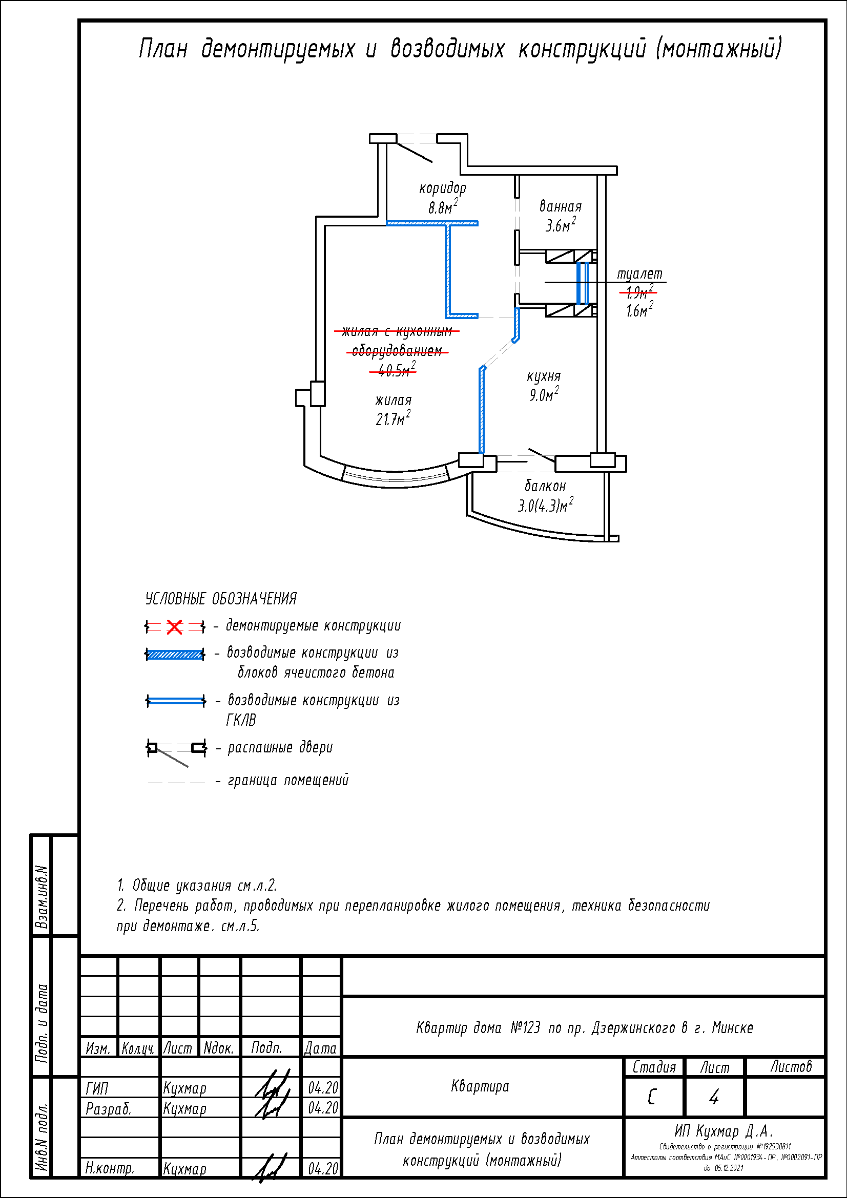
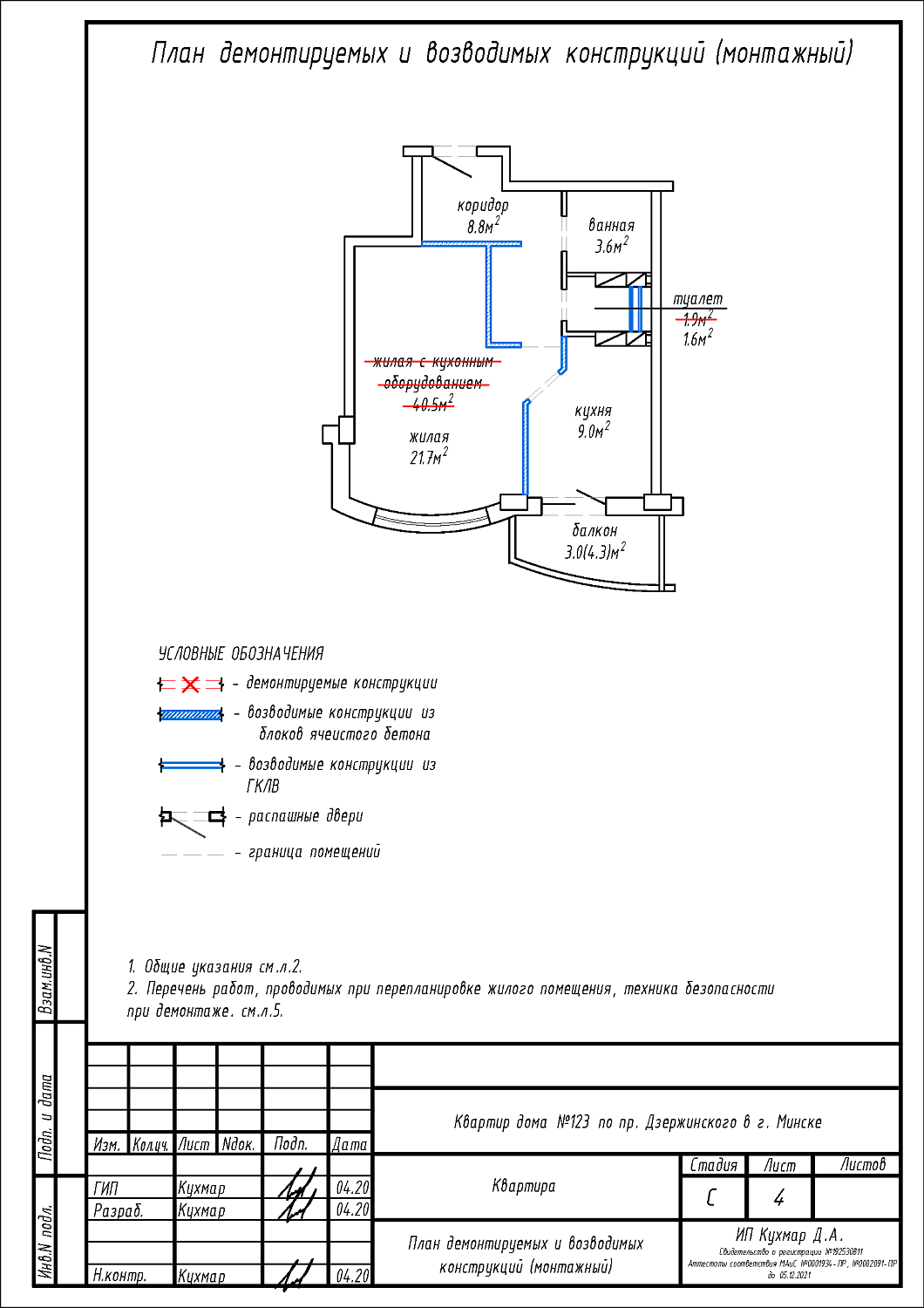
Перепланировка квартиры по пр-ту Дзержинского, 123 в ЖК «Мегаполис»
Пожелания заказчика:
- Разделение общего жилого с кухонным оборудованием на жилую, кухню и коридор;
- Устройство зашивки из ГКЛ в туалете.
Нами были разработаны следующие разделы проектной документации для согласования в исполкоме:
- АС - архитектурно-строительные решения.
