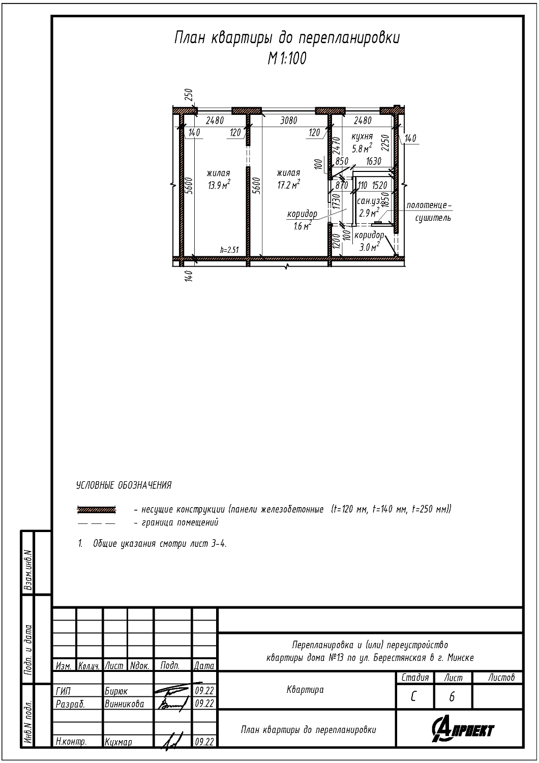
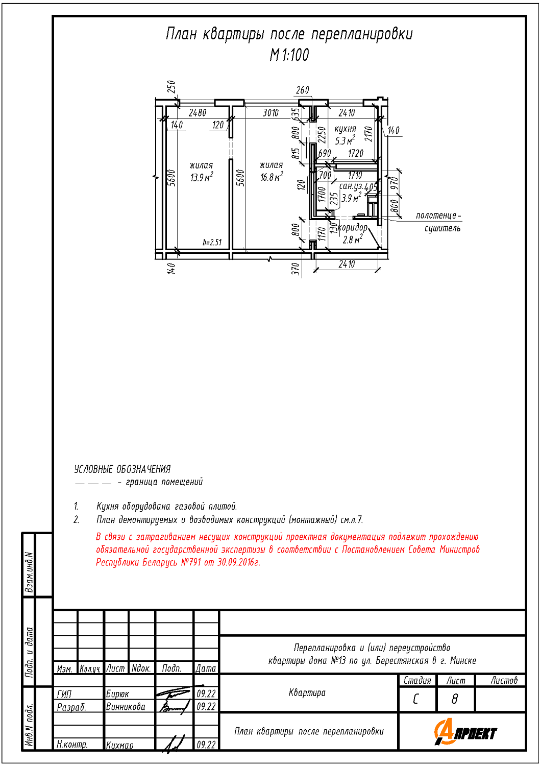
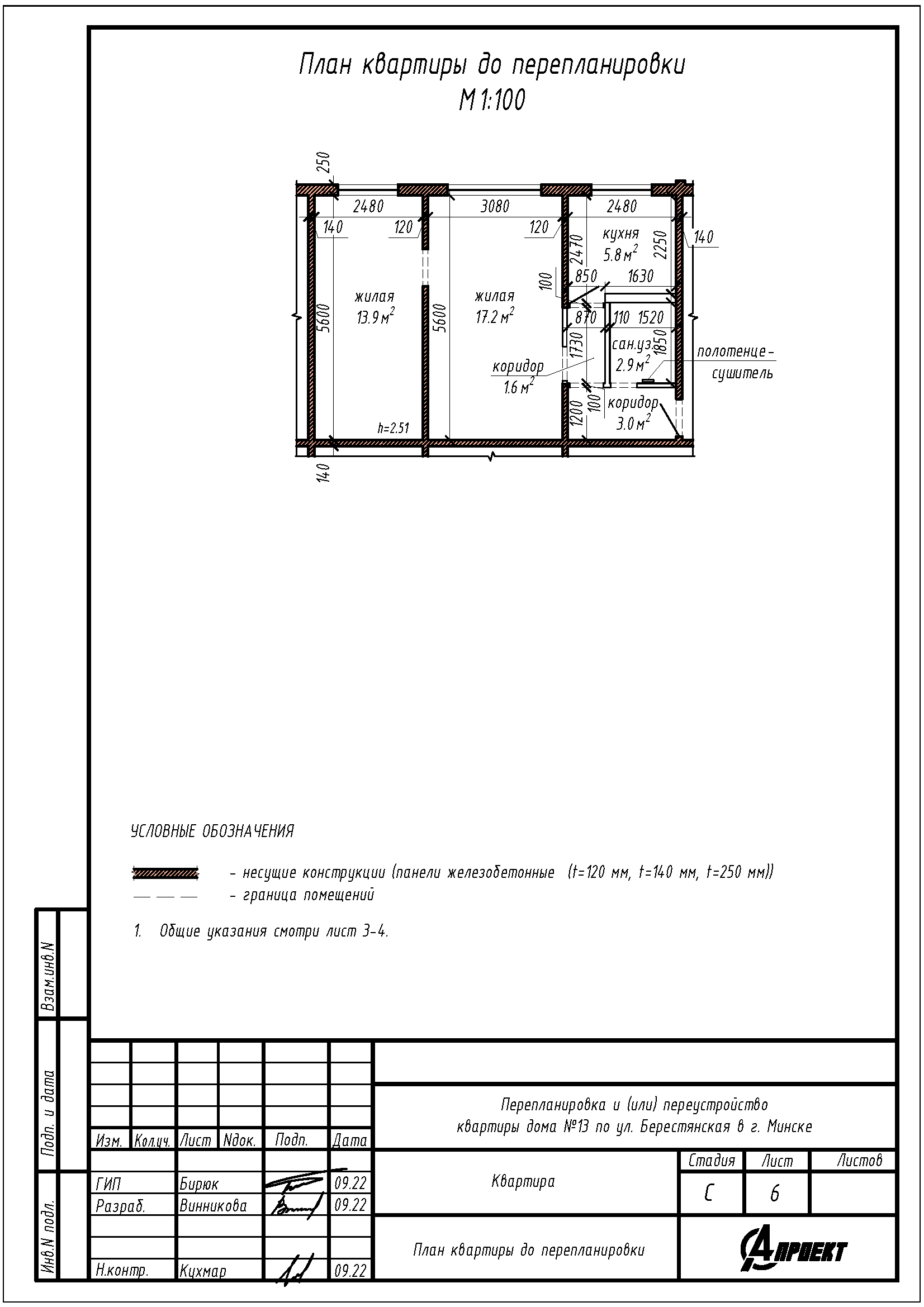
Перепланировка квартиры по ул. Берестянская, 13 в г. Минске
Пожелания заказчика:
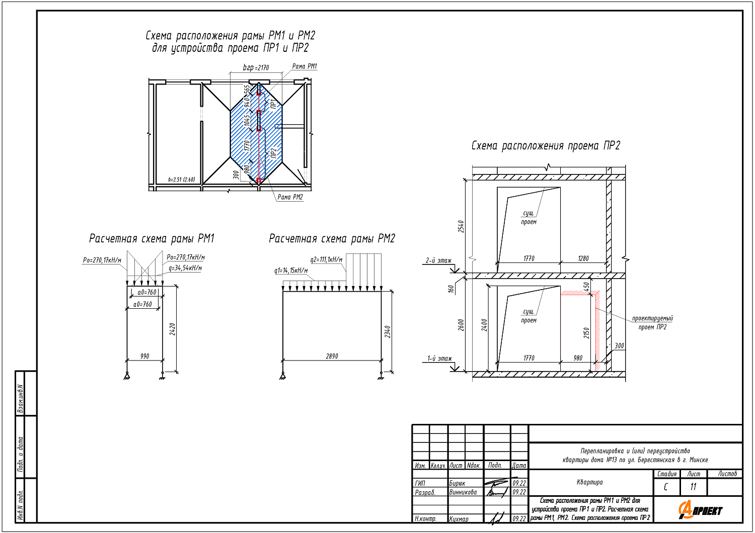
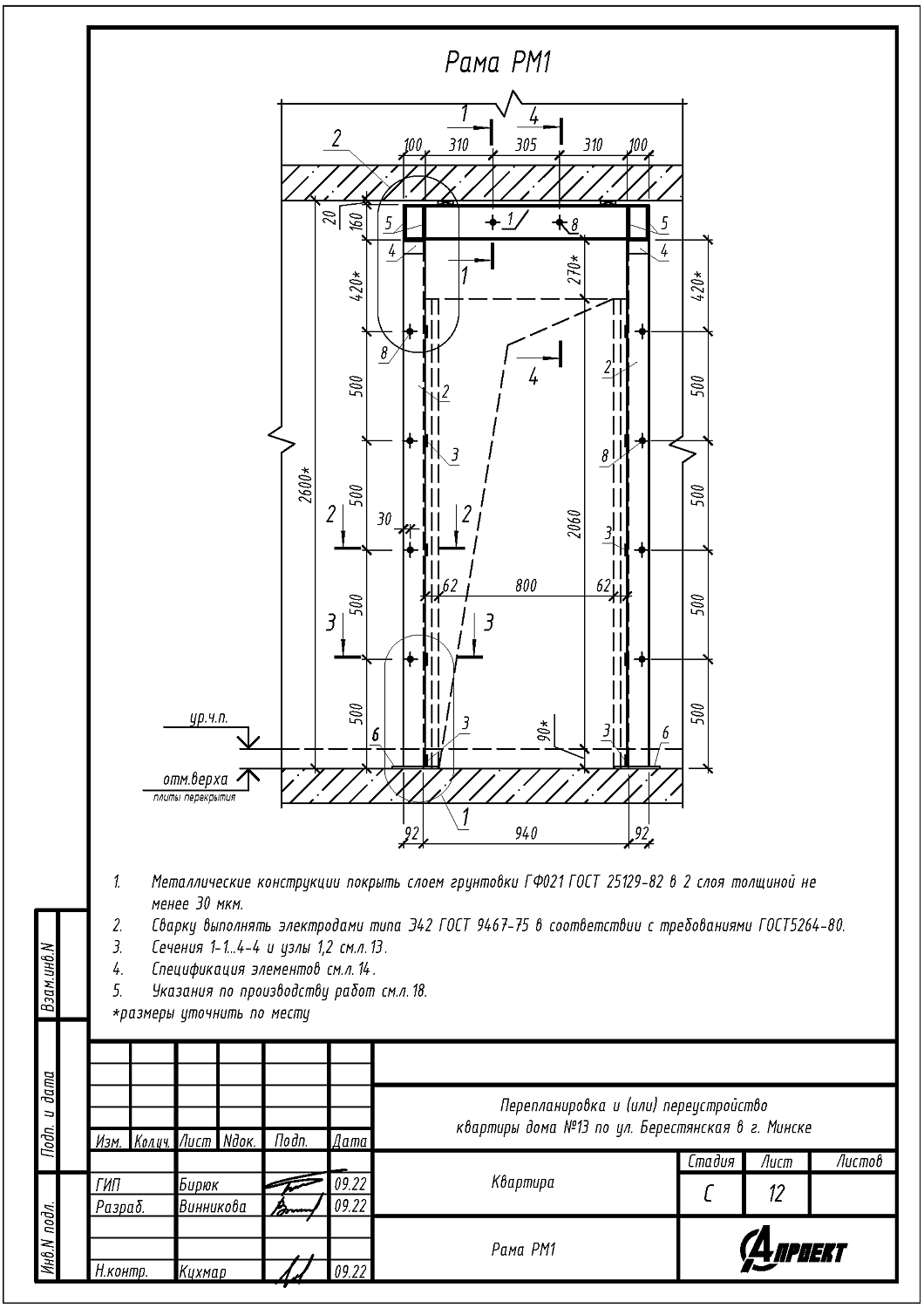
- Устройство дверного проёма в несущей стене между жилой и кухней;
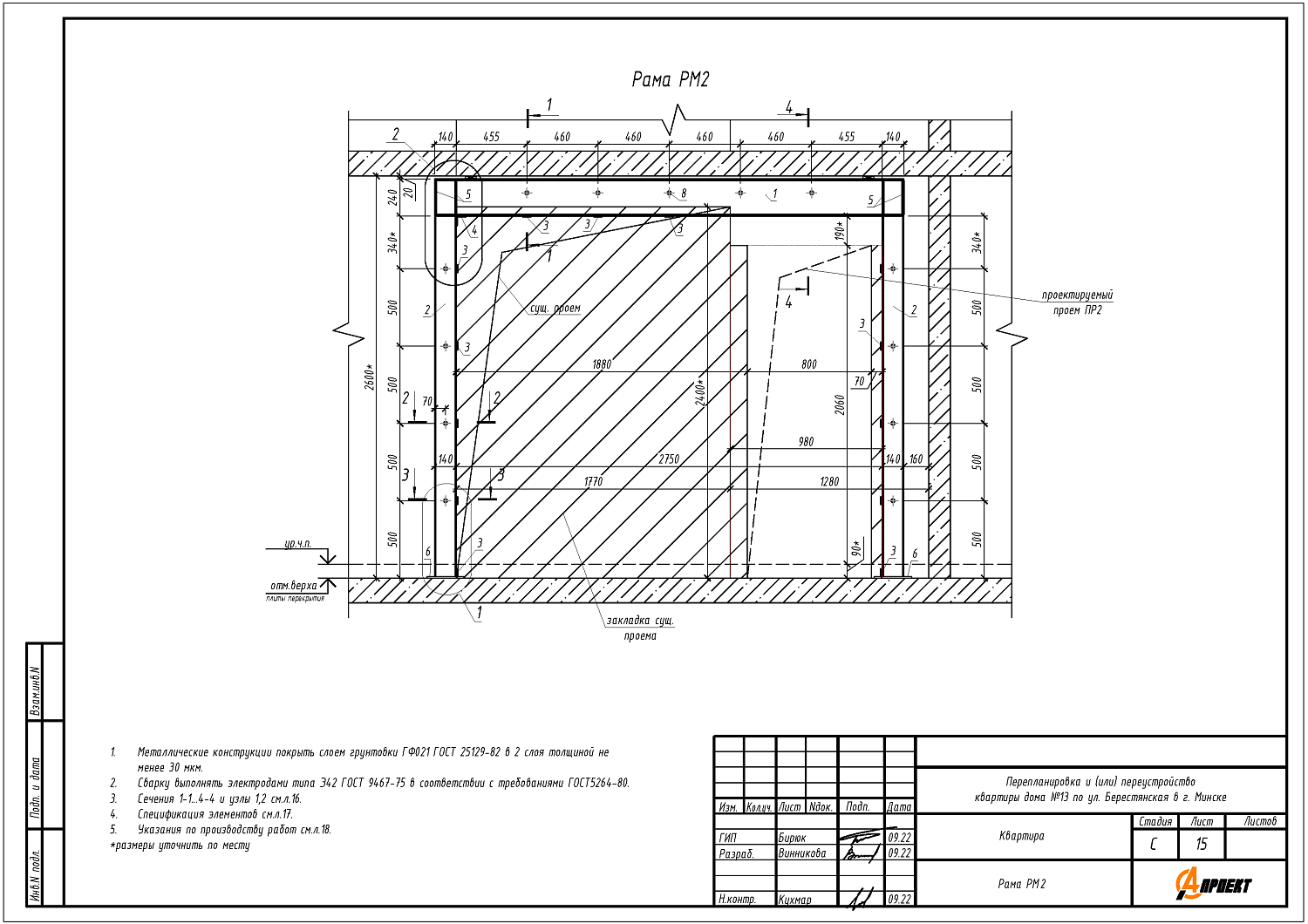
- Устройство дверного проёма в несущей стене между жилой и коридором;
- Закладка дверного проёма между жилой и коридором;
- Увеличение площади санузла;
- Устройство зашивок коммуникация и инсталляций на площади санузла.
Нами были разработаны следующие разделы проектной документации для согласования в исполкоме:
- АС - архитектурно-строительные решения.
