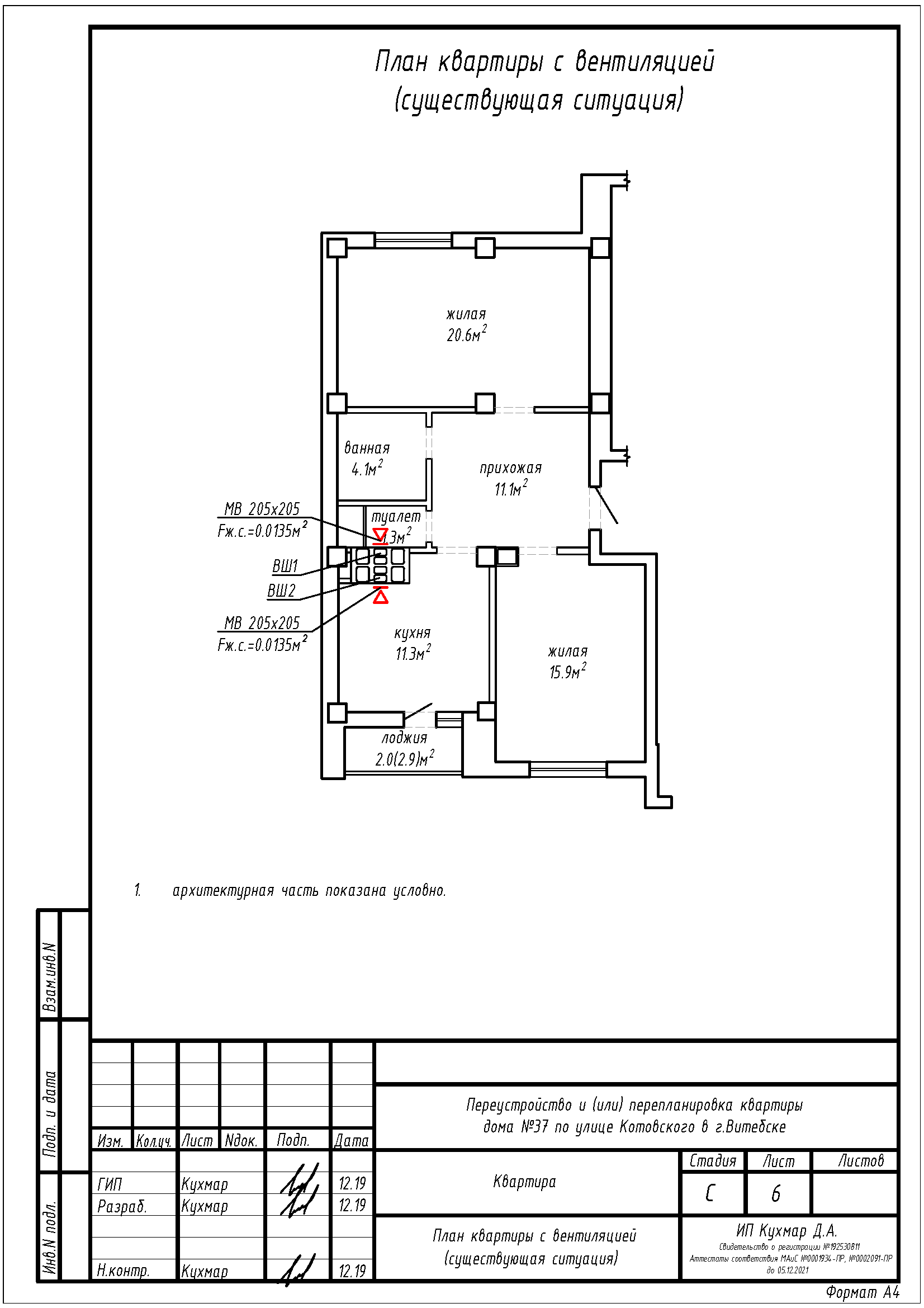
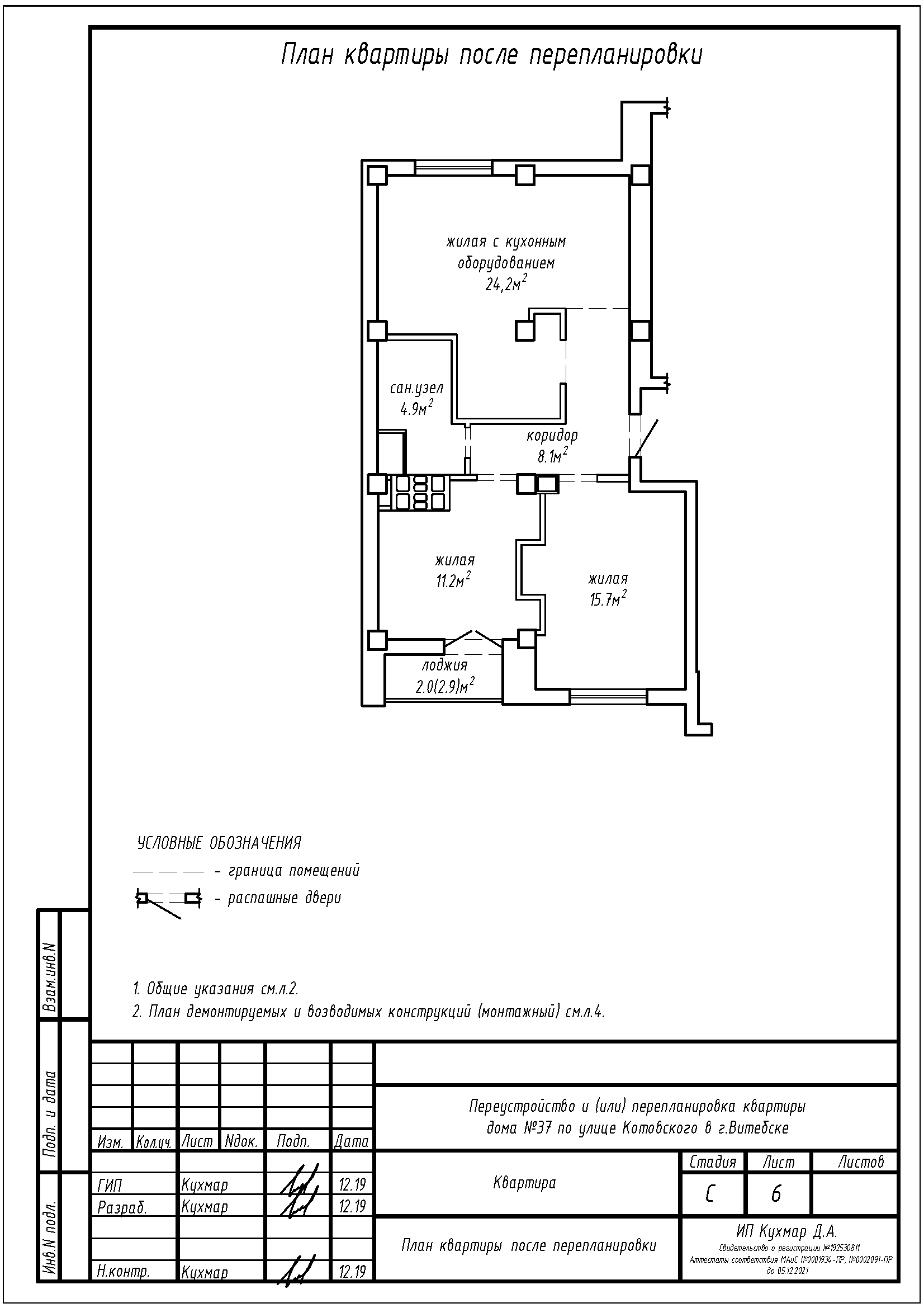
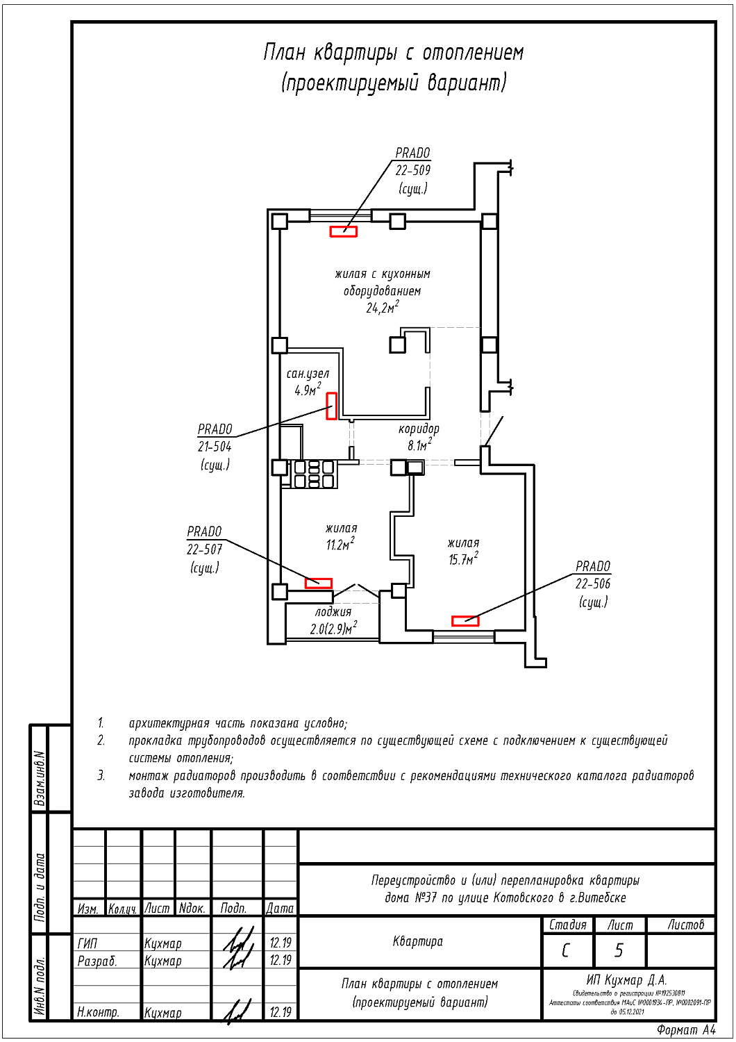
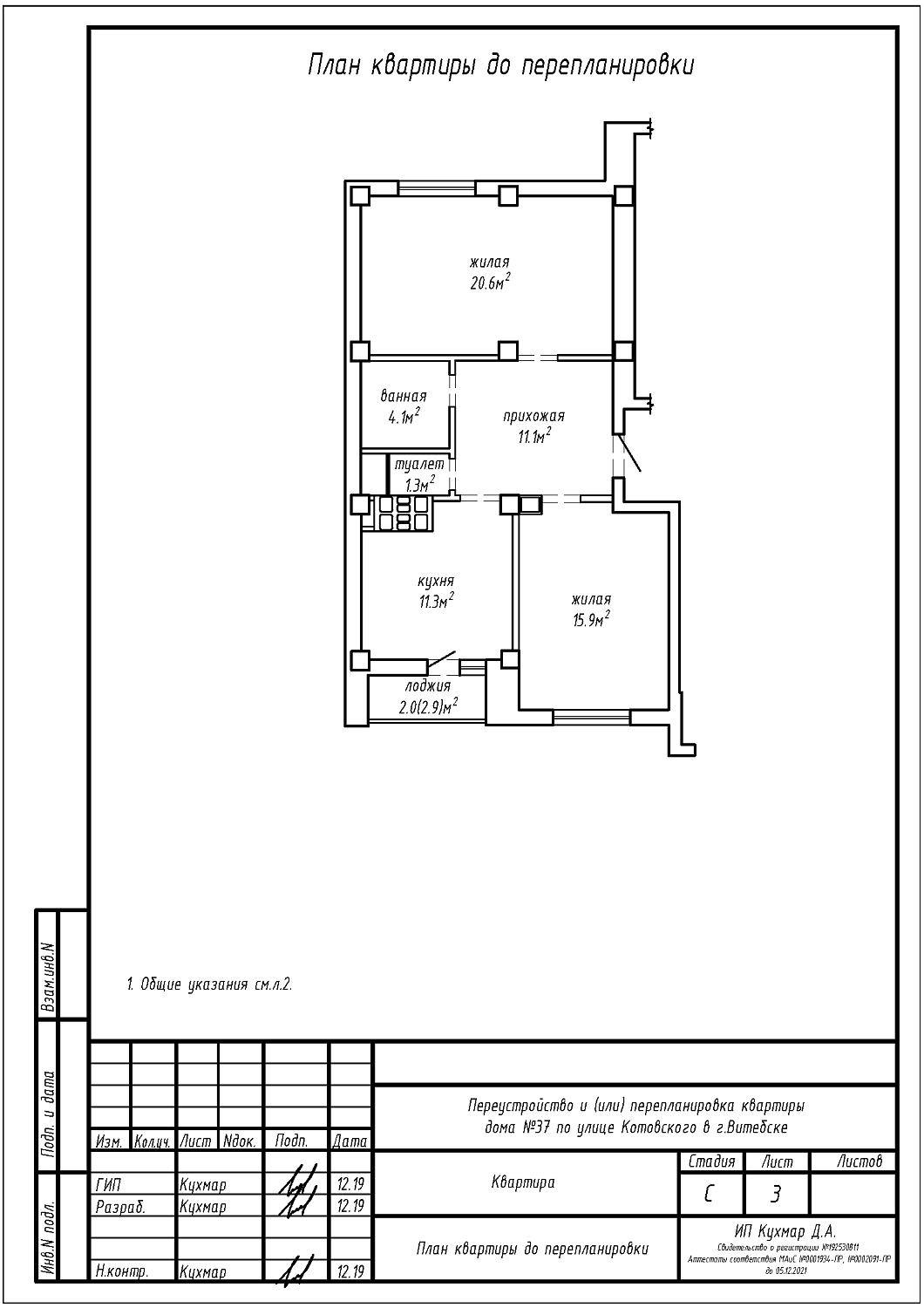
Перепланировка квартиры по ул. Котовского, 37 в г.Витебске
Пожелания заказчика:
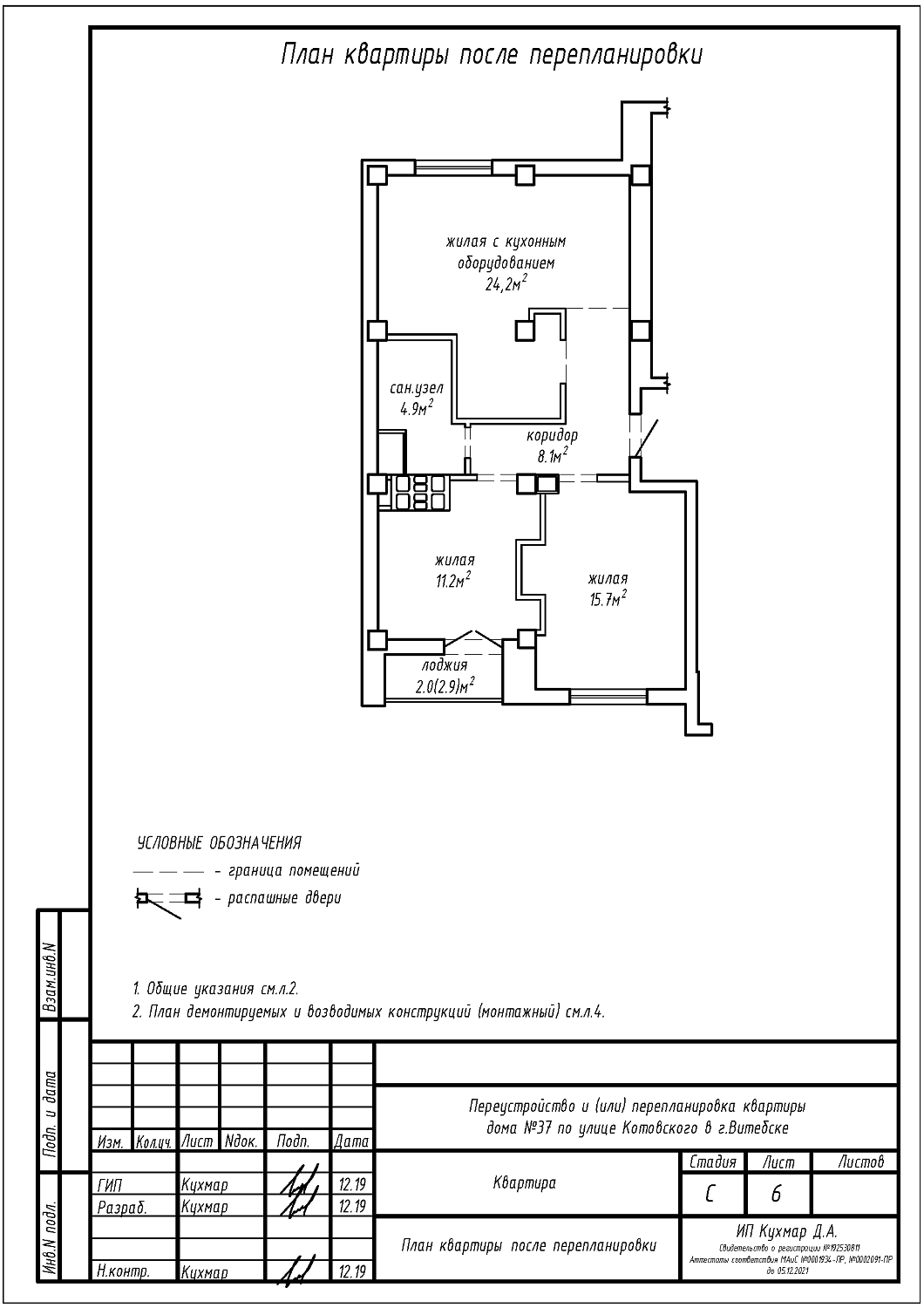
- Устройство жилой на кухне;
- Разборка перегородки и устройство новой перегородки между кухней и жилой комнатой;
- Объединение ванной и туалета в единый санузел;
- Перенос перегородки между ванной и коридором;
- Устройство жилой с кухонным оборудованием в площади коридора и в площади жилой комнаты путём разборки и устройства перегородки между коридором и жилой комнатой;
- Устройство короба в санузле;
- Разборка подоконной части наружной стены на кухне и установка балконного блока;
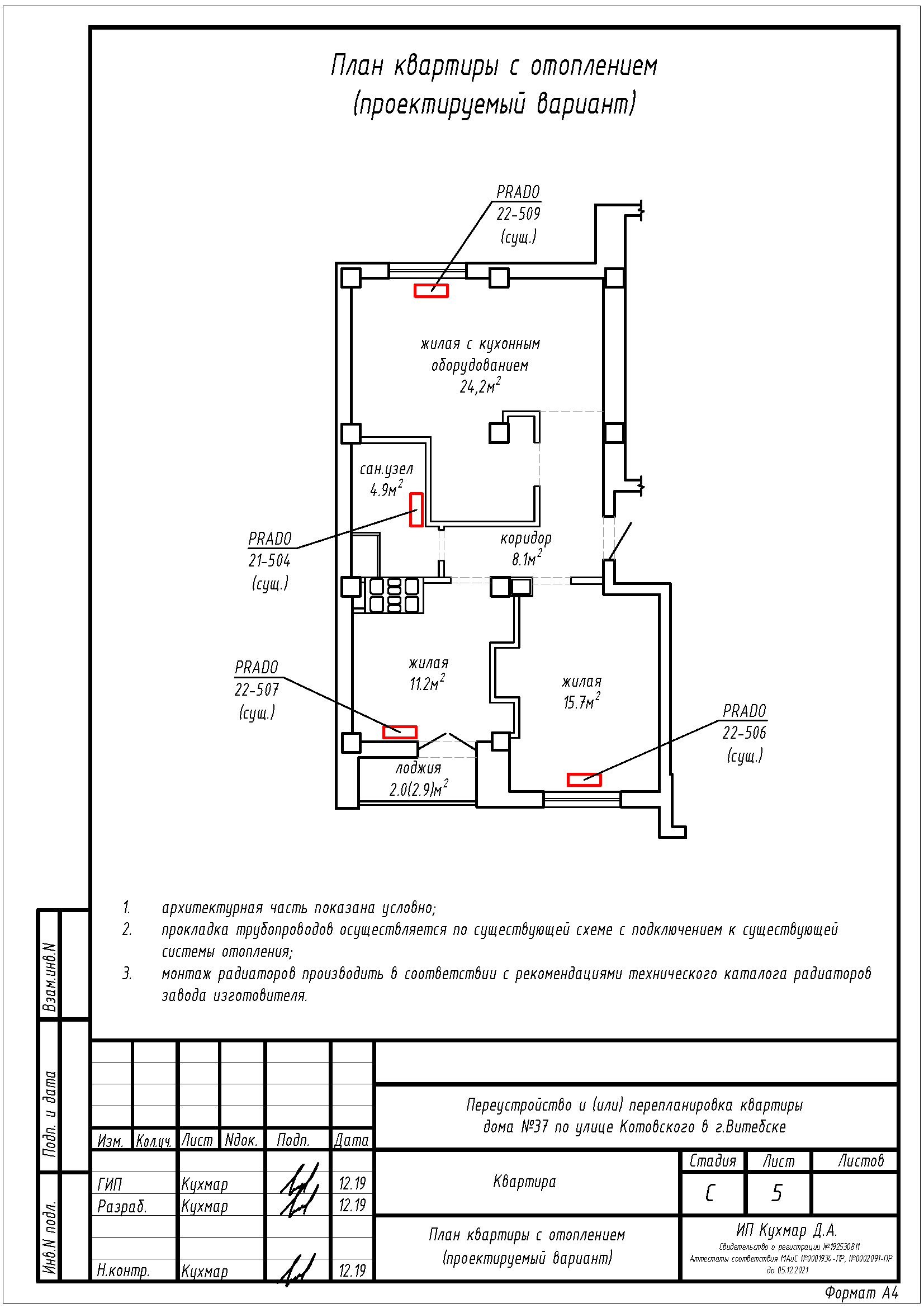
- Перенос отопительных приборов.
Нами были разработаны следующие разделы проектной документации для согласования в исполкоме:
- АС - архитектурно-строительные решения;
- ОВ - отопление и вентиляция.
