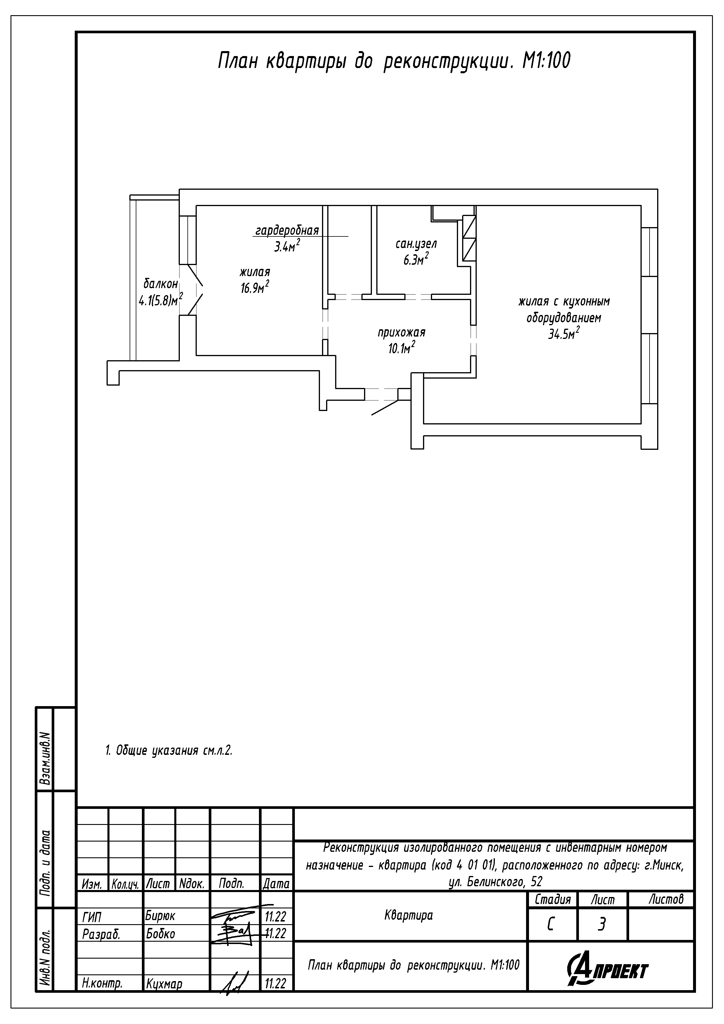
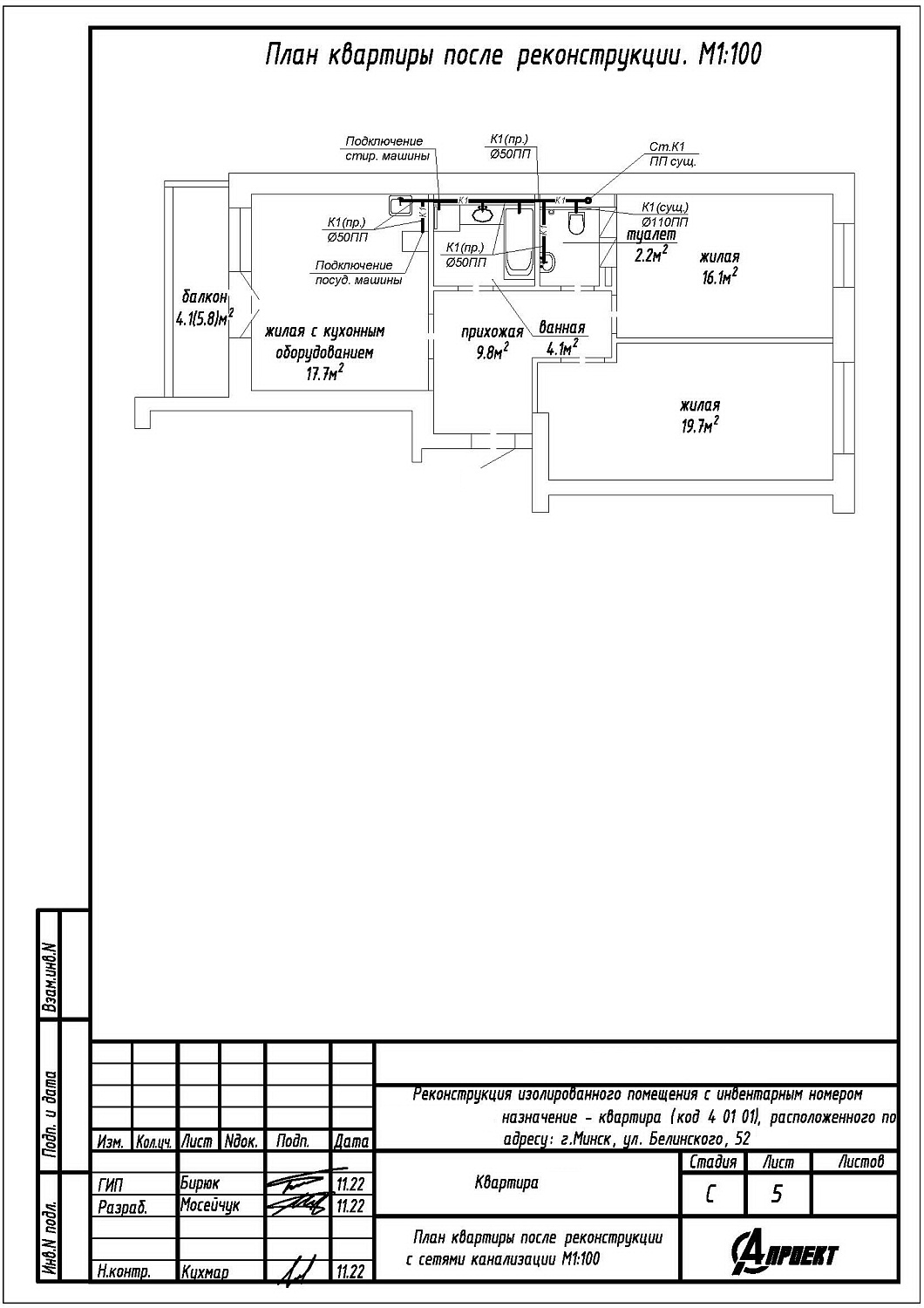
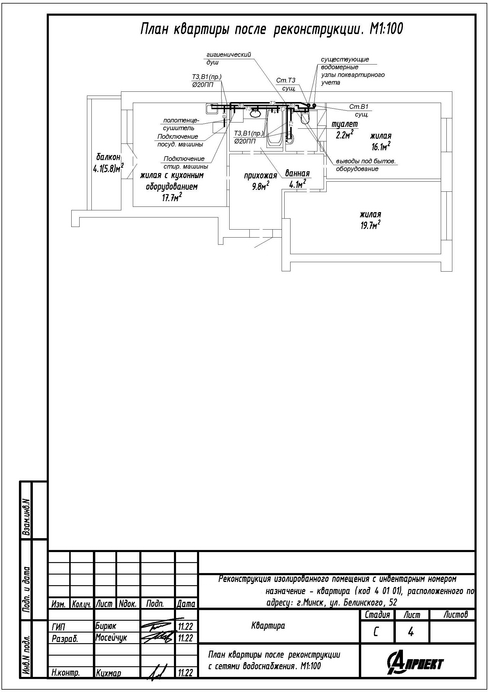
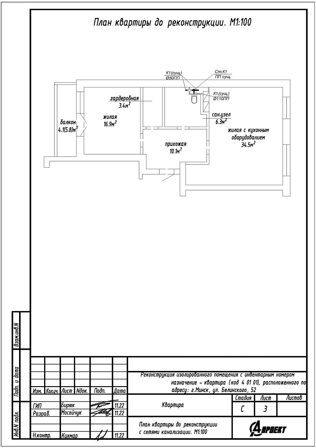
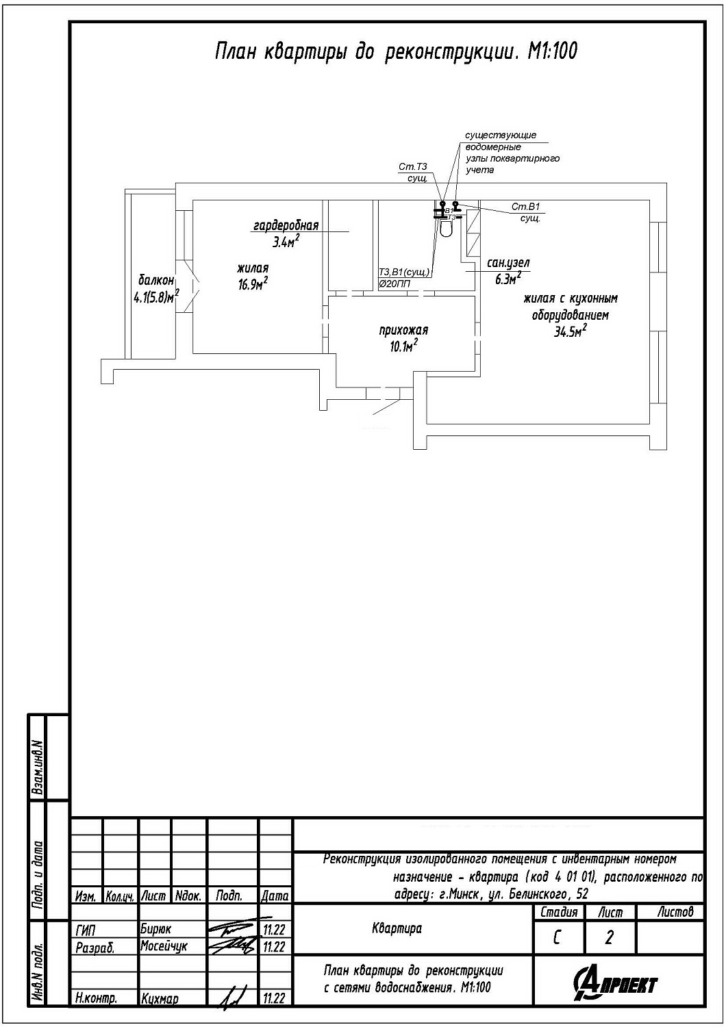
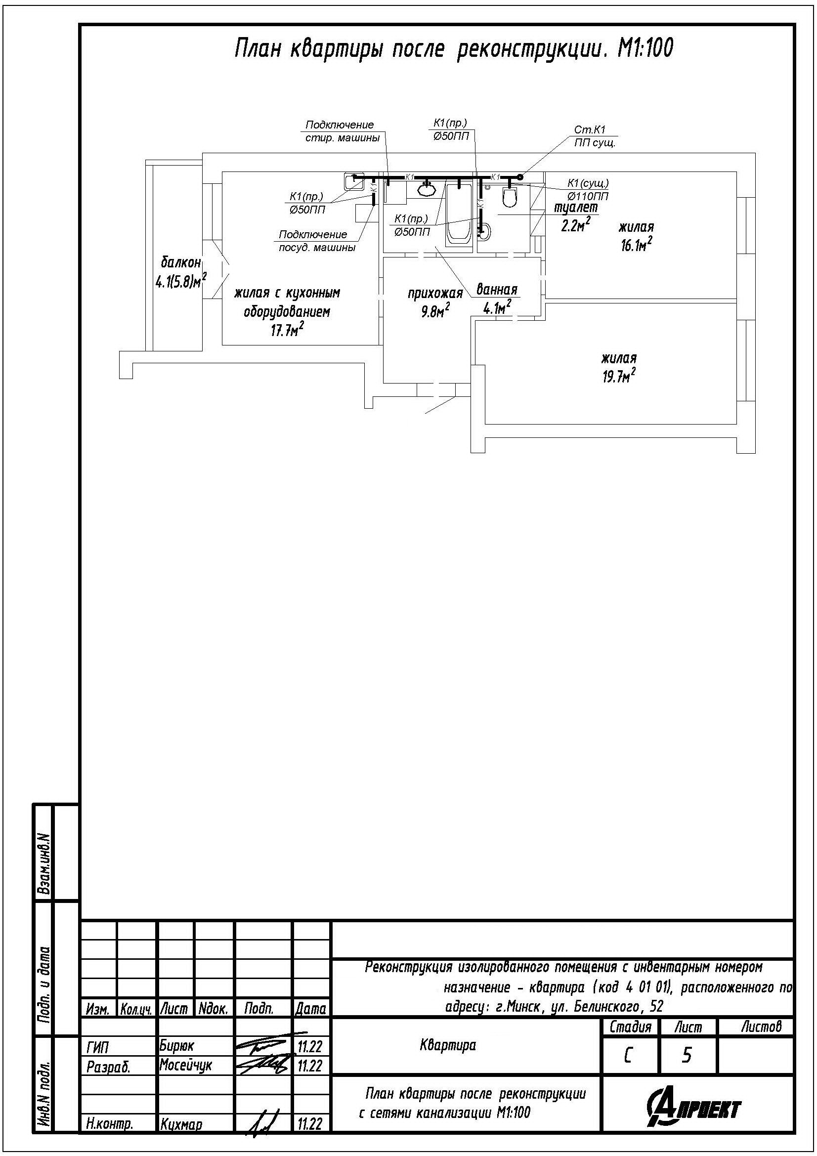
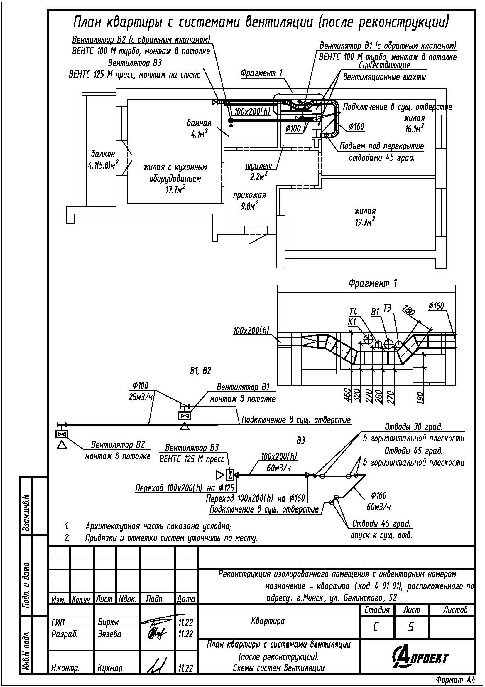
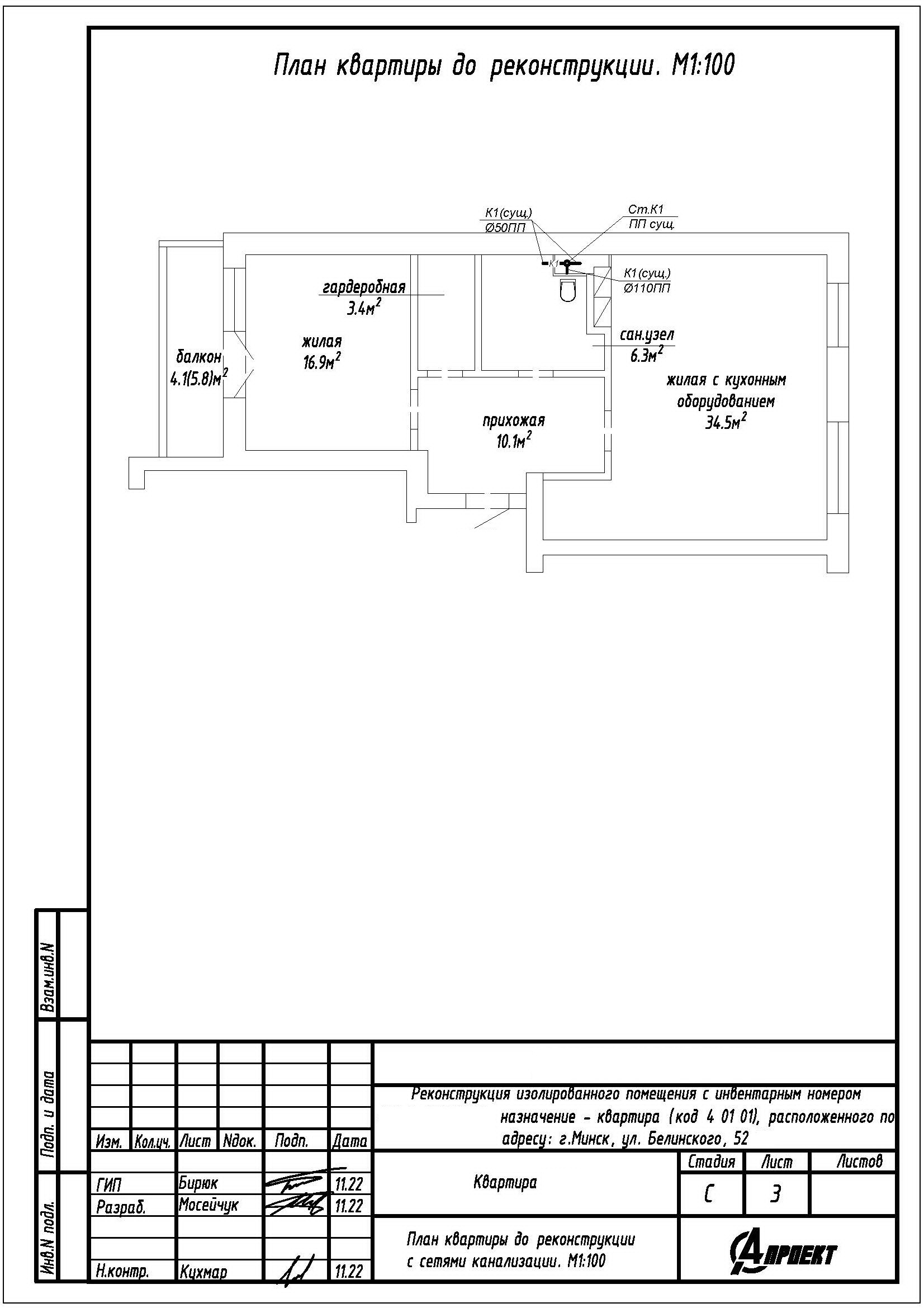
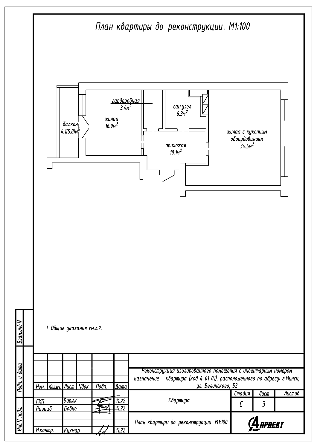
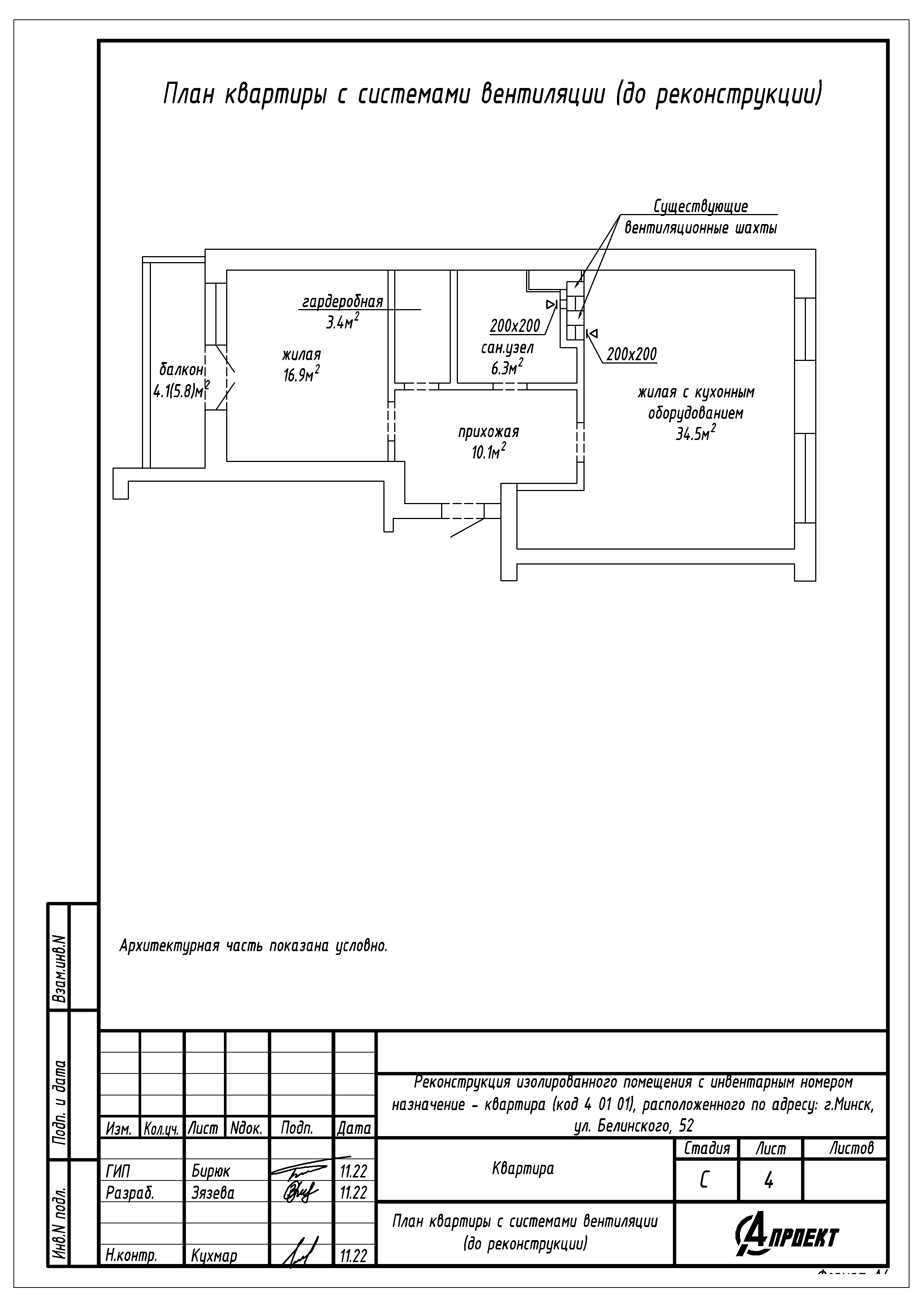
Реконструкция квартиры по ул. Белинского, 52 в г.Минске
Пожелания заказчика:
- Перенос жилой с кухонным оборудованием в жилую;
- Устройство двух жилых на площади жилой с кухонным оборудованием;
- Устройство туалета на площади санузла;
- Устройство ванной на части площади санузла и гардеробной;
- Изменение габаритов прихожей.
Нами были разработаны следующие разделы проектной документации для согласования в исполкоме:
- АС - архитектурно-строительные решения;
- ОВ - отопление и вентиляция;
- ВК - водоснабжение и канализация.
