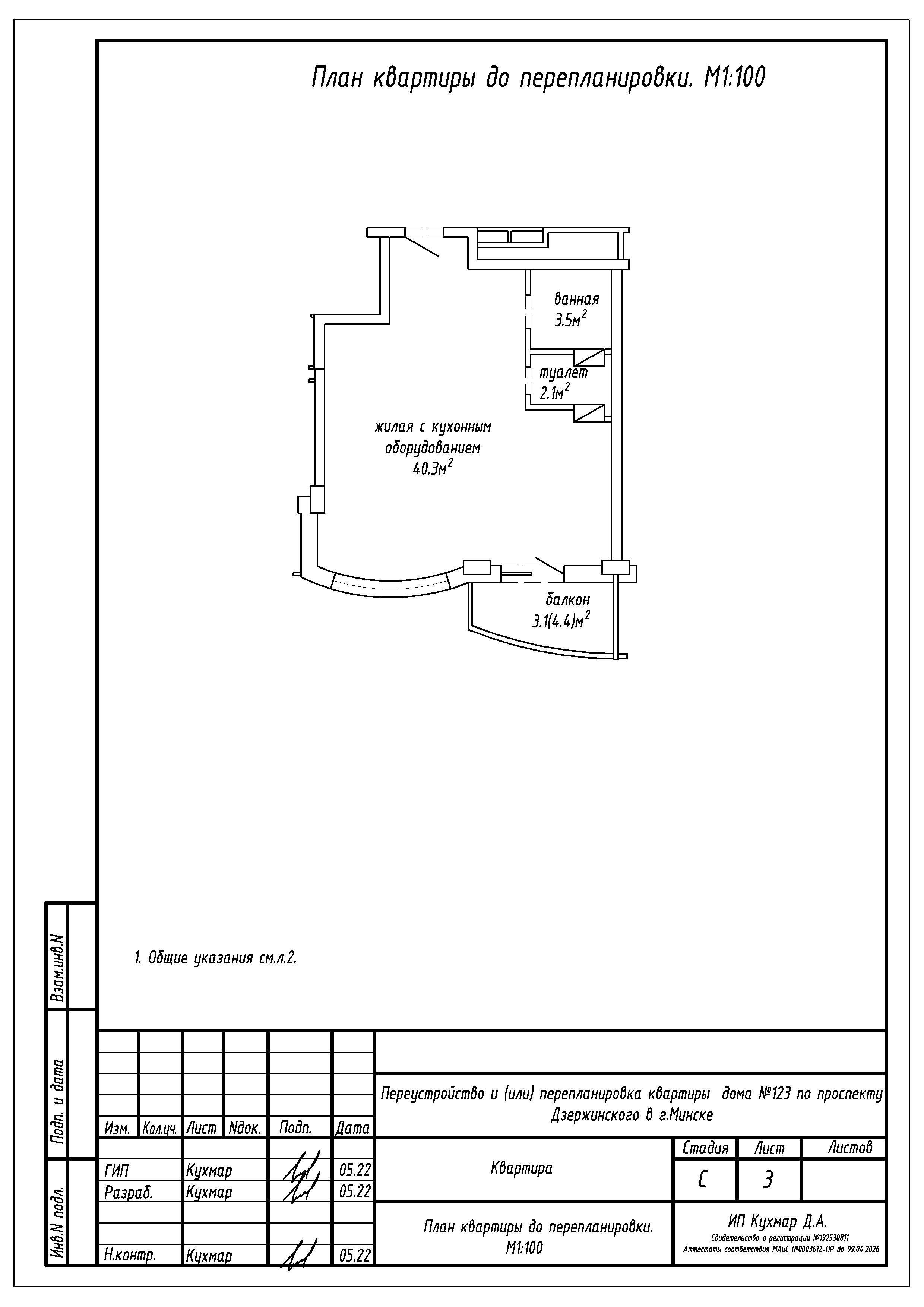
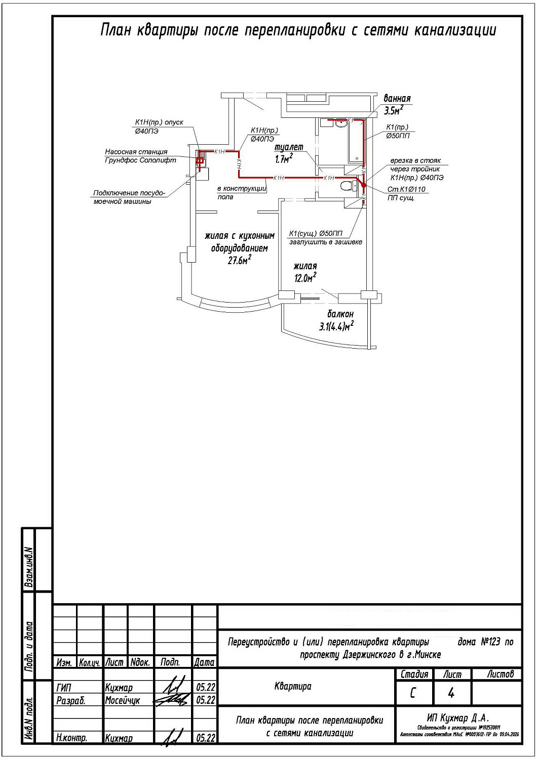
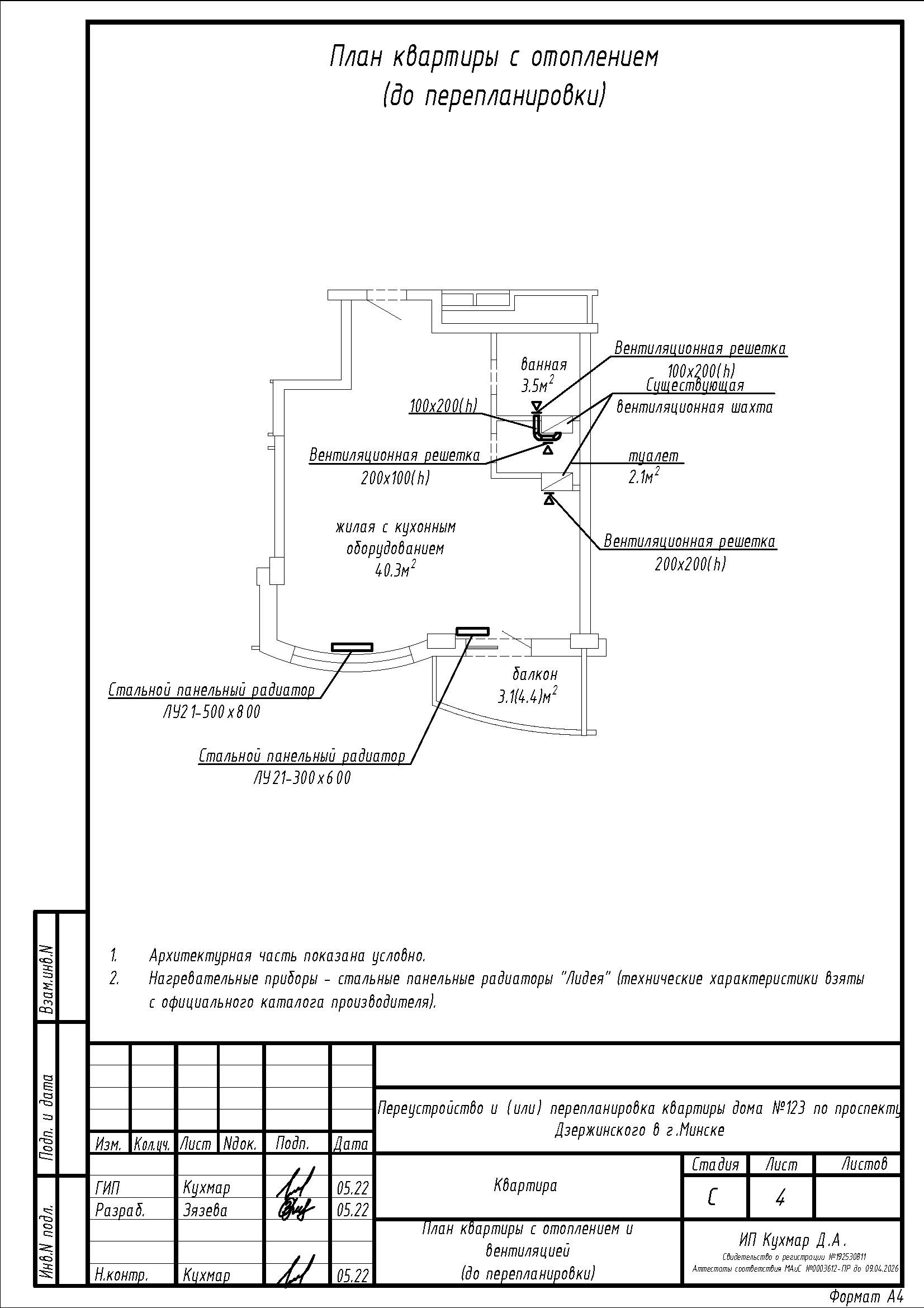
Реконструкция квартиры по пр-ту Дзержинского, 123 в ЖК «Мегаполис»
Пожелания заказчика:
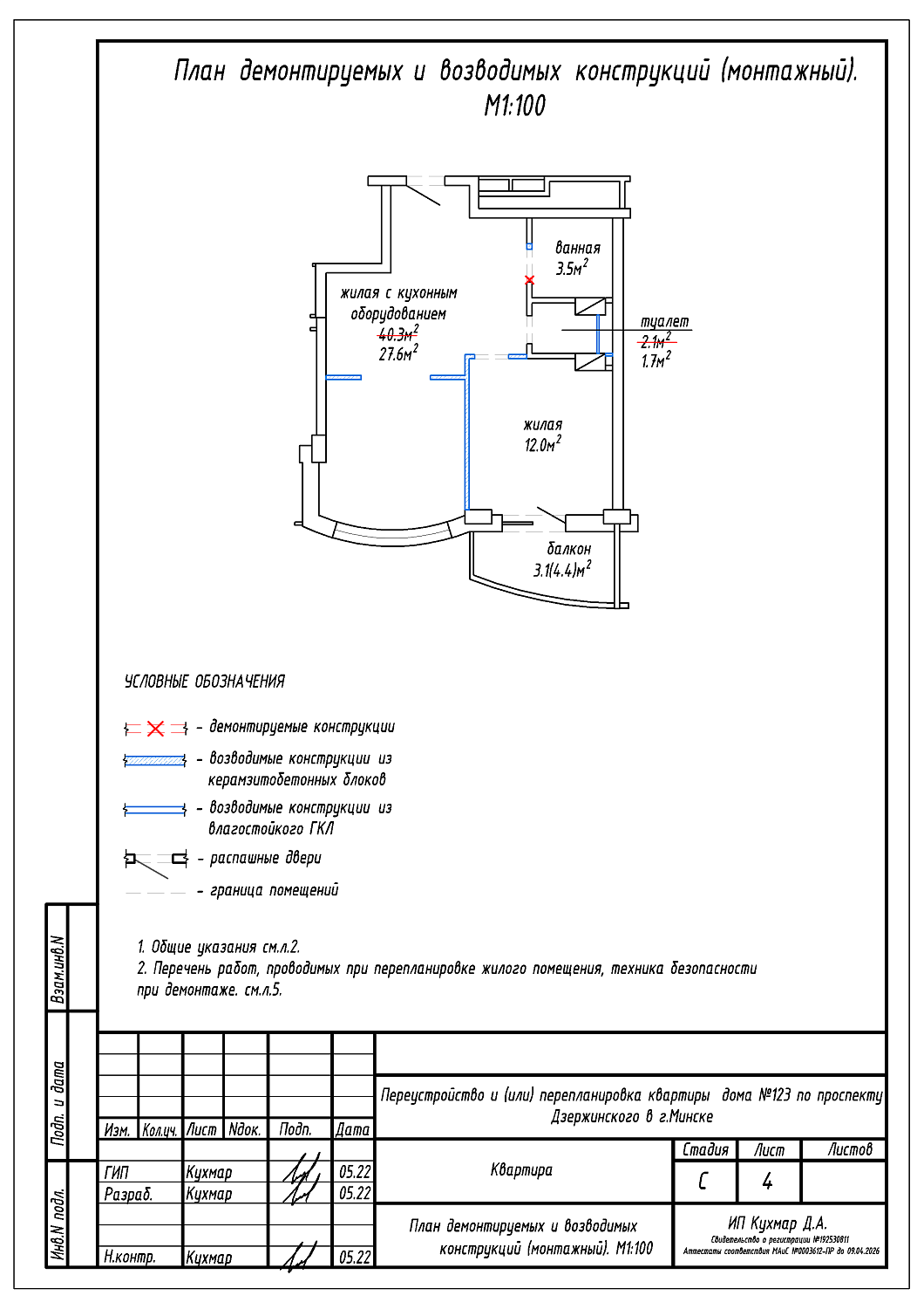
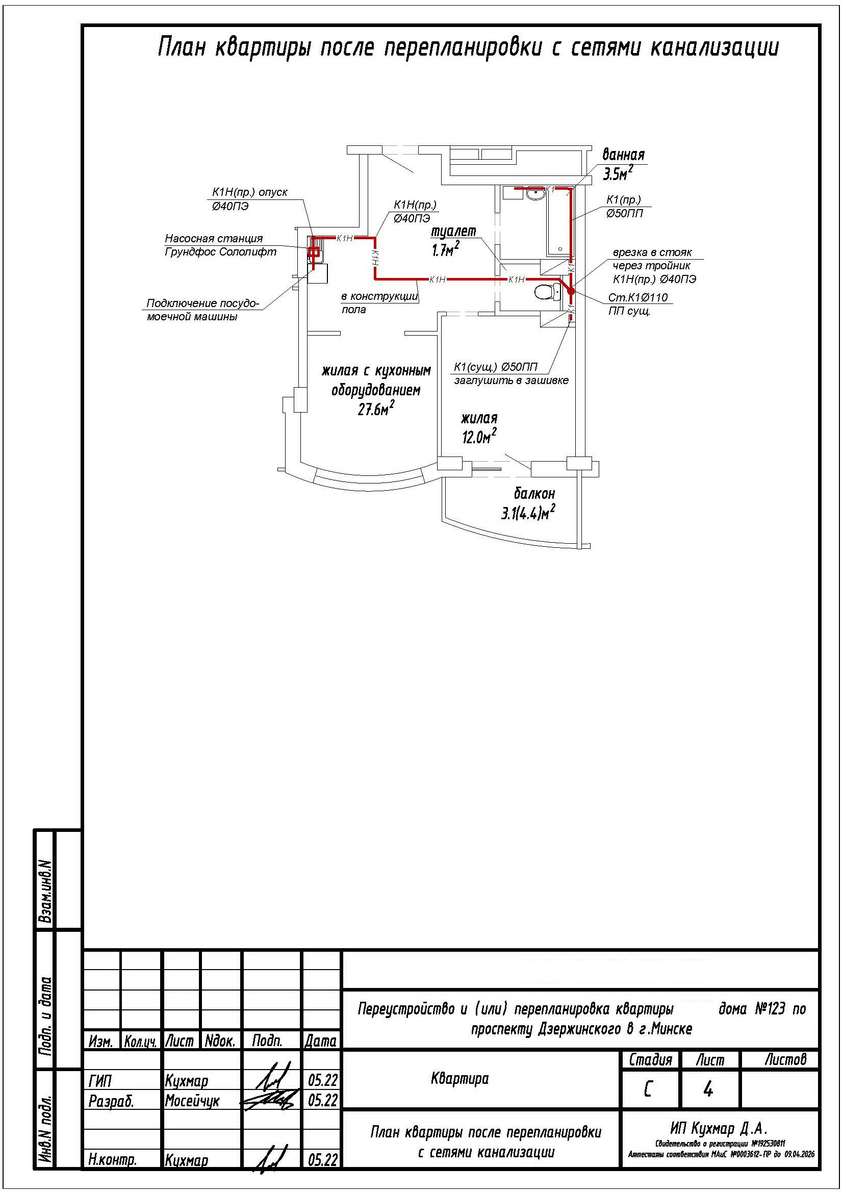
- Устройство перегородок с дверными проемами в жилой с кухонным оборудованием с целью устройства жилой с кухонным оборудованием и жилой комнаты;
- Перенос дверного проема вдоль перегородки между ванной и жилой с кухонным оборудованием;
- Устройство зашивки в туалете;
- Перенос и замена отопительного прибора.
Нами были разработаны следующие разделы проектной документации для согласования в исполкоме:
- АС - архитектурно-строительные решения;
- ОВ - отопление и вентиляция;
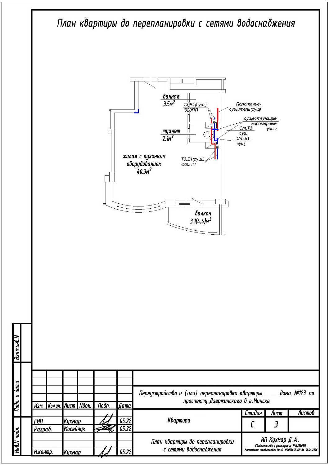
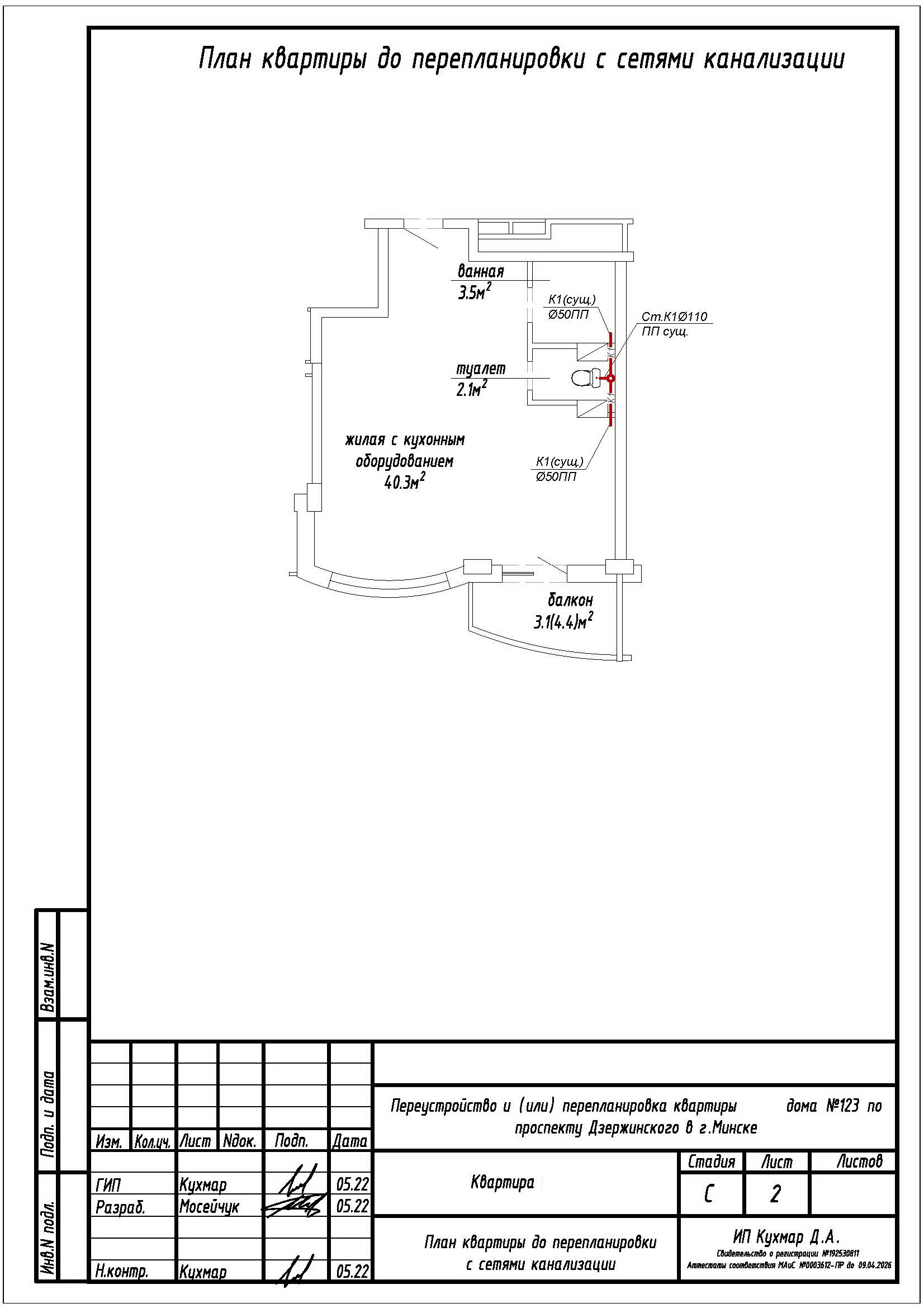
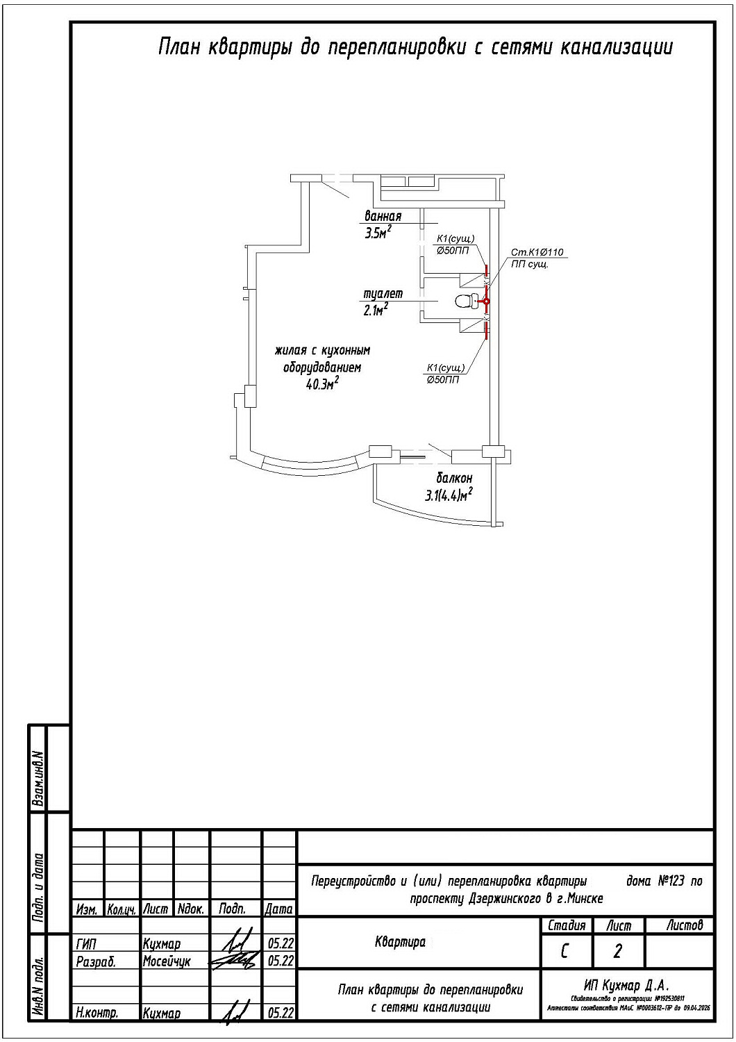
- ВК - водоснабжение и канализация.
