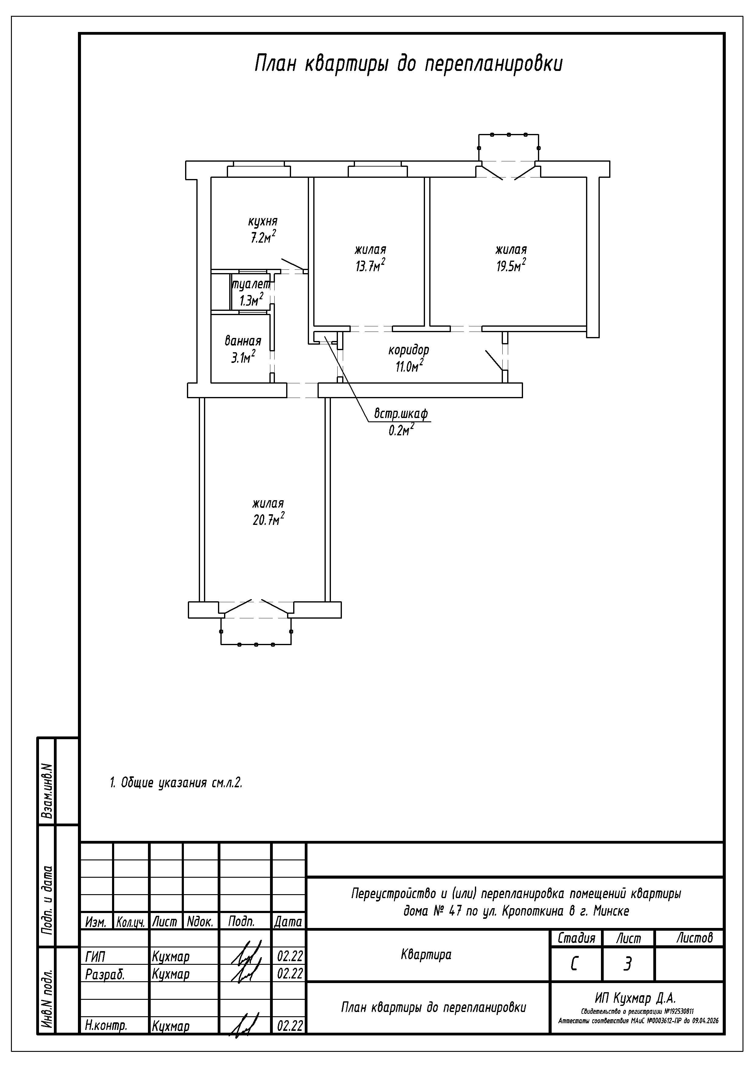
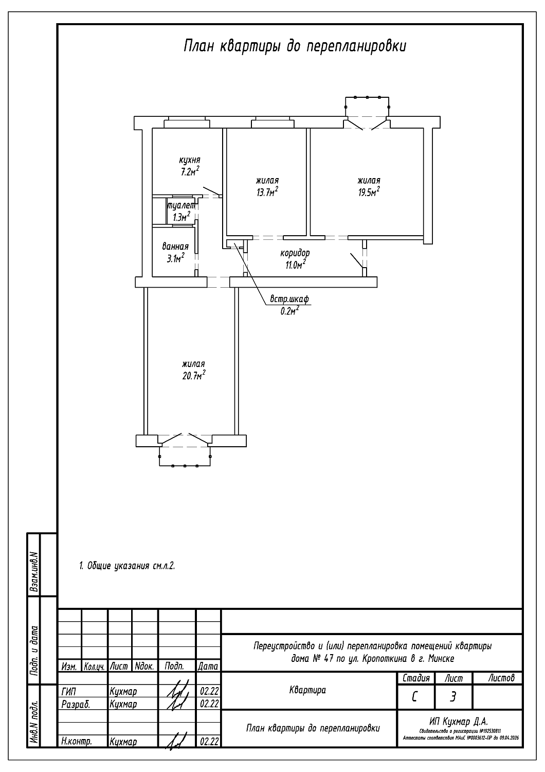
Перепланировка квартиры по ул. Кропоткина, 47 г. Минске
Пожелания заказчика:
- Замена дверного блока входной двери со сменой направления открывания;
- Демонтаж перегородок с дверными проемами между туалетом и ванной, кухней и жилой 13.7м2, встроенным шкафом и коридором, с последующим устройством перегородок на части площади туалета и сан.узла, с целью устройства объединенного сан.узла, кухни и коридора;
- Смещение дверного проема в перегородке между ванной и коридором;
- Увеличение дверного проема между коридором и жилой 19.5 м2 с последующим устройством перегородок на части площади жилой 19.5 м2 с целью устройства встроенного шкафа;
- Устройство дверного проема в перегородке между жилой 13.7 м2 и жилой 19.5 м2;
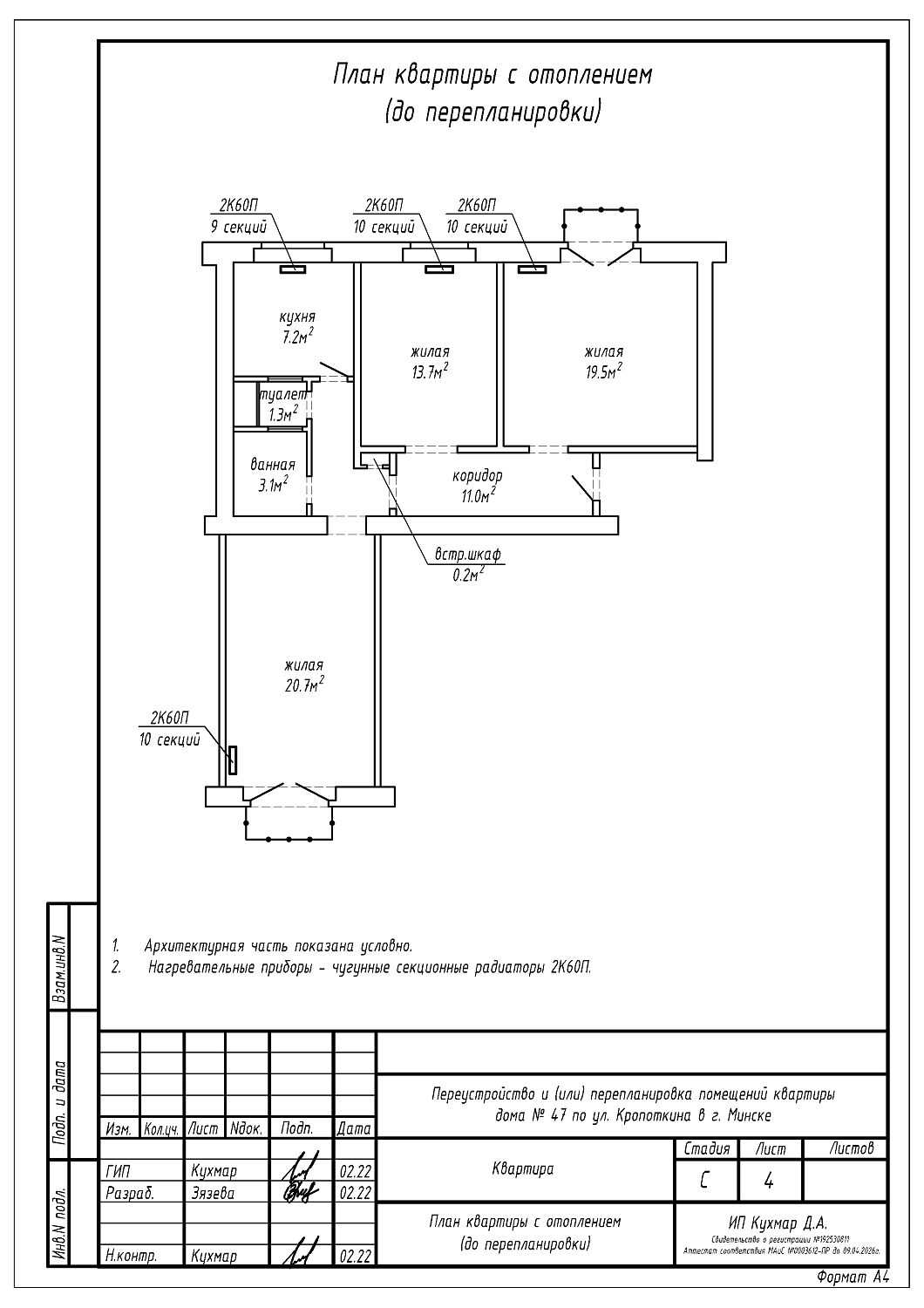
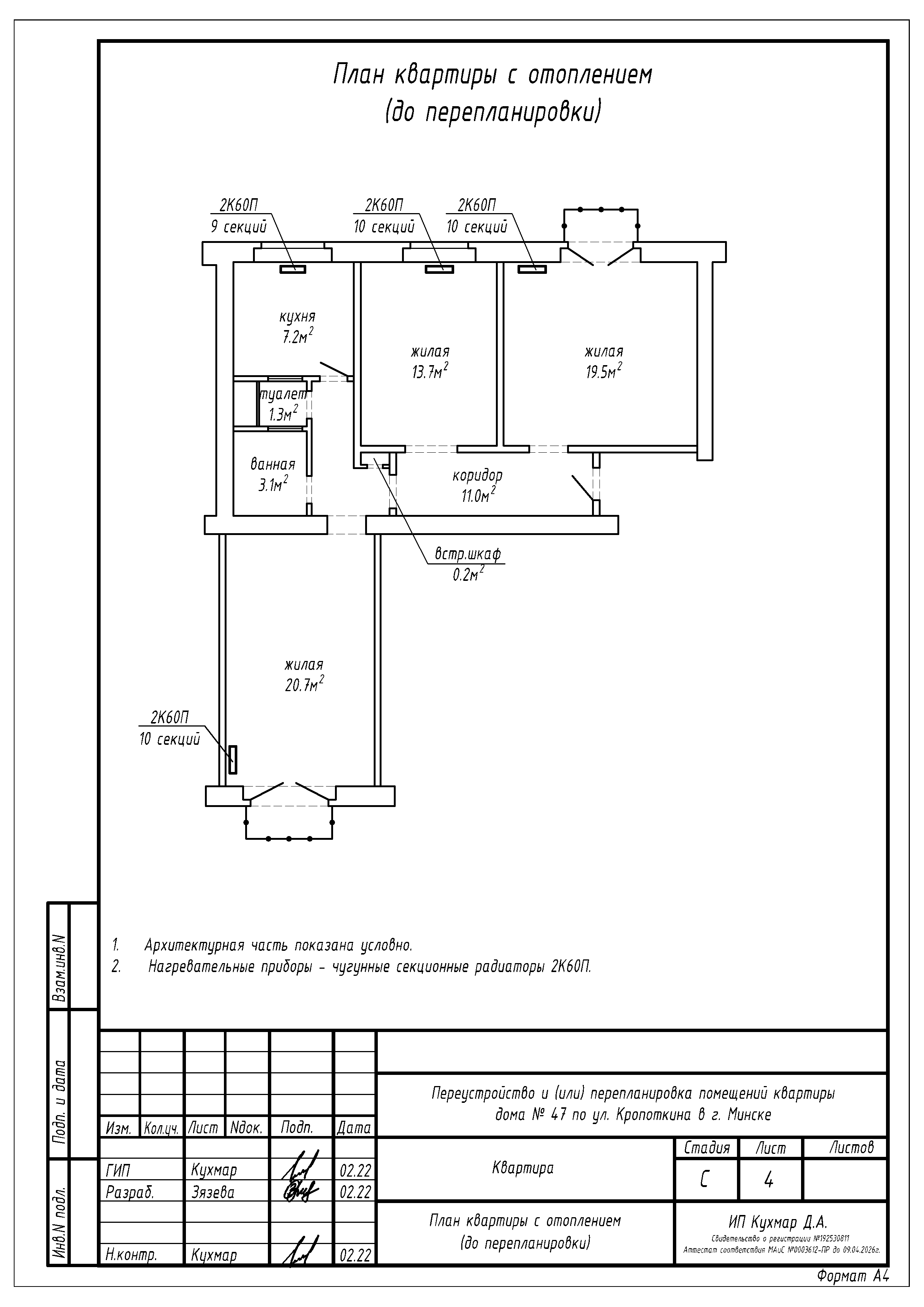
- Замена и перенос отопительных приборов;
- Переход с газа на электро.
Нами были разработаны следующие разделы проектной документации для согласования в исполкоме:
- АС - архитектурно-строительные решения;
- ОВ - отопление и вентиляция;
- ЭМ - электрооборудование. Монтаж.
