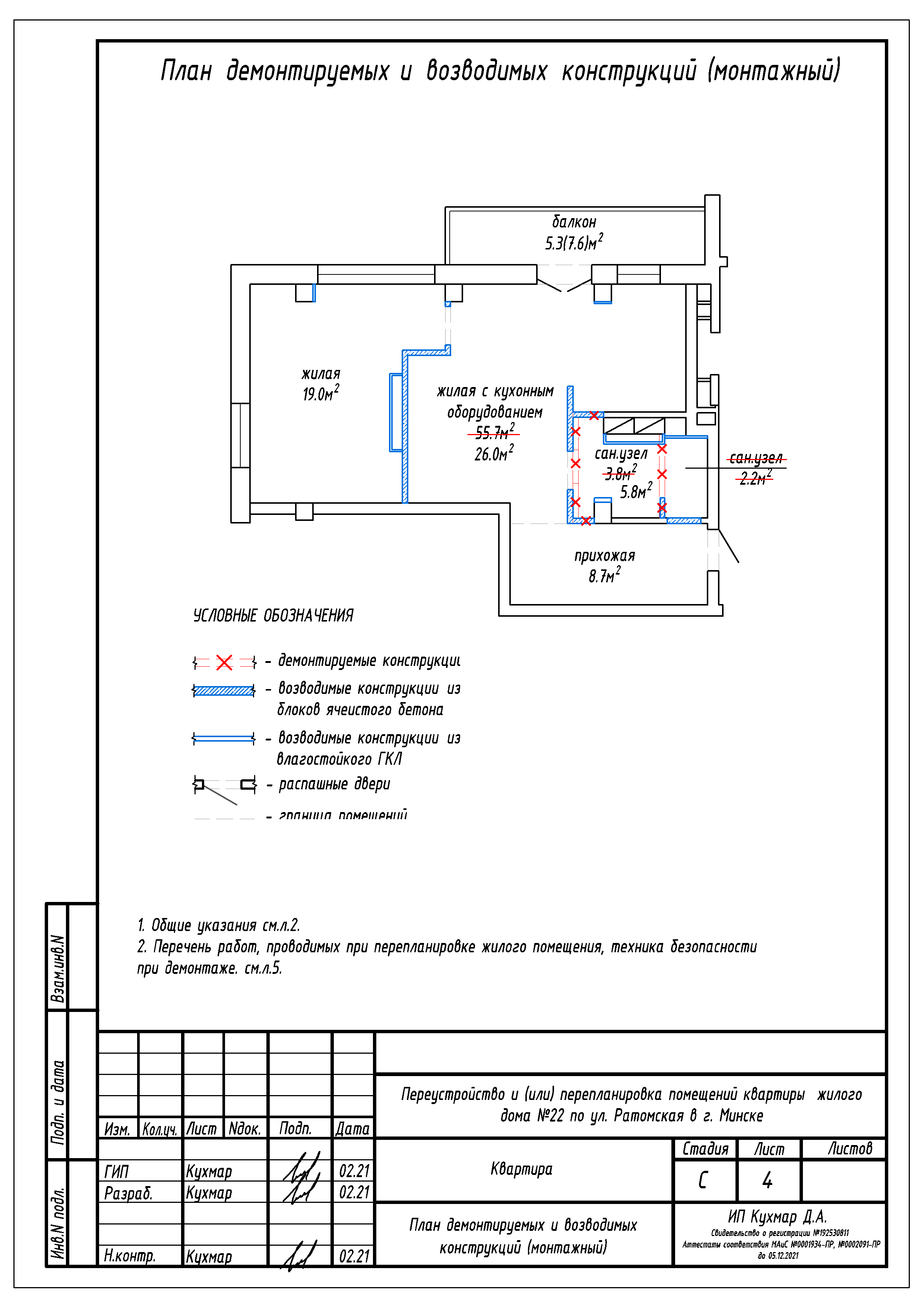
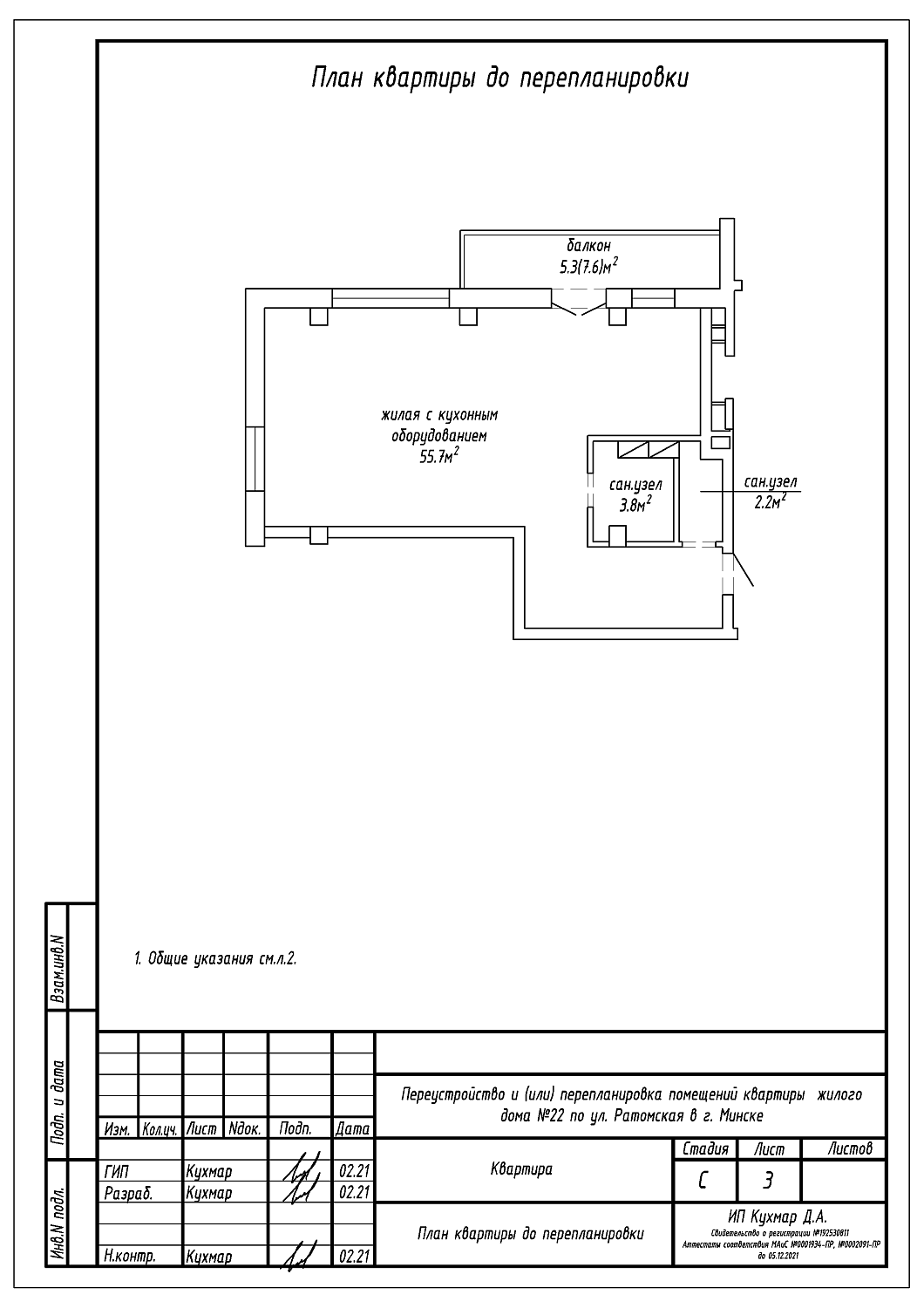
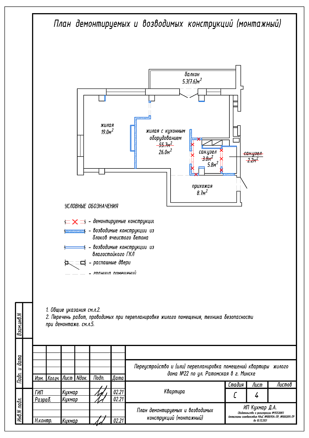
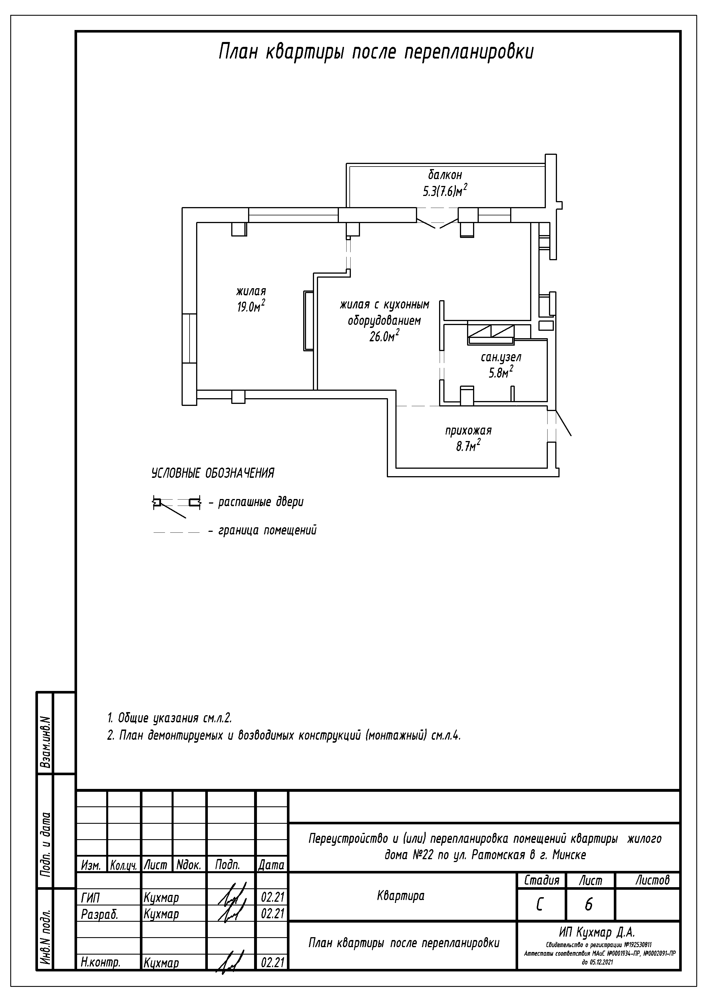
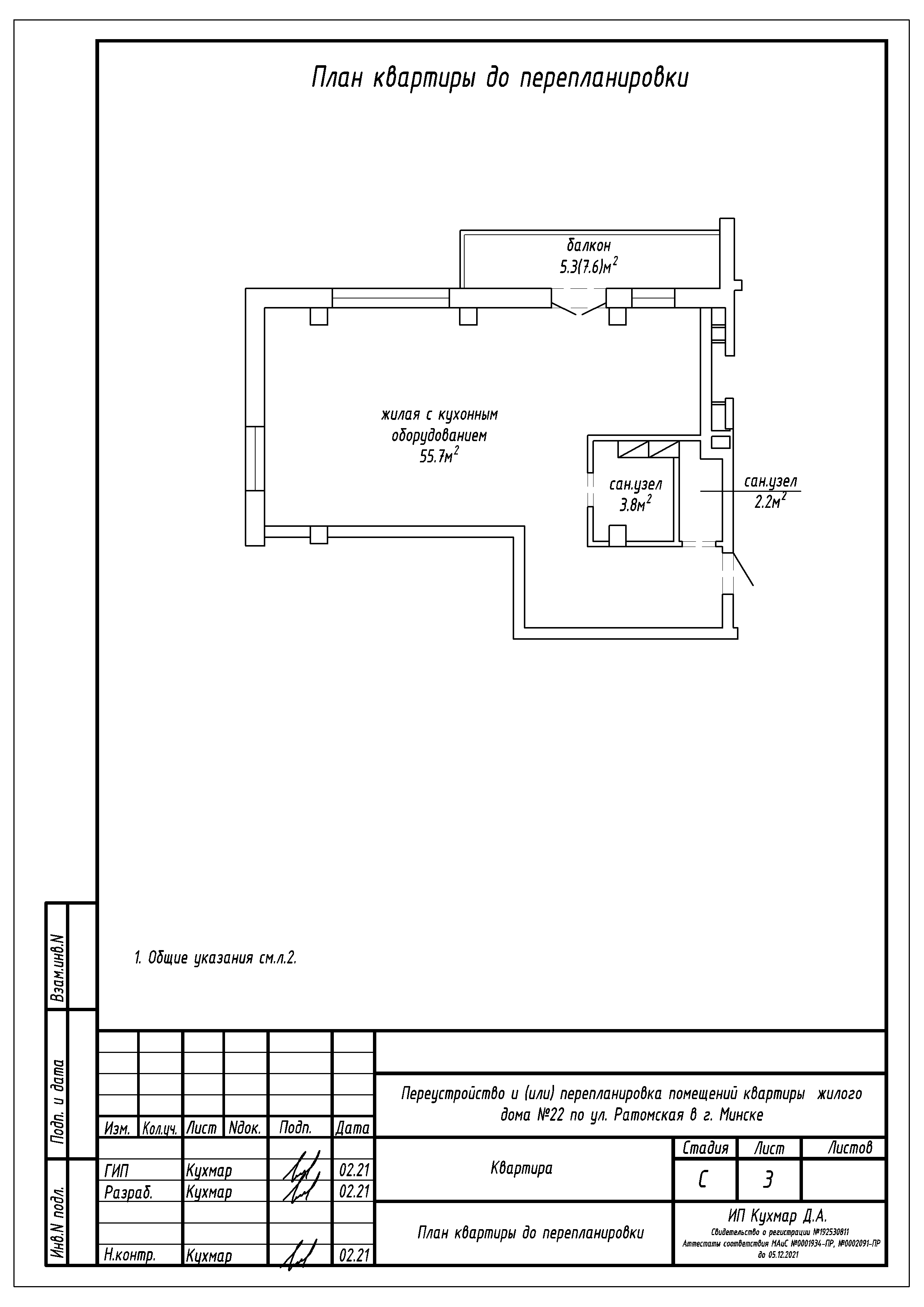
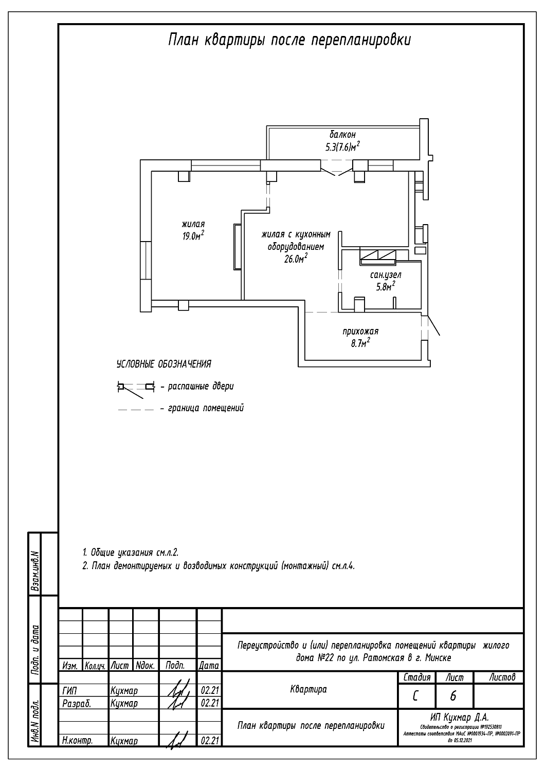
Перепланировка квартиры по ул. Ратомская, 22 в ЖК «Олимпик Парк»
Пожелания заказчика:
- Объединение двух санузлов в один санузел;
- Увеличение санузла за счет жилой с кухонным оборудованием;
- Разделение общего помещения "жилая с кухонным оборудованием" на отдельную жилую и жилую с кухонным оборудованием.
Нами были разработаны следующие разделы проектной документации для согласования в исполкоме:
- АС - архитектурно-строительные решения.
