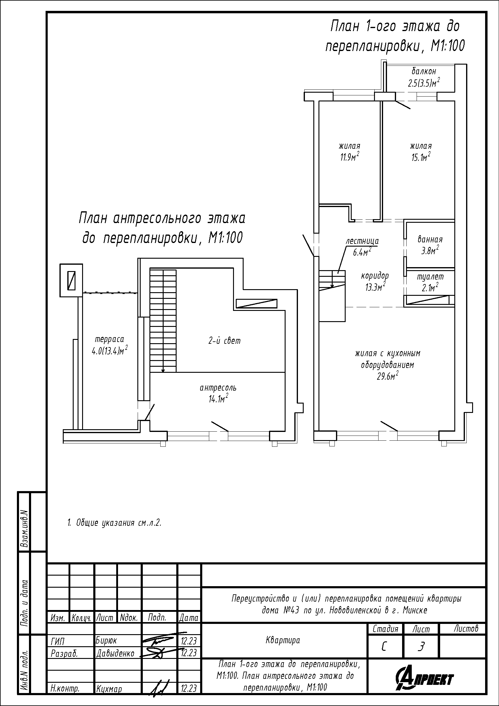
Перепланировка квартиры по ул. Нововиленская, 43 в ЖК «Левада»
Пожелания заказчика:
- Демонтаж перегородок между жилой комнатой площадью 11.9 кв.м и коридором с последующим устройством новых перегородок;
- Устройство перегородок между жилой комнатой площадью 15.1 кв.м и коридором;
- Демонтаж лестницы между первым и вторым уровнем квартиры с последующим устройством новой лестницы;
- Устройство инсталляции в туалете;
- Устройство зашивок на части площади жилой с кухонным оборудованием;
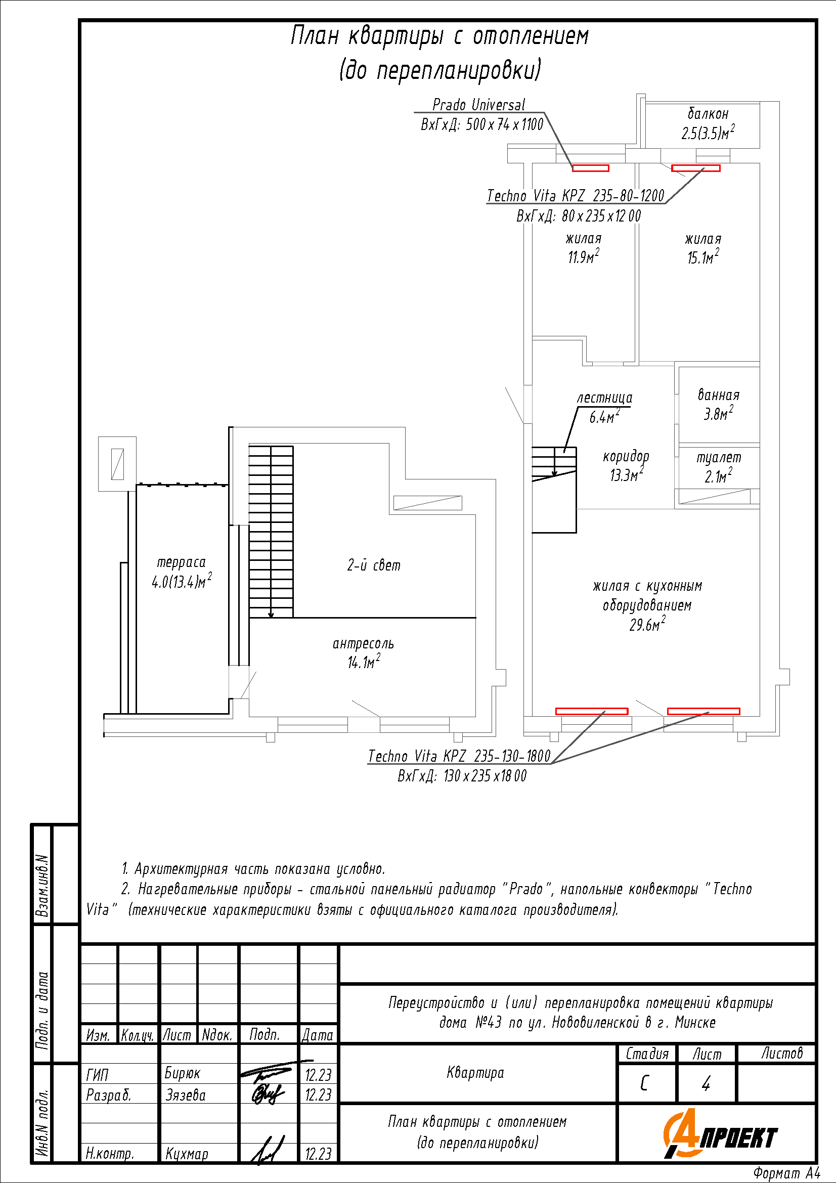
- Замена и перенос отопительных приборов.
Нами были разработаны следующие разделы проектной документации для согласования в исполкоме:
- АС - архитектурно-строительные решения;
- ОВ - отопление и вентиляция.
