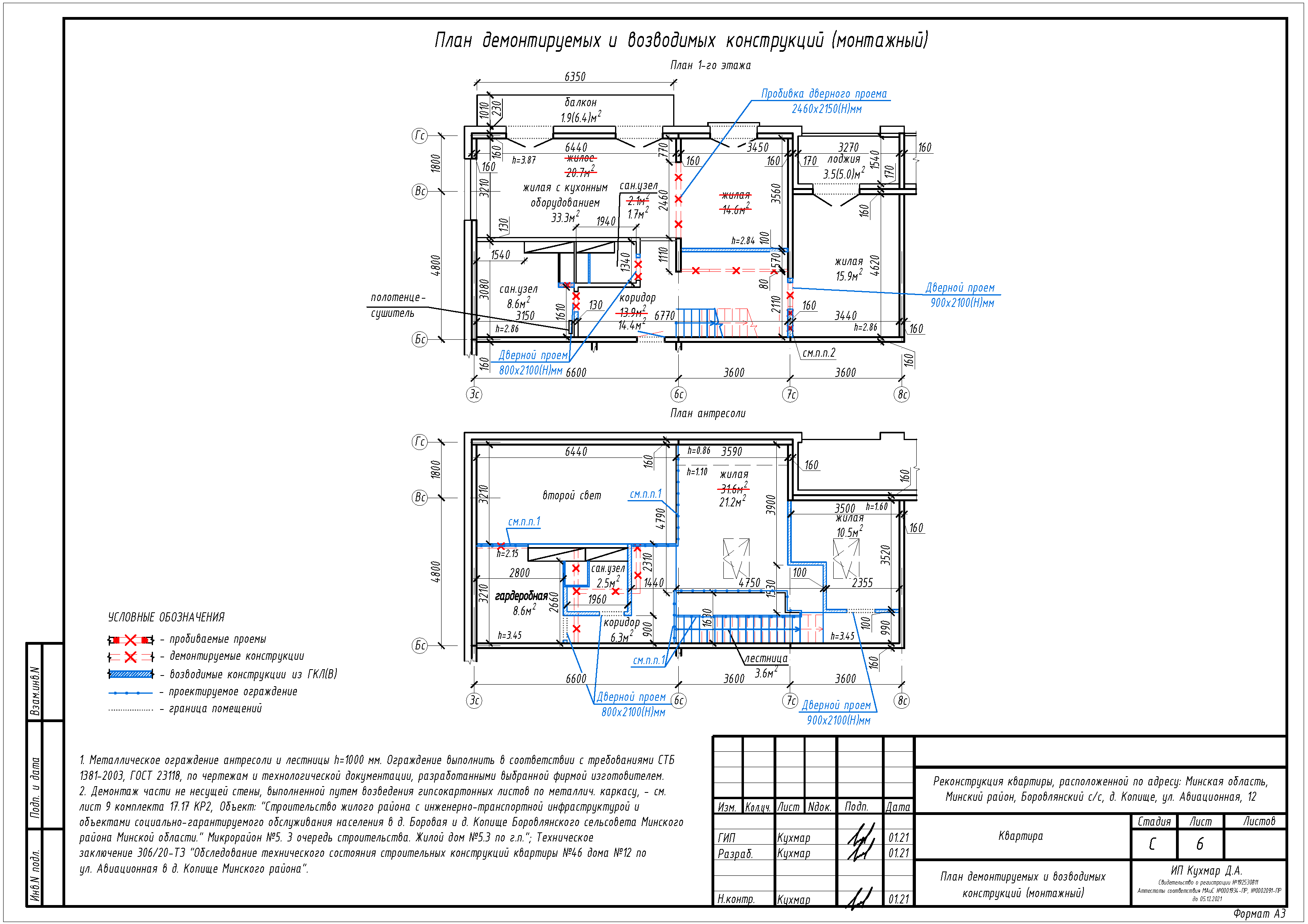
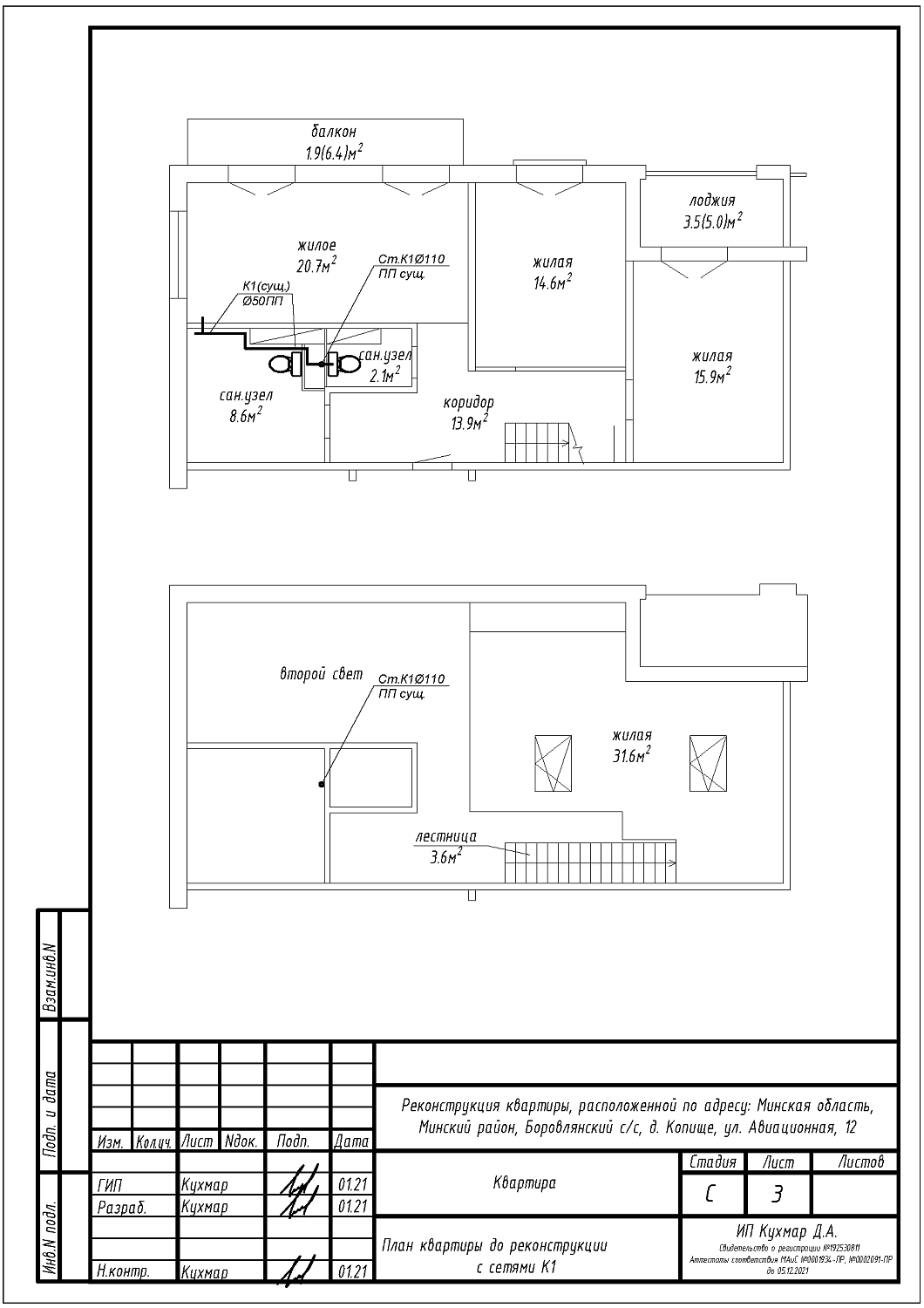
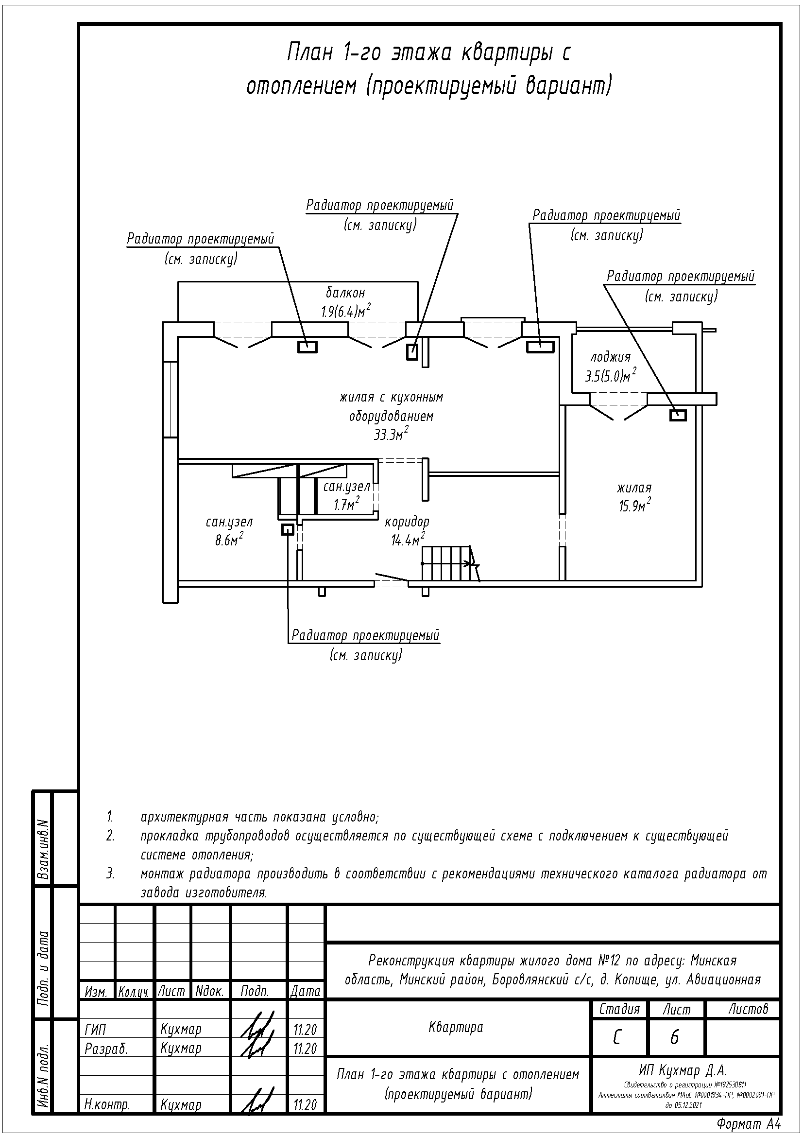
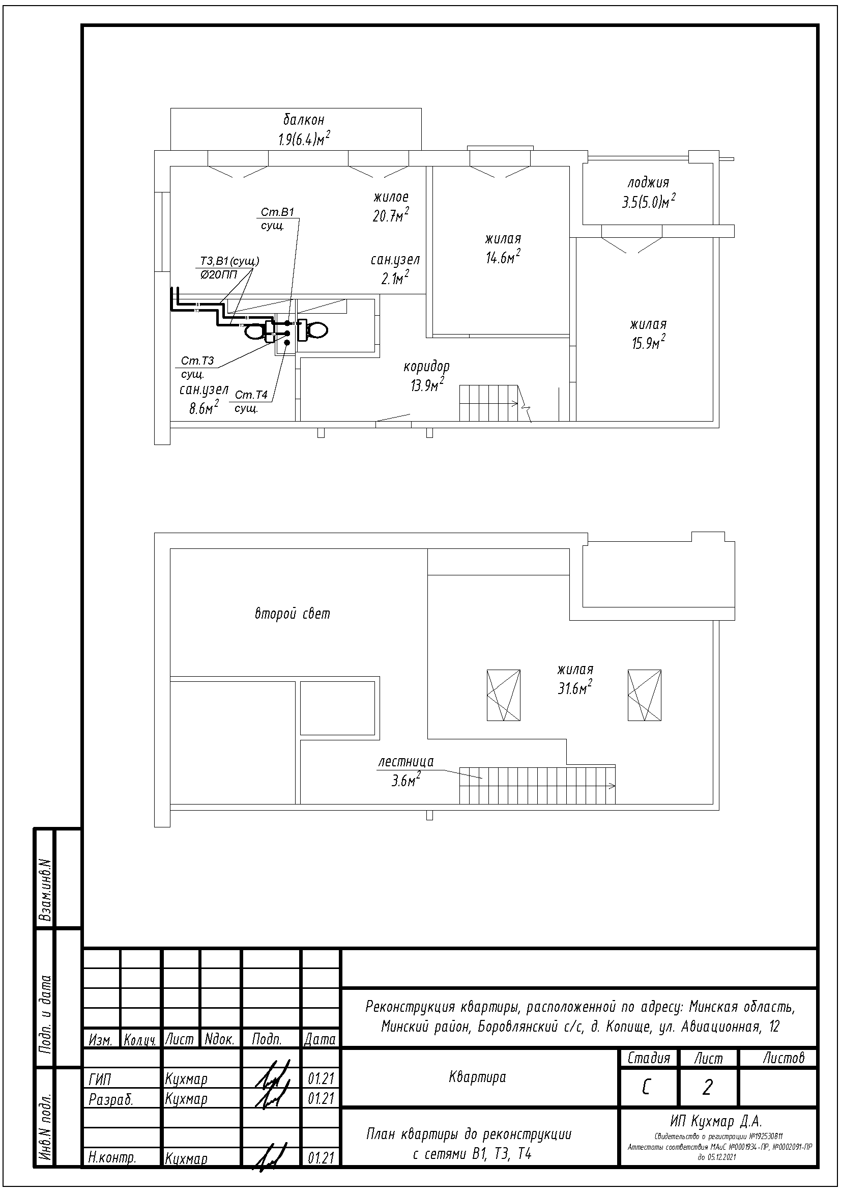
Реконструкция квартиры (антресоль) по ул. Авиационная, 12 в ЖК «Новая Боровая»
Пожелания заказчика:
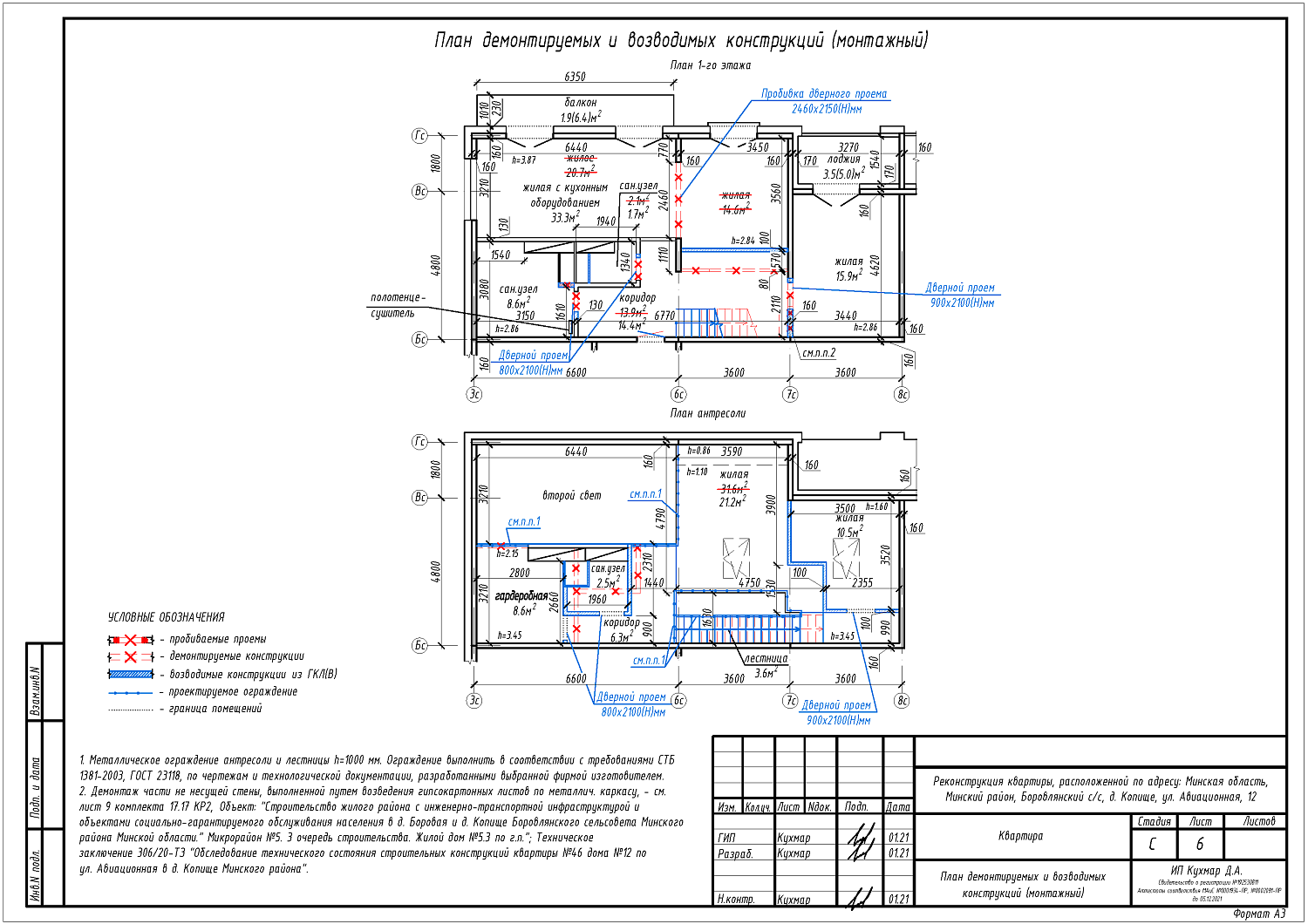
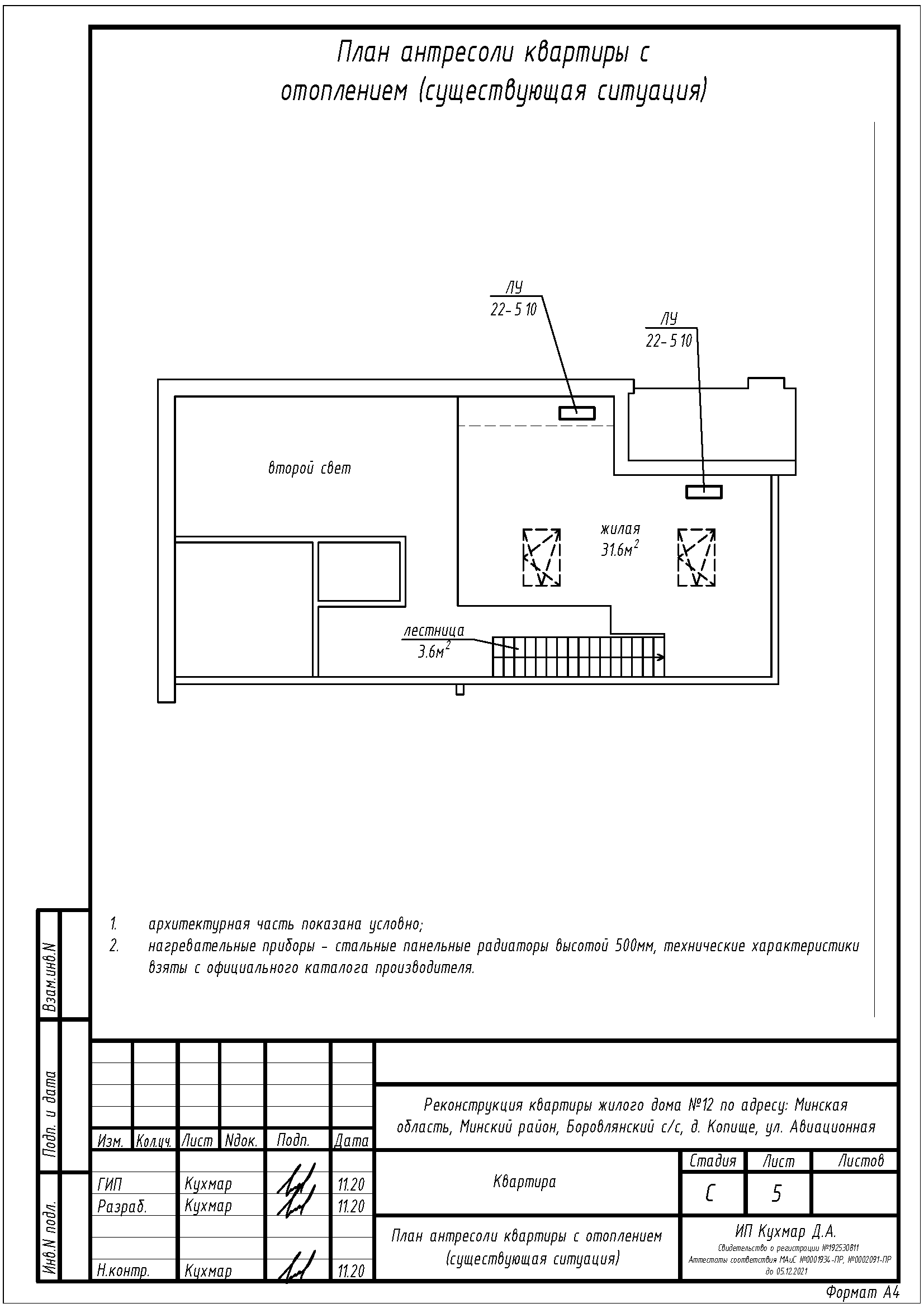
- Демонтаж лестницы с последующим устройством новой лестницы;
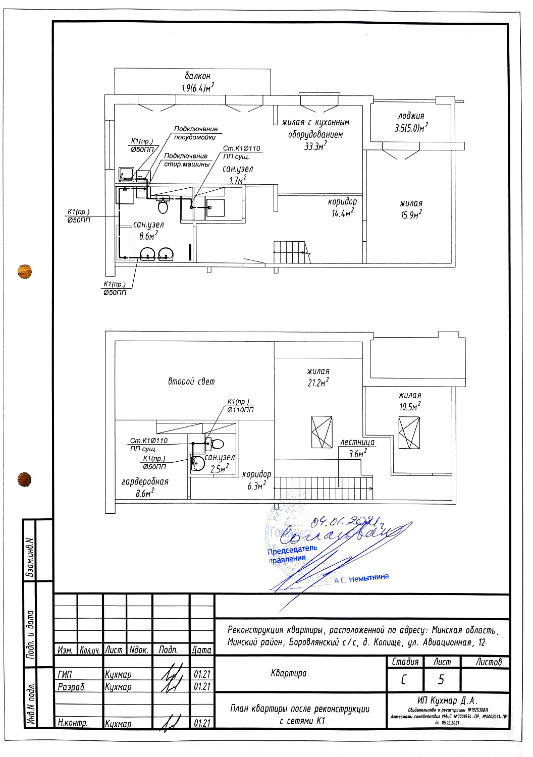
- Демонтаж перегородки между жилой и коридором;
- Устройство перегородки на площади жилой;
- Демонтаж перегородок между жилой и жилой;
- Устройство жилой с кухонным оборудованием на площади жилой;
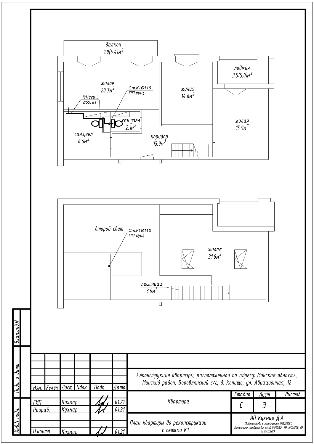
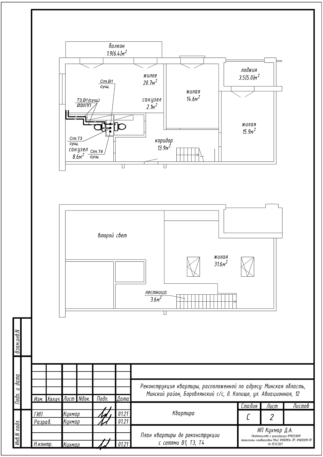
- Изменение площади санузлов;
- Устройство гардеробной;
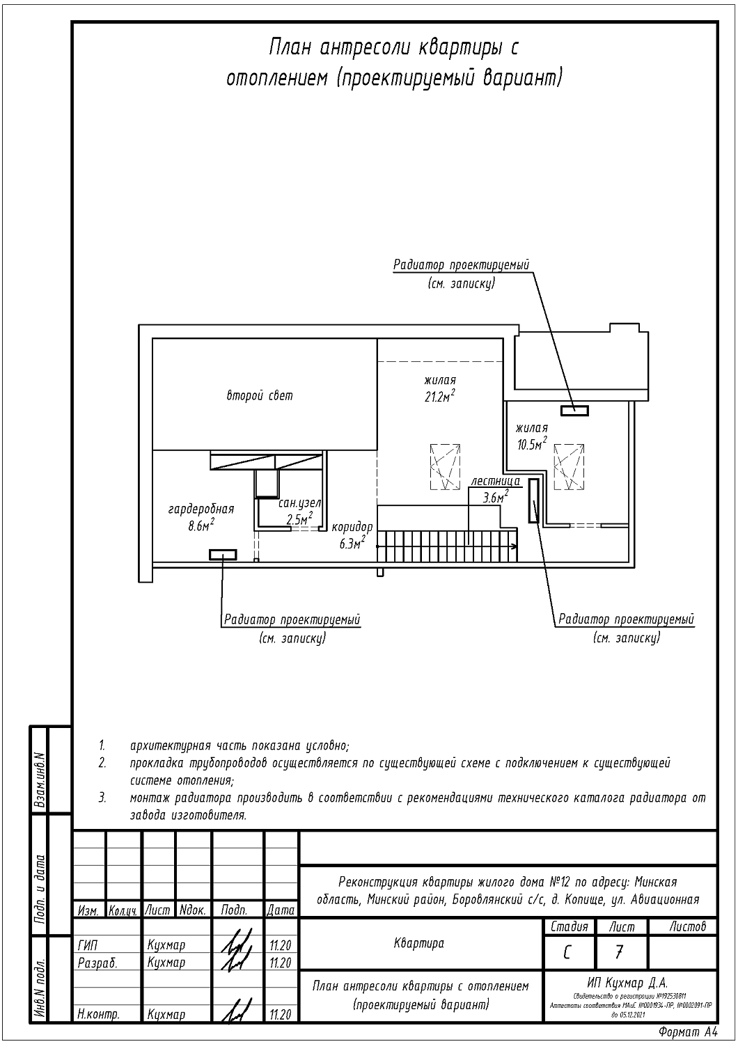
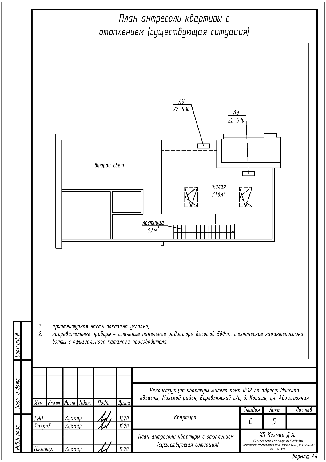
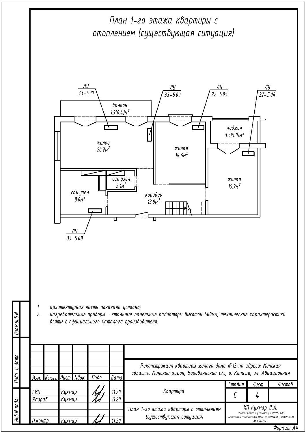
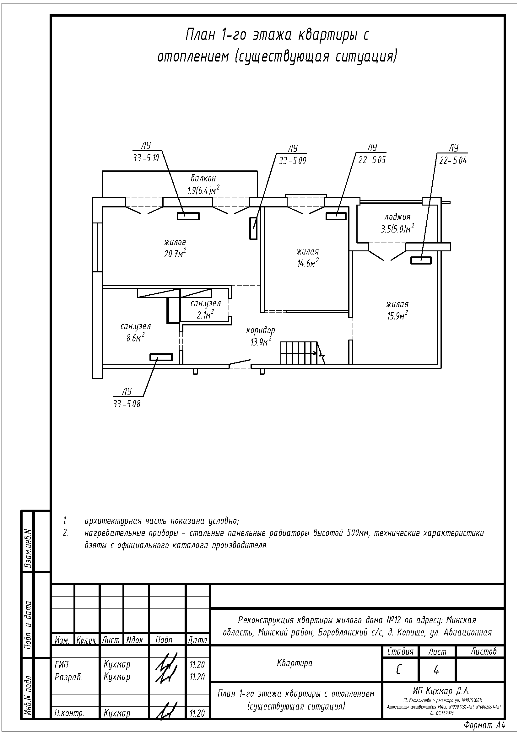
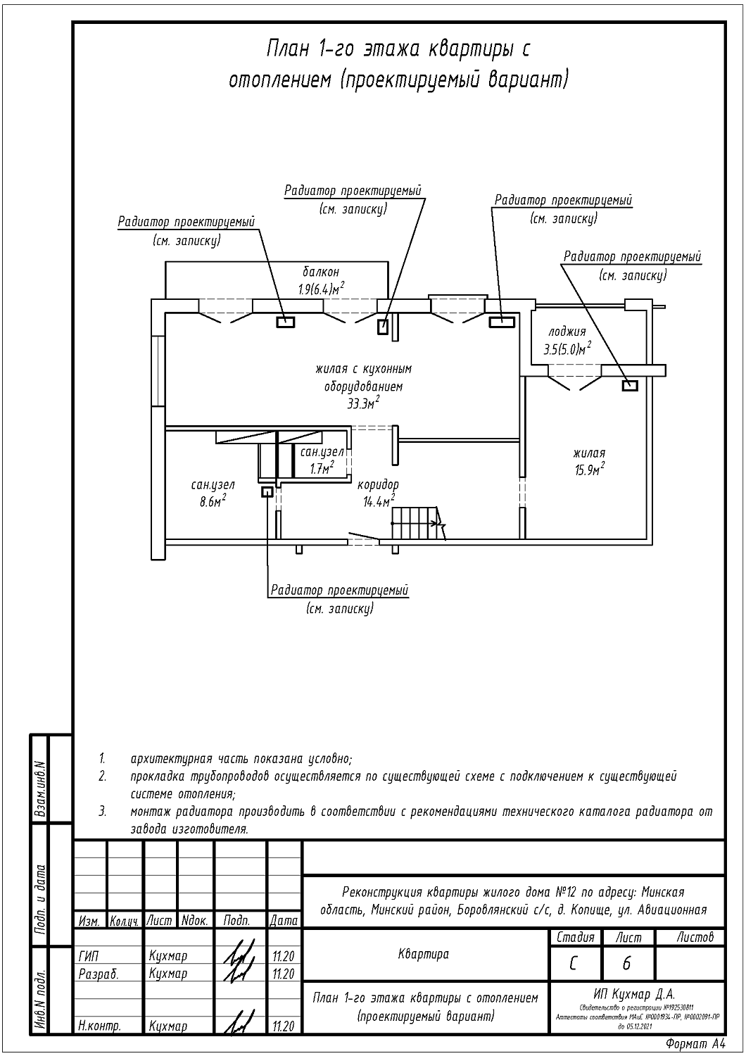
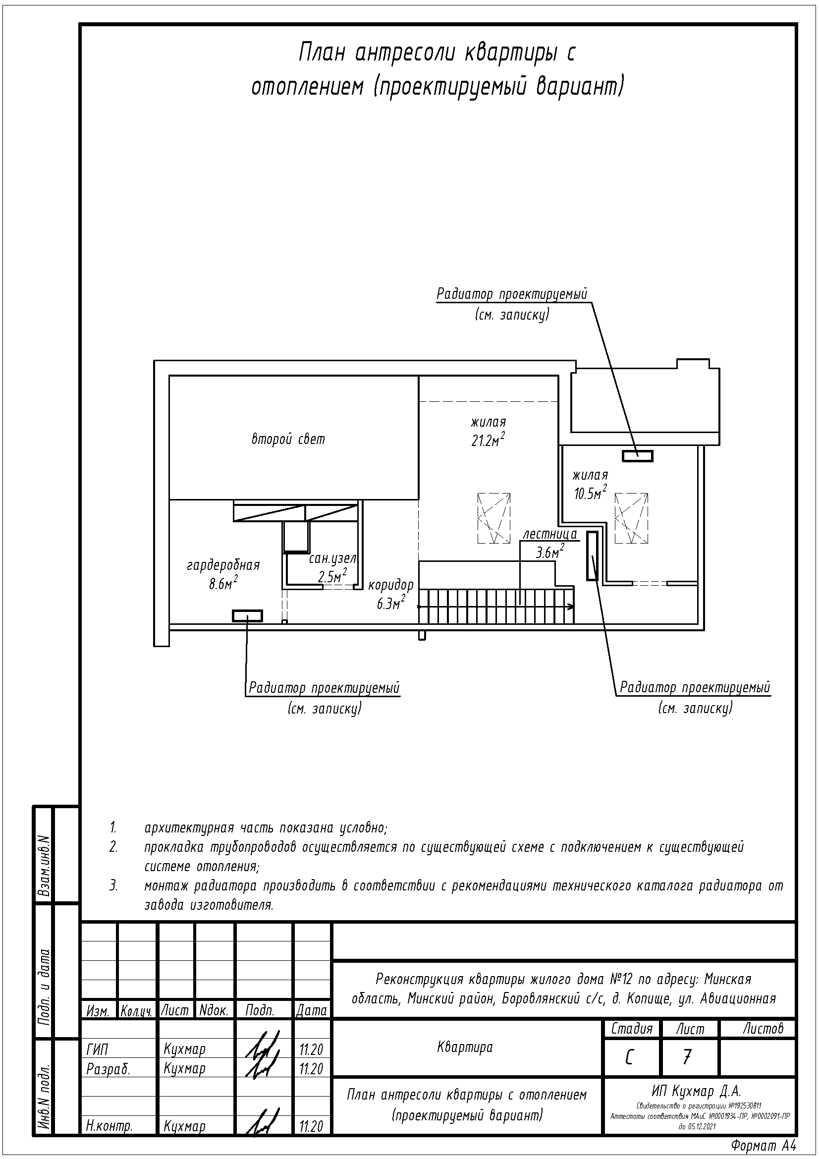
- Замена отопительных приборов.
Нами были разработаны следующие разделы проектной документации для согласования в исполкоме:
- АС - архитектурно-строительные решения;
- ОВ - отопление и вентиляция:
- ВК - вентиляция и канализация.
Комплекс услуг, который мы выполнили:
- Согласование реконструкции квартиры.
- Разработка проекта перепланировки.
- Технический надзор.
- Устройство антресоли (аттесованный подряд).
- Аттестованный подряд по батареям и гидроизоляции.
