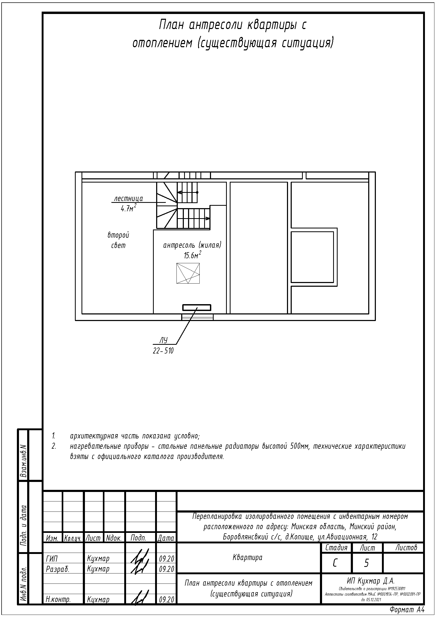
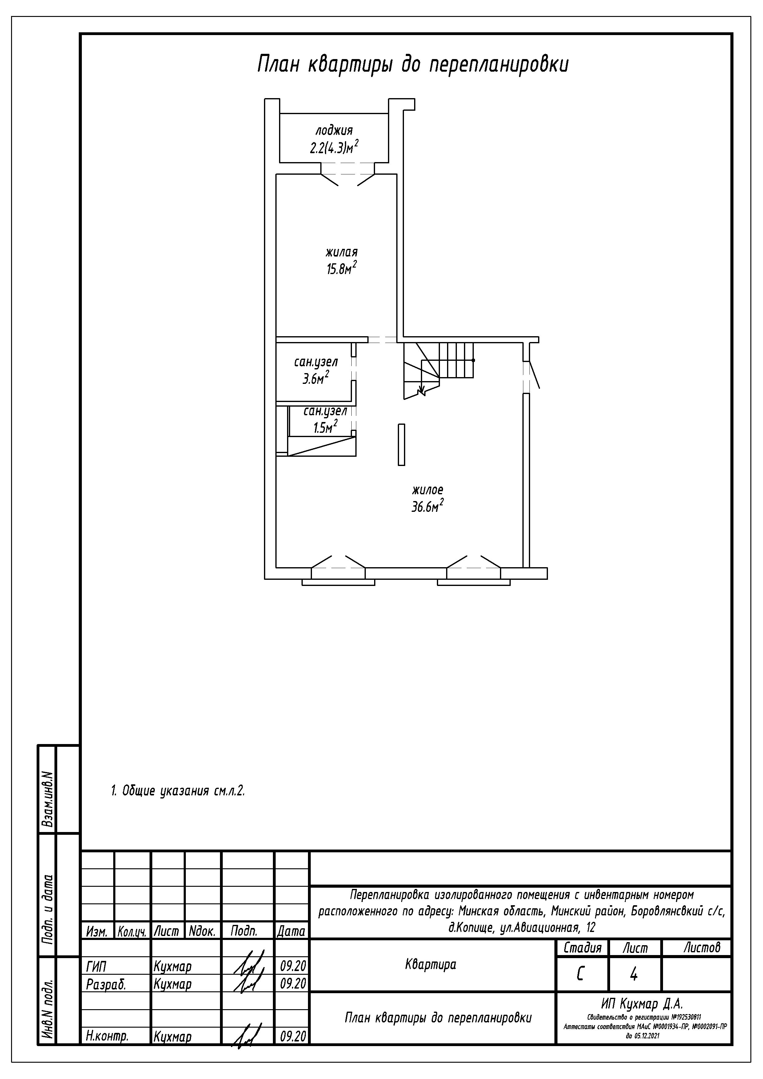
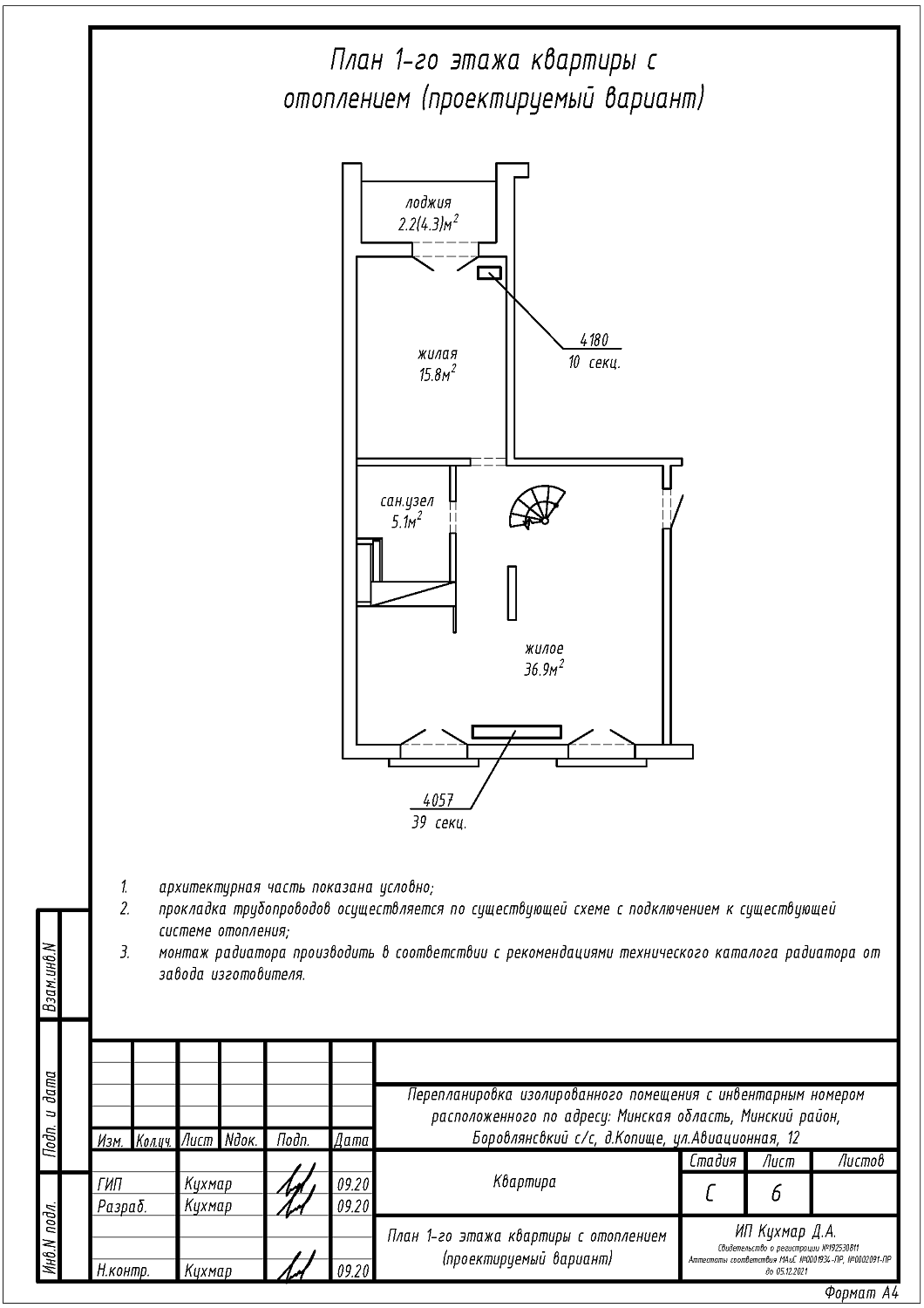
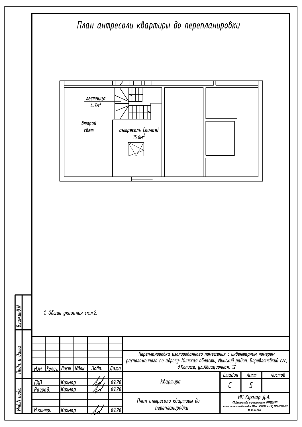
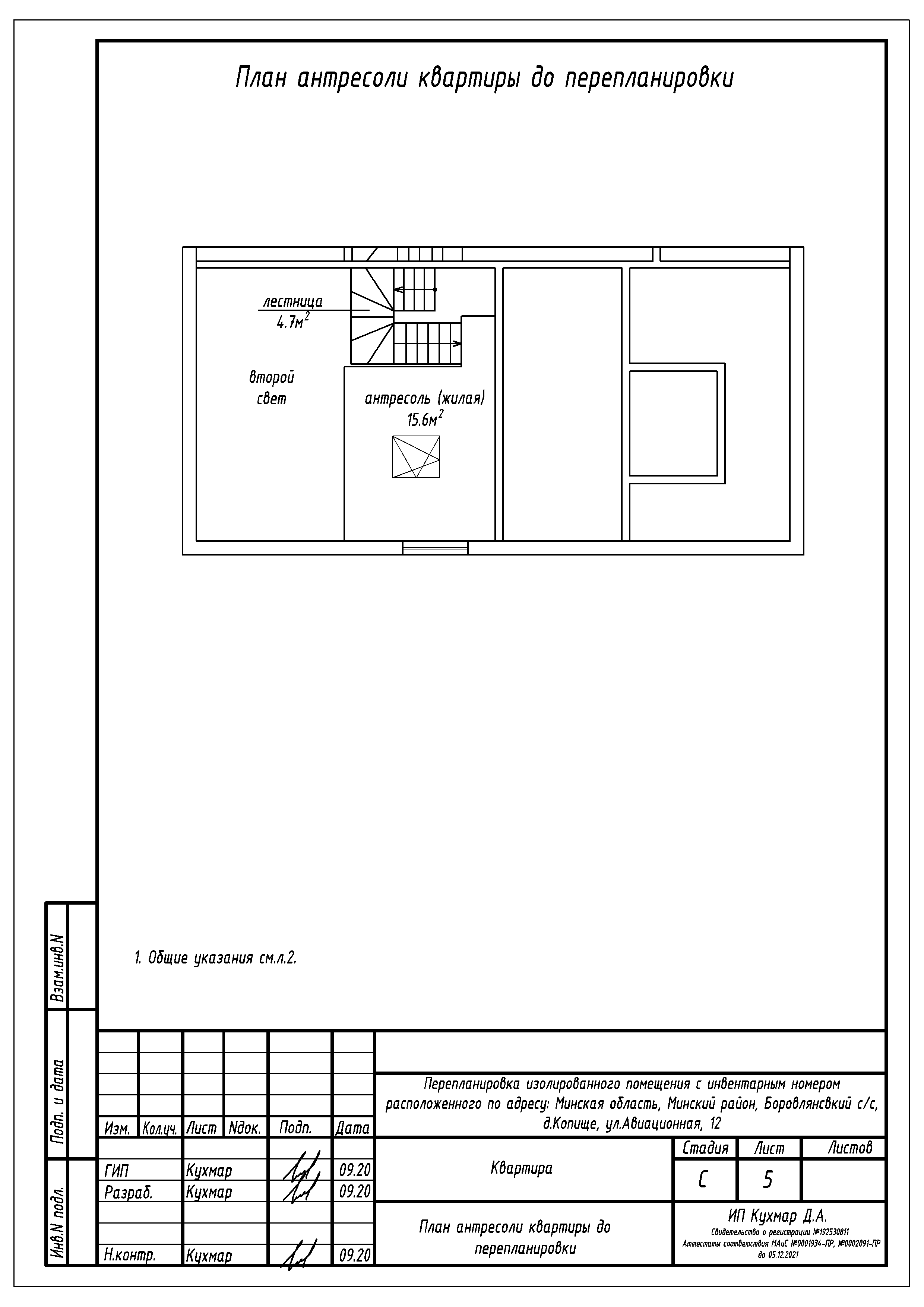
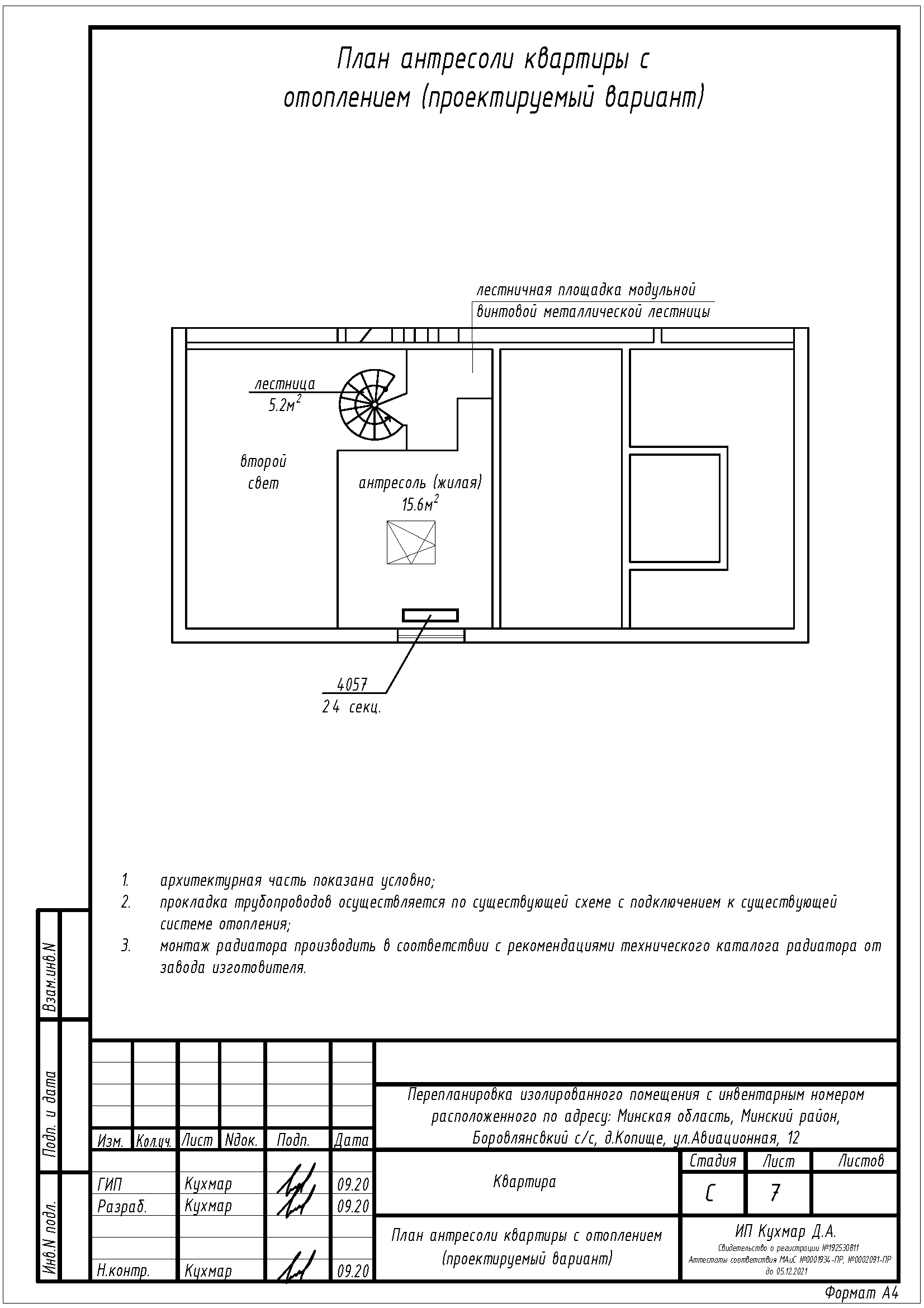
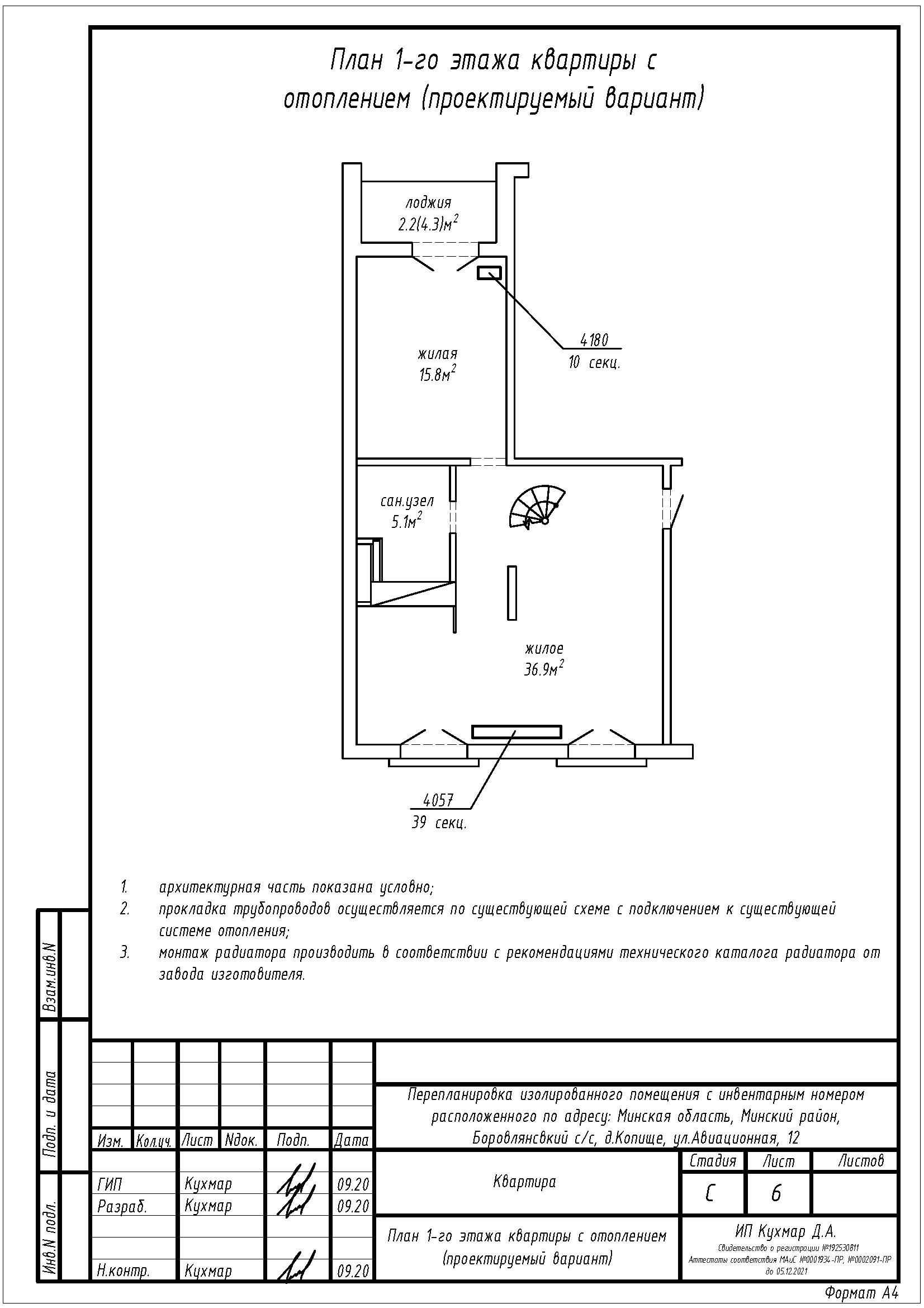
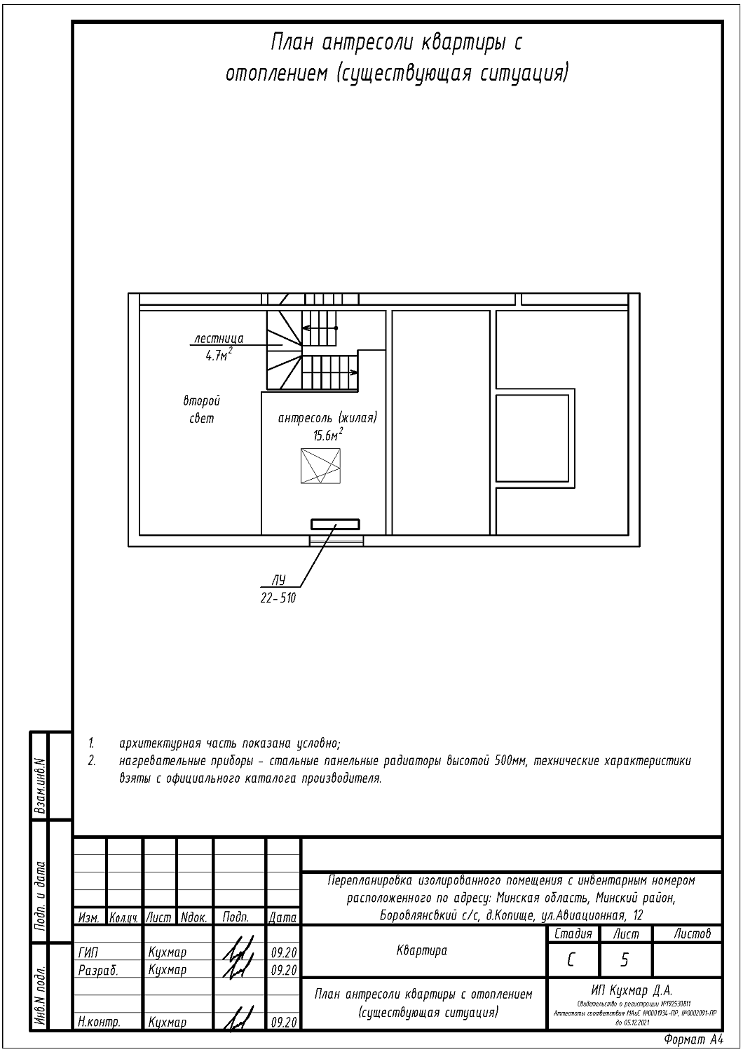
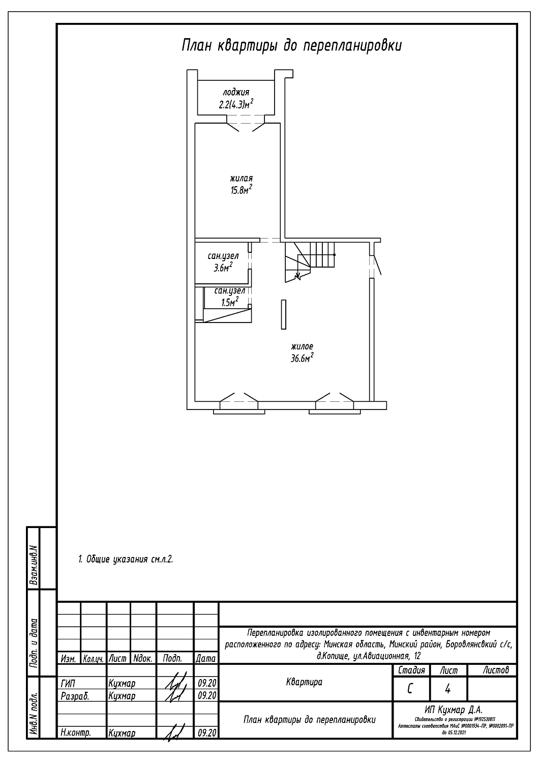
Перепланировка квартиры (антресоль) по ул. Авиационная, 12 в ЖК «Новая Боровая»
Пожелания заказчика:
- Замена лестницы с последующим устройством новой лестницы;
- Объединение санузлов в единый санузел;
- Смена направления открывания входной двери;
- Устройство перегородок на площади жилого;
- Замена и перенос отопительных приборов.
Нами были разработаны следующие разделы проектной документации для согласования в исполкоме:
- АС - архитектурно-строительные решения;
- ОВ - отопление и вентиляция.
Комплекс услуг, который мы выполнили:
- Согласование перепланировки квартиры.
- Разработка проекта перепланировки.
- Технический надзор.
- Устройство антресоли (аттесованный подряд).
- Аттестованный подряд по батареям и гидроизоляции.
