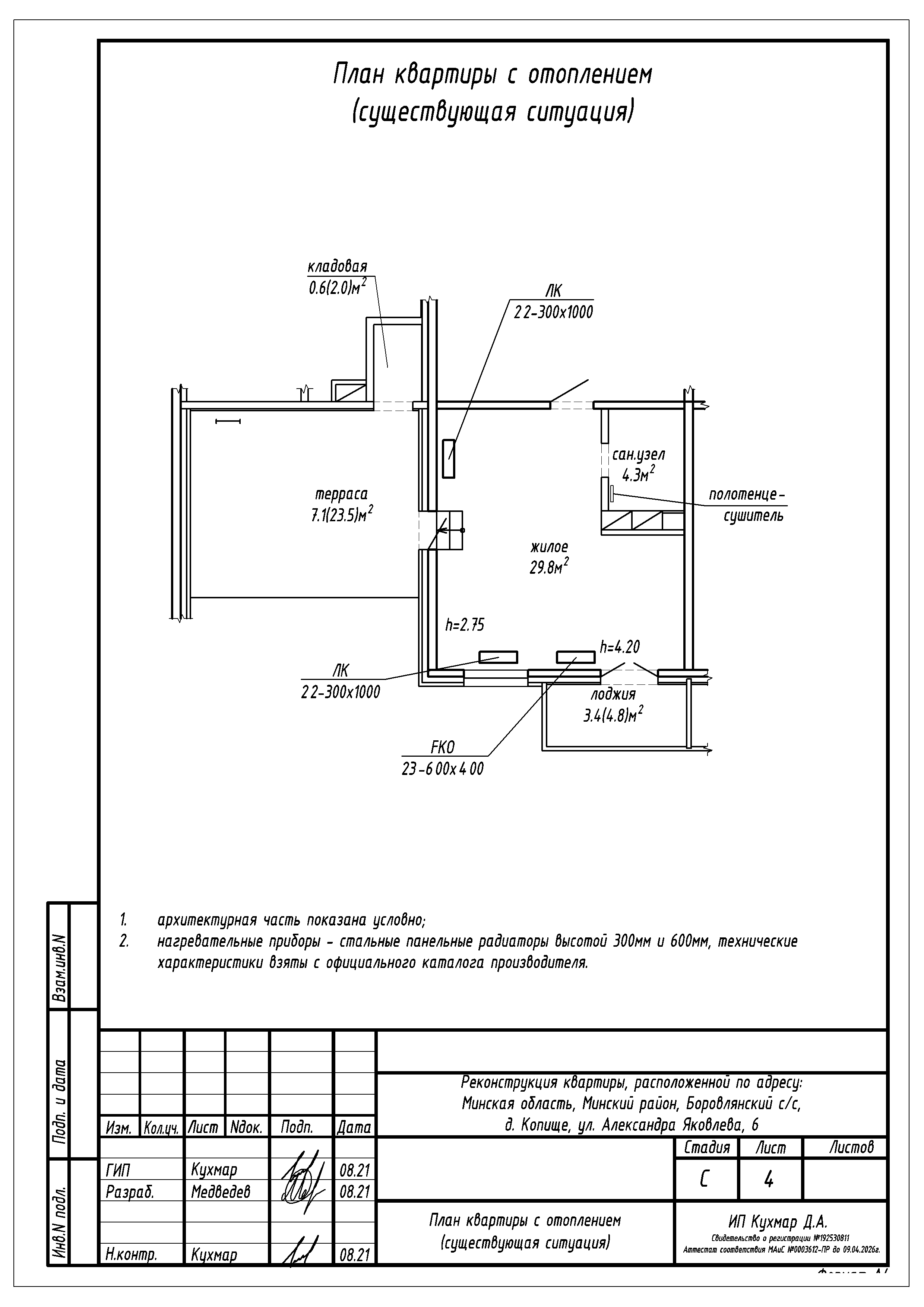
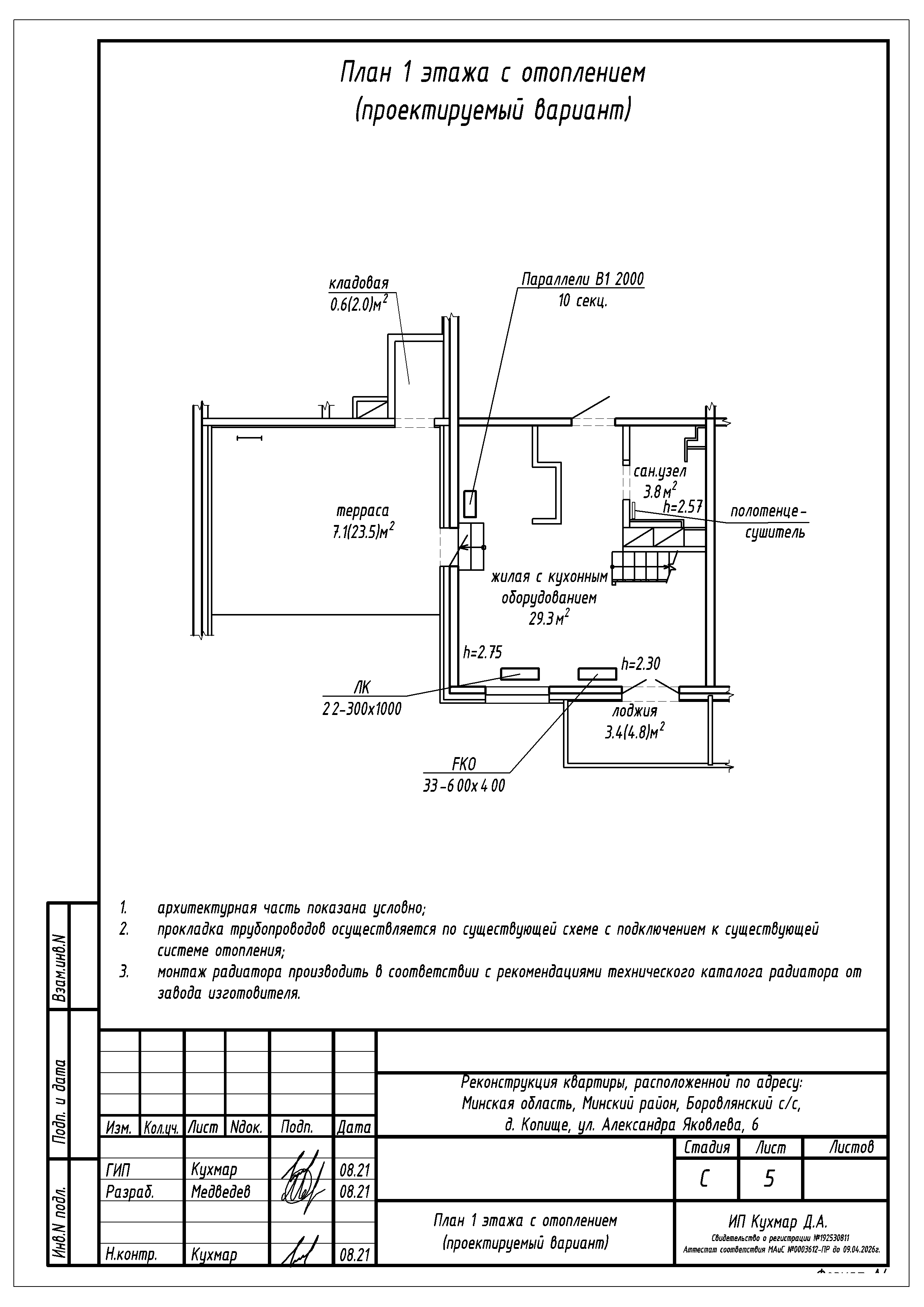
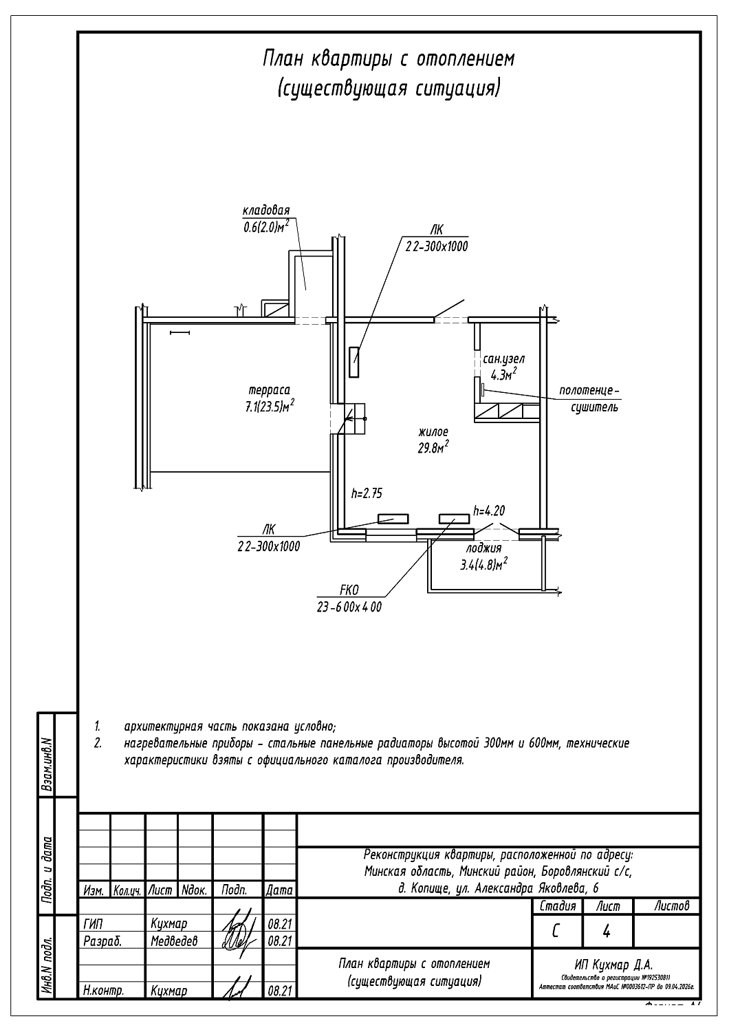
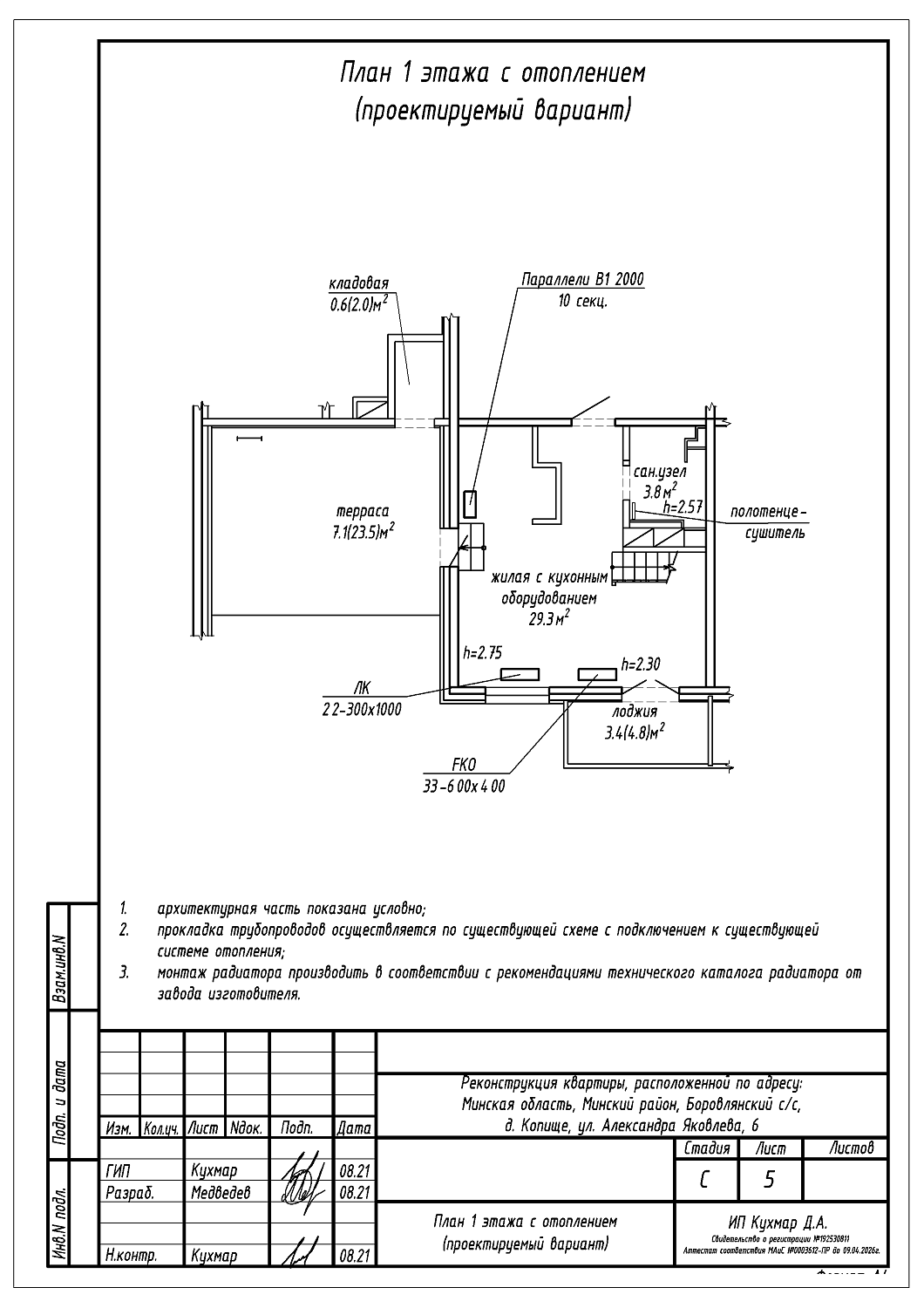
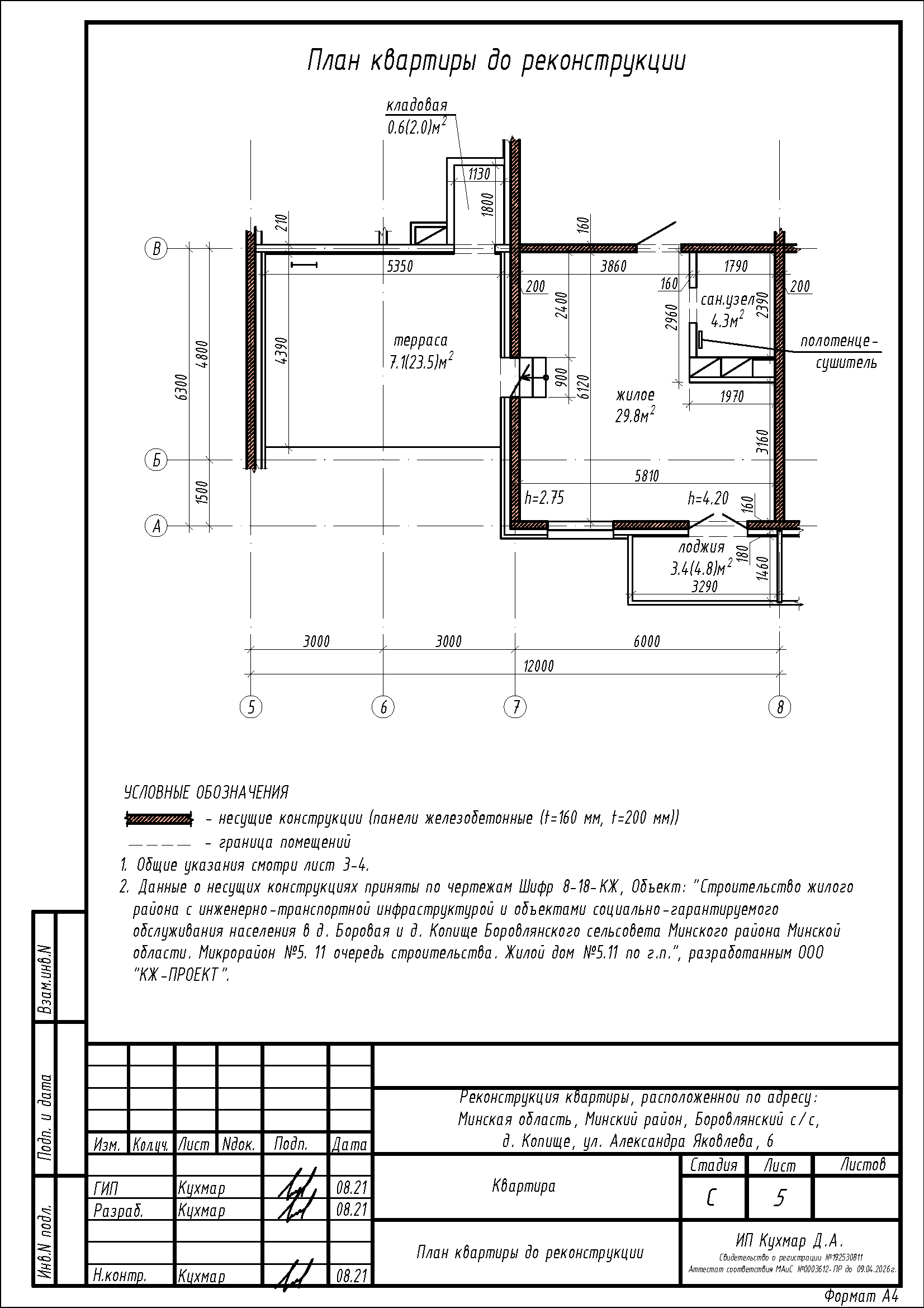
Перепланировка квартиры (антресоль) по ул. Яковлева, 6 в ЖК «Новая Боровая»
Пожелания заказчика:
- Смещение дверного проёма в санузле;
- Устройство перегородки на части площади жилого помещения;
- Устройство перегородок (зашивок из ГКЛ) на части площади санузла;
- Устройство антресоли над частью жилого помещения и над санузлом;
- Устройство лестницы на антресоль;
- Замена лестницы;
- Замена и перенос приборов отопления.
Нами были разработаны следующие разделы проектной документации для согласования в исполкоме:
- АС - архитектурно-строительные решения;
- ОВ - отопление и вентиляция.
Комплекс услуг, который мы выполнили:
- Разработка проекта перепланировки.
- Технический надзор.
- Устройство антресоли (аттестованный подряд).
- Аттестованный подряд по батареям и гидроизоляции.
