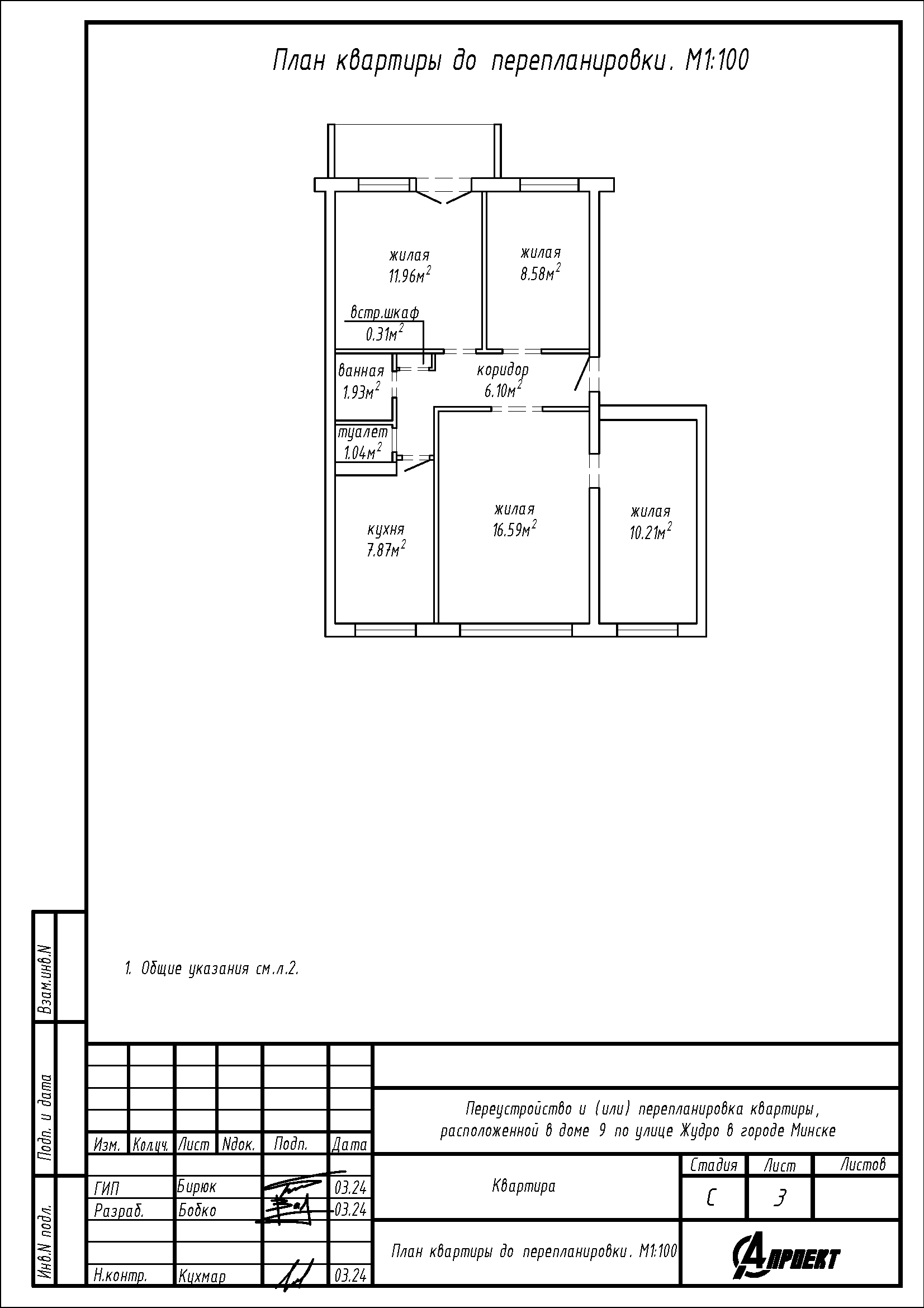
Перепланировка квартиры по ул. Жудро, 9 в г. Минске
Пожелания заказчика:
- Демонтаж перегородок с дверным проемом между коридором 6.10 м2 и жилой 16.59 м2 с последующим устройством перегородки с дверным проемом на части площади жилой 16.59 м2:
- Демонтаж перегородок с дверными проемами между встроенным шкафом 0.31 м2, ванной 1.93 м2, туалетом 1.04 м2 и коридором 6.10 м2 с последующим устройством перегородок с дверными проемами на части площади коридора 6.10 м2 и ванной 1.93 м2 с целью устройства ванной, туалета и коридора;
- Закладка дверного проёма в перегородке между коридором 6.10 м2 и кухней;
- Устройство дверного проёма с дверным блоком в перегородке между жилой 16.59 м2 и кухней;
- Замена дверного блока входной двери со сменой направления открывания.
Нами были разработаны следующие разделы проектной документации для согласования в исполкоме:
- АС - архитектурно-строительные решения.


