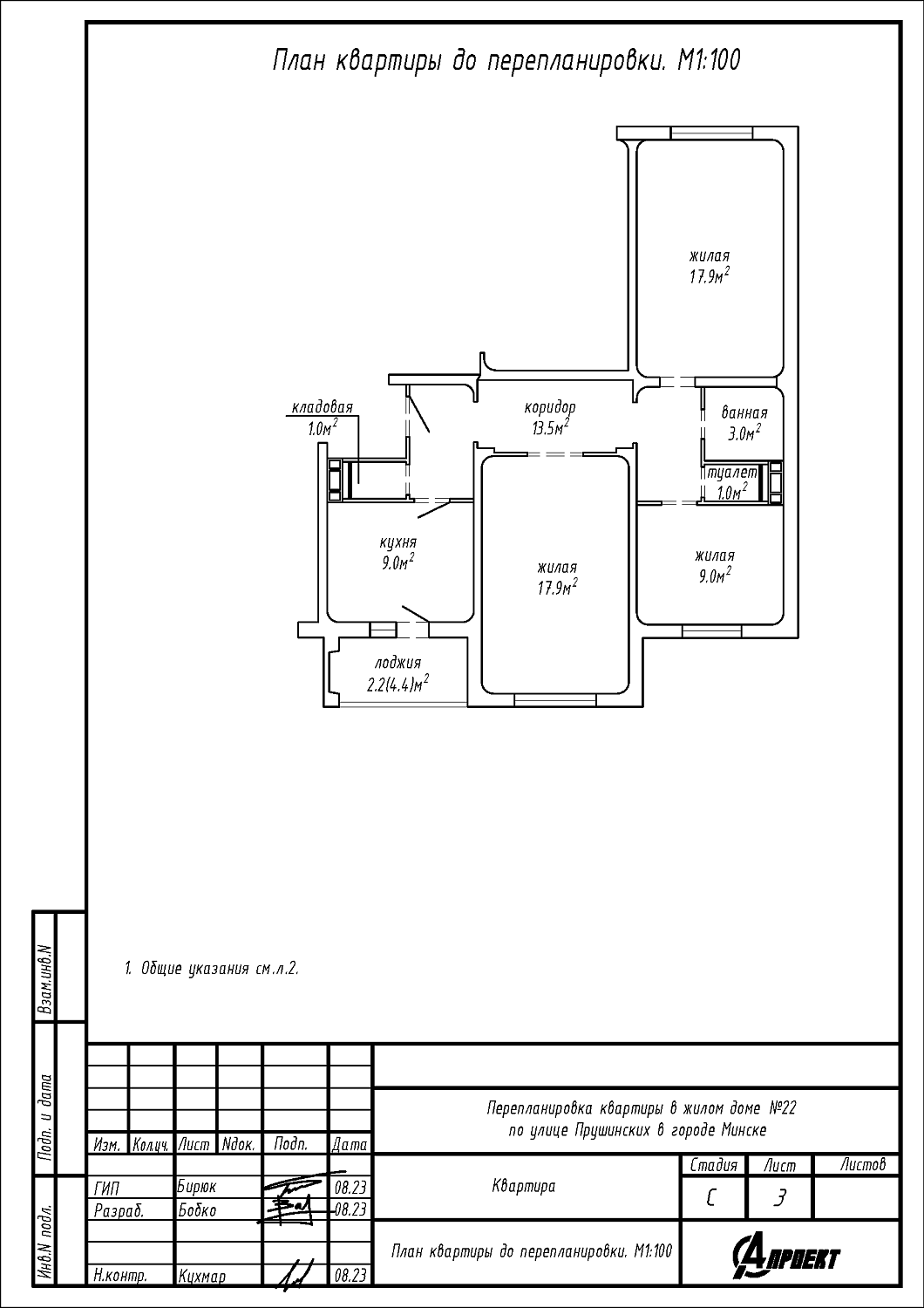
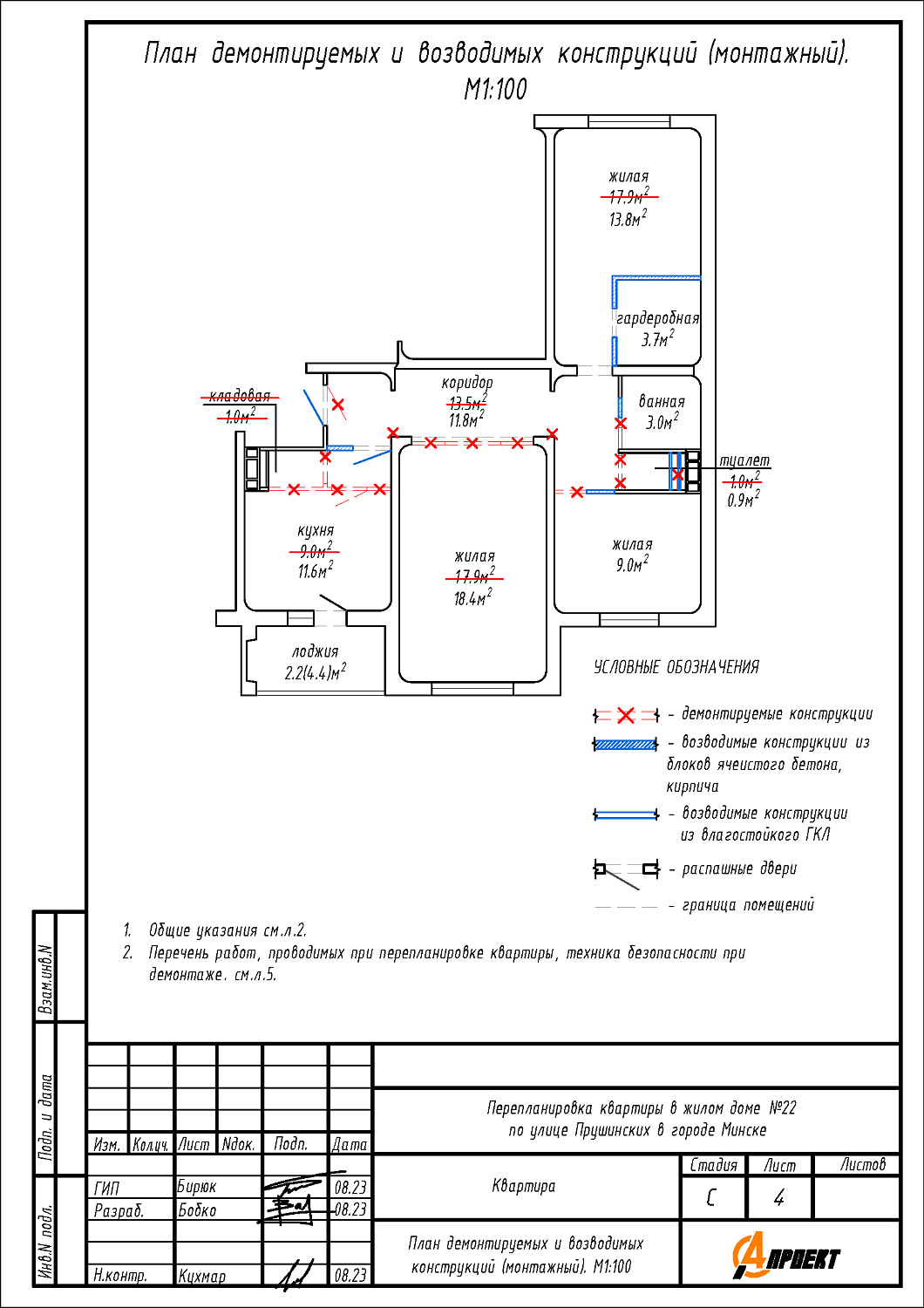
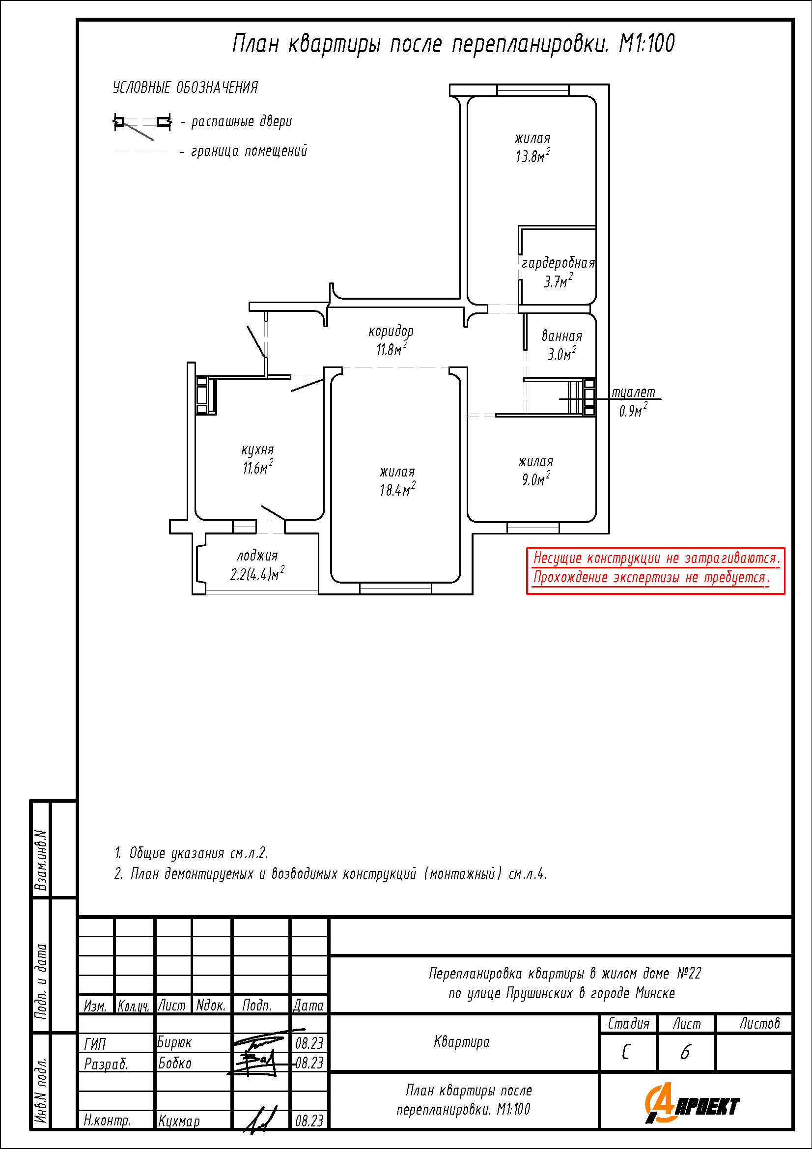
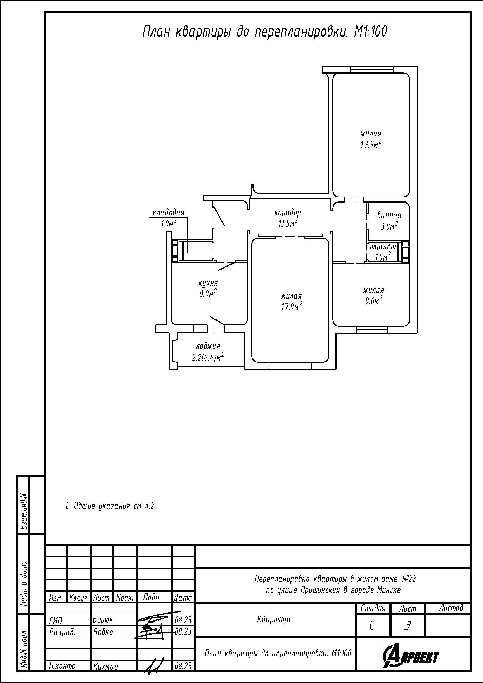
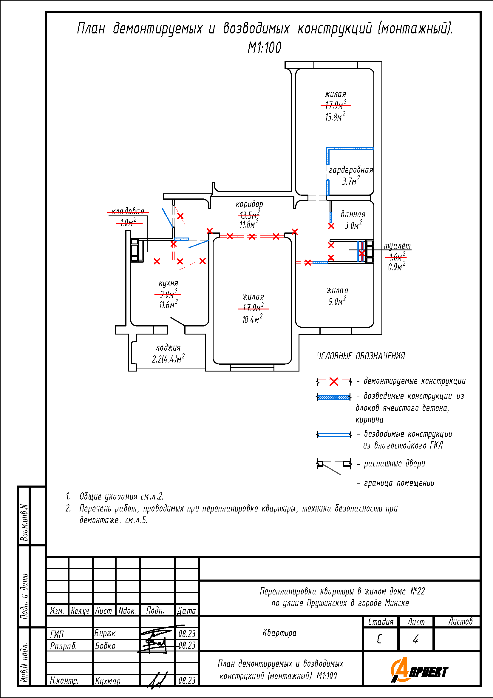
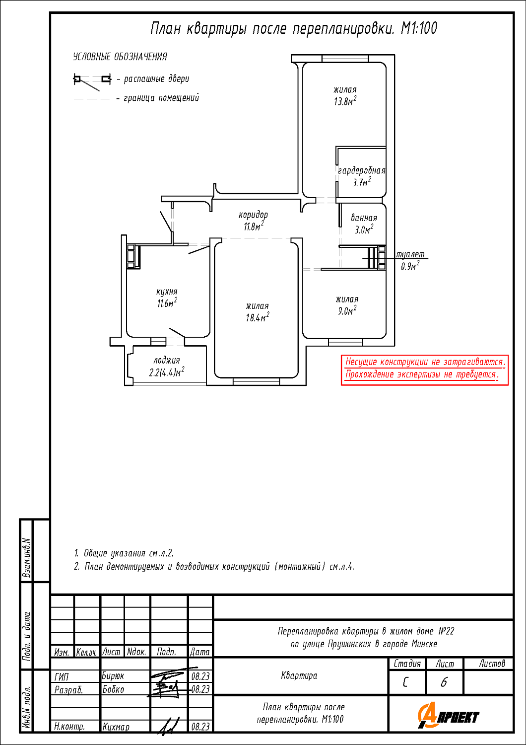
Перепланировка квартиры по улице Прушинских, 22 в г. Минске
Пожелания заказчика:
- Смена направления открывания входной двери;
- Демонтаж перегородок кладовой, с целью увеличения площади кухни;
- Расширение дверного проёма между жилой 17,9м2 и коридором;
- Смещение дверного проёма между жилой 9,0м2 и коридором;
- Устройство гардеробной на части площади жилой 17,9м2;
- Смещение дверного проёма в ванной комнате.
Нами были разработаны следующие разделы проектной документации для согласования в исполкоме:
- АС - архитектурно-строительные решения.
