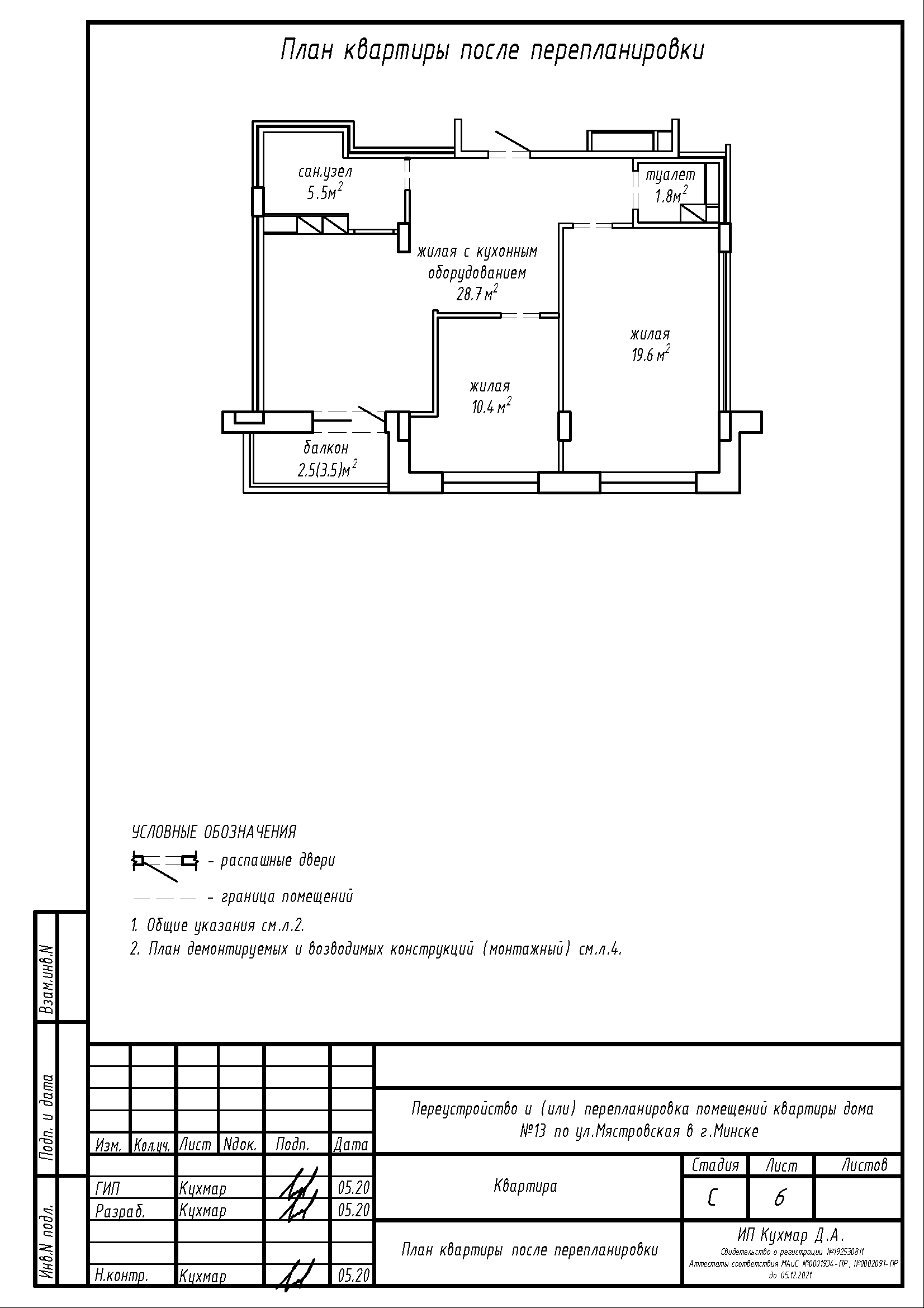
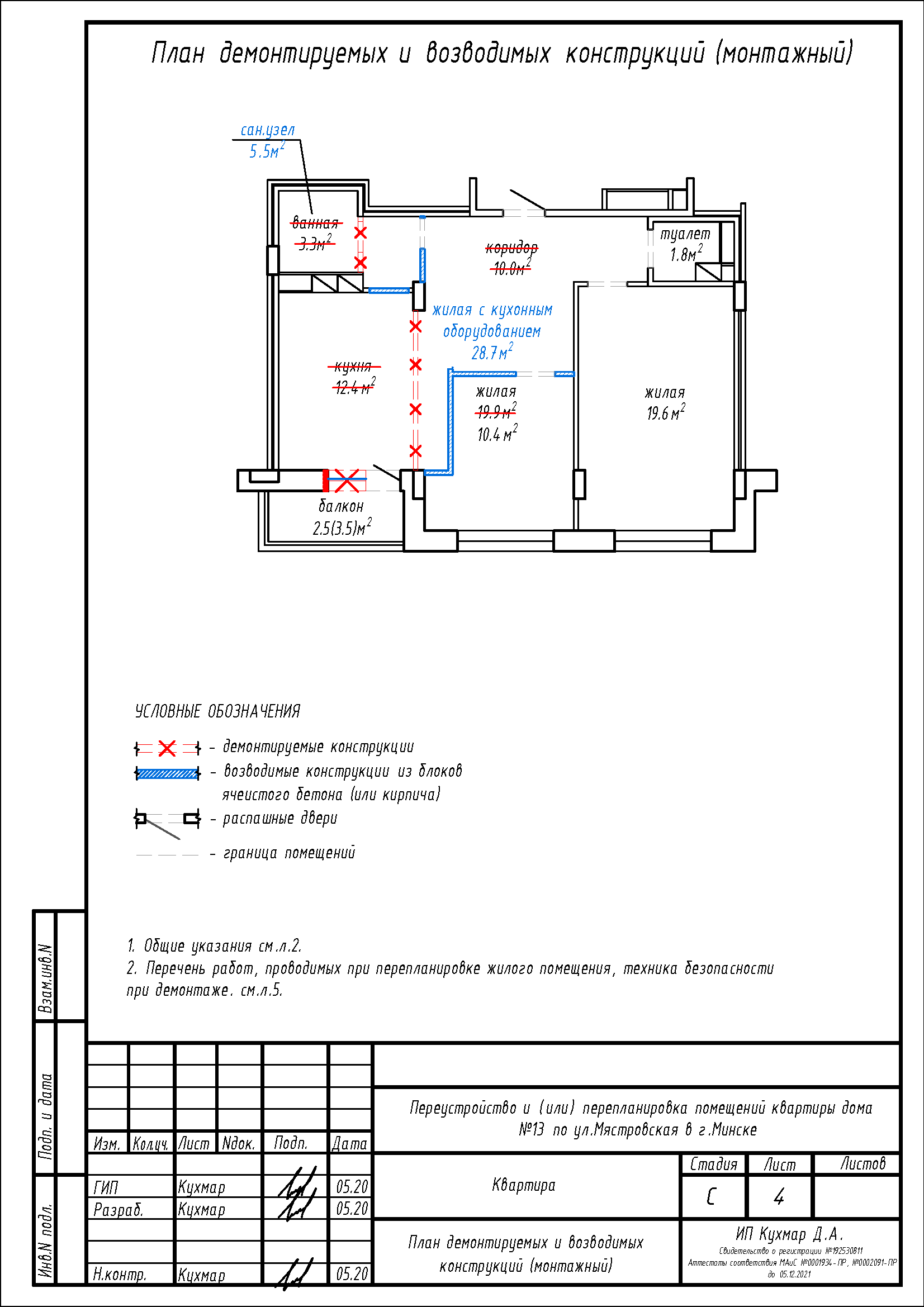
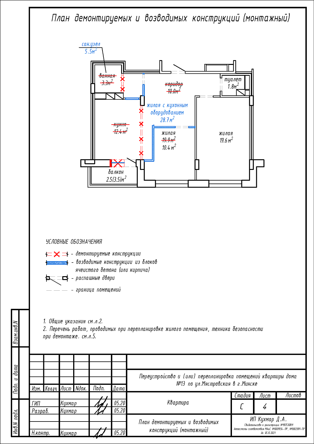
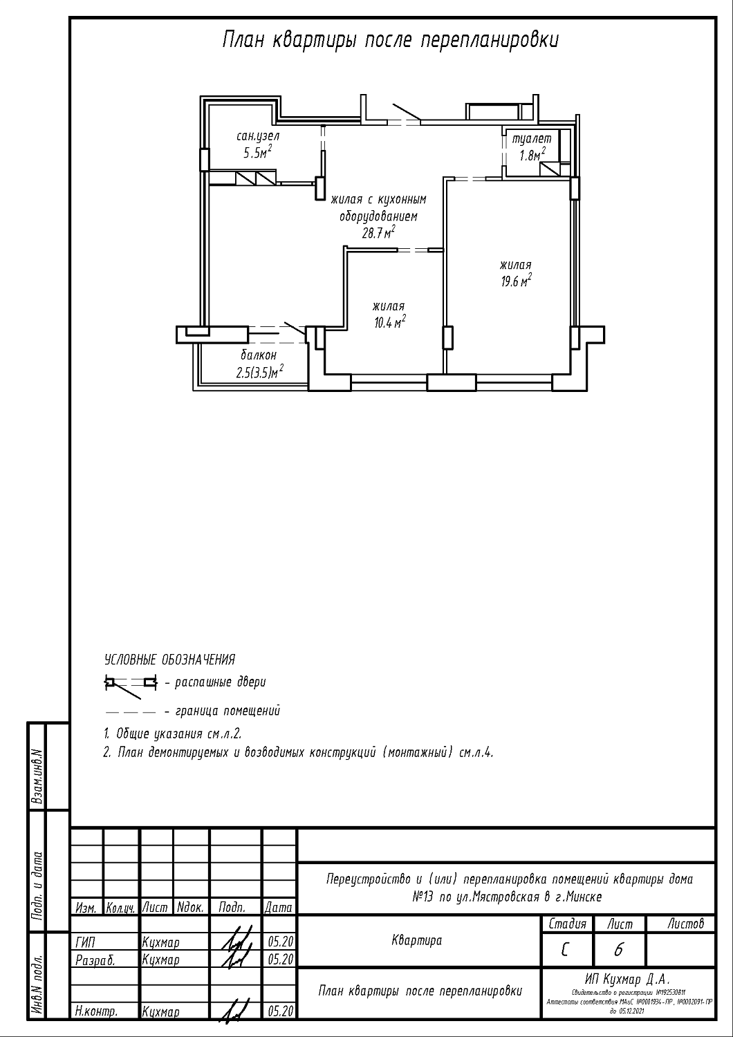
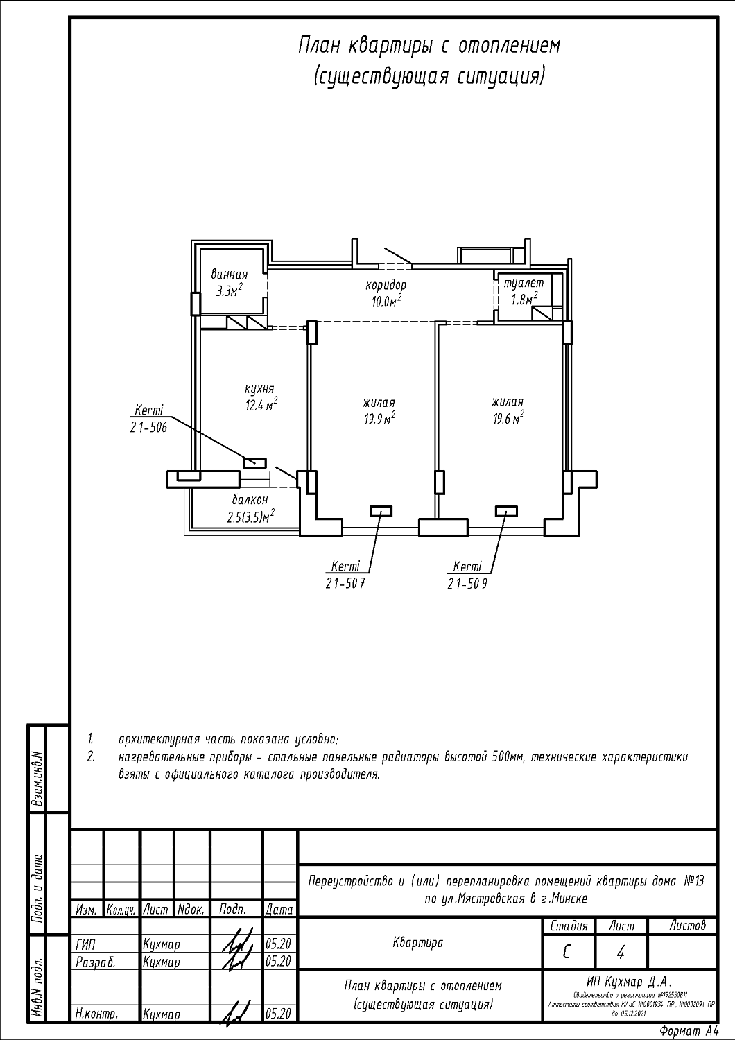
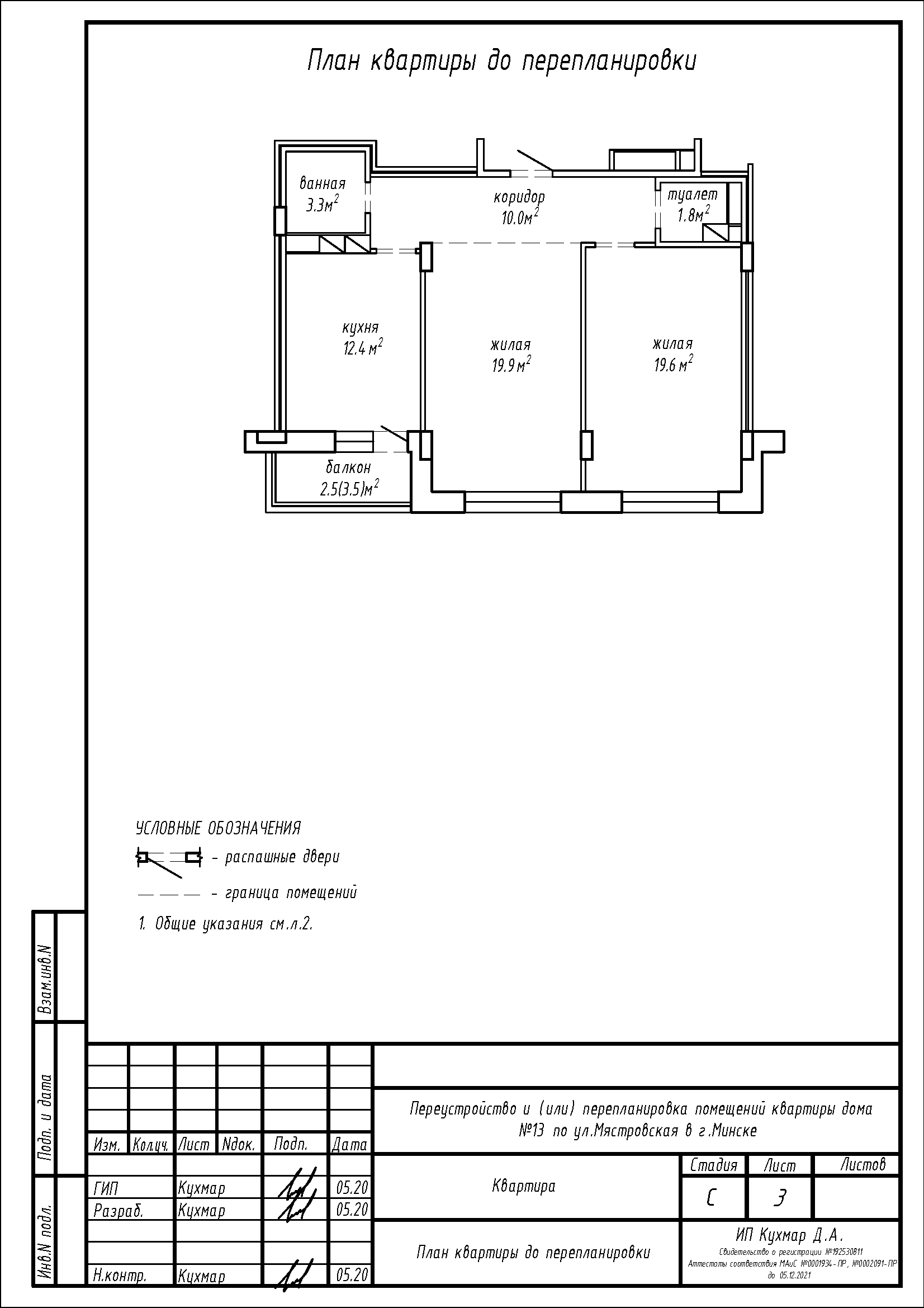
Перепланировка квартиры по ул. Мястровская, 13 в ЖК «Променад»
Пожелания заказчика:
- Устройство санузла на площади существующей ванной. Увеличение санузла за счёт части площади коридора;
- Демонтаж перегородки между кухней, коридором и части жилой, с целью устройства жилой с кухонным оборудованием;
- Демонтаж части подоконного блока;
- Изменение габаритов жилой.
Нами были разработаны следующие разделы проектной документации для согласования в исполкоме:
- АС - архитектурно-строительные решения;
- ОВ - отопление и вентиляция.
