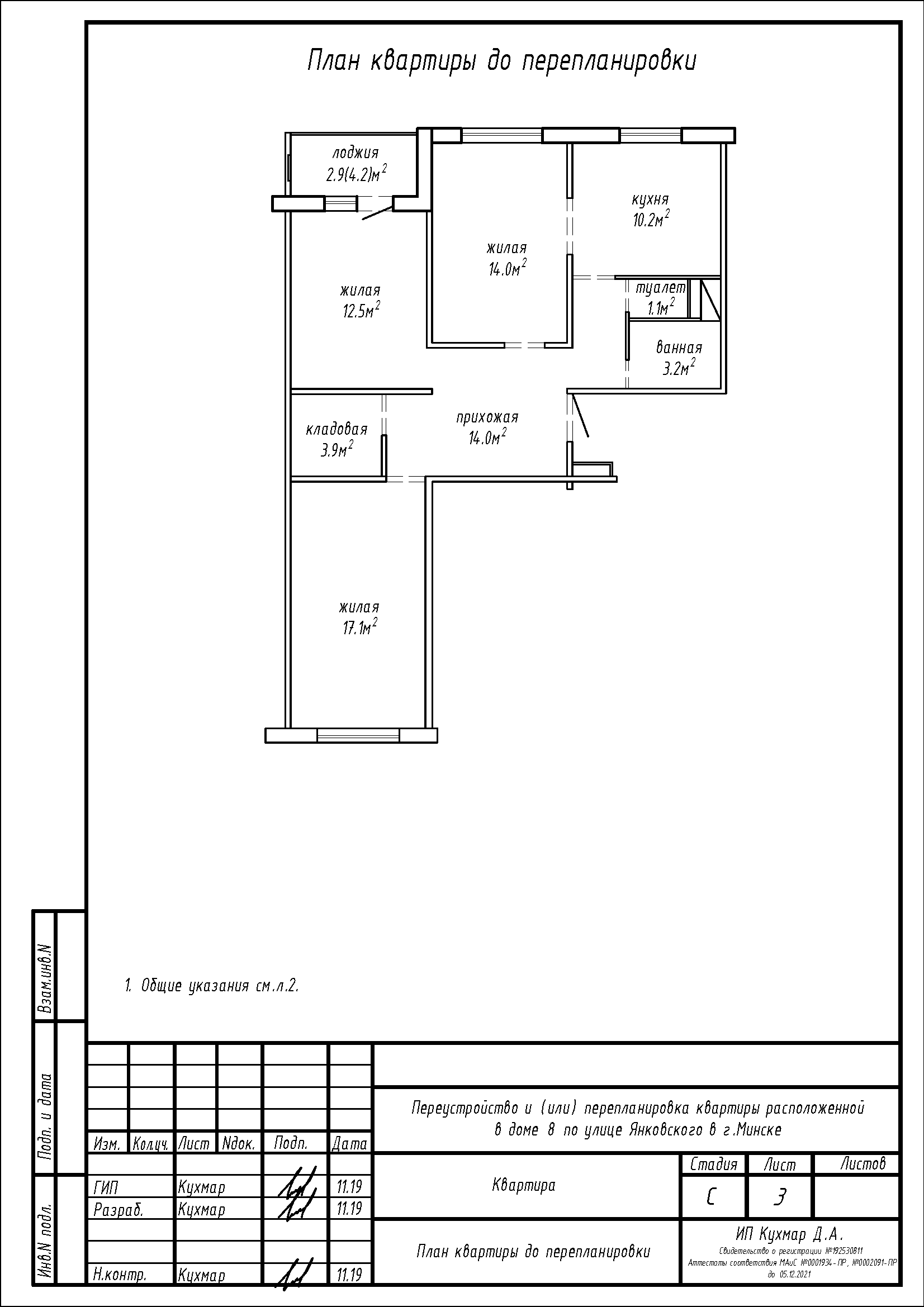
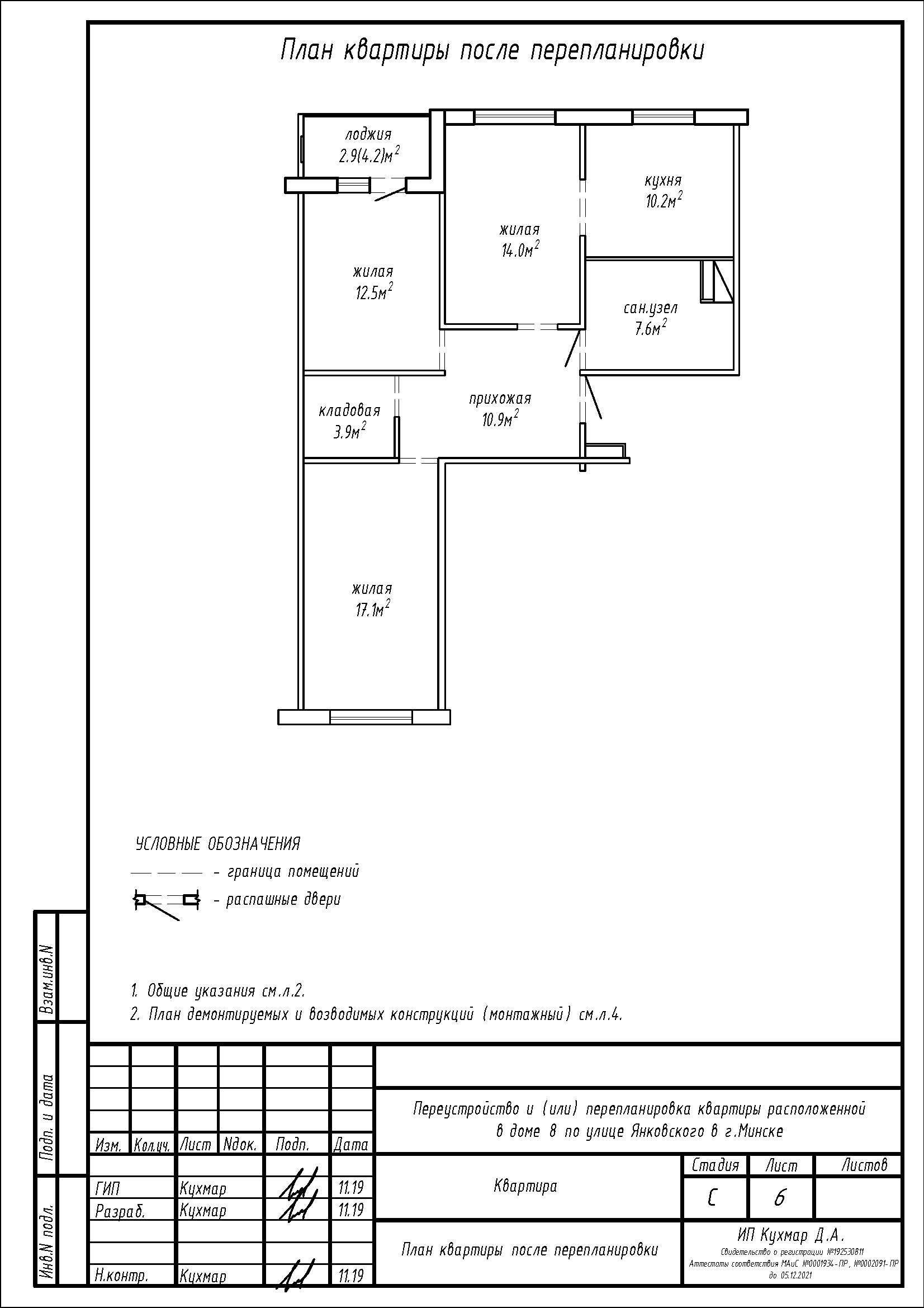
Перепланировка квартиры по ул. Янковского, 8 в г.Минске
Пожелания заказчика:
- Объединение ванной и туалета в единый санузел;
- Закладка дверного проёма между кухней и прихожей с целью устройства объединённого санузла.
Нами были разработаны следующие разделы проектной документации для согласования в исполкоме:
- АС - архитектурно-строительные решения.
