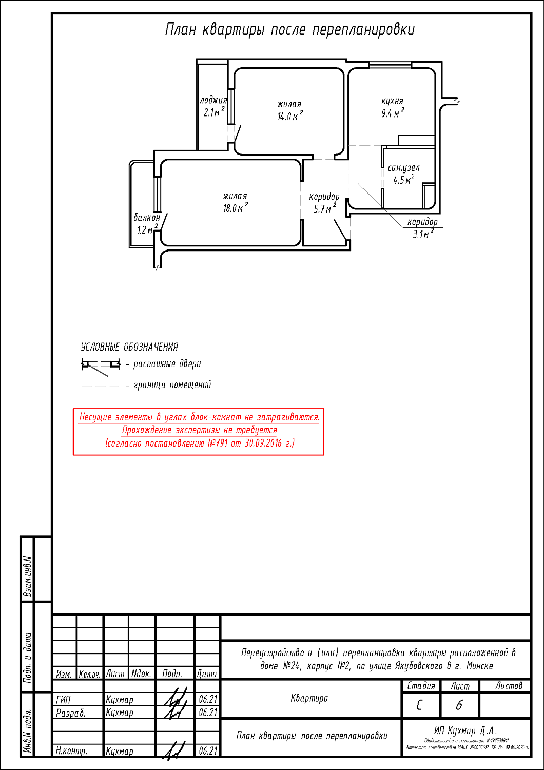
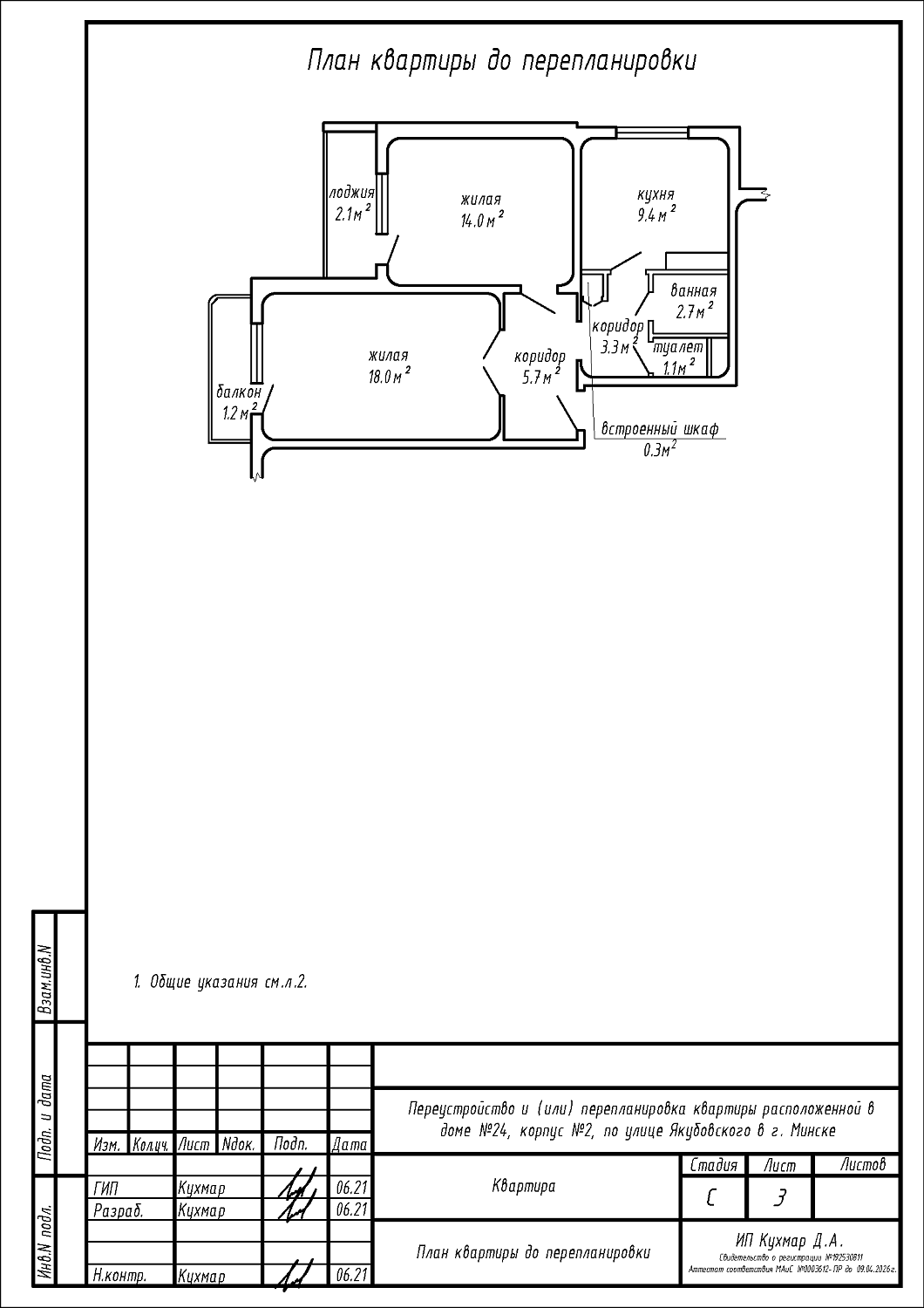
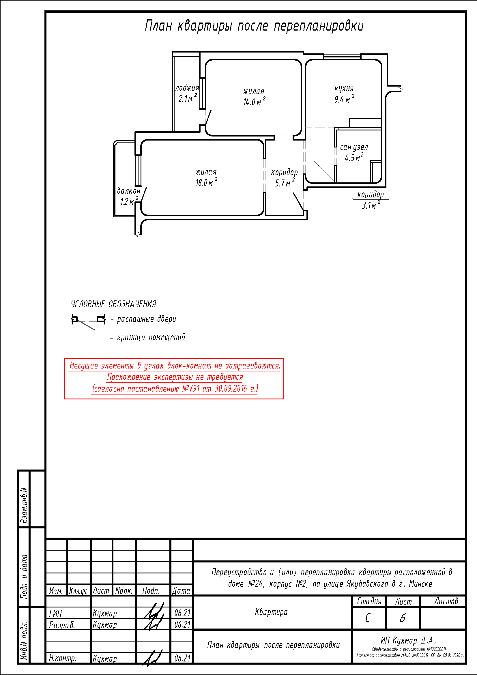
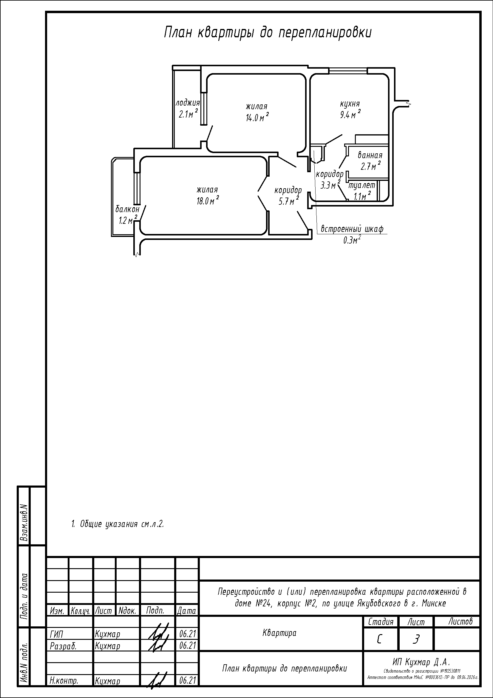
Перепланировка квартиры по Якубовского, 24 в г. Минске
Пожелания заказчика:
- Демонтаж встроенного шкафа;
- Объединение ванной и туалета в единый санузел;
- Расширение проёма в стене между коридором 3.3 м2 и коридором 5.7 м2.
Нами были разработаны следующие разделы проектной документации для согласования в исполкоме:
- АС - архитектурно-строительные решения.
