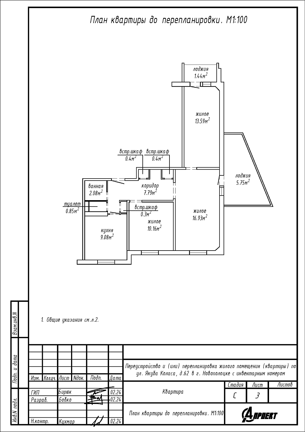
Перепланировка квартиры по ул. Якуба Коласа, 62 в г. Новополоцке
Пожелания заказчика:
- Демонтаж перегородок между ванной и туалетом, коридором с последующим возведением новых с увеличением площади за счет коридора;
- Демонтаж встроенного шкафа около кухни;
- Смещение дверного проема с дверью в кухню;
- Замена дверного блока входной двери со сменой направления открывания;
- Остекление лоджий.
Нами были разработаны следующие разделы проектной документации для согласования в исполкоме:
- АС - архитектурно-строительные решения.
